Heizungsposition/Lüftungsrohre Fehlplanung: Standortwechsel?

Diskutiere Heizungsposition/Lüftungsrohre Fehlplanung: Standortwechsel? im Regenerative Energien Forum im Bereich Haustechnik; Hallo zusammen, wie haben folgendes Problem und zwar wurde bei der Planung der Lüftungs und Heizungsanlage deren gegenseitiger Platzbedarf nicht...

  1. #1 Wurstsalat, 07.05.2020
    Wurstsalat

    Wurstsalat

    Dabei seit:
    02.09.2019
    Beiträge:
    7
    Zustimmungen:
    1
    Hallo zusammen,

    wie haben folgendes Problem und zwar wurde bei der Planung der Lüftungs und Heizungsanlage deren gegenseitiger Platzbedarf nicht beachtet und entsprechend ist kann die Heizung aktuell nicht dort platziert werden wo sie hin sollte.

    Aktuell folgender Zustand
    - Geplant ist eine Luft/Wasser Wärmepumpe
    - Lüftungsrohre sind verlegt
    - Heizung noch nicht eingebaut
    - Noch kein Estrich

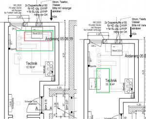
    Das ist hier der Ursprungsplan
    upload_2020-5-7_21-0-55.png

    Hier habe ich mal die Problemstelle eingezeichnet
    Die Heizung ist ~190cm hoch, da hier nun die Lüftungsrohre drüber laufen ist da aber keine 190 Platz, schon gar nicht mit Podest oder Estrich. Direkt auf dem Rohfußboden würde gerade so gehen aber das würde ich gerne vermeiden wollen, zum einen um eine Entkoppelung sicherzustellen und zum anderen auch um die Dämmung darunter zu haben.
    upload_2020-5-7_21-2-8.png
    Die Variante würde aber im Prinzip bedeuten dass nahezu alle Lüftungsrohre verlegt werden müssen (Planung Bauträger, Ausführung ich :) )

    Der Vorschlag vom Heizungsbauer war folgender:
    upload_2020-5-7_21-7-33.png

    Hier müsste ich nur zwei Rohre leicht versetzen, die Deckenhalterungen könnten weitgehend bleiben, die Hauszuleitung müsste auch in keinem "S" verlegt werden um Filter und Zähler unterzubringen (wäre bei ursprünglicher Planung zu nah an der Anlage selbst).

    Durch den Vorschlag des Heizungsbauers würde die Leitung vom Außengerät zum Innengerät ~5m länger, die Zuleitungen ins Haus ~1m kürzer. Die Verbindung Außen und Innengerät ist wohl nicht über ein Kältemittel sondern Wasser, denkt ihr bei dem Vorschlag des Heizungsbauers leidet die Effizienz der Wärmepumpe merklich?
    Welche Variante würdet ihr (ohne Aufwandbetrachtung) bevorzugen?
    Gibt es irgendwelche konkreten Gründe wo ihr sagt geht gar nicht?

    Danke schon mal für eure Einschätzung
     

    Anhänge:

Thema:

Heizungsposition/Lüftungsrohre Fehlplanung: Standortwechsel?

Die Seite wird geladen...

Heizungsposition/Lüftungsrohre Fehlplanung: Standortwechsel? - Ähnliche Themen

  1. Lüftungsrohre unterputz in der Außenwand

    Lüftungsrohre unterputz in der Außenwand: Hallo zusammen, ich habe in der Außenwand die alte Schächte einer früheren Schwerkraftheizung gefunden. Könnte man diese für die Verlegung von...
  2. Kondenswasser im WC-Lüftungsrohr nach Sanierung – Ursache und Lösung?

    Kondenswasser im WC-Lüftungsrohr nach Sanierung – Ursache und Lösung?: Hallo zusammen, ich saniere aktuell mein Gäste-WC und habe seit Beginn der Arbeiten ein Feuchtigkeitsproblem im Bereich der WC-Lüftung, das ich...
  3. Fachgerechte Ausführung Wanddurchführung Lüftungsrohre / Abdichtung

    Fachgerechte Ausführung Wanddurchführung Lüftungsrohre / Abdichtung: Moin, wir haben im Zuge unseres Neubaus eine Lüftungsanlage bekommen. Bezüglich der Wanddurchführung kam heute vom Installateur nun die Rückfrage...
  4. Lüftungsrohr der Dunstabzugshaube verschließen

    Lüftungsrohr der Dunstabzugshaube verschließen: Hallo, wir haben uns vor kurzem ein EHF (Baujahr 1991) gekauft und möchten unter anderem eine kontrollierte Wohnraumlüftung (KWL) haben. Unser...
  5. Heizungspositionen bei Glasfront und Wanddurchbruch

    Heizungspositionen bei Glasfront und Wanddurchbruch: Hallo zusammen, ich hoffe dies ist das richtige Heizungsforum für meine Frage. Wir planen den Umbau eines EFH gemäß angehängtem Grundriss:...