Hobby + Wohnraum / Dämmung im Keller
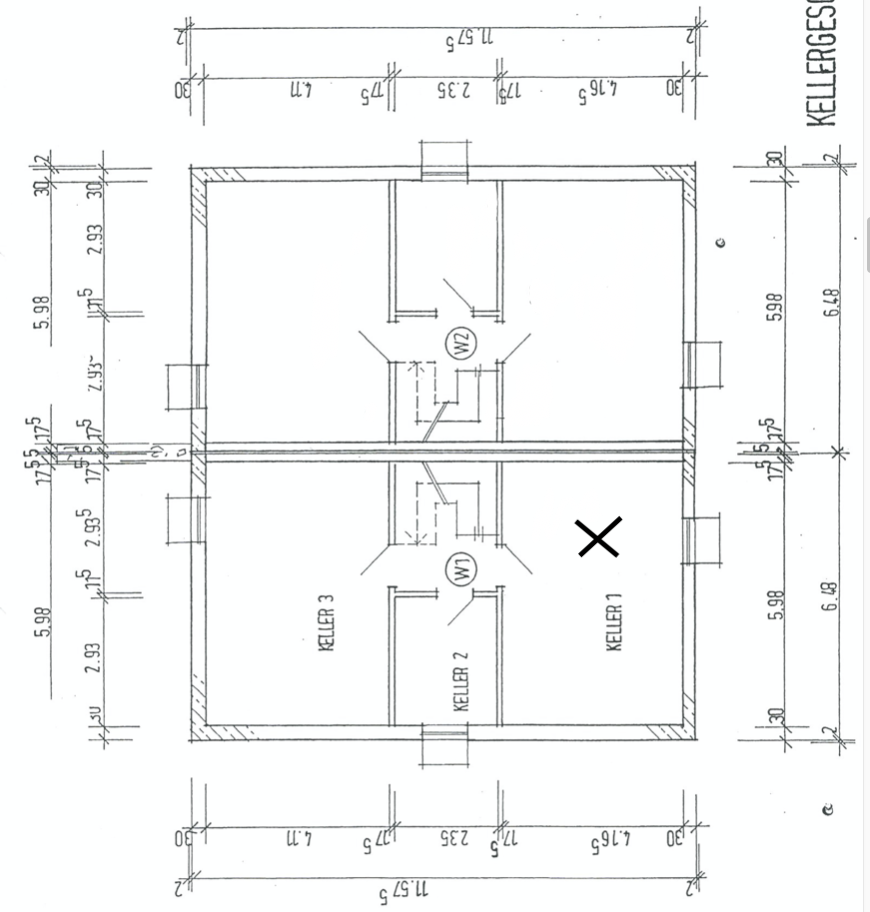
Diskutiere Hobby + Wohnraum / Dämmung im Keller im Abdichtungen im Kellerbereich Forum im Bereich Neubau; Hallo zusammen. Ich habe die Möglichkeit, mir im Keller einer zehn Jahre alten Doppelhaushälfte einen Hobbyraum (Musik und Filme) herzurichten....
Thema:
Hobby + Wohnraum / Dämmung im Keller
Die Seite wird geladen...
-
Hobby + Wohnraum / Dämmung im Keller - Ähnliche Themen
-
Isolierung Garage / Hobby-KFZ Werkstatt
Isolierung Garage / Hobby-KFZ Werkstatt: Moin, bin ganz neu und habe mal direkt eine Frage. Ich habe hier eine Garage, die ich als Hobbywerkstatt rein für Autos nutze. Über dem Winter... -
Hobby-Projekt Gartentor (Ausrchten, Betonieren, Pflastern)
Hobby-Projekt Gartentor (Ausrchten, Betonieren, Pflastern): Liebe Bau-Experten, Mein Projekt ich möchte ein Staketenzauntor über einen 1m breiten Pflasterweg anbringen. Habe mir das BooGardi Gartentor... -
Garagenbau Hobby Werkstatt
Garagenbau Hobby Werkstatt: Hallo, Ich möchte eine Garage bauen die als Hobbywerkstatt dienen soll. Die Garage soll 3 x 8m werden und 3m hoch. Das Fundament steht schon.... -
Dachboden ausbau für Hobby
Dachboden ausbau für Hobby: Hallo liebe Community Ich wollte jetzt mal einen Rat von Profis für mein problem und hoffe mir kann da einer helfen :) Ich wohne in einer... -
Warnung für hobby: Unerwünschte Werbung
Warnung für hobby: Unerwünschte Werbung: Beitrag: Haus von 1976 - wie Heizkosten senken? Benutzer: hobby Regelverstoß: Unerwünschte Werbung Verwarnpunkte: 0 Interne Notizen:...