Hochbettmontage an Rabitzwand

Diskutiere Hochbettmontage an Rabitzwand im Sonstiges Forum im Bereich Sonstiges; Hallo, in unserer neuen Wohnung (Altbau) soll ein Hochbett schwebend zwischen 2 Wänden angebracht werden. Um die tragende Wand (Mauerwerk) mache...

  1. #1 Schmietzie, 03.07.2020
    Schmietzie

    Schmietzie

    Dabei seit:
    03.07.2020
    Beiträge:
    5
    Zustimmungen:
    0
    Hallo,

    in unserer neuen Wohnung (Altbau) soll ein Hochbett schwebend zwischen 2 Wänden angebracht werden.
    Um die tragende Wand (Mauerwerk) mache ich mir keine Sorgen, wohl aber um die Rabitzwand gegenüber. Daher soll das Bett von einem vorgesetzten Holzständerwerk aus 4 80er Balken getragen werden. Diese an die Rabitzwand gedübelt und fertig. So zumindestens mein Gedanke. Das heißt die Last wird direkt in den Boden übertragen und die Balken müssen lediglich gegen Wegkippen gesichert werden. Die Frage ist, reichen normale Duopowerdübel aus oder sollte ich besser mit einem Injektionsverfahren oder Hohlraumdübeln arbeiten. Tendenziell gäbe es auch die Möglichkeit eine Platte von der anderen Seite zu schrauben um so die Kräfte auf eine größere Fläche zu verteilen, da bei den Rabitzwänden ja gerne mal flächigere Stücke wegplatzen.

    Gibt es Meinungen zu dem Thema?

    Viele Grüße
    Anne
     
  2. #2 Fabian Weber, 04.07.2020
    Fabian Weber

    Fabian Weber

    Dabei seit:
    03.04.2018
    Beiträge:
    16.309
    Zustimmungen:
    6.471
    Wenn die Balken das Bett tragen wohin sollen die denn dann noch kippen?

    Ich würde die höchstens am Boden festmachen.
     
    simon84 gefällt das.
  3. #3 Andreas Teich, 04.07.2020
    Andreas Teich

    Andreas Teich

    Dabei seit:
    20.03.2012
    Beiträge:
    3.102
    Zustimmungen:
    529
    Beruf:
    Gebäude-Energieberater, Planungsbüro, HW-Meister
    Ort:
    Bonn und Kärnten/Österreich
    Benutzertitelzusatz:
    Ggf anrufen sofern sich’s im Rahmen hält…
    Wenn die Decke stabil ist kannst du die Pfosten bis oben gehen lassen und dort befestigen,
    Wobei das Bett seitlich mit breiteren Brettern verschraubt oder einer diagonalen Kreuzverspannung auch nicht umkippen kann. Auf Abscheren belastete in die Heraklithwand geschraubte Schrauben halten auch, wenn sie sich nicht herausziehen können-
    oder längere nehmen bis zum tragfähigem Untergrund
     
  4. #4 Schmietzie, 05.07.2020
    Zuletzt bearbeitet: 05.07.2020
    Schmietzie

    Schmietzie

    Dabei seit:
    03.07.2020
    Beiträge:
    5
    Zustimmungen:
    0
    Hallo,

    vielen Dank erstmal für die Antworten.
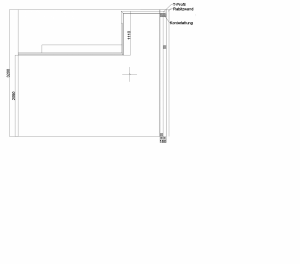
    Meine Frage zum besten Befestigungmaterial wurde leider noch nicht beantwortet. Daher hier eine Skizze des Aufbaus. Die roten Balken stellen sozusagen die Konterlattung dar, die aber im unteren Bereich Platz für eine Schiebetür lässt. Verschraubt werden kann im Boden und in der Wand. Die eigentliche Hochebene besteht aus 60er T-Profilen und 3-Schichtplatte. Wurde so vom Metaller abgesegnet.
    Meine Frage betrifft eigentlich nur die Befestigung der "Konterlattung" an der Rabitzwand (ca 7-8 cm Dicke) und hier sehe ich die Möglichkeit mit einfachen - oder Hohlraumdübeln zu arbeiten, zu einem Injektionsverfahren zu greifen oder sogar ein Platte/Klötze von der anderen Seite gegenzusetzen, und dann entsprechende Holzschrauben zu verwenden.

    Der Heizungsbauer wollte nicht mal einen 40 x 50 cm großen Heizkörper an die Rabitzwand hängen, daher meine Sorge.

    Ich hoffe sehr das mir jemand diese Sorge nehmen kann.

    Viele Grüße Anne
     

    Anhänge:

  5. #5 Fabian Weber, 05.07.2020
    Fabian Weber

    Fabian Weber

    Dabei seit:
    03.04.2018
    Beiträge:
    16.309
    Zustimmungen:
    6.471
    Wozu dieser Durchgang?

    die roten und die ganzen kurzen Querbalken braucht es nicht.
     
  6. #6 simon84, 05.07.2020
    simon84

    simon84
    Moderator

    Dabei seit:
    11.11.2012
    Beiträge:
    23.258
    Zustimmungen:
    6.904
    Beruf:
    Schrauber
    Ort:
    Muenchen
    Vermutlich kommt es auch drauf an was auf dem Bett veranstaltet wird. 2x 80+ kg Erwachsene mit Rechteckförmiger Impulsbelastung dann würde ich auf jeden Fall mit Gegenplatten arbeiten.
     
  7. Berndt

    Berndt

    Dabei seit:
    12.01.2011
    Beiträge:
    1.209
    Zustimmungen:
    499
    Beruf:
    Stuckateurmeister
    Ort:
    RLP
    an eine Rabitzwand kannste höchstens ein Bild aufhängen, aber sonst nix
     
    Fred Astair gefällt das.
  8. #8 Fred Astair, 05.07.2020
    Fred Astair

    Fred Astair

    Dabei seit:
    02.07.2016
    Beiträge:
    12.657
    Zustimmungen:
    6.524
    Beruf:
    Tänzer
    Ort:
    San Bernardino
    Aber nur eins von einer ganz dünnen Frau.
     
    Domski gefällt das.
  9. #9 Schmietzie, 06.07.2020
    Schmietzie

    Schmietzie

    Dabei seit:
    03.07.2020
    Beiträge:
    5
    Zustimmungen:
    0
    Es soll so viel der vollen Raumhöhe wie möglich erhalten bleiben, gleichzeitig dient die Aufkantung als Kopfteil.
     
  10. #10 Andreas Teich, 07.07.2020
    Andreas Teich

    Andreas Teich

    Dabei seit:
    20.03.2012
    Beiträge:
    3.102
    Zustimmungen:
    529
    Beruf:
    Gebäude-Energieberater, Planungsbüro, HW-Meister
    Ort:
    Bonn und Kärnten/Österreich
    Benutzertitelzusatz:
    Ggf anrufen sofern sich’s im Rahmen hält…
    Nimm ein Foto vom Raum auf und gib alle Maße vom Raum an inkl den vorgesehenen Maßen vom Bett
    sowie evt freizulassende Bereiche für die Schiebetür.

    Dann läßt sich mehr sagen
     
  11. #11 Schmietzie, 08.07.2020
    Schmietzie

    Schmietzie

    Dabei seit:
    03.07.2020
    Beiträge:
    5
    Zustimmungen:
    0
    Fotos kann ich erst morgen machen. Ich hoffe, dass mein Vorhaben anhand der Skizzen auch klar wird. Vielen Dank für die Mühe.
     

    Anhänge:

Thema: Hochbettmontage an Rabitzwand
Besucher kamen mit folgenden Suchen
  1. rabitzwand dübel

    ,
  2. rabitzwand befestigung

Die Seite wird geladen...

Hochbettmontage an Rabitzwand - Ähnliche Themen

  1. Wandschränke befestigen Kalkwand/Rabitzwand

    Wandschränke befestigen Kalkwand/Rabitzwand: Hallo liebe Forenmitglieder, ich hoffe, ich habe hier das richtige Forum entdeckt. Folgende frage habe ich: Ich wollte zwei einfache...
  2. Verstärkung von Rabitzwand in Berliner Altbau

    Verstärkung von Rabitzwand in Berliner Altbau: Hallo Zusammen, ich bin neu hier im Forum und möchte mich erst einmal vorstellen. heiße Niklas, mitte 30 und habe eine sanierungsbedürftige...
  3. Hochbett an Rabitzwand

    Hochbett an Rabitzwand: Hallo, in unserer neuen Wohnung (Altbau) soll ein Hochbett schwebend zwischen 2 Wänden angebracht werden. Um die tragende Wand (Mauerwerk) mache...