Horizontale Risse hin zur Außenwand (mehrere Meter) - Poroton Mauerwerk

Diskutiere Horizontale Risse hin zur Außenwand (mehrere Meter) - Poroton Mauerwerk im Hilfestellung für Neulinge Forum im Bereich Sonstiges; Hallo, wir haben letztens das Kinderzimmer (eigentlich sind es 2) auf Vordermann gebracht. Dabei sind uns 2 sehr lange Risse an der Wand...

  1. #1 Kalli2009, 30.07.2020
    Zuletzt bearbeitet: 30.07.2020
    Kalli2009

    Kalli2009

    Dabei seit:
    30.07.2020
    Beiträge:
    11
    Zustimmungen:
    0
    Hallo, wir haben letztens das Kinderzimmer (eigentlich sind es 2) auf Vordermann gebracht. Dabei sind uns 2 sehr lange Risse an der Wand (gleichzeitig Außenwand) aufgefallen. Das Haus wurde vor ca. 7 Jahren gebaut und die Kinderzimmer (aktuell verbunden) wurden als Kellerersatz verwendet. Dementsprechend standen verschiedene Möbelstück etc. rum. Die beiden risse sind einmal ca 5 m lang und einmal ca 3 m. Der Verlauf ist sehr geradlinig. Es sieht so aus, als würden sie zwischen zwei Steinreihen verlaufen. Wir hatten vor einigen Jahren nach der Fertigstellung einige Risse im Flur, die aber damals als "Setzrisse" bzw. "Putzrisse" deklariert wurden. Diese sind seit dem auch nicht wirklich gewachsen. Die "neuen" Risse sind aber dummerweise jetzt an der Außenwand. Sollte man sich Sorgen machen? Danke


    Es sollte horizontale Risse heißen
     
  2. #2 Kalli2009, 30.07.2020
    Kalli2009

    Kalli2009

    Dabei seit:
    30.07.2020
    Beiträge:
    11
    Zustimmungen:
    0
    Bilder
     

    Anhänge:

  3. #3 Kalli2009, 01.08.2020
    Kalli2009

    Kalli2009

    Dabei seit:
    30.07.2020
    Beiträge:
    11
    Zustimmungen:
    0
    ?
     
  4. JanRi

    JanRi

    Dabei seit:
    05.09.2016
    Beiträge:
    58
    Zustimmungen:
    38
    Beruf:
    Informatiker
    Ort:
    Hagen
    Nur mal zwei Gegenfragen:

    Hat da Haus einen Ringanker auf den Wänden? Könnte der in etwa in dieser Höhe sein?

    Wie breit sind die Risse? Google mal nach "Risslineal download"... da findest du PDF-Vorlagen für ein ausdruckbares Risslineal, das man mit einem vernünftigen Drucker auch benutzbar zu Papier bekommt (Maßstabsprobe beachten).
     
    BaUT gefällt das.
  5. #5 Kalli2009, 01.08.2020
    Kalli2009

    Kalli2009

    Dabei seit:
    30.07.2020
    Beiträge:
    11
    Zustimmungen:
    0
    Hi, wie kann ich das rausfinden? Ich glaube aber nicht. Die Risse sind größtenteils 0,2-0,4 mm. Der Längste hat an der dicksten Stelle knapp 0,8 :(
     
  6. BaUT

    BaUT

    Dabei seit:
    30.10.2019
    Beiträge:
    9.149
    Zustimmungen:
    5.721
    Beruf:
    Baufacharbeiter und Dipl.-Ing. Hochbau
    Ort:
    Berlin
    Benutzertitelzusatz:
    Erklärbär
    Grundriss mit eintragung der Risse?
    Sind diese uch außen sichtbar?
    Wie sollen wir dazu was sagen, wenn nicht mal das Tragwerk und die Lage der Risse im Objekt richtig klar ist?!
     
  7. #7 Kalli2009, 03.08.2020
    Kalli2009

    Kalli2009

    Dabei seit:
    30.07.2020
    Beiträge:
    11
    Zustimmungen:
    0
    Die Risse sind im OG. Der Lange ist an der Außenwand. Von außen ist nichts sichtbar. Die vertikalen sind in der Innenwand.

    Tragwerk? Die Decke zwischen EG und OG besteht aus Beton. Die Decke zwischen OG und Speicher aus Holz.
     
  8. BaUT

    BaUT

    Dabei seit:
    30.10.2019
    Beiträge:
    9.149
    Zustimmungen:
    5.721
    Beruf:
    Baufacharbeiter und Dipl.-Ing. Hochbau
    Ort:
    Berlin
    Benutzertitelzusatz:
    Erklärbär
    Wer so faul ist beim Vorlegen angefragter Unterlagen, dem kann auch nicht geholfen werden.
    Frag wen aus der Nachbarschaft - der kann dann selber gucken kommen und braucht weder Fotos noch Baupläne
     
  9. #9 Manufact, 04.08.2020
    Manufact

    Manufact
    Moderator

    Dabei seit:
    21.11.2016
    Beiträge:
    3.813
    Zustimmungen:
    1.360
    Beruf:
    Bautenschutz
    Ort:
    Bayern
    @BaUT : man, man bist Du garstig:)
    Da hilft doch sicher ein bissschen Bauschaum ;)
     
  10. #10 Kalli2009, 04.08.2020
    Kalli2009

    Kalli2009

    Dabei seit:
    30.07.2020
    Beiträge:
    11
    Zustimmungen:
    0
    Sorry, ich hatte deine Anfrage nicht verstanden. Ich lade heute oder morgen die Grundrisse hoch.
     
  11. #11 Kalli2009, 04.08.2020
    Kalli2009

    Kalli2009

    Dabei seit:
    30.07.2020
    Beiträge:
    11
    Zustimmungen:
    0
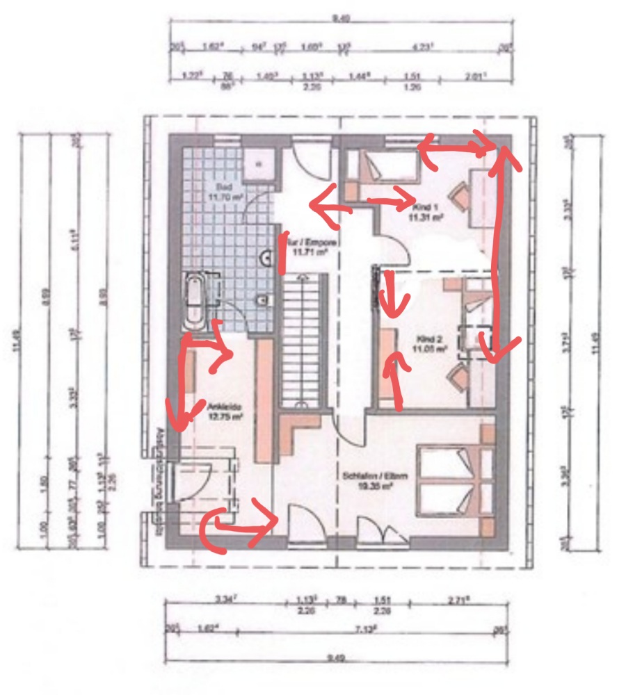
    Hilft das weiter?

    An der Innenwand oben verlaufen die Risse vertikal. An der Außenwand oben rechts kurz vor dem Kniestock. Ganz oben am Fussbereich. Innenwand Kinderzimmer auf ca. 1.5m Höhe. Haben mal alle Wände genau inspiziert und kleinere Risse in der Ankleide gefunden. Ebenfalls im Fußbereich. Unten im Ankleidezimmer auf ca. 1m Höhe. Innenwand zum Bad auf ca. 1.2m
     

    Anhänge:

  12. #12 Kalli2009, 07.08.2020
    Kalli2009

    Kalli2009

    Dabei seit:
    30.07.2020
    Beiträge:
    11
    Zustimmungen:
    0
    Ich habe an der dicksten Stelle den Putz entfernt. Wie vermutet sind es Fugenrisse. Also sind sie sehr bedenklich?
     

    Anhänge:

  13. SIL

    SIL

    Dabei seit:
    06.05.2018
    Beiträge:
    10.865
    Zustimmungen:
    4.212
    Beruf:
    M. Sc. Dipl. Ingenieur
    Ort:
    6210
    Alles im OG?
    Betongurt darauf?
    Verarbeitungsfehler oder sehr nass gewesen oder fehlende Austeifung oder thermisches Problem, wie sind die Innenwände angeschlossen? Stumpfstoss? Welches Material? Risse im DG? Außenwand im Putz sichtbare Treppung oder Riss Wölbung Deckenband sichtbar? Lange Rede... Breite messen und Tiefe der Risse ggf kraftschlüssig verpressen lassen oder halt malerseitig.
     
  14. #14 Kalli2009, 07.08.2020
    Kalli2009

    Kalli2009

    Dabei seit:
    30.07.2020
    Beiträge:
    11
    Zustimmungen:
    0
    Also eher kein Statik Problem?

    Alles im OG. Außen sieht man nichts. Betondecke zwischen EG und OG. Rund um Balken, dann kommt das Dach. Sind Porotonsteine. Breite an der dicksten Stelle ca 1mm
     
  15. SIL

    SIL

    Dabei seit:
    06.05.2018
    Beiträge:
    10.865
    Zustimmungen:
    4.212
    Beruf:
    M. Sc. Dipl. Ingenieur
    Ort:
    6210
    1 mm ist viel, woher das nun kommt, keine Ahnung - bei dieser Breite ist nichts mehr mit reiner malerseitiger Beseitigung, Verpressen lassen, erledigen Bausanierer unter anderen oder noch einen SV /Gutachter vorher kommen lassen.....
     
  16. #16 Kalli2009, 17.08.2020
    Kalli2009

    Kalli2009

    Dabei seit:
    30.07.2020
    Beiträge:
    11
    Zustimmungen:
    0
    was ich überlegt habe.... im EG ist der Wohn- und Essbereich. Dieser wurde großzügig (6x10m) frei - ohne Zwischenwände gebaut. Kann es sein, dass sich die Decke durch gebogen hat? Lässt sich das irgendwie mit geringem Aufwand testen? Lasermessgerät wird zu ungenau sein?
     
  17. SIL

    SIL

    Dabei seit:
    06.05.2018
    Beiträge:
    10.865
    Zustimmungen:
    4.212
    Beruf:
    M. Sc. Dipl. Ingenieur
    Ort:
    6210
    Nein, aber das ist sichtbar - selbst eine Verformung im mm Bereich ist in der Deckenuntersicht und an den anschließenden Wänden sichtbar im ixel, falls mit Vlies Gewebe Tapete die Unterseite malermässig versehen ist.
    Selbst wenn sie messen würden, wissen sie immer noch nicht ob ein eventueller Durchhang neu oder alt ist, denn je nach Statik ist ja ein minimaler zulässig, wobei sich der Durchhang aber direkt nach dem Abschalen einstellt.
     
  18. #18 Kalli2009, 18.08.2020
    Kalli2009

    Kalli2009

    Dabei seit:
    30.07.2020
    Beiträge:
    11
    Zustimmungen:
    0
    Also ist es eher unwahrscheinlich? Der Putz kam ja deutlich später. Vg
     
  19. #19 Sid1986, 17.09.2023
    Sid1986

    Sid1986

    Dabei seit:
    21.01.2023
    Beiträge:
    3
    Zustimmungen:
    0
    Hallo
    Wurde die Ursache, für die Rissbildung , gefunden?
     
  20. #20 Wieland, 18.09.2023
    Wieland

    Wieland

    Dabei seit:
    06.10.2012
    Beiträge:
    649
    Zustimmungen:
    127
    Beruf:
    Maurer u. Stahlbetonbaumeister
    Ort:
    Bürstadt
    Benutzertitelzusatz:
    Maurer und Stahlbetonbaumeister
    Hallo Kalli,

    ob sich die Decke nachträglich durchhängt, kann eigentlich nur mit einem Schalungsprotokoll,
    Vor Betonage, nach Betonage, nach Ausschalen,
    Nach Belastung und Verkehrslasten geprüft
    Werden. Ansonsten bleibt alles Spekulation!

    Und ja es kann sehr viele Gründe für solch eine
    Rissbildung geben!

    Ein Beispiel: Die Decke wird Betoniert und liegt
    Kraftschlüssig auf dem Mauerwerk auf!
    Die Sonne bretzelt drauf die Decke dehnt sich
    aus und schiebt die Auflagerschicht nach außen.

    Das Bauwerk setzt sich auf unbelasteten Grund
    Etc.

    Grundsätzlich sollte man jetzt über allen Rissen
    Gipsmarken mit Datum und Protokoll Numerisch
    anbringen um zu prüfen ob da noch Bewegung
    Im Bauwerk ist! Heißt über einen Zeitraum
    von 6 Wochen beobachten.

    Dann kann man zumindest einiges Mutmaßen!

    Grüße
    Michael
     
Thema: Horizontale Risse hin zur Außenwand (mehrere Meter) - Poroton Mauerwerk
Besucher kamen mit folgenden Suchen
  1. horizontale risse außenwand

Die Seite wird geladen...

Horizontale Risse hin zur Außenwand (mehrere Meter) - Poroton Mauerwerk - Ähnliche Themen

  1. Horizontaler Riss Bj 1949

    Horizontaler Riss Bj 1949: Guten Tag Ich habe vor ca. 2 Jahren ein Mehrfamilienhaus erworben, ca. Bj 1949, welches voller Risse war (Ist) Ich habe damals einen Statiker...
  2. horizontaler Riss im Dachgeschoss

    horizontaler Riss im Dachgeschoss: Hallo Zusammen, wir haben im DG einen horizontalen Riss an der Wand zur Nachbardoppelhaushälfte (Doppelwand mit Dämmstreifen dazwischen - daher...
  3. Neubau Risse horizontal bei Zwischenwänden direkt unter Decke

    Neubau Risse horizontal bei Zwischenwänden direkt unter Decke: Hallo, 2019 wurde mir mein Neubau vom Baumeister übergeben. Es ist ein Haus ohne Keller und ohne Dachstuhl mit Flachdach, ca. 140m2. Wegen...
  4. Riss horizontal an Decke im WZ, darüber eine Wand. wie relevant ist der Riss?

    Riss horizontal an Decke im WZ, darüber eine Wand. wie relevant ist der Riss?: Guten Abend, Kurze Vorgeschichte: Ich und meine Frau möchten für unsere Familie ein BJ 2014 KfW 70 Bauweise Haus von Massa-Haus (Lifestyle 28)...
  5. Horizontale Risse in Innen- und Aussenwänden (DHH)

    Horizontale Risse in Innen- und Aussenwänden (DHH): Hallo Bauexperten, wir interessieren uns für eine DHH BJ 1993. Das Massivhaus steht am Hang. Das äußere Mauerwerk ist 30cm stark, die...