HST unter Stahlträger - Ausführungsdetail Dämmung

Diskutiere HST unter Stahlträger - Ausführungsdetail Dämmung im Sanierung konkret Forum im Bereich Altbau; Hallo an die Expertenrunde, gerne würde ich einmal eure fachliche Einschätzung dieses Details einholen. Wir setzen eine Hebe-Schiebetür in einen...

  1. Pola

    Pola

    Dabei seit:
    04.10.2019
    Beiträge:
    14
    Zustimmungen:
    0
    Beruf:
    Projektleiter Innenausbau
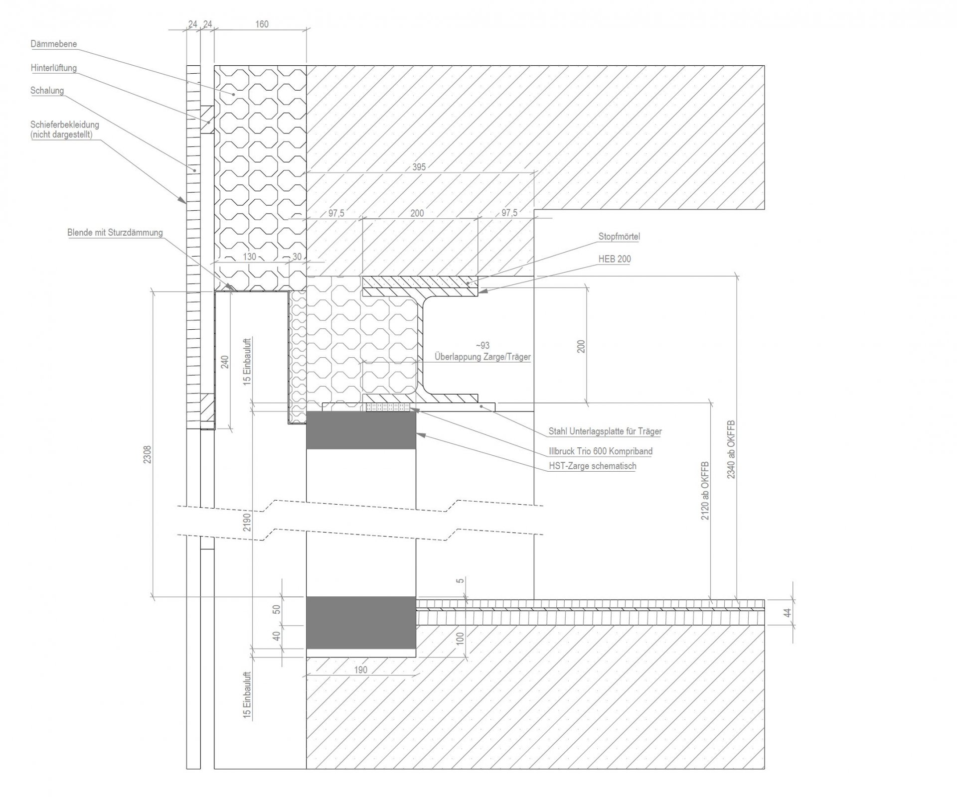
    Hallo an die Expertenrunde,

    gerne würde ich einmal eure fachliche Einschätzung dieses Details einholen.
    Wir setzen eine Hebe-Schiebetür in einen noch zu erstellenden Wanddurchbruch.
    Vor der HST sitzt ein Raffstore-Kasten, die Außenwand bekommt noch eine Außendämmung.

    Die Statik dazu wurde erstellt, es ist ein HEB 200 mittig in die Mauer einzusetzen.

    Nun geht es mir aber um das Ausführungsdetail:
    Detail_HST_Terrasse.JPG
    Den Bereich vor dem Stahlträger/hinter dem Raffstore würde ich vollständig mit Mineralwolle ausdämmen.
    Das wäre das gleiche Material wie für die Fassadendämmung.

    Ist es hier ratsam/nötig den Stahlträger 30mm höher zu setzen um noch eine 30mm EPS-Platte drunter zu setzen?

    Vielen Dank für eure Einschätzung,
    Markus
     
  2. Pola

    Pola

    Dabei seit:
    04.10.2019
    Beiträge:
    14
    Zustimmungen:
    0
    Beruf:
    Projektleiter Innenausbau
    Keiner eine Meinung dazu?
     
Thema:

HST unter Stahlträger - Ausführungsdetail Dämmung

Die Seite wird geladen...

HST unter Stahlträger - Ausführungsdetail Dämmung - Ähnliche Themen

  1. Terrassenüberdachung aus BSH und und Stahlträger. Hilfe gesucht.

    Terrassenüberdachung aus BSH und und Stahlträger. Hilfe gesucht.: Hallo zusammen, ich würde gerne eine Terrasenüberdachung bauen und bin mir bzgl. einiger Punkte unsicher. Decke und Stahlträger habe ich bereits...
  2. Beschädigter Ziegel am Boden unter Stahlträger

    Beschädigter Ziegel am Boden unter Stahlträger: Hallo! Ich lese öfter in diesem Forum zu verschiedenen Themen - echt toll :-) Da ich nun selbst ein Thema habe, möchte ich gern um Input und...
  3. Stahlträger im Badezimmer verkleiden

    Stahlträger im Badezimmer verkleiden: Hallo liebes Forum, wir haben einen Stahlträger im Badezimmer, welcher nun irgendwie integriert (optisch) werden soll - siehe Bild. Entweder...
  4. Statik-Sorgen: Starke Korrosion an Stahlträgern in feuchtem Keller – Einsturzgefahr?

    Statik-Sorgen: Starke Korrosion an Stahlträgern in feuchtem Keller – Einsturzgefahr?: Hallo zusammen, ich wende mich mit großer Sorge an die Experten hier im Forum und hoffe auf eine erste Einschätzung zu einer beunruhigenden...
  5. Stahlträger in zweischaligem Mauerwerk ohne Korrosionsschutz?

    Stahlträger in zweischaligem Mauerwerk ohne Korrosionsschutz?: Hallo zusammen, bei unserem Hausumbau lassen wir gerade zwei neue Fensteröffnungen erstellen. Wir haben ein zweischaliges Mauerwerk (2x 11,5 cm...