Kamin und Schornstein entfernen

Diskutiere Kamin und Schornstein entfernen im Mauerwerk Forum im Bereich Neubau; Hallo. Wir haben ein Atrium-Bungalow aus dem Jahre 1976 gekauft und werden es sanieren. Wir möchten eine offene Küche und möchten dazu zum einen...

  1. #1 papa1981, 13.02.2019
    papa1981

    papa1981

    Dabei seit:
    12.06.2018
    Beiträge:
    11
    Zustimmungen:
    2
    Hallo. Wir haben ein Atrium-Bungalow aus dem Jahre 1976 gekauft und werden es sanieren.

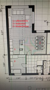
    Wir möchten eine offene Küche und möchten dazu zum einen den Kamin + Schornstein entfernen und zum anderen einen Wanddurchbruch. Siehe Bilder.

    Meine Fragen:
    1.) Kann ich den Schornstein ohne Probleme entfernen oder hat dieser eine tragende Funktion?
    2.) Wie schließe ich das Loch an der Decke?
    3.) Das Wohnzimmer möchten wir mit dem Nebenraum durch einen Wanddurchbruch vergrößern. Dürfte eigentlich keine tragende Wand sein. Oder?

    Der Abfluss befindet sich genau hinter dem Kamin. Daher möchten wir die Kochinsel wie im Bild "Soll-Zustand" positionieren.

    Grüße
     

    Anhänge:

  2. #2 Trekker, 13.02.2019
    Zuletzt bearbeitet: 13.02.2019
    Trekker

    Trekker

    Dabei seit:
    13.11.2018
    Beiträge:
    130
    Zustimmungen:
    15
    zu 1) Ein Schornstein darf keine tragende Funktion haben, auch deshalb wird er, falls er schon vor dem Betonieren der Decke hochgezogen wurde, zur Abtrennung mit Glasfaser oder Asbest ummantelt.
    zu 2) Wenn es sich um eine Betondecke handelt, dann bohrst Du in der Öffnung 8er oder 10er Löcher, haust dort entsprechende Rundeisen rein, verbindest diese über Kreuz mit längeren Rundeisen oder einer kleinen Baustahlmatte, schalst von unten mit Holz (Schaltafel, Kanthölzer) und Sprieß ab und verfüllst von oben mit Beton. Zur besseren Festigkeit den frisch verfüllten Beton von unten durch Hammerschläge auf die Schaltafel entlüften.
    zu 3) Ich vermute eine tragende Wand, weil die tragenden Baustähle die Decke in der Regel auf dem kürzesten Weg queren.
    zu 4) Bei dem Baujahr musst Du stark damit rechnen, dass um den Kamin herum Asbest verbaut wurde, was dann ein größeres Problem wäre. Da der Abfluss aus PVC besteht, wurde er häufig mit Asbest gegen Hitze geschützt.
     
    simon84 gefällt das.
  3. #3 papa1981, 16.02.2019
    papa1981

    papa1981

    Dabei seit:
    12.06.2018
    Beiträge:
    11
    Zustimmungen:
    2
    EA423B78-8114-4001-BB6D-90D4EBF71A2D.jpeg Danke für deine Antwort.

    Zu Punkt 4:
    Mein Gaswasserinstallateur hat in der Küche an der Wand wo der Abfluss ist, die Stelle gestemmt um zu prüfen, wohin der Abfluss verläuft. Dabei konnten wir direkt die verklickerte Kaminseite sehen. Wie könnte ich das herausfinden, ob nun Asbest verwendet worden ist oder nicht?
     
    simon84 gefällt das.
  4. #4 simon84, 16.02.2019
    simon84

    simon84
    Moderator

    Dabei seit:
    11.11.2012
    Beiträge:
    23.253
    Zustimmungen:
    6.898
    Beruf:
    Schrauber
    Ort:
    Muenchen
    Materialprobe einschicken
     
  5. #5 Trekker, 17.02.2019
    Zuletzt bearbeitet: 17.02.2019
    Trekker

    Trekker

    Dabei seit:
    13.11.2018
    Beiträge:
    130
    Zustimmungen:
    15
    Ist aber seltsam, verklinkert wird eigentlich nur die Sichtseite. Möglicherweise habt ihr den im Kamin vermauerten Schamottstein gesehen. Und wenn zwischen Wand und Klinker (Schamott) keine entsprechende Faserplatte dazwischen war, dann hast Du Glück gehabt. Asbest war da sicher auch überflüssig, weil der Schamott oder Klinker die größte Hitze kompensiert und auch nur ein kurzes Stück (ständig befeuchtetes) Rohr hinter der Brennstelle verläuft.

    Dies hätte man an einer grauen Fasermatte erkennen können. Die sind heute ohne Asbest auch noch grau, deshalb macht, falls so etwas vorhanden war, eine Materialprobe Sinn. War da allerdings Asbest und der Handwerker hat drin rumgemeiselt, dann ist die ganze Bude verseucht. Aber das ist jetzt schon Panikmache. So wie Du schreibst war da nichts und es wäre auch nicht erforderlich gewesen.

    Leider wussten es die Handwerker der 60er und 70er nicht besser und haben das Zeug unbedenklich verbaut. So wurden eine Zeit lang Asbestzementrohre für die Abwasserleitungen verwendet. Diese wurden dann von den Sanitärinstallateuren oft im Haus mit der Flex zugeschnitten. Die Stäube dürften heutige Sanierer oftmals noch einatmen. Andererseits werden häufig diejenigen davon krank, die in Panik verfallen. Die Handwerker von damals, wie ein Bruder von mir beweist, leben immer noch.
     
  6. #6 Thrasher1103, 01.11.2019
    Thrasher1103

    Thrasher1103

    Dabei seit:
    04.06.2019
    Beiträge:
    40
    Zustimmungen:
    10
    Ich schließe mich mal diesem Thema an, da ich prinzipiell dieselbe Frage habe, jedoch einen anderen Schwerpunkt.

    Ich entkerne gerade ein Haus, sprich alles raus, bis aus den Rohbau. Dabei steht mir im 1. OG nun eigentlich nur noch der Kamin im Weg. Da das Haus in Richtung Passivhaus ausgebaut und eine Wärmepumpe installiert werden soll, benötige ich den Schornstein nicht mehr. Die Öffnung in der Decke zwischen EG und 1.OG kann ich für den Ebenenwechsel von diversen Kabeln und Lüftungskanälen verwenden, die Decke zum 2. OG (Beton) wird verschlossen, das Loch im Dach ebenfalls.

    Der Schornstein diente einer im Keller stehenden Ölheizung als Schornstein und hat zwei "Züge" (nennt man das so?). Er wurde 1960 mit der Errichtung des Hauses gebaut und scheint gemauert zu sein (Schamott? Woran erkenne ich das?)
    Im 1. OG habe ich den Putz des Kamins an einer Stelle entfernt. Dahinter kommt eine etwa 1 mm dicke, dunkelgraue Schicht, fühlt sich an wie Kabelisolierung und zerbröselt, wenn man sie in die Finger nimmt. Dahinter kommen die Steine. Muss ich mir Sorgen bzgl. Asbest in diesem zerbröseligen Zeug machen? Ich kann ziemlich sicher sagen, dass die Steine von 1960-1978 genauso roh belassen waren, wie im 2. OG.

    Anbei noch ein paar Bilder.

    Gruß M. Bildschirmfoto 2019-11-01 um 16.57.14.png Bildschirmfoto 2019-11-01 um 16.57.29.png
     
  7. #7 simon84, 02.11.2019
    simon84

    simon84
    Moderator

    Dabei seit:
    11.11.2012
    Beiträge:
    23.253
    Zustimmungen:
    6.898
    Beruf:
    Schrauber
    Ort:
    Muenchen
    Ja , du solltest eine Probe entnehmen und einschicken.
     
  8. #8 Trekker, 27.11.2019
    Zuletzt bearbeitet: 27.11.2019
    Trekker

    Trekker

    Dabei seit:
    13.11.2018
    Beiträge:
    130
    Zustimmungen:
    15
    Man nennt es so. Ein Zug war für die Ölheizung und der andere war wofür?
    Vermutlich ist es ein roter Ziegelstein. Schamott wäre Beige.
    Wenn er auf Nummer sicher gehen will, ist das richtig. Allerdings frage ich mich, was eine Asbestschicht unter dem Putz bewirken soll. In der Regel ist es doch sinnvoll, dass Hitze über den Kamin in den Raum abgegeben werden kann. Andererseits stellt sich die Frage, was das für ein Zeug ist?
    Du meinst vor dem Auftragen des Verputzes?
     
  9. #9 Thrasher1103, 03.12.2019
    Thrasher1103

    Thrasher1103

    Dabei seit:
    04.06.2019
    Beiträge:
    40
    Zustimmungen:
    10
    Ja. Der Putz kam erst 78 rein. Probe war negativ
     
    Trekker gefällt das.
Thema: Kamin und Schornstein entfernen
Besucher kamen mit folgenden Suchen
  1. schornstein tragend

    ,
  2. schornstein tragend?

    ,
  3. schornstein entfernen

    ,
  4. schornstein als tragendes element,
  5. schornstein demontieren,
  6. ist ein kamin tragend,
  7. tragender kamin,
  8. kann ein schoenstein tragend sein,
  9. Schornstein im Verband mit wand gemauert,
  10. Kann ein Kamin tragend sein?? ,
  11. schornstein tragende wand,
  12. Kamin tragende funktion,
  13. asbest kamin erkennen,
  14. wie erkenne ich eine tragende wand 70er,
  15. Gemauerten Schornstein in tragender wand,
  16. kamin entfernen haus,
  17. kamin tragende wand,
  18. schornsteinverkleidung 70er jahre,
  19. Schornstein in tragender Wand,
  20. sind schornsteine tragend?,
  21. asbest mörtel erkennen,
  22. schornstein abtragen,
  23. schornstein abtragen asbest,
  24. Ist ein kaminzug ein Tragendes Element,
  25. freistehender schornstein abbauen
Die Seite wird geladen...

Kamin und Schornstein entfernen - Ähnliche Themen

  1. Alten Schornstein und offenen Kamin außer Betrieb nehmen

    Alten Schornstein und offenen Kamin außer Betrieb nehmen: Hi zusammen, Ich habe 2 offene Kamine die zu einem Schornstein führen und die wir stilllegen möchten. Wir haben jetzt oben auf Anraten des...
  2. Kamin / Ofen / Schornstein Doppelwandfutter Einbau

    Kamin / Ofen / Schornstein Doppelwandfutter Einbau: Hallo liebe Experten, anbei zwei Bilder meines Wandfutters. Wie man sieht, suppte da eine Zeit lang Wasser raus (eventuell nur Kondenswasser, bin...
  3. Schornstein/Kamin versottet?

    Schornstein/Kamin versottet?: Hallo zusammen, ich bin auf einen sehr nassen Kamin im unausgebauten Dachgeschoss gestoßen. Der gemauerte Kamin ist sowohl außen als auch innen...
  4. Warmluftverteilung Kamin über stillgelegten Schornstein

    Warmluftverteilung Kamin über stillgelegten Schornstein: Hallo zusammen, das ist mein erster Beitrag in dem Forum, auch wenn ich während der Komplettsanierung unseres EFH immer wieder von euren...
  5. Schornsteinmantelstein feucht

    Schornsteinmantelstein feucht: Hallo an alle Experten. Gestern ist mir aufgefallen, dass die Schornsteinmantelsteine im Bereich des Spitzbodens Feuchtigkeitsflecken...