Kellerausbau

Diskutiere Kellerausbau im Sanierung konkret Forum im Bereich Altbau; Guten Morgen zusammen, ich möchte einen Teil des Kellers unserer 20 Jahre alten Doppelhaushälte zum Hobbyraum auszubauen und benötige hier etwas...

  1. bassi

    bassi

    Dabei seit:
    14.09.2020
    Beiträge:
    1
    Zustimmungen:
    0
    Guten Morgen zusammen,

    ich möchte einen Teil des Kellers unserer 20 Jahre alten Doppelhaushälte zum Hobbyraum auszubauen und benötige hier etwas Beratung. Es handelt sich um einen Beton-Keller mit schwarzer Wanne und (teilweiser) Perimeterdämmung (60mm). Teilweise, da die andere Doppelhaushälfte bisher nicht gebaut wurde. An dieser Außenwand fehlt die Dämmung.

    IMG_1375 (1).jpg

    Der Keller ist hier etwa 120cm mit Erdreich bedeckt.

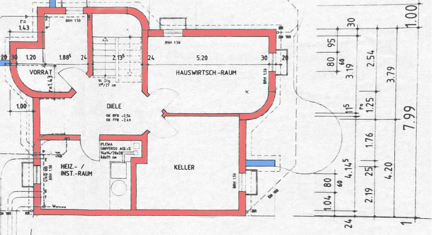
    Hier der Plan des Kellers selbst:

    Keller.PNG

    Meine Wunschvorstellung ist es die Wand zwischen "Hauswirtsch.-Raum" und "Keller" zu entfernen und die Wand zur "Diele" zu begradigen. Da wären wir auch schon bei der ersten Frage: Ist das aus eurer Sicht ohne Weiteres möglich? Die Wände existieren in der Form auch nur im Keller und scheinen, für den Laien, nicht tragend zu sein.

    Angenommen das klappt alles so wäre der Nächste Punkt die Außenwand: Wie gehe ich mit dieser um? Gerne würde ich hier auch Unterputzsteckdosen und Netzwerkkabel verlegen, das dürfte im Beton etwas schwierig werden. Mein erster Gedanke war daher Verkleiden mit Gipskarton. Scheinbar im Keller ja aber nicht unbedingt die beste Idee. Gilt das aber auch mit der Perimeterdämmung und wenn ich eine Dampfbremse anbringe? Wie könnte ich außerdem vermeiden den kompletten Betonkern mitzuheizen?
    Was mache ich an der ungedämmten Außenwand? Macht es Sinn hier mit Calciumsilikat-Platten zu arbeiten? Könnte man diese einschlitzen und dahinter Leitungen verlegen?

    Dann ist da noch die Sache mit den Fenstern (Man verzeihe das Chaos auf den Bildern, wir sind nach 6 Monaten Renovierung vor 4 Wochen Eingezogen, da hatte das noch keine Priorität...):

    IMG_1374.jpg

    Gibt es hier eine Lösung diese einfach durch "richtige" Fenster zu erstezen?

    Viele Fragen, ich hoffe nicht zu viele.

    Danke und viele Grüße
    Sebastian
     
Thema:

Kellerausbau

Die Seite wird geladen...

Kellerausbau - Ähnliche Themen

  1. Kellerausbau im Haus von 1935

    Kellerausbau im Haus von 1935: Hallo zusammen Wir wohnen in einem Haus aus 1935. Dieses steht an Hanglage, sodass mindestens 1/3 des Kellers nicht im Erdreich sind. Der Keller...
  2. Horizontalsperre erweitern vorm Kellerausbau?

    Horizontalsperre erweitern vorm Kellerausbau?: Moin liebes Forum, wir sind seit ein paar Monaten Hausbesitzer eines Einzelhauses aus dem Jahr 1986 in Hamburg Sasel, jetzt möchte ich mich gern...
  3. Kellerausbau

    Kellerausbau: Hallo in die Runde, ich möchte meinen Keller bewohnbar machen. Aus den vier Räumen sollen ein Hauswirtschaft-, ein Badezimmer, ein Gästezimmer...
  4. Kellerausbau - wie richtig?

    Kellerausbau - wie richtig?: Hi; ich habe mich schon ein wenig eingelesen, doch noch bin ich nicht komplett schlau geworden aus den verschiedenen Vorgehen, die überall...