Kellerwand

Diskutiere Kellerwand im Sanierung konkret Forum im Bereich Altbau; Hallo Kollegen ich will eine Kellerwand einreißen, die wie ich glaube keine tragende ist. Die Wand ist nur 14cm dick. Danke

  1. Reblis

    Reblis

    Dabei seit:
    29.12.2019
    Beiträge:
    5
    Zustimmungen:
    0
    Hallo Kollegen

    ich will eine Kellerwand einreißen, die wie ich glaube keine tragende ist. Die Wand ist nur 14cm dick. Danke
     

    Anhänge:

  2. #2 simon84, 29.12.2019
    simon84

    simon84
    Moderator

    Dabei seit:
    11.11.2012
    Beiträge:
    23.298
    Zustimmungen:
    6.923
    Beruf:
    Schrauber
    Ort:
    Muenchen
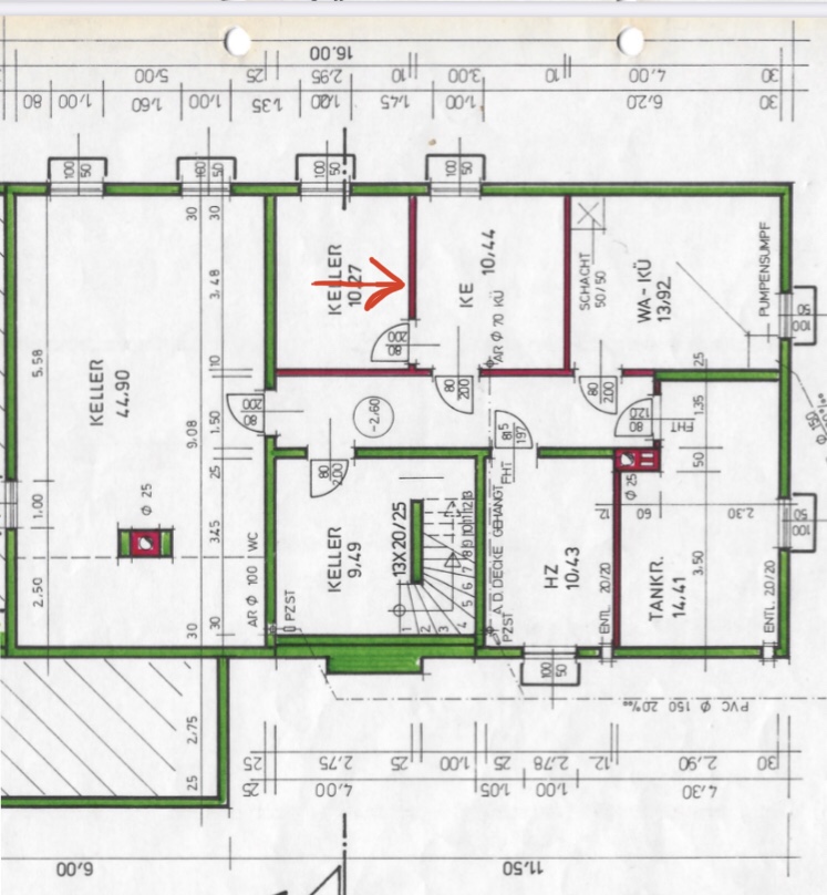
    Sollen alle rot gekennzeichneten Wände entfernt werden ?
     
  3. Reblis

    Reblis

    Dabei seit:
    29.12.2019
    Beiträge:
    5
    Zustimmungen:
    0
    Nur die eine Zwischenwand wo der Pfeil hin zeigt.
     
  4. Reblis

    Reblis

    Dabei seit:
    29.12.2019
    Beiträge:
    5
    Zustimmungen:
    0
    nur die eine wo der Pfeil hin zeigt
     
  5. #5 simon84, 29.12.2019
    simon84

    simon84
    Moderator

    Dabei seit:
    11.11.2012
    Beiträge:
    23.298
    Zustimmungen:
    6.923
    Beruf:
    Schrauber
    Ort:
    Muenchen
    Und die anderen stehen noch oder sind die gar nicht mehr da ? Frage nur nach ! Wenn die noch stehen wird das vermutlich kein Problem sein von der Spannweite der Decke.

    stehen direkt über dieser Wand andere Wände in den darüberliegenden geschossen ?
     
  6. Reblis

    Reblis

    Dabei seit:
    29.12.2019
    Beiträge:
    5
    Zustimmungen:
    0

    alle Wände, die grünen wie auch die roten sind noch da. Im EG steht keine Wand darüber.
    Die "Träger" Verlaufen wie auf dem Bild Blau markiert.

    Glaubst Du der Kamin im Raum Keller 44,90 hat eine tragende Funktion? Den habe ich ab dem EG schon abgetragen. Wenn auf dem Plan die grünen Wände eine tragende Funktion haben wäre das bei dem Kamin auch der Fall?!
     

    Anhänge:

  7. #7 simon84, 29.12.2019
    simon84

    simon84
    Moderator

    Dabei seit:
    11.11.2012
    Beiträge:
    23.298
    Zustimmungen:
    6.923
    Beruf:
    Schrauber
    Ort:
    Muenchen
    Der Kamin selbst hat garantiert keine tragende oder aussteifende Funktion.
    Die beiden Steinreihen um den Kamin sollten vermutlich die Deckendurchbrüche stützen.

    Wenn du die Deckendurchbrüche mit Anschlussbewehrungen versiehst und wieder zubetonierst sollte das kein Problem geben.

    @Yilmaz @SIL habt ihr Einsprüche :)
     
  8. Reblis

    Reblis

    Dabei seit:
    29.12.2019
    Beiträge:
    5
    Zustimmungen:
    0
    Vielen Dank
    FG
     
  9. #9 simon84, 29.12.2019
    simon84

    simon84
    Moderator

    Dabei seit:
    11.11.2012
    Beiträge:
    23.298
    Zustimmungen:
    6.923
    Beruf:
    Schrauber
    Ort:
    Muenchen
    Grün wird wohl eher Beton sein und rot Ziegel oder sowas das bezieht sich eher auf das Material der Mauer als auf tragend / nicht tragend
     
Thema:

Kellerwand

Die Seite wird geladen...

Kellerwand - Ähnliche Themen

  1. Abschluss Pflaster an Kellerwand

    Abschluss Pflaster an Kellerwand: Hallo zusammen, ich habe eine Frage zum richtigen Anschluss zwischen einer zukünftigen Pflasterfläche und meiner Kelleraußenwand. Ein paar Infos...
  2. Neues Badezimmer im Keller / KS-Kellerwand

    Neues Badezimmer im Keller / KS-Kellerwand: Moin liebe Community, Ich bin brandneu im Forum und hoffe hier auf einige Experten zu treffen:bierchen: Vorab, Vollunterkellertes, ehemaliges...
  3. Erfahrung: Kellerwände mit Calcium Silikat Platten Wärmedämmen?

    Erfahrung: Kellerwände mit Calcium Silikat Platten Wärmedämmen?: Hallo zusammen, mein letztes Projekt im Haus ist seit einem halben Jahr abgeschlossen und nun habe ich wieder Motivation und Kraft für die...
  4. feuchte Kellerwand sanieren (Taupunktsteuerung, Kalkputz)

    feuchte Kellerwand sanieren (Taupunktsteuerung, Kalkputz): Hallo zusammen, Wir sanieren eine Doppelhaushälfte von 1957. Die Wände im Keller sind betoniert. Innen ist wahrscheinlich ein Kalk-Zementputz,...
  5. Kellerwände in Altbau

    Kellerwände in Altbau: Wir haben einen Altbau gekauft und überlegen, wie wir so Kellerwände sanieren. Grober Plan bisher an den Außenwänden alter Putz runter und danach...