Knallgeräusche im Bungalow

Diskutiere Knallgeräusche im Bungalow im Bauphysik allgemein Forum im Bereich Bauphysik; Hallo liebe Community, Wir haben ende 2023 ein Bungalow Baujahr 1970 nach 4 monatiger Innenrenovierung durch eine Baufirma bezogen. Schon an den...

  1. #1 SadikMejid, 11.01.2026
    SadikMejid

    SadikMejid

    Dabei seit:
    08.01.2026
    Beiträge:
    2
    Zustimmungen:
    0
    Hallo liebe Community,
    Wir haben ende 2023 ein Bungalow Baujahr 1970 nach 4 monatiger Innenrenovierung durch eine Baufirma bezogen. Schon an den ersten Tagen hörten wir Hämmern an die Wand von einem Nachbar, der eine dirket angrenzende Wand hat. Das Hämmern ging immer in unseren Rohezeiten los, vor allem Nachts als wir ins Bett gingen ginge es richtig los und zwar bis 4 Uhr Morgens. Wir wussten nicht was unsere Schuld war und haben den Dialog gesucht und ihn mehrmals gebeten es zu unterlassen, aber er hat alles abgestritten und wir mussten dann die Polizei einschalten. Als die Polizisten kamen hat er natürlich damit aufgehört und es konnte nicht nachgewiesen werden. Die Polizisten haben ihn zwar gefordert damit aufzuhören, aber es hat sich leider nicht geändert.

    Dies hat wenig mit dem Bauexpertenforum zu tun, aber ich habe es nur vollständigkeitshalber geschrieben. Und jetzt kommt der relevante Teil.

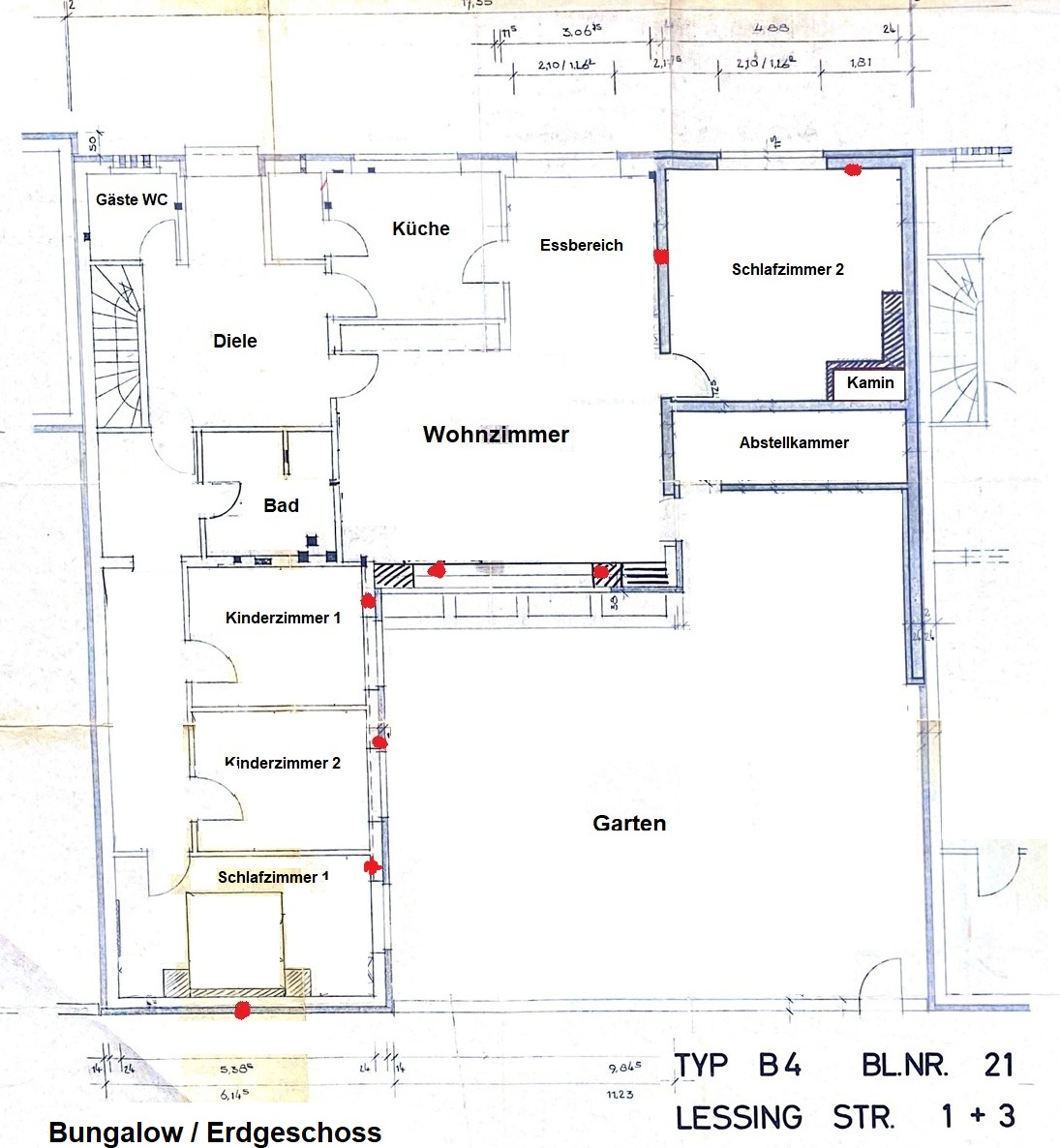
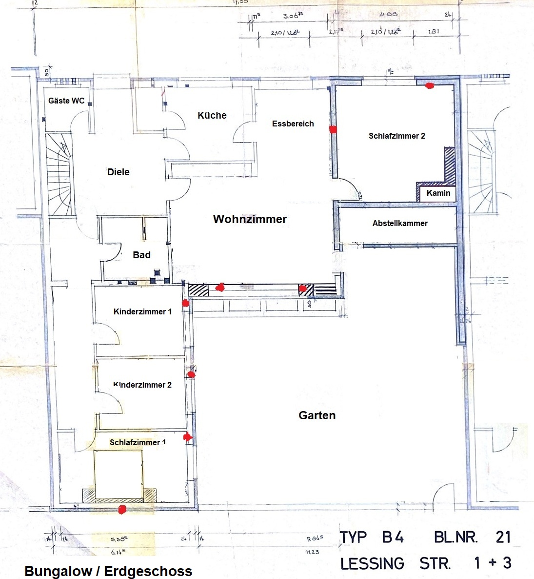
    Nach ca. 6 Monaten ließ das Hämmern nach bis er fast verschwand, aber dann tauchten allmählich Knallgeräusche in allen Räumen und zwar genau an der Wandstelle, wo wir uns aufhielten oder schliefen. Wir wissen nicht mal wo sie herkommen oder durch was verursacht werden oder wie ist das überhaupt technich mach ist. Wenn ich unsere Kinder 4 und 2 ins Bett bringe, geht es los mit den Knallgeräuschen direkt oberhalb von Ihrem Bett. Igandwann in der Nacht laufen sie verunsichert zu Ihrer Mutter im Schlafzimmer nebenan und bleiben bei ihr. Ich schlafe getrennt im Schlafzimmer auf der anderen Seite des Hauses und höre auch diese Geräusche im Minuten Takt. Ohne Ohrstöpsel ist ein Schlafen für mich nicht mehr möglich. Wenn Gäste/Besuch bei uns sind ist auch nachts nichts zu hören. Ich kann es echt kaum beschreiben wie es und geht und wäre für jeden Hinweis oder Hilfe sehr dankbar. Im Anhand ist ein Grundriss des Bungalows mit den Stellen an denen die Knallgeräusche zu hören sind.
     

    Anhänge:

  2. ToTi

    ToTi

    Dabei seit:
    27.01.2025
    Beiträge:
    1.189
    Zustimmungen:
    696
    Beruf:
    Dachdecker
    Ort:
    Im Süden von Deutschland
    Es fehlen die Grundlegenden Angaben. Was wurde genau renoviert? Art der Wände und Decken. Dachkonstruktion, Steildach oder Flachdach. Bei Flachdach, welche Deckenkonstruktion. Wurde etwas verändert an der Statik, Wände versetzt, Tür/- Fensteröffnungen erstellt oder vergrößert? Wie waren die Temperaturen wenn die Geräusche auftraten.
    Wenn die Geräusche vom Nachbar kommen, müssen diese ja genau in dem Moment aufhören, wenn er zur Tür geht, wenn ihr klingelt. Das würde ich mal ausprobieren. Wenn das so wäre, ein Lärmprotokoll erstellen und dann damit zum Rechtsanwalt.
     
  3. #3 SadikMejid, 12.01.2026
    SadikMejid

    SadikMejid

    Dabei seit:
    08.01.2026
    Beiträge:
    2
    Zustimmungen:
    0
    Hallo,
    danke für die Antwort.
    Das Bungalow ist aus massivem Beton, Der Bereich: Diele, Wohnzimmer, Küche und Kaminzimmer (Siehe Grundriss) sind unterkellert. Es hat ein Flachdach aus Holzbalken, die mit Gefälle so eingebaut wurden, dass sie das Regenwasser von den höheren Rändern in die Mitte des Daches leiten, wo der Abfluss ist. Auf den Balken drauf sind OSB-Platten montiert, dann darauf Bitumen Dachbahnen. Die Decke ist aus Gipsplatten. Die ganzen allten Decken, die zum Teil durchhingen wurden durch die Baufirma abgerissen. Man hat Glaswolle zwischen die Balken eingebaut, darauf eine weiße Mikrofaserfolie, die ihren Angaben entsprechend "Atmen kann, aber Wasser von oben nicht durchlassen soll". Darauf die Trockenbau Gipsplatten und Abschließend wurde tapiziert.
    Der ganze Bungalow wurde neu tapiziert. Die Bödenbeläge die schon vor dem Kauf entfernt worden waren wurden mit Holzparkett und im Keller mit PVC belegt.
    Das Bad und die Gäste WC wurden ebenfalls komplett neu gemacht.
    Alle Heizkörper wurden ebenfalls erneuert.

    Es wurden keine Wände entfernt oder neue hinzugefügt. Lediglich wurde aus einem Fenster ganz hinten im Schlafzimmer (Im Grundriss unten links) eine Türfenster zum Garten gemacht.

    Die Knallgeräusche treten unabhängig von der Raumtemperatur auf.

    Als der Nahcbar früher gegen die Wand gehämmert hat, haben wir sie von seiner Wand kommend gehört. Aber diese anderen treten auch auf der anderen Seite des auf, z. B. Im Kaminzimmer, das ca. 15 Meter von seiner Wand entfernt ist, was uns total irritiert. Wir haben zwar ein Lärmprotokoll, aber wir wissen nicht wie weit das uns helfen könnte.
    Freundliche Grüße
     
  4. ToTi

    ToTi

    Dabei seit:
    27.01.2025
    Beiträge:
    1.189
    Zustimmungen:
    696
    Beruf:
    Dachdecker
    Ort:
    Im Süden von Deutschland
    Wieso bekomme ich gerade extreme Bauchschmerzen? Ich hoffe, dass der Unternehmer eine hygrothermische Simulation erstellen lassen hat. Wenn nicht sind deine Knallgeräusche dein kleinstes Problem.

    Kommen die Geräusche eher von der Wand, oder eher von oben Richtung Dach?
     
Thema:

Knallgeräusche im Bungalow

Die Seite wird geladen...

Knallgeräusche im Bungalow - Ähnliche Themen

  1. Wand-/Deckenanschluss Bungalow

    Wand-/Deckenanschluss Bungalow: Hallo zusammen, eine kurze Frage zum Thema Spachteln der InnenWand-/Deckenanschlüsse. Wir haben ein Fertighaus-Bungalow, also innen komplett...
  2. Knallgeräusch Druckspüler Bad

    Knallgeräusch Druckspüler Bad: Hallo zusammen, seit langer Zeit bemerke ich, dass mein Einbauspülasten Prevista von Geberit gegen Ende des Wasserbefüllens "knallt". Wenn der...
  3. Aufsparrendämmung Linitherm Knallgeräusche

    Aufsparrendämmung Linitherm Knallgeräusche: Wer hat Erfahrungen mit lauten Knallgeräuschen von Linitherm Aufsparrendämmung? Hauptsächlich temperaturbedingt über den Sommer. Ich vermute einen...
  4. Knallgeräusche aus Decke/Außenwand

    Knallgeräusche aus Decke/Außenwand: Hallo, ich wohne in einer selbstgenutzen Eigentumswohnung das ganze war ein Neubau mit der Fertigstellung 2017. Ich wohne im 1.OG über mir gibt...
  5. Knallgeräusche bei Aluminium mit Kunststoff beschichteten bodentiefen Fenstern

    Knallgeräusche bei Aluminium mit Kunststoff beschichteten bodentiefen Fenstern: Ende 2011 haben wir unser neues Haus bezogen. Bereits im Frühjahr 2012, bei Sonneneinstrahlung haben wir Knallgeräusche vernommen. Daraufhin haben...