Küche verschieben
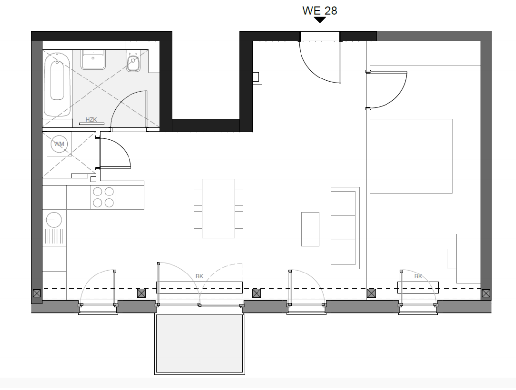
Diskutiere Küche verschieben im Trockenbau Forum im Bereich Neubau; Hallo Zusammen, ich plane eine Küche um mehrere Meter zu verschieben und möchte gern euch fragen ob es realistisch ist. Es geht um eine neubau...
Thema: Küche verschieben
Besucher kamen mit folgenden Suchen
küche verschieben
,küchenschränke verschieben
Die Seite wird geladen...
-
Küche verschieben - Ähnliche Themen
-
Glasrückwand Küche - Angst vor Schimmel
Glasrückwand Küche - Angst vor Schimmel: Hallo zusammen, ich möchte in unserer Küche eine Glasrückwand montieren und habe Angst, dass sich dort Schimmel bilden könnte. Es ist eine... -
Holzboden in Küche vor Wasser schützen
Holzboden in Küche vor Wasser schützen: Hallo zusammen, ich möchte den Holzboden bei der Küchenspüle nach dem Anschleifen mit Bondex Treppen & Parkettlack versiegeln: Bondex... -
Fußbodenheizung Küche nachrüsten nur 6cm Höhe
Fußbodenheizung Küche nachrüsten nur 6cm Höhe: Hallo Zusammen, hoffentlich bin ich in diesem Unterforum richtig. Wir haben eine neue Küche geplant. Der Raum wird komplett renoviert: Neue... -
Gestank aus Loch in Küche wo die Rohre in den Estrich gehen
Gestank aus Loch in Küche wo die Rohre in den Estrich gehen: Hallo zusammen ich wohne seit 6 Jahren in meiner Neubau Wohnung. Hatte bisher nie Probleme. Ich bin der letzte an dem Abwasserstrang. Es gibt... -
Sanierung - Decke & Wand - Putz / Spachtel (Küche)
Sanierung - Decke & Wand - Putz / Spachtel (Küche): Hallo liebe Community, ich stehe aktuell vor der Renovierung meiner Beliner Altbauwohnung (Baujahr 1958) und wende mich deshalb mit der bitte an...