Längster Weg ca. 4m - Ohne Zirkulation ok?

Diskutiere Längster Weg ca. 4m - Ohne Zirkulation ok? im Sanitär Forum im Bereich Haustechnik; Moin liebe Forengemeinde, ich bin in meinem Bauvorhaben quasi auf den Hund gekommen und darf nun selbst einen HSL-Sub suchen, da der vom GÜ...

  1. #1 Tolentino, 28.01.2021
    Tolentino

    Tolentino

    Dabei seit:
    09.12.2020
    Beiträge:
    271
    Zustimmungen:
    100
    Beruf:
    Manager
    Ort:
    Berlin
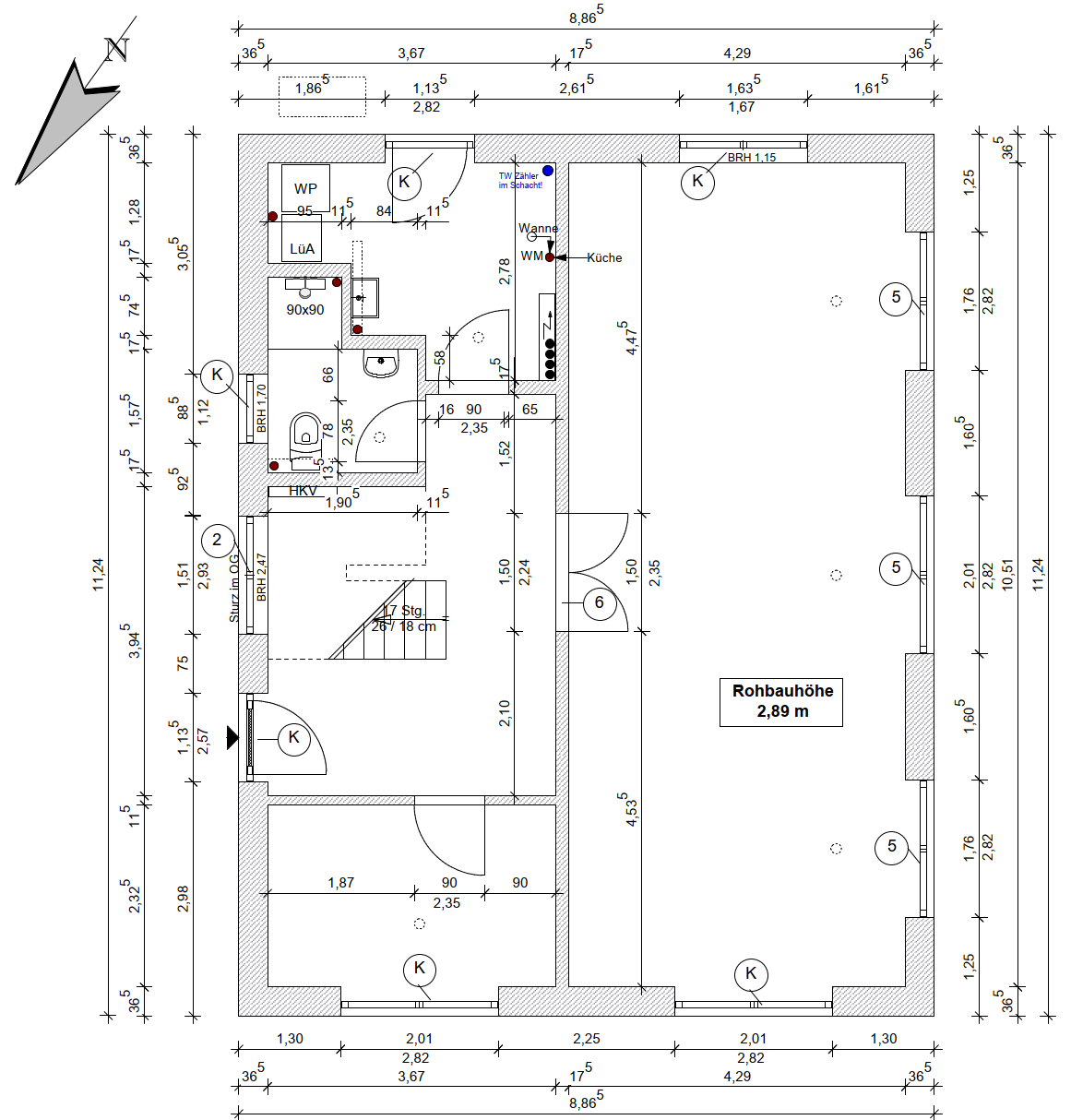
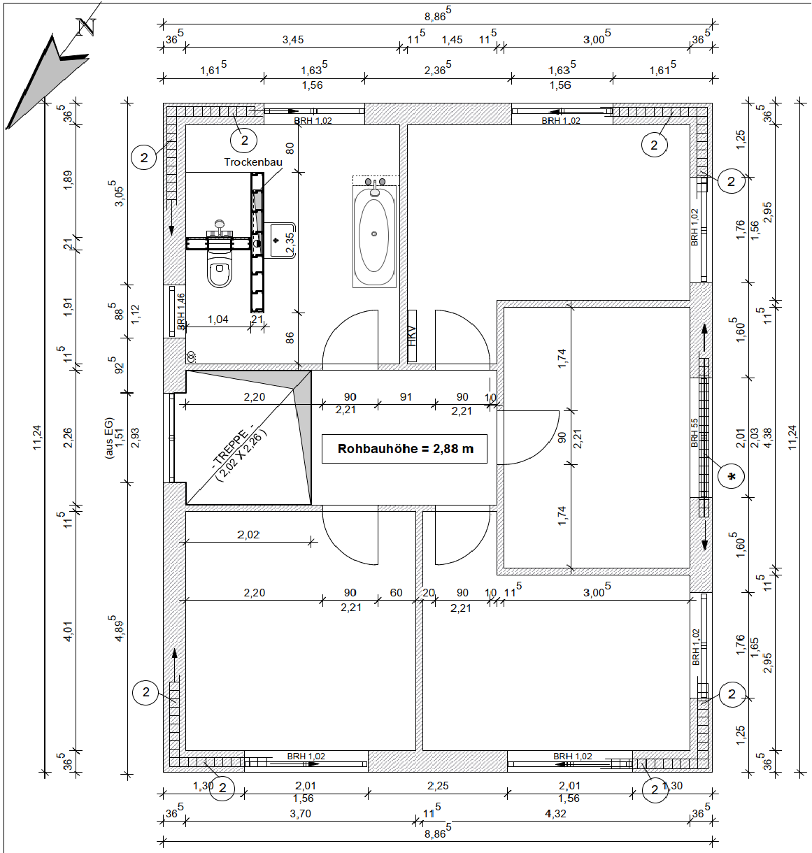
    Moin liebe Forengemeinde,
    ich bin in meinem Bauvorhaben quasi auf den Hund gekommen und darf nun selbst einen HSL-Sub suchen, da der vom GÜ ursprünglich beauftragte wegen Überforderung abgesprungen ist.
    Nun suche ich das Glück im Unglück und versuche die Installationen sehr optimiert zu planen.
    So ist z.B. der Vorschlag seitens meines Favoriten schon aufgekommen, dass man evtl. die Zirkulation weglassen könnte, da bei mir alle Warmwasserzapfstellen recht eng beieinander liegen.
    schaut euch bitte gerne die Pläne an und urteilt selbst. Ist es bei der Planung aus eurer Sicht ok, die Zirkulation, die ja auch ein Effizienzminderer ist, wegzulassen? Kann man irgendwie ausrechnen, wie lange es dauert, bis z.B. in der Küche oder im Bad warmes Wasser aus dem Speicher ankommt?
    Danke und Gruß
    Tolentino EG.png OG.png
     
  2. #2 Fred Astair, 28.01.2021
    Fred Astair

    Fred Astair

    Dabei seit:
    02.07.2016
    Beiträge:
    12.654
    Zustimmungen:
    6.522
    Beruf:
    Tänzer
    Ort:
    San Bernardino
    Das sieht auf den ersten Blick am Handy gut aus.
    Wenn Du jetzt noch schlanke Rohrleitungen wählst könnte es klappen. Wichtig ist, dass an den häufig frequentierten Zapfstellen, den Waschtischen schnell warmes Wasser ankommt. Wenns an der Badewanne etwas länger dauert, stört das nicht.
    Für die Dusche unbedingt eine Thermostatarmatur verbauen. Die erspart das lästige Nachtegeln.
     
    msfox30, simon84 und Tolentino gefällt das.
  3. #3 Surfer88, 28.01.2021
    Surfer88

    Surfer88

    Dabei seit:
    17.12.2018
    Beiträge:
    1.098
    Zustimmungen:
    467
    Ich hab zur entferntesten Zapfstelle ca 8m Leitung, spürbar warmes Wasser kommt ca. nach 3-4 Sekunden.....

    Lg
     
    msfox30, simon84 und Tolentino gefällt das.
  4. #4 Gast56382, 28.01.2021
    Gast56382

    Gast56382 Gast

    Kommt drauf an, was für Querschnitte gewählt werden.16er ist nicht gleich 16er. Raxofix hat 16-2, Rautitan stabil schon 16-2,9 dat macht auf 8m ordentlich was aus wenn du auf 0,3l/s gehst. Musst mal bisl via druckverlust.de rechnen.
     
    simon84 gefällt das.
  5. #5 Surfer88, 28.01.2021
    Surfer88

    Surfer88

    Dabei seit:
    17.12.2018
    Beiträge:
    1.098
    Zustimmungen:
    467
    16x2,25 Mepla

    Zu den Zapfstellen im Bad sind es ca 4m, da dauerts maximal 2 Sekunden.

    Lg
     
    simon84 gefällt das.
  6. #6 Tolentino, 28.01.2021
    Tolentino

    Tolentino

    Dabei seit:
    09.12.2020
    Beiträge:
    271
    Zustimmungen:
    100
    Beruf:
    Manager
    Ort:
    Berlin
    Ich sehe im Angebot unter Sanitär Metallverbundrohr 26x3.00mm bzw 20x2,5mm ist das das richtige? Und 26 bzw 20 sind jeweils die Außendurchmesser wovon ich die hintere Zahl abziehen muss um auf den Innendurchmesser zu kommen?
     
  7. #7 simon84, 28.01.2021
    simon84

    simon84
    Moderator

    Dabei seit:
    11.11.2012
    Beiträge:
    23.258
    Zustimmungen:
    6.904
    Beruf:
    Schrauber
    Ort:
    Muenchen
    2x die hintere Zahl denn es ist die Wandstärke.

    Also 26x3 ist 26 aussen, 20 (26-3-3) innen :)
     
    Tolentino und Surfer88 gefällt das.
  8. #8 Tolentino, 28.01.2021
    Tolentino

    Tolentino

    Dabei seit:
    09.12.2020
    Beiträge:
    271
    Zustimmungen:
    100
    Beruf:
    Manager
    Ort:
    Berlin
    logisch, danke. Ich muss da noch den Volumenstrom eingeben. Was ist denn normal bei ner normalen EFH-Anlage?
     
  9. #9 Gast56382, 28.01.2021
    Gast56382

    Gast56382 Gast

    Das was da durch soll. Es gibt Standardannahmen, musst mal googlen. Zapfstellen, WC bspw. 04l/s, hängt da eine Mischarmatur dran + 0,1l/s und eine Regendusche + 0,7l/s, Waschmachine 0,4l/s... In der Summe.... aber beim 20er ID geht ordentlich was durch ohne großen Druckverlust. Dafür dauert halt das WW ohne Zirkulation, weil dort auch viel Wasser steht, dass mus ja erst raus, im worstcase an der weitestens Zapfstelle.
     
  10. #10 MichaNixExperte, 10.10.2024
    MichaNixExperte

    MichaNixExperte

    Dabei seit:
    25.10.2019
    Beiträge:
    35
    Zustimmungen:
    3
    Beruf:
    Dipl-Ing.
    Ort:
    BW
    Noch eine Ergänzung aus Legionellen-Sicht, da bisher eher die Komfort-Aspekte erörtert wurden (ich hab mich dazu aus anderem Grund zufällig gerade eingelesen, bin aber selber Laie):

    Volumenmäßig sollte der Bereich ohne Zirkulation wegen Legionellen unter 3 Litern sein. Wenn ich richtig gerechnet hab, ergeben sich 3 Liter auf 4 Metern Rohr bei einem Rohr-Innendurchmesser von 31 mm - solch fette Rohre hast du ganz bestimmt nicht, also darum dann auch von dieser Seite aus Entwarnung. Bei z.B. 20 mm Innendurchmesser landest du bei 1,26 Litern.
     
Thema:

Längster Weg ca. 4m - Ohne Zirkulation ok?

Die Seite wird geladen...

Längster Weg ca. 4m - Ohne Zirkulation ok? - Ähnliche Themen

  1. Lange Wandscheibe oder Hahnverlängerung?

    Lange Wandscheibe oder Hahnverlängerung?: Hallo, ich wollte eigentlich eine lange Wandscheibe (2225 von Viega) verwenden um ohne weitere Bauteile bündig mit der Wand abzuschließen. Jetzt...
  2. 3,2m lange freistehende Trockenbauwand ?

    3,2m lange freistehende Trockenbauwand ?: HI zusammen, ich plane eine 3,2m Trockenbauwand mit einer Gesamthöhe von ca 95cm zu installieren die als Brüstung zum Treppenaufgang dient. Kein...
  3. Ausgleichsmasse braucht lange zum Trocknen

    Ausgleichsmasse braucht lange zum Trocknen: Hallo in die Runde! In meiner neuen Wohnung ("Stalinbau" aus den 50ern, Steinholzestrich) soll ein neuer Laminatboden verlegt werden. Vor zwei...
  4. Trinkwasser (warm) + Zirkulation 82m lang - Problematisch?

    Trinkwasser (warm) + Zirkulation 82m lang - Problematisch?: Hallo, bei mir wurde im Neubau EFH ein Ring für die Warmwasserversorgung installiert, an dem alles Hängt. -OG-Kinderbad: Dusche, Waschbecken...
  5. Länge von WW-Zirkulation

    Länge von WW-Zirkulation: Ist es sinnvoll bei einer Länge von ca. 30 - 35 Meter zur WW-Leitung eine Zirkulationsleitung mit einzuplanen? WW-Bezug über Puffer (900 + 1000...