Lautsprecher in Wand einlassen

Diskutiere Lautsprecher in Wand einlassen im Mauerwerk Forum im Bereich Neubau; Hallo zusammen, in Kürze startet unser Hausbau. Im Wohnzimmer sollen in die Wände Einbaulautsprecher. Diese kommen wiederrum in Kästen die vom...

  1. #1 amasingh, 08.10.2020
    amasingh

    amasingh

    Dabei seit:
    01.04.2020
    Beiträge:
    31
    Zustimmungen:
    4
    Hallo zusammen,

    in Kürze startet unser Hausbau.
    Im Wohnzimmer sollen in die Wände Einbaulautsprecher. Diese kommen wiederrum in Kästen die vom Schreiner angefertigt werden. Die Kästen haben Außenmaße von ca:
    Höhe 80cm
    Breite 27cm
    Tiefe 12cm

    Es kommen 2 Lautsprecher hochkant rechts und links neben den TV und einer liegend unter den TV.
    Zudem zwei hinten an die Couch hochkant rechts und links.
    Die TV Wand ist eine tragende Innenwand, die Rückwärtige Wand ist eine tragende Außenwand. Jeweils in 17,5cm KS (außen WDVS) es würden also nur 5,5 cm stehen bleiben.
    Man sagte mir das geht ohne Sturz und in der Statik müsse man das nicht beachten...
    Die Kästen würden nach dem Rohbau in die Wände mit Schaum geklebt werden.

    Viele Grüße :)
     

    Anhänge:

  2. #2 amasingh, 08.10.2020
    amasingh

    amasingh

    Dabei seit:
    01.04.2020
    Beiträge:
    31
    Zustimmungen:
    4
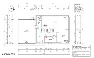
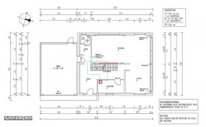
    Hier noch ein Grundriss :)
     

    Anhänge:

  3. Berndt

    Berndt

    Dabei seit:
    12.01.2011
    Beiträge:
    1.218
    Zustimmungen:
    508
    Beruf:
    Stuckateurmeister
    Ort:
    RLP
    Sicher das hier nicht so einiges zu beachten wäre ?
     
  4. #4 amasingh, 08.10.2020
    amasingh

    amasingh

    Dabei seit:
    01.04.2020
    Beiträge:
    31
    Zustimmungen:
    4
    Nein nicht sicher, deshalb frage ich ;) Falls noch relevant.. Es wird ein KFW40+ Haus
     
  5. BaUT

    BaUT

    Dabei seit:
    30.10.2019
    Beiträge:
    9.095
    Zustimmungen:
    5.672
    Beruf:
    Baufacharbeiter und Dipl.-Ing. Hochbau
    Ort:
    Berlin
    Benutzertitelzusatz:
    Erklärbär
    Körperschallübertragung durch die Wände und Decken in alle anderen Räume des Hauses ist sicher egal - oder?
    Macht ja nix, wenn dann die ganze Hütte dröhnt, wenn Papa seine Mucke hört oder einen Action-Film schaut - schließlich hat er die Bude finanziert.
    Ob der Montageschaum zwischen Wand und Box das Problem löst? Im Zweifel baust du die Boxen wieder aus und deine Frau stellt ein paar Kristallvasen oder einen Buddha in die Holzkästen.
     
    driver55 gefällt das.
  6. Alex88

    Alex88
    Moderator

    Dabei seit:
    14.10.2014
    Beiträge:
    6.614
    Zustimmungen:
    3.580
    Beruf:
    GF, Kaufmann, Trockenbaumeister
    das würde mir mehr Kopfzerbrechen bereiten als der Schall
    wer sagt denn sowas?
     
    driver55 gefällt das.
  7. #7 driver55, 09.10.2020
    driver55

    driver55

    Dabei seit:
    22.02.2008
    Beiträge:
    6.893
    Zustimmungen:
    1.801
    Beruf:
    Dipl.-Ing.
    Ort:
    Pforzheim
    Manche kommen auf Ideen!:motz
    Sub. vorne unter die Glotze und für den Rest gibt's doch so schöne schlanke Dinger mit gutem Sound.
    Da braucht es keine Fönwelle mehr.

    Statt Holzkasten, ein Stahlkasten mit 5 mm Wandung, dann klappt's auch mit der Statik.
     
  8. #8 simon84, 09.10.2020
    simon84

    simon84
    Moderator

    Dabei seit:
    11.11.2012
    Beiträge:
    23.276
    Zustimmungen:
    6.917
    Beruf:
    Schrauber
    Ort:
    Muenchen
    Wenigstens wird es für den Einbrecher dann einfacher sein die 5cm wandreste rauszuboxen und durch die Lautsprecher Öffnung reinzukommen als durch die RC2 Fenster ;) Spaß
     
  9. Berndt

    Berndt

    Dabei seit:
    12.01.2011
    Beiträge:
    1.218
    Zustimmungen:
    508
    Beruf:
    Stuckateurmeister
    Ort:
    RLP
    ........ und war da evtl. noch was mit Kältebrücke ??
     
  10. #10 Fred Astair, 09.10.2020
    Fred Astair

    Fred Astair

    Dabei seit:
    02.07.2016
    Beiträge:
    12.680
    Zustimmungen:
    6.552
    Beruf:
    Tänzer
    Ort:
    San Bernardino
    Nö, höchstens ne Wärmebücke.
    Wer heute noch Lautsprecherboxen in Wände und Decken einbaut, ist gedanklich in den siebziger Jahren hängengeblieben.
     
    Berndt und simon84 gefällt das.
  11. Berndt

    Berndt

    Dabei seit:
    12.01.2011
    Beiträge:
    1.218
    Zustimmungen:
    508
    Beruf:
    Stuckateurmeister
    Ort:
    RLP
    Upps ist der aber wieder pingelig
     
  12. #12 Gast 85175, 10.10.2020
    Gast 85175

    Gast 85175 Gast

    Baupraktisch wird das mit den Aussparungen wohl oft so gemacht und funktioniert zu 99%+ auch erstmal, theoretisch ist es aber böser Pfusch. Man kann Dir hier jedenfalls seriös nur sagen, dass die Aussparungen so zu groß sind und halt eben doch bei der Statik beachtet werden müssen.
    https://www.dgfm.de/fileadmin/downloads/04_Merkblaetter/46453_ZdB_MB_Schlitze_150dpi_2015.pdf

    Schaumverklebungen sind, bis auf ganz wenige Ausnahmen, ein sicheres Zeichen für fortgeschrittene Ambitionslosigkeit, man kann sowas tun, da redet man dann aber nicht darüber und lässt es auch ganz schnell verputzen, damit es niemand mehr sieht. Das ist das bautechnische Pendant zur Inkontinenzwindel, lass uns einfach nie wieder über sowas reden.
     
    simon84 und Domski gefällt das.
Thema:

Lautsprecher in Wand einlassen

Die Seite wird geladen...

Lautsprecher in Wand einlassen - Ähnliche Themen

  1. Lautsprecher Nische in Außenmauer

    Lautsprecher Nische in Außenmauer: Hallo, ich möchte eine kleine Nische in die Außenmauer stemmen um einen Einbaulautsprecher einzusetzen. Die Niesche ist nicht groß B 22, H 36, T...
  2. Einbau von Lautsprecher und Deckenspots in Osb-platten, die als Dampfbremse dienen

    Einbau von Lautsprecher und Deckenspots in Osb-platten, die als Dampfbremse dienen: Hallo, Ich hab schon die such gequält, leider nichts passendes gefunden. Ich bin aktuell dabei ein Einfamilienhaus (2 Vollgeschosse mit...
  3. Lautsprecher Kabel in Kante zwischen Wand und abgehängter Decke verlegen?

    Lautsprecher Kabel in Kante zwischen Wand und abgehängter Decke verlegen?: Ich möchte gerne die Verkabelung für zwei unter der Decke aufgehängte Lautsprecher möglichst unsichtbar und ohne sichtbaren Kabelkanal verlegen....
  4. Lautsprecher in Wand, Ständer durchtrennbar?

    Lautsprecher in Wand, Ständer durchtrennbar?: Hallo, ich möchte in eine bestehende doppelt beplankte Trockenbauwand drei Lautsprecher einbauen. Ein Lautsprecher müsste allerding genau an...
  5. Badezimmer lautsprecher

    Badezimmer lautsprecher: Hallo ich möchte mir im bad ein unterputzradio installieren allerdings wäre nach meinen jetzigen Plan ein lautsprecher in der wand ca 30 cm über...