Leerrohr unter Bodenplatte für WP vergessen - Neubau

Diskutiere Leerrohr unter Bodenplatte für WP vergessen - Neubau im Baumurks in Wort und Bild Forum im Bereich Rund um den Bau; Hallo liebe Experten, bei unserem Neubau wurde vom Bauunternehmen das Leerohr unter der Bodenplatte zur Verbindung von Außen- und Inneneinheit...

  1. #1 Marcel89, 28.06.2025
    Zuletzt bearbeitet: 28.06.2025
    Marcel89

    Marcel89

    Dabei seit:
    22.03.2025
    Beiträge:
    11
    Zustimmungen:
    0
    Hallo liebe Experten,

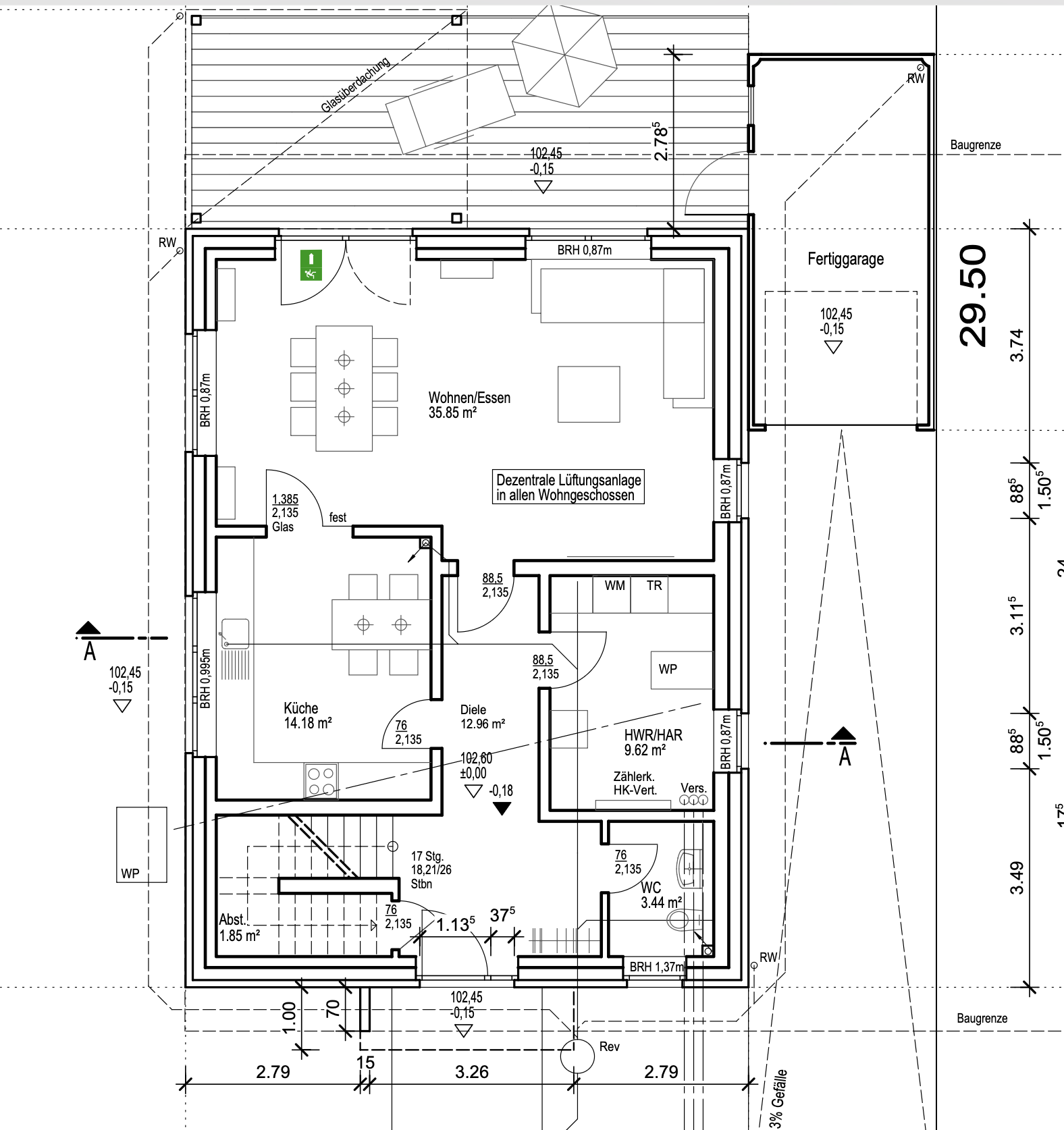
    bei unserem Neubau wurde vom Bauunternehmen das Leerohr unter der Bodenplatte zur Verbindung von Außen- und Inneneinheit der Wärmepumpe nicht ausgeführt. Aufgefallen ist dies jetzt, nachdem der Rohbau abgeschlossen wurde. Im Entwurfsplan war das Rohr natürlich vorgesehen.

    Die Frage ist nun, was für Optionen uns bleiben?
    Da die thermische Hülle vom Haus inkl. Klinker fertigstellt ist, scheint nur ein nachträglicher Durchbruch durch die isolierte Hauswand möglich (was mir nicht gerade zusagt). Auch die Positionierung der Außeneinheit (Monoblock) muss überdacht werden, da diese ursprünglich auf der gegenüberliegenden Hausseite des HWRs vorgesehen war (siehe Foto). Ohne Zuleitung unter der Bodenplatte ist diese Position nun vermutlich zu weit vom HWR entfernt. Eine Umstellung der Außeneinheit auf die andere Hausseite wird aber durch die dort geplante Garagenzufahrt erschwert.

    Über Hinweise, Erfahrungen oder Vorschläge würden wir uns freuen.

    Nachtrag:
    Der Unternehmer hat angedeutet, dass er die Vor-/Rücklaufleitungen der WP nun unterm Estrich verlegen möchte, was für uns nicht in Frage kommt.
     

    Anhänge:

  2. 415B

    415B

    Dabei seit:
    03.12.2024
    Beiträge:
    1.491
    Zustimmungen:
    253
    Was sagt der Architekt dazu?
    Das ganze ist erst nach Fertigstellung des Rohbaues aufgefallen?
    Ihr werdet mit dem "Mangel" leben müssen ein Hausabriss und Neuaufbau wird wohl nicht verhältnismäßig sein. Aber ein deutlicher Abzug bei der Bezahlung wird euch zustehen.
     
  3. #3 Deliverer, 28.06.2025
    Deliverer

    Deliverer

    Dabei seit:
    24.07.2022
    Beiträge:
    1.787
    Zustimmungen:
    841
    Eine Platzierung auf der Garage scheint mir ganz passend. Kurze Wege, Verlegung außen und der Durchbruch könnte direkt unterm Dach passieren, wo zumindest Wasser kein Problem ist. Wobei so ein Durchbruch generell kein Beinbruch ist.
     
    Fred Astair gefällt das.
  4. #4 Marcel89, 28.06.2025
    Marcel89

    Marcel89

    Dabei seit:
    22.03.2025
    Beiträge:
    11
    Zustimmungen:
    0
    Daran hatten wir auch schon gedacht, bis ich auf folgendes gestoßen bin:
    https://www.expertenforum-bau.de/forum/index.php?diskussion/9964-wärmepumpe-auf-fertiggaragenbetondach-montieren-lassen/&postID=230167#post230167

    Nachteilig:
    - Verstärkung des Luftschalls durch Garagendach (Reflektor)
    - Körperschall der WP würde sich aufs Haus übertragen --> unangenehme Vibrationsgeräusche im Haus
     
  5. #5 Holzhaus61, 28.06.2025
    Holzhaus61

    Holzhaus61

    Dabei seit:
    10.04.2023
    Beiträge:
    1.368
    Zustimmungen:
    605
    Manchmal verstehe ich nicht, wie man überhaupt so einen Müll "planen" kann.

    Eigentlich bleibt nur der Platz vor dem Gäste-WC übrig. Und dann immer an der Wand lang....
     
  6. #6 Marcel89, 28.06.2025
    Marcel89

    Marcel89

    Dabei seit:
    22.03.2025
    Beiträge:
    11
    Zustimmungen:
    0
    Kannst du sagen, worauf sich das bezieht? Klar, wäre es besser, der HWR läge direkt an der Straße, aber je nach Lage und Bebauungsplan (hier z.B. Garage darf nicht links am Haus gebaut werden) ist es praktisch nicht immer umzusetzen. Und ein 8m Leerrohr unter der Bodenplatte ist doch nicht all zu ungewöhnlich, oder?
     
  7. #7 Holzhaus61, 28.06.2025
    Holzhaus61

    Holzhaus61

    Dabei seit:
    10.04.2023
    Beiträge:
    1.368
    Zustimmungen:
    605
    Doch. Ohne Not, macht man so was nicht.

    Man hätte auch auf andere Ideen kommen können wie z.B. eine innen aufgestellte WP....

    Aber warum machen wir uns hier eigentlich Gedanken. Soll sich doch Dein Bauunternehmer was einfallen lassen.
     
  8. #8 Deliverer, 28.06.2025
    Deliverer

    Deliverer

    Dabei seit:
    24.07.2022
    Beiträge:
    1.787
    Zustimmungen:
    841
    Das hängt ein bisschen davon ab, wie die Garage ans Haus angeschlossen ist. Fertiggaragen haben ja zumeist etwas Abstand. Und dann noch, welches Zimmer direkt "neben" der WP wäre.
    Generell kann man das mit Elefantenschuhen mMn. gut entkoppeln. Ein vernünftiges Gerät sollte sich eh nicht aufschwingen. Fast alle kann man ja sogar direkt an die Hauswand hängen, was ein Vibrieren auch verbietet.

    Zu punkt eins: Verstärkt wird sicher nichts. Je nach Gerät und ausrichtung (kann ja bspw. auch nach hinten in den Garten pusten) muss man aber halt schauen, wohin der Schall geht. Etwas problematischer sind nur Innenhöfe, wo es sich aufschwingen kann.

    Kurz: Ich würde das Dach gut prüfen. Sie wäre aus dem Weg, trotzdem für den Service gut erreichbar, und die Leitungswege wären kurz. Die Montage erfordert aber ggf. einen kleinen Heber.

    Und wenn du das nicht willst, kannst du natürlich auch jederzeit am ursprünglich geplanten Platz bleiben und die Leitungen einfach unterirdisch ums Haus herumführen. So richtig dramatisch wäre das auch nicht.
     
  9. 415B

    415B

    Dabei seit:
    03.12.2024
    Beiträge:
    1.491
    Zustimmungen:
    253
    Ich würde nichts außer Sonnenkollektoren oder einen Liegestuhl mit einer Kiste Bier aufs Dach der Garage stellen.
    Jetzt wird eventuell der Mehrpreis übernommen aber in 10 oder 20 Jahren hast du ihn an der Backe.
    Und wenn du Glück hast wachsen die Primeln schon im Jan. bei der Erdleitung ums Haus.
    Lass dir vom Architekten alle Lösungen erklären und Frage nur nach den Nachteilen und das am besten schriftlich.
     
  10. #10 Fabian Weber, 29.06.2025
    Fabian Weber

    Fabian Weber

    Dabei seit:
    03.04.2018
    Beiträge:
    16.387
    Zustimmungen:
    6.518
    Warum schließt Ihr die Rohrführung unter dem Estrich aus?
     
  11. 415B

    415B

    Dabei seit:
    03.12.2024
    Beiträge:
    1.491
    Zustimmungen:
    253
    Weil es Besserwisser sein wollen.
    Das Abwasserrohr wird auch gerne unter der Bodenplatte verlegt nur so als Beispiel. Und oft gibt es zwei oder drei davon unter der Bodenplatte.
     
  12. #12 Holzhaus61, 29.06.2025
    Holzhaus61

    Holzhaus61

    Dabei seit:
    10.04.2023
    Beiträge:
    1.368
    Zustimmungen:
    605
    ich vermute mal deshalb:
    Nur, egal, ob die das Ding jetzt auf die Garage, Dach, wwi hinstellen, irgendwo müssen sie durch.

    Da finde ich die Idee mit der innen aufgestellten WP weitaus charmanter. Ganz abgesehen davon: ums Haus buddeln, das sind aber Wege, selbst die 8/9 m aufm Estrich, auch das muß alles bewegt werden...
     
  13. #13 Fabian Weber, 29.06.2025
    Fabian Weber

    Fabian Weber

    Dabei seit:
    03.04.2018
    Beiträge:
    16.387
    Zustimmungen:
    6.518
    Der Estrich ist noch nicht drin, wie ich verstanden habe oder sehe ich das falsch?

    Da kann man dann einen Schlitz stemmen auf der Innenseite der Außenwand und dann ganz einfach nach oben über die Abdichtung springen und raus.

    Das bekommt man thermisch absolut sauber hin.

    Es geht ja hier um Vorlauf und Rücklauf zur Wärmepumpe also immer recht warmes Wasser.
     
  14. #14 Deliverer, 29.06.2025
    Deliverer

    Deliverer

    Dabei seit:
    24.07.2022
    Beiträge:
    1.787
    Zustimmungen:
    841
    Da von "Innen- und Außeneinheit" gesprochen wurde, tippe ich auf Split-Gerät und daher KM-Leitungen.
     
  15. #15 simon84, 29.06.2025
    simon84

    simon84
    Moderator

    Dabei seit:
    11.11.2012
    Beiträge:
    23.325
    Zustimmungen:
    6.939
    Beruf:
    Schrauber
    Ort:
    Muenchen
    gibt ja auch dieses „pseudosplit“
     
  16. #16 Deliverer, 29.06.2025
    Deliverer

    Deliverer

    Dabei seit:
    24.07.2022
    Beiträge:
    1.787
    Zustimmungen:
    841
    Jop. Sollten wir vielleicht noch klären. Je wärmer, desto früher rein.
     
  17. #17 Fabian Weber, 29.06.2025
    Fabian Weber

    Fabian Weber

    Dabei seit:
    03.04.2018
    Beiträge:
    16.387
    Zustimmungen:
    6.518
    nö…

     
  18. #18 GreatScott83, 29.06.2025
    GreatScott83

    GreatScott83

    Dabei seit:
    14.10.2023
    Beiträge:
    326
    Zustimmungen:
    163
    Beruf:
    Steuerzahler
    Ort:
    BW
    Spricht irgend was gegen: Hinter die Garage in den Garten?
    Mit der Erdrakete unter der Garage durch (wenn die schon stehen sollte), an der Wand lang und dann in den HWR rein.
    Die Auffahrt ist ja noch nicht fertig.
     
  19. #19 Marcel89, 07.07.2025
    Marcel89

    Marcel89

    Dabei seit:
    22.03.2025
    Beiträge:
    11
    Zustimmungen:
    0
    Danke für all eure Ideen und das gute Feedback.

    Wir haben uns inzwischen mit dem Bauunternehmen getroffen und die möglichen Optionen durchgesprochen.
    Als beste Lösung für uns ist es wohl, die WP vor das Haus auf der rechten Seite unter dem Gäste-WC Fenster zu platzieren und die Vorlauf- und Rücklauf-Leitungen von dort unterm Estrich als gerade Linie in den HWR laufen zu lassen. So entsteht zumindest keine Abwärme im Flur bzw. Stauraum unter der Treppe und die Leitungslänge unterm Estrich ist reduziert.

    Die Positionierung vorm Haus und den nachträglichen Wanddurchbruch werden wir entsprechend hinnehmen müssen.
     
  20. 415B

    415B

    Dabei seit:
    03.12.2024
    Beiträge:
    1.491
    Zustimmungen:
    253
    Hoffentlich belästigt ihr damit nicht eure zukünftigen Nachbarn. Die Dinger sind Nachts ganz gut zu hören.
     
Thema:

Leerrohr unter Bodenplatte für WP vergessen - Neubau

Die Seite wird geladen...

Leerrohr unter Bodenplatte für WP vergessen - Neubau - Ähnliche Themen

  1. Neubau: Mehrere Leerrohre durch Bodenplatte

    Neubau: Mehrere Leerrohre durch Bodenplatte: Hallo zusammen, ich baue ein Haus auf Bodenplatte. Für die Garage brauche ich 4 Verbindungen zum Technikraum - Garagenstrom - Spätere...
  2. Dickes Bündel Leerrohre in Bodenplatte

    Dickes Bündel Leerrohre in Bodenplatte: Hallo zusammen, die Leerrohre für Elektroleitungen wurden in unserer Bodenplatte (18-20cm dick, nicht tragend) verlegt. Sorge macht mir eine...
  3. Leerrohre Bodenplatte schief, Mangel?

    Leerrohre Bodenplatte schief, Mangel?: Hallo zusammen, in unserem HWR kommen 4 Leerrohre aus der Bodenplatte heraus. Diese sind mit der Garage verbunden. Wie auf dem Bild ersichtlich...
  4. Leerrohr unter Bodenplatte oder Mehrsparte nutzen?

    Leerrohr unter Bodenplatte oder Mehrsparte nutzen?: Hihi, Leerrohr unter Bodenplatte oder Mehrsparte nutzen? Bei uns ist gerade der Rohbauer am vorbereiten für die 25cm Schwimmende Bodenplatte...
  5. Leerrohre in Bodenplatte verlegen?

    Leerrohre in Bodenplatte verlegen?: Wir planen eine EFH, 2 Geschosse plus Keller. Wir möchten in unserem Haus die Leerrohre für die Elektrokabel in den Decken verlegen, also auf der...