Leerrohre aus der Mode ?

Diskutiere Leerrohre aus der Mode ? im Elektro 1 Forum im Bereich Haustechnik; Hallo Zusammen , Befinden uns gerade im Bau einer DHH. Da meine Eltern mir Jahre lang erzählt haben das sie in ihrem Haus diverse Leerrohre...

  1. #1 benkler1401, 24.03.2017
    benkler1401

    benkler1401

    Dabei seit:
    21.03.2017
    Beiträge:
    38
    Zustimmungen:
    0
    Beruf:
    Chemielaborant
    Ort:
    Ludwigshafen am Rhein
    Hallo Zusammen ,

    Befinden uns gerade im Bau einer DHH.
    Da meine Eltern mir Jahre lang erzählt haben das sie in ihrem Haus diverse Leerrohre vergessen haben bei der Planung wollte ich schlauer sein und an Leerrohre denken um ggf. TV-Leitung,HDMI,Lautsprecherkabel,usw. relativ einfach verlegen zu können.

    Jett habe ich mit dem Elektriker gesprochen und er meinte:
    Leerrohre? Er würde davon Abraten das macht man heute nicht mehr da es eh sehr schwer ist die Kabel dort durchzuführen er würde eher Raten die Möglichen Kabel bereits legen zu lassen und in Leerrohren hinter der Wand setzten zu lassen.
    Falls doch Leerrohre muss ich etwas Unterschreiben das er mich darüber in Kentniss gesetzt hat das das Durchführen von Kabeln problematisch ist.

    Darauf hin habe ich mich etwas in G...le eingelesen und etwas von Leerrohren mit Zugseil gelesen.


    Meine Frage wäre jetzt sind Leerrohre wirklich aus der Mode ? Lässt man sich durch Leerrohre nicht alle Optionen für die Zukunftstechnologie Offen ?

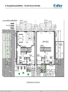
    Anbei mal meine Leerrohr Idee vielleicht hättet ihr noch verbesserungs Ideen?
    Erläuterung:
    Wohn/Essbereich = TV/Telefon Leitung an Treppen Rückwand mit Diagonalen Leerrohren an beide anderen Wände zur ggf. Umplanung des Raumes. (Steckdosen jedoch nur an der Aktuellen TV Wand (6stk.) an den Anderen Wänden nur 2-3Steckdosen.
    2 Leerrohre Parallel in den Außenkanten des Hauses Parallel von Keller bis ins Dach.(Dach ist nicht ausgebaut.


    6.1.jpg 3.8.jpg 5.1.jpg 4.5.jpg


    Vielen Dank

    LG benkler
     
  2. #2 Andybaut, 24.03.2017
    Andybaut

    Andybaut

    Dabei seit:
    02.04.2015
    Beiträge:
    5.127
    Zustimmungen:
    329
    Beruf:
    Architekt
    Ort:
    Baden-Württemberg
    Leerrohre sind ja sicher schön und gut.

    Aber mit welchem Wissen legt man die an Stelle XY, von der man heute weiß das man dort nichts möchte und
    in 5 Jahren scheinbar an der selben Stelle doch etwas haben will?

    Wie berücksichtige ich 5 Leerrohre im der restlichen Verteilung?
    Lasse ich 5 Stellen für TV, oder 4 für Datenkabel oder 4 für Telefon frei?
    Ein Leerohr bedeutet ja erstmal nur, dass ich von A nach B ein Kabel legen kann.
    Im Raum eine Dose zu setzen ist OK, aber wohin stecke ich das Kabel an der anderen Seite.

    Wie ich´s gemacht habe (vielleicht passt das für dich auch):
    Zu viele Steckdosen (kosten nicht die Welt)
    In jedes Schlafzimmer ein TV Anschluss und im Wohnzimmer an 2 Wänden (auch relativ billig)

    Im Arbeitszimmer und Wohnzimmer ein Telefon. Sonst nirgends, da das mittlerweile mit Funk funktioniert
    und meine Kinder vermutlich ohnehin irgendwann mit dem Smartphone telefonieren und nicht mit dem Festnetz.

    Datenkabel nur im Arbeitszimmer. Alle anderen PC funktionieren über Wlan. Sollte das nicht reichen gibt´s noch die Alternative
    über die Steckdosen. Habe ich bislang nicht benötigt, könnte ich aber immer ergänzen.

    Darüber nachzudenken ist gut, es gibt aber mittlerweile viele technische Möglichkeiten die eine Nachrüstung auf herkömmliche
    Weise durch Funk ersetzen. Also Strom sollte da sein, alles andere geht auch irgendwie anders.

    Nach Möglichkeit an jeder Wandseite eine Steckdose, das funktioniert dann immer.
     
  3. #3 DerMarc, 24.03.2017
    DerMarc

    DerMarc

    Dabei seit:
    12.02.2013
    Beiträge:
    288
    Zustimmungen:
    1
    Beruf:
    Werbefuzzi
    Ort:
    Leverkusen
    Im Neubau schon von Anfang an auf Funk zu setzen ist wohl das dümmste was man machen kann. Schonmal ne Datensicherung über WLAN gemacht? 4 TV gleichzeitig gestreamt, evtl. bald noch 4K... Kabelverbindung sind auf jeden Fall deutlich besser und kosten doch im Rohbau fast nix...
     
  4. #4 Fred Astair, 24.03.2017
    Fred Astair

    Fred Astair

    Dabei seit:
    02.07.2016
    Beiträge:
    12.729
    Zustimmungen:
    6.595
    Beruf:
    Tänzer
    Ort:
    San Bernardino
    Leerrohre werden verlegt, um bei Leitungen, die altern oder technisch überholt werden einen späteren Austausch zu ermöglichen.
    Stromführende Leitungen sind nach 30 Jahren immer noch technisch in Ordnung.
    Koaxialkabel hast Du in dieser Zeit schon zweimal ausgewechselt und LAN-Kabel haben heute ganz andere Ansprüche als vor 10 Jahren und müssen vielleicht in 5 Jahren durch LWL ersetzt werden?
    Wenn der Eli sich eine Bedenkenanmeldung gegen Leerrohre unterschreiben lassen will, würde ich mir Sorgen machen, ob das der Richtige ist. Die Rohre sind so zu verlegen, dass ein Auswechseln möglich ist. Punkt.
     
  5. #5 LoSteinke, 24.03.2017
    LoSteinke

    LoSteinke

    Dabei seit:
    30.12.2009
    Beiträge:
    39
    Zustimmungen:
    0
    Beruf:
    Journalist
    Ort:
    Hamburg
    WLAN und auch dLan (Datenverkehr per Steckdose) sind dem Datenverkehr per LAN/Glasfaser auch langfristig immer um eine Zehnerpotenz hinterher. Bei den Datenmengen, die eine durchschnittliche Film- und internetaffine Familie heute schon über den hauseigenen Server umschlägt, gibt's da schnell mal Stau auf der Datenautobahn. Schon beim Anschluss der Überwachungskamera kommt beispielsweise unser dLan an seine Grenze. Insofern ist eine Kabel-Lösung in der Hinterhand sicher nicht verkehrt. Wenn man nur wüsste, was die Daten- und Kabelstandards der Zukunft sind und wo im Haus man sie später braucht (Stichwort: Internet der Dinge).
     
  6. #6 DerMarc, 24.03.2017
    DerMarc

    DerMarc

    Dabei seit:
    12.02.2013
    Beiträge:
    288
    Zustimmungen:
    1
    Beruf:
    Werbefuzzi
    Ort:
    Leverkusen
    Cat6A, also das gängige Kabel liefert heute schon problemlos 50Gbit... der Standard sollte also ne Weile reichen, wenn man überlegt wie lange wir mit 100Mbit bzw. 1Gbit leben...

    aber mal zum eigentlichen Problem:

    Der Elektriker hat nicht ganz unrecht, bzw. je nach Strecke müssen Zugdosen eingebaut werden. So prickelnd ist das wirklich nicht, aber alles machbar.
     
  7. #7 Andybaut, 24.03.2017
    Andybaut

    Andybaut

    Dabei seit:
    02.04.2015
    Beiträge:
    5.127
    Zustimmungen:
    329
    Beruf:
    Architekt
    Ort:
    Baden-Württemberg
    erst genau lesen, dann antworten, das hilft :-)
     
  8. #8 benkler1401, 24.03.2017
    benkler1401

    benkler1401

    Dabei seit:
    21.03.2017
    Beiträge:
    38
    Zustimmungen:
    0
    Beruf:
    Chemielaborant
    Ort:
    Ludwigshafen am Rhein
    Wow vielen dank für die ganzen Ratschläge. Klingt alles sehr interessant. Leider kenne ich mich da wirklich nicht so sehr aus.(Nicht mein Fachgebiet um ehrlich zu sein)

    Vorab zu sagen das die Verkabelung im Rohbau nicht viel kostet kann ich eher weniger bestätigen . Ein TV Kabel vom EG ins OG kostet 175€ , klar ist nicht die Welt aber das Summiert sich am ende schon.


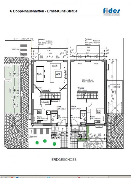
    Also in der Baubeschreibung sind folgende Sachen dabei.:

    Wohn/Esszimmer = 1 Telefonanschluss (Leerdose mit Zuleitung)/ 1 TV-Anschluss (Zuleitung inkl. Antennendose)
    Küche = Starkstrom für Herd
    WC = nichts!
    Flur EG/Diele = nichts!
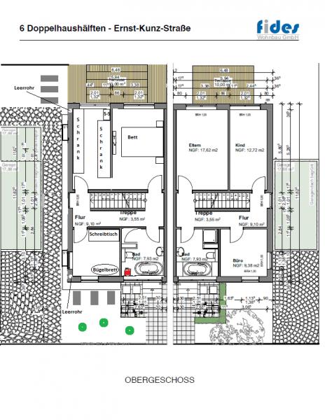
    Begehbarer Kleiderschrank (gekennzeichnet als :Kinderzimmer) = nichts!
    Elternzimmer = nichts!
    Büro = 1 Telefonanschluss (Leerdose mit Zuleitung)
    Bad = nichts!
    Flur OG/DG/KG = nichts!
    Terasse = nichts!
    Hauseingang = 1 Haustürklingel mit Läutwerk
    Kellerraum 1 = nichts!
    Kellerraum 2 = nichts!

    Steckdosen/Wandbrennstellen/Deckenbrennstellen bin ich mir bewusst deswegen habe ich diese mal hier Weggelassen sonst wäre es ja das Pure Chaos.

    So nun hatten wir folgende Ideen:

    Elternzimmer = TV Anschluss Mittig an der Trennwand Eltern/Kinderzimmer.
    Hauseingang = Anstatt der normalen Klingel wollten wir eine Gegensprechanlage mit Kamera die eine Gegensprechanlage mit Video im Wohnzimmer und im Flur OG hat.
    Leerrohre Senkrecht Parallel an Haus Ecken (KG/EG/OG/DG) //// Leerrohre Diagonal im Wohn/Esszimmer von TV-Wand an die beiden anderen Wände falls man irgendwann Umstellen wollen würde.

    So nun wäre die Frage habt ihr hierzu noch irgendwelche Vorschläge was Ratsam wäre noch verlegen zu lassen ? Leerrohre Weg lassen und gleich TV Leitung/Telefonleitung ins DG legen ? TV Leitung direkt an alle 3 Wände im Whz.?
    Was benötigt man alles an Leitungen um wirklich die Internetverbindung stabil zu halten.


    Aktuell haben wir noch keine Kinder aber wenn es so kommen sollte soll das DG ausgebaut werden für die Kinder mit Badezimmer(Steigleitung schon eingeplant).
    Das im Plan gekennzeichnete Kinderzimmer wird der Kleiderschrank bleiben.
     
  9. #9 LoSteinke, 24.03.2017
    LoSteinke

    LoSteinke

    Dabei seit:
    30.12.2009
    Beiträge:
    39
    Zustimmungen:
    0
    Beruf:
    Journalist
    Ort:
    Hamburg
    Hallo,

    keine Dosen für Datenkabel? Ich persönlich würde auf jeden Fall noch Cat7 in Wohnzimmer, Büro, (geplante) Kinderzimmer und Dachboden legen. Außerdem in den Keller, dort wo später der Home Server steht oder der Hobby-Raum ist (welches Hobby kommt heute noch ohne Internet-Zugang aus) oder vielleicht das Heimkino? WLAN funktioniert im Keller oft nicht, wg. Betondecke. Eventuell auch noch Leerrohre für späteren Glasfaser-Bus in die genannten Räume.
     
  10. #10 wise1980, 25.03.2017
    wise1980

    wise1980

    Dabei seit:
    26.02.2016
    Beiträge:
    76
    Zustimmungen:
    1
    Beruf:
    IT Project Manger
    Ort:
    Krefeld
    Wieso benötige ich Leerrohre, um Kabel auszutauschen? Dazu nutze ich doch einfach das verhandene Rohr der veralteten Leitung.
     
  11. #11 wise1980, 25.03.2017
    wise1980

    wise1980

    Dabei seit:
    26.02.2016
    Beiträge:
    76
    Zustimmungen:
    1
    Beruf:
    IT Project Manger
    Ort:
    Krefeld
    @ benkler1401, schon mal an "Homeway" gedacht? Damit musst du dir um die spätere Verwendung im Haus zu Beginn nicht großartig Gedanken machen. Wenn du pro Dose zwei Hybridkabel legen lässt und die TwiGa-Dosen verwendest, bist du auch zukunftssicher ausgestattet. Du hast nur zu Beginn die Möglichkeit dein Haus ordentlich auszustatten. Ich würde mir daher überlegen alle Wohnräume entsprechend mit Netzwerk & Koaxial-Kabel auszustatten. Telefonanschlüsse finde ich ziemlich überflüssig. Das lässt such heutzutage alles über LAN realisieren und wird wohl auch in Zukunft immer mehr dazu übergehen.
    Ihr wollt in einem Einfamilienhaus wirklich eine Gegensprechanlage mit Video haben? Seid ihr so gemütlich? ... ;-) Das Geld würde ich sinnvoller investieren.
     
  12. #12 Fred Astair, 25.03.2017
    Fred Astair

    Fred Astair

    Dabei seit:
    02.07.2016
    Beiträge:
    12.729
    Zustimmungen:
    6.595
    Beruf:
    Tänzer
    Ort:
    San Bernardino
    "Wieso benötige ich Leerrohre, um Kabel auszutauschen? Dazu nutze ich doch einfach das verhandene Rohr der veralteten Leitung."
    Ok, ich hätte besser Installationsrohre schreiben sollen. Stattdessen verwendete ich den allgemein gebräuchlichen Begriff.
    Ich bitte vielmals um Entschuldigung Herr Krümelk...
     
  13. #13 stf1986, 25.03.2017
    stf1986

    stf1986

    Dabei seit:
    23.07.2016
    Beiträge:
    9
    Zustimmungen:
    0
    Beruf:
    Projektleiter
    Ort:
    Eberstalzell
    Also ich komme aus Österreich - bei uns gibt es im Massivbau ausschließlich leerrohre! Im trockenbau nicht immer. Für Datenkabel und TV Kabel ausschließlich (ist wohl auch in einer Regulation gefordert)

    Beim Verlegen von Installationsrohren ist einiges zu beachten dann hast du ein gutes Leben damit.

    - Option: bei uns legt man gerne auf einer Höhe von 30cm rundum den Raum ein Installationsrohr, dann kannst du überall Steckdosen machen

    - beim Übergang zum Boden muss der Rohrbogen unten am Übergang zum Boden sauber abgestützt werden

    - mindestens 20 besser 25mm Durchmesser

    - Kabel vor dem Estrich einziehen - eventuell kann es zu Beschädigungen der Leerrohre beim Estrich kommen

    - bei mehr als 3 Bögen soll eine Zugdose vorgesehen werden

    - wenn leerrohre nach außen gehen unbedingt mit Dichtstopfen luftdicht machen

    - In Arbeitsräumen macht macht ein kompletter Kanal Sinn


    Gesendet von iPhone mit Tapatalk
     
  14. #14 msfox30, 25.03.2017
    msfox30

    msfox30

    Dabei seit:
    12.05.2015
    Beiträge:
    2.420
    Zustimmungen:
    832
    Beruf:
    IT Berater
    Ort:
    Halle
    Wir haben auch noch Leerrohre verlegen lassen und er Elektriker hat's einfach gemacht - gegen aufpreis natürlich.
    1x von der Stereoanlage zu den hinteren Boxen.
    2x HTPC zum Beamer an der der
    - 1x da wo der Beamer jetzt hin soll
    - 1x da wo der Beamer hin könnte, wenn uns die Coach dort nicht gefällt.
    -> @Andybaut: Aktuell würden wir nicht in den Garten schauen :-). Vielleicht wollen wir das später mal :-)
     
  15. #15 OutdoorShop, 25.03.2017
    OutdoorShop

    OutdoorShop

    Dabei seit:
    09.10.2016
    Beiträge:
    163
    Zustimmungen:
    5
    Beruf:
    Onlinehandel
    Ort:
    Krefeld
    Die größte Sorge macht mir ein ggf. irgendwann stattfindender Wechsel von Netzwerkkabel auf Glasfaser.

    Oder darf man davon ausgehen, dass es noch sehr weit bis da hin ist?
     
  16. #16 Fred Astair, 25.03.2017
    Fred Astair

    Fred Astair

    Dabei seit:
    02.07.2016
    Beiträge:
    12.729
    Zustimmungen:
    6.595
    Beruf:
    Tänzer
    Ort:
    San Bernardino
    In der Informationstechnologie darfst Du nur davon ausgehen, dass Du mit Deiner Erwartungshaltung stets den Möglichkeiten und Trends hinterherhecheln wirst.
    Warum macht Dir der Wechsel auf LWL Sorge?
    Da wo jetzt ein LAN drinsteckt, bekommst Du bequem ein paar LWL-Kabel rein.
     
  17. #17 petra345, 25.03.2017
    petra345

    petra345

    Dabei seit:
    17.02.2017
    Beiträge:
    5.207
    Zustimmungen:
    1.014
    Beruf:
    Ing. plus B. Eng.
    Ort:
    Rhein-Main-Gebiet
    Benutzertitelzusatz:
    Ing.(grad.) plus B. Eng.
    Man hat nach dem Krieg viel Stegleitung verlegt (NYIF). Hier war die Leitung flach im Putz und die Leiter wurden sehr gut gekühlt. Dann kamen die Bedenkenträger und meinten, daß sei nicht sicher und Rundleitung sei besser (NYM).

    Dem Widiabohrer ist es gleich. Der geht durch beides.

    Jetzt kamen die schauen Leute auf die Idee das NYM in Rohr zu verlegen. Das geht nur einmal. Raus geht das nie und nimmer weil die Schmierseife, mit der man es einst ins Rohr bekommen hat längst hart geworden ist.

    Darüber hinaus ist die Leitung im Rohr nicht so gut gekühlt. Also besser als Stegleitung ist das auf keinen Fall.

    Inzwischen haben schlaue Leute nachgemessen und festgestellt, daß viele Leitungen im engen Bündel sich stark erwärmen und die alte Regel , ein 15 später 16-A-Automat bei 1,5 mm² Querschnitt, nicht rechtzeitig abschalten würde und nur noch 13,5 A bei 1,5 mm² zulässig sei.

    Jetzt werden also 2,5 mm² Leitungen statt früher 1,5 mm² verlegt. Die gehen nie und nimmer wieder aus einem Rohr raus. Die Leitung ist immer viel zu starr.

    Also was soll der Unsinn mit Versorgungsleitungen im Rohr??

    Auf jeden Fall fehlen die erforderlichen Steckdosen bzw. deren UP-Einsätze in der Wand.

    Die Faustregel , eine Steckdose pro 1,5 m² WFl wird selten eingehalten.
    In der Küche braucht man sowieso ca. 20 UP-Einsätze. Wer macht das schon im Rohbau?

    Aber Datenkabel und Koaxkabel gehören ins Rohr!! Der Weichmacher im Koaxkabel verschwindet und dann ging kein Fernsehen mehr. Nach 20 Jahren mußte man spätestens das Koaxkabel austauschen.
    Bei Datenkabel geht der technische Fortschritt über jedes Kabel schneller hinweg als es altern kann. Die müssen auch ins Rohr!

    Als Rohr hat man früher 13,5 mm gewählt. Heute würde ich nicht unter 20 mm besser 25 mm Rohr und möglichst gerade verlegen.
    Sie werden ja teilweise auch im Beton verlegt. Wer will da etwas aufstemmen?
     
  18. #18 wise1980, 26.03.2017
    wise1980

    wise1980

    Dabei seit:
    26.02.2016
    Beiträge:
    76
    Zustimmungen:
    1
    Beruf:
    IT Project Manger
    Ort:
    Krefeld
    Von wem stammt denn diese Faustregel. Ich würde sie schon deshalb nicht einhalten wollen, weil ich mir mein Haus nicht mit Massen von Steckdosen verschandeln will, die ich dann später doch nicht nutze.
     
  19. #19 simon84, 26.03.2017
    simon84

    simon84
    Moderator

    Dabei seit:
    11.11.2012
    Beiträge:
    23.318
    Zustimmungen:
    6.934
    Beruf:
    Schrauber
    Ort:
    Muenchen
    Jetzt musste ich aber kurz schmunzeln.

    Also ich bin da voll dabei.

    Lieber mehr Steckdosen als zu wenig. Gerade in der Küche.

    Verschandeln muss man deshalb gar nix
     
  20. #20 wise1980, 26.03.2017
    wise1980

    wise1980

    Dabei seit:
    26.02.2016
    Beiträge:
    76
    Zustimmungen:
    1
    Beruf:
    IT Project Manger
    Ort:
    Krefeld
    Ja, lieber 1+2 mehr. Allerdings halte ich die 1,5 Steckdosen pro m² als Faustformel doch schon arg übertrieben. Ich "kleister" meinen 40 m² Wohnraum doch nicht mit 26 Steckdosen zu. Wenn man bei Zimmern <15 m² diese Formel anwendet, mag das noch gehen, aber bei großen Räumen erzeugt das eine Flut hässlicher Steckdosenreihen ... ;-)
     
Thema: Leerrohre aus der Mode ?
Besucher kamen mit folgenden Suchen
  1. leerrohr trockenbau

    ,
  2. legt man die Stromleitungen noch in Leerrohre

    ,
  3. leerrohr oder nicht

    ,
  4. koaxialkabel ohne leerrohr,
  5. tv wand leerrohr,
  6. zu viele leerrohre,
  7. leerrohr im trockenbau,
  8. Trockenbau leerrohre,
  9. elektrik ohne leerrohre,
  10. haus leerrohr keller,
  11. leerrohr unterputz tv verlegeanleitung,
  12. leerrohre finden,
  13. netzwerkkabel leerrohr pflicht,
  14. leerrohre neubau forum,
  15. Leerrohr unterputz finden,
  16. massivhaus leerrohre,
  17. keine leerrohr im Neubau,
  18. trockenbau leerrohr oder direkt verkabeln,
  19. leerrohr keller dachboden,
  20. leerrohre ja oder nein,
  21. leerrohre verlegen neubau kosten,
  22. trockenbauwand rohr durchführen,
  23. zugdose elektro,
  24. koaxkabel unter putz ohne rohr,
  25. leerrohre verlegen neubau
Die Seite wird geladen...

Leerrohre aus der Mode ? - Ähnliche Themen

  1. Leerrohr des Hauptstromkabels nutzen für Wallboxinstallation

    Leerrohr des Hauptstromkabels nutzen für Wallboxinstallation: Hallo zusammen, wir planen aktuell die Installation unserer Wallbox mit einem 5x6mm^2 Leitung und Cat7 Netzwerkkabel, welche beide aus unserem...
  2. Neubau: Mehrere Leerrohre durch Bodenplatte

    Neubau: Mehrere Leerrohre durch Bodenplatte: Hallo zusammen, ich baue ein Haus auf Bodenplatte. Für die Garage brauche ich 4 Verbindungen zum Technikraum - Garagenstrom - Spätere...
  3. Leerrohre durch Ringraumdichtung

    Leerrohre durch Ringraumdichtung: Hallo zusammen, über die Suche, Googeln und langes Nachdenken habe ich noch keine Lösung gefunden, deshalb hier meine Frage. Für unseren Neubau...
  4. Altbau: Reserve Leerrohr vom Keller durch nicht-unterkelltern Bereich

    Altbau: Reserve Leerrohr vom Keller durch nicht-unterkelltern Bereich: Hallo ihr lieben Bauexperten, ich saniere gerade unser Haus aus dem Jahr 1963. Es ist zu etwa 80 % unterkellert. Im Erdgeschoss haben wir im...
  5. Leerrohr unter Bodenplatte für WP vergessen - Neubau

    Leerrohr unter Bodenplatte für WP vergessen - Neubau: Hallo liebe Experten, bei unserem Neubau wurde vom Bauunternehmen das Leerohr unter der Bodenplatte zur Verbindung von Außen- und Inneneinheit...