Leerrohre mit Einzeladern oder NYM-J?

Diskutiere Leerrohre mit Einzeladern oder NYM-J? im Elektro 1 Forum im Bereich Haustechnik; Wer schon 2,5mm2 mal in mehren Dosen verklemmt hat freut sich auf jedes 1,5mm2. Im ernst ich würde nicht übertreiben das wird ein riesen Aufwand...

  1. #21 snoopier, 30.09.2014
    snoopier

    snoopier

    Dabei seit:
    03.12.2013
    Beiträge:
    81
    Zustimmungen:
    0
    Beruf:
    Dipl.Ing.
    Ort:
    Berlin
    Wer schon 2,5mm2 mal in mehren Dosen verklemmt hat freut sich auf jedes 1,5mm2. Im ernst ich würde nicht übertreiben das wird ein riesen Aufwand den Du kaum alleine schaffen wirst. Mein Vorschlag pro Steckdosenkreis 5x1,5 somit flexibel 2 Steckdosen schaltbar. Licht entweder 3x1,5 oder bei Lichtgruppen wieder 5x1,5. Ausnahmen natürlich WM GS Induktion etc. mit 2,5mm2. Dann in jeden Raum 4 Leerrohre 25mm am besten jeweils 2 verteilt. Wenn das Geld reicht dann Sternförmig und KNX oder zumindest grünes Eib wenigstens schon verlegen. Gruss Dennis


    Gesendet von meinem iPhone mit Tapatalk
     
  2. #22 karo1170, 30.09.2014
    karo1170

    karo1170

    Dabei seit:
    15.04.2013
    Beiträge:
    1.059
    Zustimmungen:
    0
    Beruf:
    Ingenieur
    Ort:
    Sachsen
    In eine 5-adrige Leitung passen sogar drei Stromkreise (L1,L2,L3, mit N,PE) rein. Gemeinsame Abschaltbarkeit der Leitung muss gegeben sein, entweder ueber 4-pol. FI oder 3-pol.LSS.
     
  3. #23 brandeins, 30.09.2014
    brandeins

    brandeins

    Dabei seit:
    28.11.2012
    Beiträge:
    101
    Zustimmungen:
    0
    Beruf:
    Hausmeister
    Ort:
    Recklinghausen
    Günstigere Kanalpreise der Aktorik z.B.


    MfG, Sven

    Sent from my iPhone using Tapatalk
     
  4. #24 brandeins, 30.09.2014
    brandeins

    brandeins

    Dabei seit:
    28.11.2012
    Beiträge:
    101
    Zustimmungen:
    0
    Beruf:
    Hausmeister
    Ort:
    Recklinghausen
    Ok, der Punkt ist schon gefallen... Aber du musst es ja nicht in eine zentrale Verteilung führen. Es steht dir frei auch mehrere Unterverteilungen zu nehmen.


    MfG, Sven

    Sent from my iPhone using Tapatalk
     
  5. nolu13

    nolu13

    Dabei seit:
    29.01.2013
    Beiträge:
    1.448
    Zustimmungen:
    1
    Beruf:
    Elektriker
    Ort:
    RLP
    Oder doch lieber auf Jonny "hören"?
    Und von aufgeteiltenDS- Stromkreisen mit Querschschnitten kleiner 4mm² halte ich gar nix von,weil irgendwann der Überblick verloren geht!
    Aufteilung?
    Murks!
    Auch wenn die Norm es ermöglicht:
    Im Einzelfall ja,in der Regel besser nicht!
     
  6. #26 karo1170, 01.10.2014
    karo1170

    karo1170

    Dabei seit:
    15.04.2013
    Beiträge:
    1.059
    Zustimmungen:
    0
    Beruf:
    Ingenieur
    Ort:
    Sachsen
    Tja, man kann auch noch in jede UV ein KNX-IP-Gateway setzen und anschliessend ein Netzwerkkabel (im Leerrohr natuerlich) zwischen den UV verlegen und alles zusammenführen.

    Aber irgendwie entspricht das doch nicht dem, weswegen man sich für ein Bussystem entscheidet. Also so Punkte wie z.B. geringerer Verkabelungsaufwand gegenüber konventioneller Installation bei hoher Flexibilitaet und beliebige Erweiterbarkeit...

    Bei der von dir geschilderten Variante müsste man ja bei jeder anstehenden Erweiterung (z.B. für zusätzliche Räume, Ausbau DG...) wieder neue Leitungen zur Verteilung ziehen, dort zusätzliche Baugruppen unterbringen und entsprechend programmieren. Das will man aber mit einem dezentralen Bus gerade vermeiden.
     
  7. #27 DipperLG, 01.10.2014
    DipperLG

    DipperLG

    Dabei seit:
    30.09.2014
    Beiträge:
    41
    Zustimmungen:
    0
    Beruf:
    Hausmeister
    Ort:
    Lüneburg
    Die 2,5qmm sollen ja nur von der Verteilung bis zur ersten Dose je Zimmer, danach kommt 1,5qmm. Ich denke mal bei je zwei Dosen pro Zimmer mit 2,5qmm wird sich der Frust noch in Grenzen halten. Grundsätzlich verstehe ich aber Deine Bedenken, aber bei teilweise bis zu 20 Metern Kabelwegen bis in eine Zimmer nehme ich für die erste Strecke lieber einen etwas größeren Querschnitt. Die Aderanzahl im Zimmer muss ich dann eh noch anhand meiner Planung ermitteln, welcher Stromkreis noch wo geschaltet werden soll.

    BUS ist wie bereits erwähnt für mich nicht interessant, das Geld investiere ich lieber in ander Ausstattungen.
     
  8. fuchsi

    fuchsi

    Dabei seit:
    07.05.2008
    Beiträge:
    938
    Zustimmungen:
    40
    Beruf:
    techn. Angestellter
    Ort:
    Zell
    Hier in meiner Gegend wird hauptsächlich Ye in Rohr verlegt (österr. Bezeichnung Ye = H07VU)

    hier kurz einige Überlegungen dazu

    - Materialkosten wird es ziemlich egal sein
    - erhöhter Arbeitsaufwand
    - übersichtlicher aufgrund mehr Aderfarben (bei mir gibt es nur farbreine Klemmstellen!!)
    - leichter austauschbar, wenn Leitung angebohrt wird (tausch durch NYM)
    - etwas schlechtere Wärmeabgabe - weniger belastbar
     
  9. drsos2

    drsos2

    Dabei seit:
    24.03.2014
    Beiträge:
    569
    Zustimmungen:
    0
    Beruf:
    Handwerker
    Ort:
    Schaan
    Ich halte von der Verlegung in Leerrohr nichts. Überlege dir mal, was du in deiner jetzigen Wohnung anders geschaltet hättest, wenn du Leerrohre verlegt hättest? Meistens läuft es auf das heraus, was feelfree schon erwähnt hat. Und da hilft dir auch kein Leerrohr.
    Eine vernünftige Planung vorab erspart dir nachher die Umverdrahtung.
     
  10. drsos2

    drsos2

    Dabei seit:
    24.03.2014
    Beiträge:
    569
    Zustimmungen:
    0
    Beruf:
    Handwerker
    Ort:
    Schaan
    Die Zuleitung für Licht bis zur ersten tiefen Dose mit dem Lichtschalter und von da zu den Lampen und evt. zu schaltbaren Steckdosen.
    Die Zuleitung für die Steckdosen bis zur ersten tiefen Dosen mit Steckdose und von da weiter zu den anderen Steckdosen.
    Keine UP Abzweigdosen verwenden.
     
  11. #31 snoopier, 01.10.2014
    snoopier

    snoopier

    Dabei seit:
    03.12.2013
    Beiträge:
    81
    Zustimmungen:
    0
    Beruf:
    Dipl.Ing.
    Ort:
    Berlin
    Aber dran denken wenn 2 verschiedene Querschnitte dann ist der geringere Maßgebend für den Leitungsschutz. Und Medien gehören immer in Leerohr. Ansonsten passt das schon, wenn Du mit mehr als 3 Adern anfährst. Und ja ab ca 15m sollte man auf 2,5mm2 gehen.




    Gesendet von meinem iPhone mit Tapatalk
     
  12. #32 DipperLG, 01.10.2014
    DipperLG

    DipperLG

    Dabei seit:
    30.09.2014
    Beiträge:
    41
    Zustimmungen:
    0
    Beruf:
    Hausmeister
    Ort:
    Lüneburg
    Licht und Steckdosen würde ich eh nicht mit mehr als 16A absichern, oder sollte ich dann schon sicherheitshalber nur 13A nehmen? Nach ersten Schätzungen wäre die maximale Länge für das hinterste Zimmer ca. 12 Meter mit 2,5qmm und den Rest im Raum dann mit 1,5qmm. Im Raum selber kommen ja auch noch ein paar Meter dazu.

    Für die Leitungen zu den Unterverteilungen Dachboden und Carport/Garten habe ich erst einmal 6qmm vorgesehen. Für die endgültigen Dimensionierungen der Leitungen und Absicherungen setze ich mich dann eh noch mit dem Elektriker zusammen, aber umso besser, wenn schon möglichst viel gleich passt.

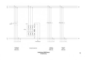
    Ich habe heute schon einmal angefangen die Verteilung zu planen, ist aber alles noch ganz am Anfang. Ich habe mal meine ersten beiden Blätter beigefügt.

    Verteilung Einspeisung.jpg

    Verteilung.jpg
     
  13. #33 snoopier, 02.10.2014
    snoopier

    snoopier

    Dabei seit:
    03.12.2013
    Beiträge:
    81
    Zustimmungen:
    0
    Beruf:
    Dipl.Ing.
    Ort:
    Berlin
    Bei 12m plus Raum würde ich bei 1,5mm2 bleiben. Die meisten Elis sichern alles mit 16A ab ist im
    Einkauf einfach besser. Wenn Du es genauer möchtest dann Licht mit 10A Steckdosen mit 1,5mm2 mit 13A und wo man es braucht 2,5mm2 mit 16A.

    Den Schaltplan schau ich mir mal am Rechner an Iphone seh ich nix :-)

    Gruss


    Gesendet von meinem iPhone mit Tapatalk
     
  14. fuchsi

    fuchsi

    Dabei seit:
    07.05.2008
    Beiträge:
    938
    Zustimmungen:
    40
    Beruf:
    techn. Angestellter
    Ort:
    Zell
    teilweise 2polige Leitungsschutzschalter? (WaMa, Trockner)
    Wozu?
     
  15. #35 DipperLG, 02.10.2014
    DipperLG

    DipperLG

    Dabei seit:
    30.09.2014
    Beiträge:
    41
    Zustimmungen:
    0
    Beruf:
    Hausmeister
    Ort:
    Lüneburg
    Ganz erhlich?
    Ich habe mir den Plan bei mir in der Firma angeschaut, wo letztes Jahr neue Steckdosen für WaMa und Trockner gesetzt wurden und die wurden 2polig abgesichert. Da dachte ich mir, dass ich das einfach auch mal so einplane, wird schon irgend einen Sinn haben. Wollte mich da aber auch noch mal schlau machen...

    Mit den Querschnitten muss ich noch mal in mich gehen und bin auch hier auf weitere Meinungen gespannt. Vermutlich komme ich zur endgültigen Entscheidung, wenn ich die genauen Kabellängen weiß.

    Gruß,

    Lars
     
  16. fuchsi

    fuchsi

    Dabei seit:
    07.05.2008
    Beiträge:
    938
    Zustimmungen:
    40
    Beruf:
    techn. Angestellter
    Ort:
    Zell
    echt 2polig oder 1+n polig?

    1+n polig sind Leitungsschutzschalter, die den N lediglich mit schalten, aber nicht überwachen. Und das sind eigentlich die am häufigsten anzutreffenden '2-poligen' Leitungsschutzschalter.
     
  17. #37 feelfree, 02.10.2014
    feelfree

    feelfree Gast

    Danke, wieder was gelernt!
    Welchen Vorteil hat es, wenn der N mitgeschaltet wird?
     
  18. #38 DipperLG, 02.10.2014
    DipperLG

    DipperLG

    Dabei seit:
    30.09.2014
    Beiträge:
    41
    Zustimmungen:
    0
    Beruf:
    Hausmeister
    Ort:
    Lüneburg
    Ich nehme alles zurück und behaupte das Gegenteil: :bef1010:
    Ich habe eben noch einmal genauer auf den Plan geschaut: Waschmaschine und Trockner sind über kombinierte FI/LS angeschlossen (ABB DS201), dann macht das ganze auch wieder Sinn! Muss ich dann bei mir im Plan noch einmal ändern.
     
  19. nolu13

    nolu13

    Dabei seit:
    29.01.2013
    Beiträge:
    1.448
    Zustimmungen:
    1
    Beruf:
    Elektriker
    Ort:
    RLP
    Eine Installation mit Leerohren ist bei Erweiterungen/Ergänzungen variabel.
    Die richtige Dimensionierung und Verlegung vorausgesetzt eigentlich unschlagbar.

    Was bin ich manchmal froh,wenn ich zwei NYA nachziehen kann und Oma Helene vom Bett aus die Deckenleuchte anknipsen kann.
    Die würde mich am liebsten knutschen,weil man immer so genau zielen muß,mit dem Hausschuh den Lichtschalter zu treffen und die die Fehlwürfe in der Mehrzahl sind !:mega_lol:
    20€ Trinkgeld gibts dann noch dazu .
    Folge-Aufträge nicht ausgeschlossen.:lock
     
  20. nolu13

    nolu13

    Dabei seit:
    29.01.2013
    Beiträge:
    1.448
    Zustimmungen:
    1
    Beruf:
    Elektriker
    Ort:
    RLP
    Ach so,jedes Zimmer wird 2-fach separat abgesichert!
    Dann :Zwei Zuleitungen pro Raum und auch 2 separate Stromkreise im Rohr verlegt.:irre
    KU- glatt Rohr,einige werden es noch kennen.
    Enge Bögen waren eine Herausforderung,an denen viele scheiterten und am Ende kein Durchkommen war !
     
Thema: Leerrohre mit Einzeladern oder NYM-J?
Besucher kamen mit folgenden Suchen
  1. leerrohr einzeladern

    ,
  2. einzeladern in leerrohr zulässig

    ,
  3. einzelader oder nym

    ,
  4. einzelader im leerrohr,
  5. elektroinstallation einzeladern,
  6. nym oder einzeladern,
  7. aderleitung im leerrohr,
  8. nym kabel in leerrohr,
  9. verlegung einzeladern im leerrohr,
  10. einzeldraht oder nym,
  11. nym oder einzeldrähte,
  12. nym einzelader,
  13. nym in leerrohr,
  14. einzeladern verlegen,
  15. elektroinstallation leerrohre einzeladern,
  16. einzelader installation,
  17. nym kabel im leerrohr,
  18. einzeladern leerrohr,
  19. einzeladern im Leerrohr,
  20. installation leerrohr einzeldraht odrr nym,
  21. einzeladern im installationsrohr tauschen,
  22. aderleitung in isolierrohr,
  23. leerrohr metall einzeladern,
  24. mantelleitung in leerrohr,
  25. e7nzeladern im leerrohr
Die Seite wird geladen...

Leerrohre mit Einzeladern oder NYM-J? - Ähnliche Themen

  1. Leerrohr des Hauptstromkabels nutzen für Wallboxinstallation

    Leerrohr des Hauptstromkabels nutzen für Wallboxinstallation: Hallo zusammen, wir planen aktuell die Installation unserer Wallbox mit einem 5x6mm^2 Leitung und Cat7 Netzwerkkabel, welche beide aus unserem...
  2. Neubau: Mehrere Leerrohre durch Bodenplatte

    Neubau: Mehrere Leerrohre durch Bodenplatte: Hallo zusammen, ich baue ein Haus auf Bodenplatte. Für die Garage brauche ich 4 Verbindungen zum Technikraum - Garagenstrom - Spätere...
  3. Leerrohre durch Ringraumdichtung

    Leerrohre durch Ringraumdichtung: Hallo zusammen, über die Suche, Googeln und langes Nachdenken habe ich noch keine Lösung gefunden, deshalb hier meine Frage. Für unseren Neubau...
  4. Altbau: Reserve Leerrohr vom Keller durch nicht-unterkelltern Bereich

    Altbau: Reserve Leerrohr vom Keller durch nicht-unterkelltern Bereich: Hallo ihr lieben Bauexperten, ich saniere gerade unser Haus aus dem Jahr 1963. Es ist zu etwa 80 % unterkellert. Im Erdgeschoss haben wir im...
  5. Leerrohr unter Bodenplatte für WP vergessen - Neubau

    Leerrohr unter Bodenplatte für WP vergessen - Neubau: Hallo liebe Experten, bei unserem Neubau wurde vom Bauunternehmen das Leerohr unter der Bodenplatte zur Verbindung von Außen- und Inneneinheit...