Lüftungkanäle, wohin damit ?

Diskutiere Lüftungkanäle, wohin damit ? im Lüftung Forum im Bereich Haustechnik; Zellstoff - vergiss jetzt einfach mal deinen polemik-vorwurf. ich mach das jetzt auch! die nachteile der lüftungskanäle unter der dusche habe ich...

  1. #41 Gast036816, 08.05.2013
    Gast036816

    Gast036816 Gast

    Zellstoff - vergiss jetzt einfach mal deinen polemik-vorwurf. ich mach das jetzt auch!

    die nachteile der lüftungskanäle unter der dusche habe ich dir ausreichend beschrieben. dein verzerrter zeichnungsausschnitt zeigt zwar technische installationsschemen, aber der verlauf deiner lüftungskanäle ist nicht drin. wenn du mit gu baust, sucht er immer den kürzesten und billigsten weg zum ziel, er spart sogar an der plandarstellung. ich kann keinen vorteil an dieser installationsvariante außer den kurzen weg zu finden. diese diskussionen mit den haustechnikplanern und ausführenden kenne ich zur genüge. in der ausführungs- und detailplanung muss man ständig denen den sinnvollen weg vorgeben. siehe das v. g. beispiel hauptsache ist drin, 5 jahre wird es schon halten, dann kann kommen was will.
     
  2. #42 Gast56083, 08.05.2013
    Gast56083

    Gast56083 Gast

    rolf - das wird ja immer besser. Jetzt haust auch noch allen GU´s im Rundumschlag eine auf die Mütze. Heute bist Du aber ganz schön großzügig mit den Verallgemeinerungen.
    Und nur zur Info: Das Thema Lüftung habe ich aus dem GU Vertrag rausgenommen, da ich über einen mir Bekannten Lüftungsbauer realisieren wollte.
    GU hat trotzdem ohne Klagen etc. die Planung der Deckenauslässe etc. kostenlos mitgemacht bzw. in der Planung unterstützt. Nicht alle GU´s sind so, und wie swchon öfter gesagt komme und kam ich mit meinem gut klar.

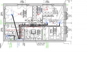
    Hier gerne noch der Plan des ganzen OG´s.

    Bad OG Lüftung.jpg

    Die schwarzen Linien stellen den Verlauf den Flexrohre dar (nicht genau, es gibt natürlich keine 90° Biegungen), die ich gerade selbst eingezeichnet habe. Den Lüftungsplan mit Leitungswegen habe ich grad nicht bei der Hand, der kam vom Lüftungsbauer, ist aber das gleiche. In der hier gezeigten Werkplanung (übrigens auch noch ein alter Stand), sind nur die Aussparungen für die Filigrandecke für Lüftung und Spots enthalten.

    Und jetzt bitte nochmal: was ist daran falsch? Was spricht übrigens generell gegen einen kurzen Weg? Ist lang für Dich immer besser ;)

    Unter dem Bad liegt wie gesagt Gäste WC/Flur und darunter der HWR.
    Wie hätte man es besser machen sollen?
    Nur vorbeugend falls Du auf die Idee kommst: das im Treppenauge ist ein Kamin...
     
  3. #43 Gast56083, 08.05.2013
    Gast56083

    Gast56083 Gast

    ach ja...und was mich gerade bezogen auf die Aussagen von Ralf D. und Julius interessiert:
    Gibt es nun diese Vorschrift, dass solche Flexrohre nicht in der Dämmschicht laufen dürfen oder nicht?
    Wenn ja welche ist das und wie kann dann ein Hersteller wie Z..... diese Rohre als geeignet für die Verlegung auf dem RFB in der Dämmebene ausschreiben?
    Wäre wirklich schön wenn man das final klären könnte und damit auch das Thema "Verlust von Raumhöhe"; interessiert doch einige...
    Danke
     
  4. #44 Gast036816, 08.05.2013
    Gast036816

    Gast036816 Gast

    du meinst wohl, ich kann keinen plan lesen! da kommst du zu spät.

    wenn ich mir deinen plan anschaue, hast du ja nicht den kurzen weg gewählt, sondern bereits den langen. die strecken im bodenaufbau, ums eck, was ist daran kurz. bei dir ist die zentrale anordnung eines steigeschachts in der mitte vom haus sinnvoller. ob es funktioniert, kann man auch nur sagen, wenn man die ganze planung kennt. jedenfalls ist das weit weg, von einer guten lösung.
     
  5. #45 Gast036816, 08.05.2013
    Gast036816

    Gast036816 Gast

    das ist kein flexschlauch, der hersteller schreibt ´rohr´.
     
  6. Jan81

    Jan81

    Dabei seit:
    08.03.2009
    Beiträge:
    2.844
    Zustimmungen:
    1
    Beruf:
    Fachinformatiker
    Ort:
    Sarstedt
    Habe mal eine frage zu dem Thema:

    Wenn die Rohre in der Dämmschicht liegen, dann sind die doch automatsich kühler. Kann es dann nicht sogar zu Kondenswasser in den Rohren kommen?
     
  7. #47 Thomas B, 08.05.2013
    Thomas B

    Thomas B

    Dabei seit:
    17.08.2005
    Beiträge:
    11.181
    Zustimmungen:
    4
    Beruf:
    Dipl.Ing.
    Mann, Norbert, Du bist heute aber auf Krawall gebürstet!

    Habe da schon schlechtere Werkpläne gesehen. Also wirklich!

    Entwurfsmäßig -aber das sollte ja kein Thema sein- sehe ich hier eher Defizite (Tür in die Ankleide, die das nutzbare Schrankmaß reduziert, Tür ins Bad, dessen wegführung einen direkt an die Tränke (den WT) führt usw. usf.
     
  8. #48 Thomas B, 08.05.2013
    Thomas B

    Thomas B

    Dabei seit:
    17.08.2005
    Beiträge:
    11.181
    Zustimmungen:
    4
    Beruf:
    Dipl.Ing.
    wieso sollten diese Kühler sein????

    Sie werden ganztägig von Luft durchströmt. Das heißt sie werden wohl die Temperatur der geführten Luft (in etwa) annehmen. Evtl. wird diese auch kühler sein (Außenluft im Winter), während die Rohre gleichzeitig etwas Wärme von der Heizung erhalten.
     
  9. #49 Gast56083, 08.05.2013
    Gast56083

    Gast56083 Gast

    also langsam wirds mir zu blöd....
    Achim schreibt:
    und ich antworte, welches ROHR es ist..

    Dann kommst Du und zitierst mich, dass ich ein Rohr und keinen Schlauch habe...:irre

    Dann postulierst Du dass jeder GU nur billich willich macht und den kürzesten Weg nimmt und das bei mir eh alles Mist ist ohne die pläne zu kennen und unterstellst, dass der GU auch hier den kürzesten Weg nimmt.
    Jetzt siehst Du, dass es nicht so ist und frägst mich was ich eigentlich will, da ich doch gar nicht den kürzesten Weg genommen hab. Hä?

    Und zum Schluß empfiehlst Du mir in dem kleinen Hütterl noch nen zusätzlichen zentralen Steigschacht als bessere Lösung (natürlich mit dem Hintertürchen-Hinweis dass man die ganze Planung kennen muss um zu sehen dass das funzt), anstatt den vorhandenen nicht nutzbaren Versatz für alle Versorgungsleitungen zu nutzen...es reicht ja nicht wenn man weiß, dass alle Bäder/WC´s in der Linie über dem HWR Technikraum angeordnet sind.
    Natürlich nicht mit dem erneuten Hinweis, dass das eh alles "weit weg von einer guten Lösung ist" (immer bezogen auf die LüftungsROHRführung auf dem RFB, alles andere wollten wir nicht diskutieren und darum gehts auch nicht)

    Ja Danke. Mit Dir möchte ich auch ein Haus bauen...

    Die Frage nach dem Flexrohr auf dem RFB IN der Dämmung bleibt aber. Gehts nun offiziell oder gehts nicht offiziell. Das sollten die Profiarchis hier doch beantworten können...
     
  10. #50 Thomas B, 08.05.2013
    Thomas B

    Thomas B

    Dabei seit:
    17.08.2005
    Beiträge:
    11.181
    Zustimmungen:
    4
    Beruf:
    Dipl.Ing.
    Verlegung der Betondekce ist mE kein Problem. Wie schon geschrieben wurde, solten die Rohre (Schläuche, was auch immer...) ausreichend druckfest sein, damit sie nicht beim versehentlichen Betreten (und das passiert auf einer baustelle mit an Sicherheit grenzender Wahrscheinlichkeit...) verformt werden.

    Auch sollten natürlich über dem Rohr/ Schlauch ;) noch eine Lage WD drüberliegen. Hier z.B. die Trägermatte für die FB-Heizung (20 o. 30 mm...darf natürlich auch gerne mehr sein!).

    Dadurch ergeben sich dann entsprechende Aufbauhöhen (auch abhängig vom verwendeten Estrich Zement/ Anhydrit).
     
  11. #51 Gast56083, 08.05.2013
    Gast56083

    Gast56083 Gast

    Danke Thomas. Genauso wurde es ja gemacht. Flexrohre wurden während der Bauphase zusätzlich mit Holzplanken zur Sicherheit "verschalt", Trägermatte kam unter die FBH.
    Unterm Strich bleibt aber ein Gewinn an Raumhöhe bei Verlegung in der Dämmung.
     
  12. #52 Gast036816, 08.05.2013
    Gast036816

    Gast036816 Gast

    Zellstoff - wenn das rohr druckbeständig ist und die verbindungen gesichert sind für weitere arbeiten bis zu fertigstellung estrich, geht es im bodenaufbau. mit den alu-schläuchen geht es nicht. was genauer in #30 gefragt ist, wissen wir momentan nicht. 75 mm NW hört sich erst einmal nach aluschlauch - flexschlauch - an. darum geht es mir. dein link verweist nicht auf einen flexschlauch, rohr ist es im geometrischen sinne auch nicht, es ist ein lüftungskanal. alle risiken bei lüftung im bodenaufbau sind mittlerweile bekannt. sinnvoll bleibt eine verlegung von lüftungsleitungen am boden nur bei doppelboden. im estrich und unter fest eingebauten bauteilen bleibt es risikobehaftet mit hohen folgekosten.

    mit mir hätte es diese lösung nicht gegeben. da ist mir das haftungsrisiko zu groß mit den kanälen unter der duschtasse. alternativ nur mit haftungsfreistellung durch den bauherrn. ob deine lösung wirtschaftlich ist - ich sage mal konequent nein. du hast eben eine lüftung der langen wege.

    wo habe ich denn ´gefrägt´ was du willst?

    Thomas - er hat doch keine werkplanung eingestellt, das ist doch nur der hochgezoomte entwurfsplan, wo ein paar angaben der haustechnik drin sind. den luftkanalverlauf hat er noch mit ´nem dicken sketchup selbst gemalt.
     
  13. #53 Thomas B, 08.05.2013
    Thomas B

    Thomas B

    Dabei seit:
    17.08.2005
    Beiträge:
    11.181
    Zustimmungen:
    4
    Beruf:
    Dipl.Ing.
    Jein.....bzw. "Ja, wenn..."

    Denn: Gibt es Kreuzungen zw. den einzelnen Installationen (Heizleitungen, E-Leitungen und danneben auch KWL-Rohre/ Schläuche...), so braucht es dann eben auch ein Mehr an Aufbauhöhe.

    Mag sein, daß man dennoch 2 - 3 cm an Aufbauhöhe spart. Aber wen interessieren solche 2 - 3 cm, wenn die Raumhöhe von vornherein richtig geplant worden ist. wenn ich als (z.B.) 2,76 m Rohbaulichte habe und bekomme nun zB 16 cm FB-Aufbau, dann bleiben mir 2,60 m Raumlichte. Hänge ich die Decke zusätzlich ab, so reduiziert sich die Raumhöhe von mir aus um 2 - 3 cm (ich spare dann evtl. etwas an aufbauhöhe im Fußbodenbereich....bleiben 2,57-2,58 m. Also alles im sattgrünen Bereich.

    Lediglich wenn es eng wird, man also ohnhin schon am zulässigen Mindestmaß für die Raumlichte entlangschrammt, mag so eine Abwägung nachvollziehbar sein.

    Vorteil an der abgehängten Version ist aber sicher,m daß man im Bedarfsfalle sehr viel leichter an die Installation herankommen kann. Den Estrich mit samt der FB-Heizung (!!!) zu entfernen ist dann doch ein recht hoher Aufwand.....
     
  14. #54 Gast56083, 08.05.2013
    Gast56083

    Gast56083 Gast

    ja schon klar. Deshalb ist es auch wichtig, dass man einmal Eli, Sani und Lüftungsbauer zusammenbringt und alle Ihre "Wege" festlegen. Wir sind dadurch ohne Kreuzungspunkte mit der Lüftung ausgekommen, allerdings unter Verzicht auf die RT in den Fluren. Das konnte ich aber verschmerzen ;-)
    Hier bei uns kämpft man tatsächlich um jeden cm. Wir haben als Raumhöhe ab FFB wie gesagt 243cm und dabei alles was möglich war an Raum- und Gebäudehöhe rausgeholt.
    Bei 243cm schmerzt jeder weitere cm und wenn ich jetzt die Decke noch 7-10cm (inkl. GK) abhänge dann schmerzt das wirklich sehr (ich bin mir gar nicht mehr sicher, was in Bayern Mindesthöhe Wohnraum ist. ich denke 240, oder doch 230? muss nachschauen)

    @ rolf a i b: das heißt, Du lehnst also auch jegliche Art der Lüftungsverrohrung IN der Betondecke ab? Da kommt man nämlich auch nicht mehr an das Rohr ran. Da wirst Du in nächster Zeit nicht mehr viele EFH bauen...
    Wobei mir immer noch schleierhaft ist, wieso man an die Rohre an sich ransollte. Reinigen (falls das wirklich mal einer will) kann man sie von jedem Ventil bzw. Verteiler ab. Also warum sollte ich da an das Rohr ran müssen?
    Ich kapiers nicht...
     
  15. #55 Thomas B, 08.05.2013
    Thomas B

    Thomas B

    Dabei seit:
    17.08.2005
    Beiträge:
    11.181
    Zustimmungen:
    4
    Beruf:
    Dipl.Ing.
    Bayern (große Menschen...titanisch...herkuleisch....Männereben): 2,40 m
    Baden - Württemberg (kleinwüchsig, gramgebeugt, verdrießlich dreinblickend, "bruttlerisch"): 2,30 m

    Berlin und Konsorten: 2,50 m! (liegt aber mE daran, daß es da sehr viel merkwürdig Gekleidete (Avantgarde?) gibt, die auf High Heels daherkommen....ist nur so eine These...könnte stimmen....)
     
  16. #56 Gast56083, 08.05.2013
    Gast56083

    Gast56083 Gast

    ne, die in Berlin haben mehr Platz nach oben 35m ü. NN vs. München 515m. In Stuttgart haben sie die Bernhartshöhe genommen bei 549m ;-)....
     
  17. #57 Gast036816, 08.05.2013
    Gast036816

    Gast036816 Gast

    z. b. in der Motzstrasse? da haben die meisten wohnungen 3,50 m.

    Zellstoff - es gibt nicht nur einfamilienhäuser, in denen lüftung verbaut wird. in größeren gebäuden ist das thema lüftungsbau etwas anspruchsvoller. da kommt auch niemand auf die idee, die lüftung irgendwo einzubetonieren oder unterm estrich zu verstecken. der eine oder andere wird noch fluchen, die lüftung in die decke oder unter den estrich gepackt zu haben. zeig mir mal ein bauwerk, wo man nicht in der technik-lebensdauer von 25 jahren an die gebäudetechnik ran musste!

    wenn man bei 2,43 m im lichten rauskommt, hat bestimmt einer etwas in der planung etwas falsch gemacht. dir fehlen einfach mal 7 cm. ich schätze in deiner baugesuchsunterlage ist bestimmt 2,50 m lichte raumhöhe drin.
     
  18. #58 feelfree, 08.05.2013
    feelfree

    feelfree Gast

    Hmm. Sind bei deinen geplanten EFH Wasser-, Abwasser-, Strom-, Netzwerk-, Koax-, Heizungs- und WasWeißIch-Leitungen alle auswechselbar bzw. revisionierbar? Dann Glückwunsch. Ansonsten sehe ich da bei Lüftungen nur noch eine Leitung mehr, die einbetoniert wird. Es macht es natürlich nicht besser, aber auch nicht wirklich schlechter.
     
  19. Jan81

    Jan81

    Dabei seit:
    08.03.2009
    Beiträge:
    2.844
    Zustimmungen:
    1
    Beruf:
    Fachinformatiker
    Ort:
    Sarstedt
    so sieht es leider aus. Nur das Strom oder Netzwerk kabel muss man nicht putzen :D
     
  20. #60 feelfree, 08.05.2013
    feelfree

    feelfree Gast

    Wenn ich das Lüftungsrohr putzen will/muss: Welchen Unterschied macht es da, ob es ab der Auslassöffnung unter der abgehängten Decke läuft oder in der Decke?

    Putztechnisch denke ich übrigens, dass runde Flexrohre in der Betondecke da viel einfacher zu reinigen sind als Flachkanäle unterm Estrich, die irgendwo um die Ecke gehen.
     
Thema: Lüftungkanäle, wohin damit ?
Besucher kamen mit folgenden Suchen
  1. plan lüftung

Die Seite wird geladen...

Lüftungkanäle, wohin damit ? - Ähnliche Themen

  1. Schwimmende Verlegung in Küche - Bis wohin Trittschalldämmung?

    Schwimmende Verlegung in Küche - Bis wohin Trittschalldämmung?: Hallo, wir planen aktuell, in unserer Küche den Fußboden schwimmend zu verlegen. Das heißt, wir würden erst die Küchenmöbel reinstellen und...
  2. Thermische Ablaufsicherung wohin ableiten?

    Thermische Ablaufsicherung wohin ableiten?: Hallo Leute, ich hab ne kurze Frage zur thermischen Ablaufsicherung. Ich hab dazu schon mal dieses Thema hier gefunden... Ableitung für...
  3. Keller-/Nebeneingangstüre wohin, wie Wärmedämmung

    Keller-/Nebeneingangstüre wohin, wie Wärmedämmung: 1
  4. Terrassenplatten - wohin bestenfalls Gefälle ausrichten?

    Terrassenplatten - wohin bestenfalls Gefälle ausrichten?: Hallo zusammen, wir möchten demnächst Terrassenplatten um unser Haus legen. Wie ich das Gefälle am besten ausrichte, bereitet mir Kopfzerbrechen...
  5. Wohin mit LED-Netzteil in Decke?

    Wohin mit LED-Netzteil in Decke?: Hallo wir wollen im Badezimmer in die Decke LED-Trockenbauprofile einbringen. Die Decke ist momentan noch komplett offen. Wie im Bild zusehen ist,...