Machbarkeit Bad/Küche tauschen + insgesamt Kosten

Diskutiere Machbarkeit Bad/Küche tauschen + insgesamt Kosten im Sanierungskonzept & Kostenschätzung Forum im Bereich Altbau; Hallo, ich würde meiner Freundin und mir gerne unsere erste Wohnung kaufen in Berlin. Hier der Ist-Zustand. Rot ist die Toilette und Blau die...

Status des Themas:
Es sind keine weiteren Antworten möglich.
  1. #1 UnsereersteWohnung, 23.07.2021
    Zuletzt bearbeitet: 23.07.2021
    UnsereersteWohnung

    UnsereersteWohnung

    Dabei seit:
    23.07.2021
    Beiträge:
    8
    Zustimmungen:
    0
    Hallo,


    ich würde meiner Freundin und mir gerne unsere erste Wohnung kaufen in Berlin.
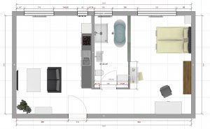
    Hier der Ist-Zustand. Rot ist die Toilette und Blau die Badewanne


    [​IMG]

    So soll es ca nach der Renovierung aussehen:

    [​IMG]


    1. Ist das machbar? Die Steigleitungen sind ja zu erkennen. Kann man den Ablauf der Toilette verlegen, der ist noch freiliegend, sprich nicht in der Wand. Würde ein Hänge WC einbauen wollen.
    2. Die zweite Frage, die entfernten Wände sind alle nicht tragend? Ich habe mir auch die Stockwerke unter und darüber angesehen, die Wände sind verschieden, sprich bin mir ziemlich sicher, dass sie nicht tragend sind. Nur die eine mittlere Wand mit den Anschlüsse.
    3. Kosten plane ich mit ca 500€/qm. bei ca. 60m² = 30.000,00€
    Planen würde ich alles selbst. Und Materialien auch selbst beschaffen
     

    Anhänge:

  2. Alex88

    Alex88
    Moderator

    Dabei seit:
    14.10.2014
    Beiträge:
    6.602
    Zustimmungen:
    3.565
    Beruf:
    GF, Kaufmann, Trockenbaumeister
    Ok, wenn du das kannst
    wer baut die dann ein?
     
  3. #3 klappradl, 23.07.2021
    klappradl

    klappradl

    Dabei seit:
    10.02.2021
    Beiträge:
    2.050
    Zustimmungen:
    879
    Beruf:
    Abfallentsorgung
    Ort:
    Düsseldorf
    Vieles ist machbar, sogar Bilder einstellen. Hier hat es aber leider nicht funktioniert.

    PS: Oder ich kann sie nicht sehen, weil sie blockiert werden?
     
  4. #4 UnsereersteWohnung, 23.07.2021
    UnsereersteWohnung

    UnsereersteWohnung

    Dabei seit:
    23.07.2021
    Beiträge:
    8
    Zustimmungen:
    0
    Naja ich bin technischer Leiter bei einem Elektronikhersteller, ist jetzt nicht das gleiche Gebiet, aber ich traue mir das zu.

    Elektronik lasse ich machen, da gebe ich nur die Anzahl und Platzierung der Elemente vor.

    Wer die einbaut muss ich noch schauen, ggf. suche ich ein Unternehmen aus Osteuropa, Polen ist ja in der Nähe. Aus dem Grund würde ich auch die Materialien selbst beschaffen, da weiß ich dann auch, dass nicht irgend ein Schrott genommen wird.
     
  5. #5 UnsereersteWohnung, 23.07.2021
    UnsereersteWohnung

    UnsereersteWohnung

    Dabei seit:
    23.07.2021
    Beiträge:
    8
    Zustimmungen:
    0
    ach sorry, da wurden die links entfernt, da ich noch neu in dem Forum bin
     

    Anhänge:

  6. #6 K a t j a, 23.07.2021
    K a t j a

    K a t j a

    Dabei seit:
    31.05.2019
    Beiträge:
    1.009
    Zustimmungen:
    582
    Ort:
    Leipziger Land
    Was und ob die Wände tragen, muss der Statiker Dir sagen. Den Plan finde ich aber auch so nicht ausgereift. Das Bad ist schlicht eine Katatstrophe und das man keine Tür ins Schlafzimmer hat, ist ab 2 Personen eine blöde Idee.
     
  7. #7 UnsereersteWohnung, 23.07.2021
    UnsereersteWohnung

    UnsereersteWohnung

    Dabei seit:
    23.07.2021
    Beiträge:
    8
    Zustimmungen:
    0

    Das ist eine 10 min Skizze, ins Detail kann man ja immer noch gehen.

    Mit dem kostenlosen Tool lassen sich nicht Badelemente einplanen, in real wird das anders aussehen. Und die Waschmaschine verschwindet in einen Wandschrank.

    Aber darum geht es ja nicht.

    Und ob da jetzt noch eine Tür rein soll oder nicht, werden wir sehen. Auf die Kosten kommt es dann auch nicht mehr an.
     
  8. #8 Fred Astair, 23.07.2021
    Zuletzt von einem Moderator bearbeitet: 23.07.2021
    Fred Astair

    Fred Astair

    Dabei seit:
    02.07.2016
    Beiträge:
    12.644
    Zustimmungen:
    6.513
    Beruf:
    Tänzer
    Ort:
    San Bernardino
    Quasi das, was Du am Besten nicht kannst. Darum bist Du hier.
    Das und der fliesenlegende Installateurhausmeister garantieren vollen Erfolg.
    Du sollst ja auch keine Links sondern Bilder posten.

    Das kostenlose Tool "karierter Block - Lineal - Bleistift" kann jeder bedienen.

    Ich merke mir den Faden schon mal vor. Verspricht sehr unterhaltsam zu werden.
     
  9. #9 UnsereersteWohnung, 23.07.2021
    UnsereersteWohnung

    UnsereersteWohnung

    Dabei seit:
    23.07.2021
    Beiträge:
    8
    Zustimmungen:
    0

    Was sind denn hier für Leute unterwegs ...

    Brauchst doch nicht persönlich werden.

    Bilder kann man auch über einen externen Link posten

    Rassismus kannst du in deinen 4 Wänden lassen.
    Warum sollten die Handwerker aus Osteuropa schlechter sein. Man muss halt nur alles kontrollieren.


    Und willkommen im 21 Jahrhundert, Zeit ist Geld, hier zieht man 3D Software einen Block mit Lineal und Bleistift vor.


    Gibt es hier auch Leute, die wirklich mir helfen wollen?
    Oder nur Architekten oder Statiker denen bei Eigenplanung das Geld wegrennt. So macht es den Anschein.
     
  10. Alex88

    Alex88
    Moderator

    Dabei seit:
    14.10.2014
    Beiträge:
    6.602
    Zustimmungen:
    3.565
    Beruf:
    GF, Kaufmann, Trockenbaumeister
    ich bezweifle nicht, dass du in deinem Job gut bist, aber eine Bauplanung hat mit Elektronik sehr wenig zu tun....
    wenn man Ahnung von Planung, Vorschriften, Normen etc. hat mag das funktionieren, ich will dich nicht entmutigen, aber stell dir das nicht so einfach vor,
    das beginnt schon bei der Materialauswahl
    ja, mancher drückt das halt etwas rüde aus
    die wenigsten hier sind mit ihrem Klarnamen angemeldet, so dass Kundenaquise nicht möglich ist
     
  11. #11 UnsereersteWohnung, 23.07.2021
    UnsereersteWohnung

    UnsereersteWohnung

    Dabei seit:
    23.07.2021
    Beiträge:
    8
    Zustimmungen:
    0
    Das stimmt, aber Planen ist mit eine Hauptaufgabe.

    Ich denke schon, dass es einfach ist, wenn man sich die Zeit nimmt und sich informiert. Ich entwickele ja jetzt nicht alleine ein neues Iphone.

    Schon klar, dass ich vll. nicht jeden Holzboden in einem Bad legen sollte, dass das Bad im besten Fall eine Entlüftung haben sollte, mansche Materialien besonders geeignet sind, da sie zum Beispiel Feuchtigkeit speichern und später wieder abgeben ... usw.

    In meinen Beruf gehört es dazu an alles zu denken. Ich würde das schon Step by Step abarbeiten und mich zu jedem Thema, z.B. Böden, Fließen, Wände, Decken usw. ausgiebig informieren.


    Möchte es halt vermeiden, Geld für einen Architekten auszugeben. Gerade weil ich denke, dass das auch Spaß macht, es selbst zu machen.
     
  12. #12 simon84, 23.07.2021
    Zuletzt bearbeitet: 23.07.2021
    simon84

    simon84
    Moderator

    Dabei seit:
    11.11.2012
    Beiträge:
    23.247
    Zustimmungen:
    6.890
    Beruf:
    Schrauber
    Ort:
    Muenchen
    Wie gut kannst du denn die Sprache der Ausländer ? Die Bauleitung vor Ort wäre das wichtigste sowie die fehlende Planung.

    ob es ein Ausländer oder ein Deutscher ist spielt keine Rolle. Das hab ich oben mal entfernt @Fred Astair

    so wie das aktuell planst geht das mit jedem Handwerker betrieb schief !

    du brauchst einen Planer sprich Architekt oder Ähnliches.

    mag ja sein dass du Elektronik Projekte planen kannst aber eine Renovierung / Umbau definitiv nicht, das zeigt der Beitrag . Ist ja auch kein Beinbruch
     
  13. #13 simon84, 23.07.2021
    simon84

    simon84
    Moderator

    Dabei seit:
    11.11.2012
    Beiträge:
    23.247
    Zustimmungen:
    6.890
    Beruf:
    Schrauber
    Ort:
    Muenchen
    gerade wenn das dein Beruf ist solltest du doch verstehen wie wichtig das ist ! Da fehlt jahrelange Erfahrung

    warum bezahlen deine Kunden / deine Firma dich wenn es doch jeder selber kann nach einem thread in einem
    Forum ?
     
  14. #14 UnsereersteWohnung, 23.07.2021
    UnsereersteWohnung

    UnsereersteWohnung

    Dabei seit:
    23.07.2021
    Beiträge:
    8
    Zustimmungen:
    0

    Nichts für ungut, aber zum Beispiel ein iPhone entwickeln, mit allem was dazu gehört ist doch wohl etwas komplexer als eine Wohnung nach der Kernsanierung zu planen.
    Ich lasse mich gerne belehren, was macht es denn kompliziert? Was übersehe ich denn?

    Die können auch Deutsch. Ein Arbeitskollege hat mir da eine Firma empfohlen, die hatten auch viel in dem Haus seiner Schwester gemacht.
     
  15. BaUT

    BaUT

    Dabei seit:
    30.10.2019
    Beiträge:
    9.018
    Zustimmungen:
    5.637
    Beruf:
    Baufacharbeiter und Dipl.-Ing. Hochbau
    Ort:
    Berlin
    Benutzertitelzusatz:
    Erklärbär
    Hilfsweise - Mausklick rechts - "Bild in neuem Tab öffnen"
     
    UnsereersteWohnung gefällt das.
  16. #16 K a t j a, 23.07.2021
    K a t j a

    K a t j a

    Dabei seit:
    31.05.2019
    Beiträge:
    1.009
    Zustimmungen:
    582
    Ort:
    Leipziger Land
    Machbar ist vieles. Denkbar wäre ein Wanddurchbruch für das WC-Rohr und auf der WZ-Seite eine Vorsatzwand. Dahinter könnte dann auch gleich die Elektrik und Wasserleitungen für die Küche verschwinden und natürlich das WC-Rohr.
    Hier hilft nur der Fachmann. Wenn Du was wegreißt und das Haus fällt ein, wirst Du nie wieder glücklich im Leben.
    Zu wenig. Neues Bad ca. 10K, eher 15K wenn es noch Handwerker braucht. Rohre verlegen, Leitungen, Böden, Wände, Elektrik, Malern, Entsorgung - ich schätze 50K mit Eigenleistung.
    Handwerker sind meist schlecht motiviert, wenn sie nicht ihr Material mitbringen können.
     
    simon84 gefällt das.
  17. #17 simon84, 23.07.2021
    simon84

    simon84
    Moderator

    Dabei seit:
    11.11.2012
    Beiträge:
    23.247
    Zustimmungen:
    6.890
    Beruf:
    Schrauber
    Ort:
    Muenchen
    Das hat nichts mit Komplexität zu tun. Sondern mit Kenntnis der Prozesse, Abläufe, Erfahrung usw.
    Nicht umsonst ist ein Architekturstudium lange (ich bin selber KEIN Architekt!!) und es trifft auch eine bestimmte Zielgruppe mit einer Mischung von Interessen an Nutzbarkeit, Ästhethik und Technik !

    Wenn du mal ne Stunde Zeit hast, schau dir die Reportage an:



    Sind ja auch nur Hüte ! Trotzdem kann ich es nicht ! Egal ob ich einen Dipl Ing Fahrzeugtechnik oder einen MSc habe !

    Das ist wirklich überhaupt nicht als Wertung gemeint, aber der Eingangsbeitrag mit der Frage und dem Grundriss ist so grottenschlecht, du hast doch keine 2 Jahre Zeit das zu Lernen und Erfahrungen zu sammeln, sondern du willst eine Wohnung sanieren und umbauen !
    Üben tut man am besten mit den Wohnungen anderer Leute und nicht der Eigenen ;)

    Wo du aber gut getroffen hast ist die Kostenschätzung. 500-1000 EUR /qm ist eine gute Hausnummer mit der man immer was machen kann.
     
  18. #18 Fred Astair, 23.07.2021
    Fred Astair

    Fred Astair

    Dabei seit:
    02.07.2016
    Beiträge:
    12.644
    Zustimmungen:
    6.513
    Beruf:
    Tänzer
    Ort:
    San Bernardino
    Wo war ich persönlich? Habe nur Fragen gestellt.
    Btw, wer brauchen ohne zu gebraucht, braucht brauchen gar nicht zu gebrauchen.
    Wenn man möchte, dass seine Bilder gesehen werden, dann postet man sie hier.
    Das hat nichts mit Handwerkern aus Osteuropa zu tun, sondern mit überheblichen Sparfüchsen, die sich postkolonialistisch geben und alles billig und noch billiger wollen. Lass mich raten: Bezahlung erfolgt BAK?

    Für eine Aufgabe, die vielleicht einmal in zehn Jahren vorkommt, reicht das allemal und muss nicht mit "blau ist das Klo und grün ist die Wanne" erklärt werden. Profis benutzen schon CAD, aber die können es dann auch.
    Planen ist erstmal losgelöst vom Fachgebiet keine Kategorie. Selbst verantwortungsvolle Architekten lassen die Finger von Statik, Elektrik, Heizung, Sanitär uswusf.
    Du aber wirfst Dich in die Beust und tönst:
    Wieviele Jahre willst Dir Zeit nehmen, fünf Berufe zu erlernen?

    Schon gut Simon, Dir kann kann man nichts übelnehmen. :)
    Dann entferne aber bitte auch Deinen Verweis auf eine slawische Fremdsprache:
     
    simon84 gefällt das.
  19. BaUT

    BaUT

    Dabei seit:
    30.10.2019
    Beiträge:
    9.018
    Zustimmungen:
    5.637
    Beruf:
    Baufacharbeiter und Dipl.-Ing. Hochbau
    Ort:
    Berlin
    Benutzertitelzusatz:
    Erklärbär
    Oh - wieder so ein Juppi der zur Abwehr von Fremdmeinungen auf der Cancel-Culture-Welle daher schippert.

    Zur Sache:
    Klar kann man deine Ideen umsetzen.
    Für den Fachmann wäre da noch interessant ob es sich um einen Berliner Altbau mit Holzbalkendecke oder um einen Nachkriegsbau mit Massivdecke handelt und wie die Installationsschächte ausgebildet sind. Zu deinen Umbauten musst du dann leider auch an die Schächte und evtl. auch an die Decken ran und damit greifst du dann ins Gemeinschaftseigentum ein. Du musst das ganze also auch vorab mit der Hausverwaltung klären und es kann sein, dass die WEG gerne einen ordentlichen Bauleiter benannt haben möchte, der für die korrekte Ausführung garantiert.

    Bedenke:
    - Badabdichtung nach DIN 18534
    - Brandschutz der Wohnungstrenndecke bzw. der Schachtsituation
    - uvm.

    Die Objekte und Fliesen kannst du mit deiner Freundin zusammen sicher am besten aussuchen aber: Ich bin mir jetzt unsicher ob ich dir (Baulaie =/= Bauleiter) die Planung und Bauleitung bzgl. o. g. Punkte zutrauen sollte und ob der polnische wir-machen-alles-Trockenbau-Fliesenleger-Istallateur-Handwerker dir da eine ausreichende Unterstützung ist.

    Vielleicht solltest du ja bei einem solchen kompletten Badumbau doch lieber auf einen ordentlichen deutschen Meisterbetrieb zurück greifen. Der sollte zumindest die Fachregeln seines Handwerks kennen und berücksichtigen.
     
    K a t j a und Fred Astair gefällt das.
  20. #20 UnsereersteWohnung, 23.07.2021
    UnsereersteWohnung

    UnsereersteWohnung

    Dabei seit:
    23.07.2021
    Beiträge:
    8
    Zustimmungen:
    0
    Ist aber ein schlechter Vergleich.

    Klar, dass diese Hutmacher Jahre brauchen um das zu können. Aber hier geht es nicht darum, irgendein Handwerk in 1 Woche zu meistern.

    Sondern einfach paar Materialien auszuwählen, sich über die Rechte zu informieren was ich ohne Genehmigungen machen darf und was ich beantragen muss, und alles Andere wird die Firma schon mit mir besprechen. Wie ich was haben möchte.

    Im Studium sagte man ja auch nicht ohne Grund, wenn du was auf dem Kasten hast geh in die freie Wirtschaft, nur wenn echtes Interesse besteht, oder du nicht gut genug ist, geht es ins Bauwesen, dort verdient man nichts.


    Ich werde es einfach wagen, Geld habe ich ja genug, wenn es schief geht, habe ich was dazu gelernt und bin eine Erfahrung reicher.
     
Thema:

Machbarkeit Bad/Küche tauschen + insgesamt Kosten

Die Seite wird geladen...

Machbarkeit Bad/Küche tauschen + insgesamt Kosten - Ähnliche Themen

  1. Sanierung EFH (Massivbau): Machbarkeits-Check Dachausbau (4 Zimmer + Bad) – Entwurf & Statik-Fragen

    Sanierung EFH (Massivbau): Machbarkeits-Check Dachausbau (4 Zimmer + Bad) – Entwurf & Statik-Fragen: [ATTACH] Hallo zusammen, wir sind frischgebackene Hausbesitzer und planen aktuell die Kernsanierung unseres Einfamilienhauses (Außenmaße ca....
  2. Seitenteil an der Haustür nachrüsten. Machbar?

    Seitenteil an der Haustür nachrüsten. Machbar?: Hallo allerseids, ich bin Christoph aus Schweich an der Mosel :) Vor einigen Jahren haben wir uns ein Eigenheim gekauft, welches wir, so wie wir...
  3. Dämmen im Winter, jetzt noch bedenkenlos machbar?

    Dämmen im Winter, jetzt noch bedenkenlos machbar?: Hallo zusammen, leider hat sich die Sanierung meines Hauses in die Länge gezogen, weshalb wir erst jetzt soweit sind, die Fassade zu dämmen....
  4. Sauna im Nebengebäude ohne weiteres machbar?

    Sauna im Nebengebäude ohne weiteres machbar?: Hallo miteinander, sagt mal wenn ich in ein verfahrensfreies Nebengebäude, welches bislang als Schuppen diente eine Sauna einbaue möchte, dann...
  5. Kampa Fertighaus 1974 machbar oder weglaufen?

    Kampa Fertighaus 1974 machbar oder weglaufen?: Guten Morgen zusammen, uns wurde ein Fertighaus von Kampa angeboten. Baujahr 1974. Den Typ habe ich nicht nicht bekommen. Uns gefällt die Lage...
Status des Themas:
Es sind keine weiteren Antworten möglich.