Mein erstes Haus

Diskutiere Mein erstes Haus im Mein Hausbau Forum im Bereich Rund um den Bau; Hallo zusammen, vor 8 Monaten habe ich mein erstes Haus (Bj 1910 - Erweiterung/Umbau 1984 und 1999) erworben. Wie den meisten hier: es gibt viel...

  1. #1 cmyk61, 09.02.2018
    Zuletzt bearbeitet: 09.02.2018
    cmyk61

    cmyk61

    Dabei seit:
    09.02.2018
    Beiträge:
    9
    Zustimmungen:
    0
    Beruf:
    Elektroniker
    Ort:
    Edenkoben
    Hallo zusammen,

    vor 8 Monaten habe ich mein erstes Haus (Bj 1910 - Erweiterung/Umbau 1984 und 1999) erworben.
    Wie den meisten hier: es gibt viel zu tun, packen wir es an.
    Aber bei manchen DIngen benötige ich Infos die mir zunächst nicht mehr zugänglich sind:
    Es gibt keine Infos mehr, welche Handwerker hier tätig waren UND vor allem welche Bauteile welcher Hersteller verwendet wurden.

    Am brennensten die Frage: wer ist der Hersteller der Fenster und der Rolladenkästen?
    Es kommen zwei Sorten Fenster zum Einsatz: Alufenster (Doppelt verglast) und Kunststofffenster, ebenfalls doppelt verglast.
    Bei der ersten Durchsicht konnte ich lediglich an den Kunststofffenstern den Schriftzug von REHAU entdecken. AN den Alufenstern bisher noch nichts. Auch zu den Mechaniken (keine Rund- oder Pilzköpfe) fand ich bisher keine Infos)

    EDIT: bücken tat Not - Beschlag war von ROTO - GR2065/2MV 2001-2200 - aber das Netz gab bisher noch keine erweiterten Infos her: Justieranweisung /Ersatzteilliste. Ich habe den leisen Verdacht, dass es da unterschiedliche Varianten gibt.

    Aber vielleicht könnt ihr mir weiter helfen? Welche Details der Fenster und der Rolladenkästen soll ich fotografieren und hier einstellen, dass eine Identifikation zum Erfolg führt?
    Bei den Fenstern und Türen stehen Justiermaßnahmen (insbesondere die Balkontüren lassen sich nicht richtig verriegeln - der Griff steht nicht senkrecht) an und bei den Rolladenkästen Dämmung und ggf Gurt und Panzertausch.

    Die zweite Sache ist der Dachstuhl. Zwei unterschiedliche Konstruktionen zu denen ich ein paar Infos benötige, zumal ich mich mit dem Gedanken Dachdämmung (Außendämmung) und Austausch der Dachfenster auseinander setzen muss. Wo und wer kann mir hier im Forum ein paar Tips (Links) geben? Welche Fotos und Zeichungen wären zielführend?

    Gruß
    Ralf
     
  2. am1003

    am1003

    Dabei seit:
    30.11.2015
    Beiträge:
    1.678
    Zustimmungen:
    412
    Beruf:
    Installateur
    Ort:
    Spreenhagen, Brandenburg
    Mache doch mal ein paar Fotos und Stelle sie hier ein.
     
  3. #3 Mondkatze85, 05.04.2018
    Mondkatze85

    Mondkatze85

    Dabei seit:
    05.04.2018
    Beiträge:
    1
    Zustimmungen:
    0
    Ich würde auch gern ein paar Bilder sehen :)

    Zum Thema Dachstuhl: Ein paar konkrete Informationen wären gut!
     
  4. cmyk61

    cmyk61

    Dabei seit:
    09.02.2018
    Beiträge:
    9
    Zustimmungen:
    0
    Beruf:
    Elektroniker
    Ort:
    Edenkoben
    Hier die ersten Bilder des Dachstuhls.
    Dir Mauerrisse sind außen nicht zu sehen - also arbeitet die Wand nicht mehr. Allerdings sind an anderen Bereichen Risse (Setzungsrisse?) im Putz zu sehen. Die sehen jedoch nicht so dramatisch aus.
    Dieser Gebäudeteil ist der älteste des Hauses und war ursprünglich mal eine Schlosserei.
    1982 wurde umgebaut und erweitert und ein Zahnlabor zog ein. 1992 gab es eine Nutzungsänderung in kombinierten Wohnraum/Gewerberaum, es wurde aufgestockt und abermals angebaut.
    Pläne folgen...
    Da Dämmmaßnahmen nur unvollständig und diletantisch erfolgten, hatten wir uns entschlossen den Dachbereich des ältesten Gebäudeteils teilweise zu entkernen um ordentlich zu dämmen und die Dachflächenfenster zu erneuern. Ich habe weitestgehend den alten, sandenden Putz entfernt (auf den Bildern ist der Stand noch MIT Putz) und werde die Ziegelwände ausbessern und verputzen. Da dies mein erstes derartiges Projekt ist benötige ich hin und wieder mal fachlichen Rat.
    Die Dämmung möchte ich als Aufsparrendämmung (noch keine Entscheidung für ein System getroffen) ausführen - die Sparren sollen innen sichtbar bleiben. Die Dachziegel sind zwar noch in Ordnung aber ich gehe mal davon aus, dass die in den nächsten 10-20 Jahren fällig sind. Wenn ich schon am Dach bin, dann kommen gleich neue Ziegel etc drauf.
    Ehe ich den Putz aufbringe möchte ich die Risse im Kniestock angehen. Da außen keine Risse zu sehen sind, gehe ich davon aus, dass hier nichts mehr wesentlich arbeitet. Aber ich möchte vorbeugen und auch ein paar Tips zur Dachkonstruktion erfragen. Vor allem die Sparren und diverse Details sind mir unklar. Auch zB die Anschlüsse.
    Ach ja, ich möchte so viel wie möglich selbst machen. Zeit habe ich, handwerkliches Geschick auch - und auch Helfer die ihrerseits schon ähnliche Projekte erfolgreich durchgeführt haben. Bei kritischen Bauteilen hole ich mir Fachleute - logisch. Immerhin haben alle Handwerker ihren Beruf mal gelernt. Und ich lerne gerne.
    Gruß
    Ralf
     

    Anhänge:

  5. cmyk61

    cmyk61

    Dabei seit:
    09.02.2018
    Beiträge:
    9
    Zustimmungen:
    0
    Beruf:
    Elektroniker
    Ort:
    Edenkoben
    Hier der nächste Schwung Bilder
     

    Anhänge:

  6. cmyk61

    cmyk61

    Dabei seit:
    09.02.2018
    Beiträge:
    9
    Zustimmungen:
    0
    Beruf:
    Elektroniker
    Ort:
    Edenkoben
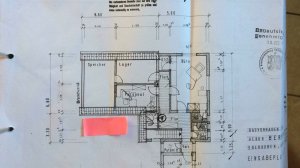
    Und hier die Pläne aus 1980. Der älteste Gebäudeteil ist auf den Bildern 01 und 02 der linke. Im Bild 06 ist der Schnitt dieses Teils zu sehen - klar.
     

    Anhänge:

  7. #7 Bauer85, 06.04.2018
    Bauer85

    Bauer85

    Dabei seit:
    03.01.2014
    Beiträge:
    149
    Zustimmungen:
    57
    Beruf:
    Chemiker
    Ort:
    Wien
    Über der losgelösten Zwischenwand aus deren "Detail 1", sieht das nur für mich so aus oder ist der Zapfen vom horizontalen Balken zur Fußpfette schon fast komplett ausgezogen?
    Die Risse im Kniestock sind auch nicht gerade klein.
    Hat die Gesamtsituation schonmal ein Statiker gesehen und beurteilt?

    Seit dem letzten Verputzen oder Anmalen, das kann sich mit den nächsten nennenswerten Erschütterungen aus Straßen-, Leitungs-, oder Nachbarhausbau, je nach Boden auch Verschiebungen des Grundwasserspiegels usw usf. ganz rasch ändern.
    Wie ist das Gebäude worauf gegründet?

    Welche Bereiche?

    Wie sieht das Bindemittel der alten Wände aus, gut und fest oder sandet es auch schon merklich bzw. lässt sich ohne Mühe leicht auskratzen?
     
  8. cmyk61

    cmyk61

    Dabei seit:
    09.02.2018
    Beiträge:
    9
    Zustimmungen:
    0
    Beruf:
    Elektroniker
    Ort:
    Edenkoben
    Hallo Bauer85,
    ich hatte zwei befreundete Architekten hier. Einer riet mir die vorhandene Situation an den Fußpfetten mit Hilfe von 24er Gewindestäben mit angeschweisster 50cm Lasche zu stabilisieren. Die Zapfen sind jeweils 5cm herausgezogen und stecken noch ca. 2,5-3,0cm in der Pfette. Einen Statiker habe ich noch nicht zu Rate gezogen.

    Über die Gründung ist mir nichts konkretes bekannt. Laut vorhandenen Plänen (Plan06) sind das wohl normale Fundamente. Wobei sich der Fußboden auf der linken Seite dieses Planschnitts gesetzt hat - Ich kenne aber (noch) nicht den Fußbodenaufbau. Wasserschaden oder Unterspülung? Keller gibt es keinen und das Gebäude ist leichte Hanglage (untere Ende eines ehemaligen Weinwingert). Wie gut die Drainage ausgeführt ist kann ich auch noch nicht sagen.

    Die Risse befinden sich an den Anschlüssen zum später errichteten Querhauses im Bereich Türsturz. Bilder folgen...

    Das Auskratzer des Mörtels ist nicht ohne Mühe zu bewerkstelligen. Drei Stahlbürsten war schon erforderlich um den Oberflächenputz herunter zu bekommen. Jedoch scheint beim Setzen der Ziegelsteine um 1900 kein besonderer Wert auf Fugenfüllung gelegt worden zu sein. Es gibt einige Stellen der Brandwand, an der ich durch die Fugen Licht sehen kann. Ich habe vor, einen Zementputz als Unterputz aufzubringen und vorher die Löcher mit Zementmörtel (und Ziegelsteinresten zu verfüllen. Oben drauf soll dann ein Gipsputz. Dort wo das Gefach ist, wollte ich mit Streckmetall armieren. Oder gibt es Alternativen? Kann ich die Fußpfetten mit Gasbetonsteinen ummauern, damit die Kniestöcke bis zu den Sparren reichen? Hinweise für die Ausführung? Abstand lassen? Teerpappe zwischenlegen?

    Gruß
    Ralf
     
Thema: Mein erstes Haus
Besucher kamen mit folgenden Suchen
  1. horizontaler riss im kniestock

Die Seite wird geladen...

Mein erstes Haus - Ähnliche Themen

  1. Haus aus 1859, Kosten für eine erste Sanierung

    Haus aus 1859, Kosten für eine erste Sanierung: Hallo, Immobilien im Fränkischen Seenland sind bekanntlich teuer. Wenn ich mir das Haus so anschaue, lohnt sich da ein Kauf überhaupt? Was...
  2. Haus gekauft und erst jetzt liegt Baugrundgutachten vor

    Haus gekauft und erst jetzt liegt Baugrundgutachten vor: Hallo liebe Bauexpertengemeinde, mein erster Beitrag ist gleich ein großes Fragezeichen und ich benötige unbedingt eure Hilfe. Mein Mann...
  3. Erste Grundriss-Idee für unsern Traum vom eigenen Haus

    Erste Grundriss-Idee für unsern Traum vom eigenen Haus: Hallo an Alle! Erstmal ein Guten Morgen in die Runde :winken Ich habe unsere erste Grundriss-Idee eingestellt und würde mich über...
  4. Ausrichtung Haus + Carport auf kleinem Grundstück + erster Grundrissentwurf

    Ausrichtung Haus + Carport auf kleinem Grundstück + erster Grundrissentwurf: Hallo Zusammen, wir haben nach längerer Suche nun ein Grundstück gekauft, welches unseren Vorstellungen in den Punkten Lage, Lichtverhältnisse...
  5. Juhuuu ... das Haus ist fertig! ---> die ersten Risse zeigen sich schon :-(

    Juhuuu ... das Haus ist fertig! ---> die ersten Risse zeigen sich schon :-(: Hallo liebe Bauexperten, mein EFH steht nun kurz vor der Abnahme. Der von mir mit dem Controlling beauftragete Bauingenieur hat mich nun auf...