Meinung zur Innentreppenauswahl

Diskutiere Meinung zur Innentreppenauswahl im Ausbaugewerke Forum im Bereich Neubau; Hallo liebe Forumsmitglieder, unsere Planung zum Innenausbau einer DHH ist in vollen Zügen. Die Treppe ist nun an der Reihe und da wir nicht vom...

  1. bugder

    bugder

    Dabei seit:
    18.11.2021
    Beiträge:
    4
    Zustimmungen:
    0
    Hallo liebe Forumsmitglieder,

    unsere Planung zum Innenausbau einer DHH ist in vollen Zügen. Die Treppe ist nun an der Reihe und da wir nicht vom Fach sind, haben wir ein starkes Interesse an fachkundigen Meinungen.

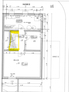
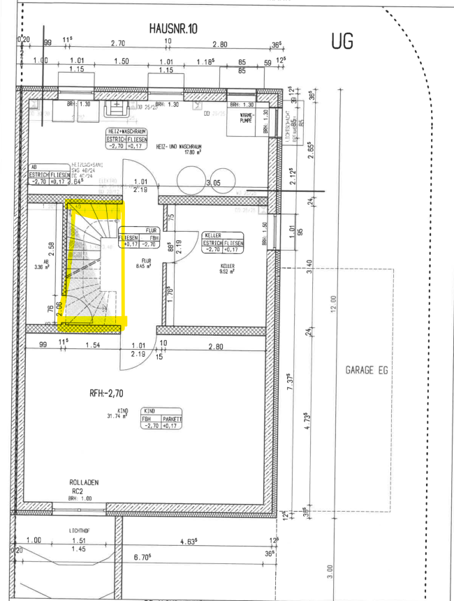
    Grundriss

    Das Treppenwerk ist in der Mitte der DHH geplant. Zwei Treppen erstrecken sich über drei Etagen (Keller, EG, OG). Die Treppe ist 2x1/4-gewendelt eingeplant. Hier der Grundriss der jeweiligen Geschosse.


    ug.png eg.png og.png

    Unsere Anforderung an die Treppenauswahl
    • Die Treppe soll mit Tritt- und Setzstufen ausgestattet sein
    • Wangen oder Holme sollen möglichst wenig sichtbar bis "unsichtbar" sein
    Treppenauswahl

    Zur Auswahl stehen folgende Treppen (und Ideen):
    1. Zweiholmtreppe (Standard). Diese ist im Kaufpreis enthalten.
    2. Aufgesetzte Wangentreppe in Faltwerkoptik mit Geländer. Der Aufpreis beträgt hier ca. 14.000,- für die komplette Treppenanlage. Beispielbilder:
      aufgesetzte_wangentreppe_01.jpg aufgesetzte_wangentreppe_02.jpg
    3. Weitere Idee "Zweiholmtreppe zwischen Wänden" mit LED-Spots an der Wandseite und einseitigem Handlauf. Ähnlich wie in diesen Bildern:
      Zweiholmtreppe_zwischen_waenden_1.jpg Zweiholmtreppe_zwischen_waenden_2.jpg
    4. Weitere Idee "Eingestemmte Wangentreppe zwischen Wänden" mit LED-Spots an der Wandseite und einseitigem Handlauf. Ähnlich wie in diesen Bildern:
      Holztreppe_zwischen_waenden_2.jpg
    Unsere Fragen

    Die Treppenauswahl 1. gefällt uns leider nicht so sehr. Zur Treppenauswahl haben wir nun doch ein paar Fragen:
    1. Zur Treppenauswahl 3:
      Unser Treppenbauer erwähnte in einem kurzen Gespräch, dass eine Zweiholmtreppe mit Setzstufen geräuschvoll sein kann (gelegentliches Knacken). Er empfiehlt bei Setzstufen eher eine Wangentreppe. Ist das so? Hat hier jemand Erfahrungswerte?
    2. Zur Treppenauswahl zwischen Wänden (3. oder 4.):
      Wände lassen bekanntlich weniger Lichteinfall zu. Fällt der Lichtnachteil bei unserem Grundriss schwer ins Gewicht? Sollte man eher Treppenauswahl 2. bevorzugen?
    3. Habt ihr andere Ideen?
     
  2. #2 Fabian Weber, 18.11.2021
    Fabian Weber

    Fabian Weber

    Dabei seit:
    03.04.2018
    Beiträge:
    16.374
    Zustimmungen:
    6.505
    Genau das und die Unterseiten mit Trockenbau verkleiden.
     
  3. #3 Sergius, 18.11.2021
    Sergius

    Sergius

    Dabei seit:
    21.10.2021
    Beiträge:
    384
    Zustimmungen:
    50
    Eingestemmte Wangentreppe ohne Stellbretter.

    Bei 14Tausend muss es sich um einen Schreibfehler handeln. 14hundert wäre als Mehrpreis vertretbar (unter Umständen....)
     
  4. bugder

    bugder

    Dabei seit:
    18.11.2021
    Beiträge:
    4
    Zustimmungen:
    0
    @Fabian Weber Der Treppenbauer meinte, dass bei dieser Konstruktion die Setzstufen "knacken" und Geräusche abgeben können. Hast du damit Erfahrungen?

    @Sergius Leider nein. 14k Aufpreis für zwei aufgesattelte Wangentreppen in Faltwerkoptik. Du meinst mit Stellbrettern die Setzstufen?
     
  5. #5 Sergius, 19.11.2021
    Sergius

    Sergius

    Dabei seit:
    21.10.2021
    Beiträge:
    384
    Zustimmungen:
    50
    Ja Stellbretter = Setzstufen.
    Wir sprechen über Mehr oder Minderpreise bei 466€/Pro Steigung kann es sich nicht um ein Mehrpreis handeln. Um das Geld bekommst du ne Neue Treppe. Beauftrage einen Schreiner oder Zimmermann aus der Region...

    Treppen Junge - Preisliste
     
  6. #6 Sergius, 19.11.2021
    Sergius

    Sergius

    Dabei seit:
    21.10.2021
    Beiträge:
    384
    Zustimmungen:
    50
    Die Eingestemmte Wangentreppe ohne Stellbretter ist für diesen Grundriss sowie Gebäude die optimale Wahl.

    Aufgesattelt und 2/4 gewendelt musst du dir mal ansehen wie die Befestigt wird. Dann Wollt ihr die Treppe Putzen (feucht Wischen) und die Wände sehen nach ein paar Jahren aus wie... Das Knarren ist das geringste Problem. Die Kopffreiheit, der Wandanschluss, die Geländerbefestigung und und und...

    Die Grundrisse machen Stellbretter unnötig.
     
  7. #7 Sergius, 19.11.2021
    Sergius

    Sergius

    Dabei seit:
    21.10.2021
    Beiträge:
    384
    Zustimmungen:
    50
    Als Bilder sieht man geradeläufige Treppen. Aber der Grundriss sieht 2/4 gewendelte Treppen vor.

    Lasst euch mal vom Schreiner Beraten da bekommt ihr mehr für weniger.
     
  8. #8 Fabian Weber, 19.11.2021
    Fabian Weber

    Fabian Weber

    Dabei seit:
    03.04.2018
    Beiträge:
    16.374
    Zustimmungen:
    6.505
    Keine Ahnung wie der darauf kommt. Bisschen knacken wäre mir auch egal. Ich finde Setzstufen schön und habe die auch schon gewandelt gebaut.
     
  9. #9 Sergius, 19.11.2021
    Sergius

    Sergius

    Dabei seit:
    21.10.2021
    Beiträge:
    384
    Zustimmungen:
    50
    Das kommt von der Befestigung der Stufen. Es kann passieren aber dem ist auch einfach abzuhelfen.
     
  10. bugder

    bugder

    Dabei seit:
    18.11.2021
    Beiträge:
    4
    Zustimmungen:
    0
    @Sergius Das finde ich interessant. Was ist das "Problem" bei der Befestigung der Stufen und wie kann man dem abhelfen?
     
  11. #11 Sergius, 19.11.2021
    Sergius

    Sergius

    Dabei seit:
    21.10.2021
    Beiträge:
    384
    Zustimmungen:
    50
    Das Problem ist der Holzschwund.

    Die Stufen werden mit Holzdübel aufgesteckt oder von untern verschraubt (oder beides). Egal wie, die stufen können abgenommen und neu befestigt werden. Das Knarren kann leicht beseitigt werden. Wenn es so weit ist, nimm die Stufe ab oder fotografier bei der Montage die Befestigungspunkte und stell sie hier rein.

    Ist aufjedenfall gar kein Thema worüber ich mir Gedanken machen würde.

    Komplizierter wird es wenn die Pfosten auf den Stufen verschraubt sind und genau diese Stufe knarrt, aber auch machbar...

    Und dann gibst noch die Gewährleistung. Ruf den Schreiner an und der erledigt dass mit ein paar Handgriffen.

    Ich halte nichts von aufgesattelten Treppen. Die Konstruktion gefällt mir nicht.
     
    simon84 und bugder gefällt das.
  12. #12 Fabian Weber, 20.11.2021
    Fabian Weber

    Fabian Weber

    Dabei seit:
    03.04.2018
    Beiträge:
    16.374
    Zustimmungen:
    6.505
    Mach ne Stahl-UK wie auf dem einen Bild.

    Dann erstmal Blindbelag aus Plattenwerkstoff, der auch gleich als Bautreppe genutzt werden kann. Dann zum Schluss nochmal darauf die Winkelstufen kleben, fertig.

    Und von unten Gipskarton.

    Wenn Du willst, dann füllst Du den Hohlraum noch mit Dämmwolle, dann klingt die Treppe nicht so hohl.
     
    bugder und simon84 gefällt das.
  13. #13 Sergius, 20.11.2021
    Sergius

    Sergius

    Dabei seit:
    21.10.2021
    Beiträge:
    384
    Zustimmungen:
    50
    Was ist mit dem Schwingverhalten eine Stahl-Unterkonstruktion?
    Da würde ich die Stahlwangendtreppe noch bevorzugen, wobei der Wandabchluss der Eingestemmten Wangentreppe finde.

    Habt ihr Hunde, Dann würde ich doch über Stellbretter nachdenken.

    Wieso läuft ihr nicht einfach mal ein paar Treppen zur Probe?
     
  14. bugder

    bugder

    Dabei seit:
    18.11.2021
    Beiträge:
    4
    Zustimmungen:
    0
    @Sergius Nein. Hunde haben wir nicht. Warum würdest du keine Stellbretter einbauen? Probelaufen werden wir tun.

    Habt ihr eine Meinung zum Thema Lichteinfall? Klar ist, dass die Wände Licht "schlucken". Aber macht sich das an der Stelle, an der die Treppe eingeplant ist, stark bemerkbar?
     
  15. #15 Sergius, 20.11.2021
    Sergius

    Sergius

    Dabei seit:
    21.10.2021
    Beiträge:
    384
    Zustimmungen:
    50
    Das Ergibt sich aus dem Grundrissen. Erfahrung und Gefühl
     
Thema:

Meinung zur Innentreppenauswahl

Die Seite wird geladen...

Meinung zur Innentreppenauswahl - Ähnliche Themen

  1. Habt ihr Erfahrungen /Meinungen zu digitalen Zwillingen in der Industrie?

    Habt ihr Erfahrungen /Meinungen zu digitalen Zwillingen in der Industrie?: Hallo hallo, kurze Frage, nicht ganz Hauptfokus -> wir bauen bzw. modernisieren gerade bei uns in der Firma einiges um, und dabei hat mir jemand...
  2. Meinungen zu einschaligem Neubau

    Meinungen zu einschaligem Neubau: Hallo zusammen, wir planen nächstes Jahr den Baustart unseres EFH und ich würde gerne eure Einschätzung zu meinem geplanten Bodenplatten- und...
  3. Anhydrit Estrich Meinung

    Anhydrit Estrich Meinung: Hi wir haben Anhydrit Estrich bekommen nun die Frage an einer Stelle denke ich ist es nicht so gut geworden. Macht das hier was? Das ist halt der...
  4. Erhöhung der Türhöhe, gemischte Höhe...eure Meinung

    Erhöhung der Türhöhe, gemischte Höhe...eure Meinung: Hallo Zusammen, Ich renoviere gerade das Haus, inklusive neuem Estrich, Heizung und FBH. Das Haus (BJ 1983) ist mit Innentüren, Haustür und (ich...
  5. 3 Grundrisse - Bitte um Meinungen

    3 Grundrisse - Bitte um Meinungen: Ich würde hiermit gerne eure Meinung zu diesen drei Grundrissen erfragen - Grundriss 1 und 2 berücksichtigen eine spätere Familienplanung, Plan 3...