Montage einer Glasschiebetür

Diskutiere Montage einer Glasschiebetür im Fenster/Türen Forum im Bereich Neubau; Guten Tag zusammen, Ich möchte eine Glasschiebetür in unsere Galerie einbauen (Gewicht ca 75kg). Meine Frage bezieht sich auf die Befestigung...

  1. #1 Hopfi89, 02.12.2020
    Hopfi89

    Hopfi89

    Dabei seit:
    31.01.2020
    Beiträge:
    57
    Zustimmungen:
    1
    Beruf:
    Lfz-Prüfer
    Ort:
    Würzburg
    Guten Tag zusammen,

    Ich möchte eine Glasschiebetür in unsere Galerie einbauen (Gewicht ca 75kg).

    Meine Frage bezieht sich auf die Befestigung über dem Mauerdurchbruch: hat hier Jemand Erfahrungen/ Tipps wegen dem Türsturz was die Befestigung angeht?Die Wand besteht aus WB Porotonstein, sprich als Sturz ist ein Ziegelsturz verbaut.
    Hätte jetzt an 8er oder 10er Nylon Dübel gedacht!?

    Vielen Dank
     

    Anhänge:

  2. #2 simon84, 02.12.2020
    simon84

    simon84
    Moderator

    Dabei seit:
    11.11.2012
    Beiträge:
    23.262
    Zustimmungen:
    6.908
    Beruf:
    Schrauber
    Ort:
    Muenchen
    Kommt auf die Befestigungsleiste an, normalerweise hast du da ja mind 5-6 Bohrungen für die Befestigung und da sehe ich überhaupt keine Probleme dass das nicht hält.
    Würde dann eher die 10er Dübel nehmen

    aber aufpassen dass du keine Elektro Leitung etc. anbohrst
     
  3. Alex88

    Alex88
    Moderator

    Dabei seit:
    14.10.2014
    Beiträge:
    6.608
    Zustimmungen:
    3.572
    Beruf:
    GF, Kaufmann, Trockenbaumeister
    erstens bezweifle ich das Gewicht der Glastüre,
    zweitens wirst du die Laufschiene etwas höher ansetzen müssen als der Türsturz ist,
    so dass du dafür andere Dübel brauchst.
    Ich kann die roten von Hilti empfehlen, die halten garantiert
     
    simon84 gefällt das.
  4. #4 simon84, 02.12.2020
    simon84

    simon84
    Moderator

    Dabei seit:
    11.11.2012
    Beiträge:
    23.262
    Zustimmungen:
    6.908
    Beruf:
    Schrauber
    Ort:
    Muenchen
    genau deshalb meine ich auch aufpassen mit Elektrokabel :)
     
  5. #5 Hopfi89, 08.12.2020
    Hopfi89

    Hopfi89

    Dabei seit:
    31.01.2020
    Beiträge:
    57
    Zustimmungen:
    1
    Beruf:
    Lfz-Prüfer
    Ort:
    Würzburg
    Meint ihr die Tür ist noch schwerer als 75kg?
    Elektroleitungen sind in dem Bereich kein Problem.
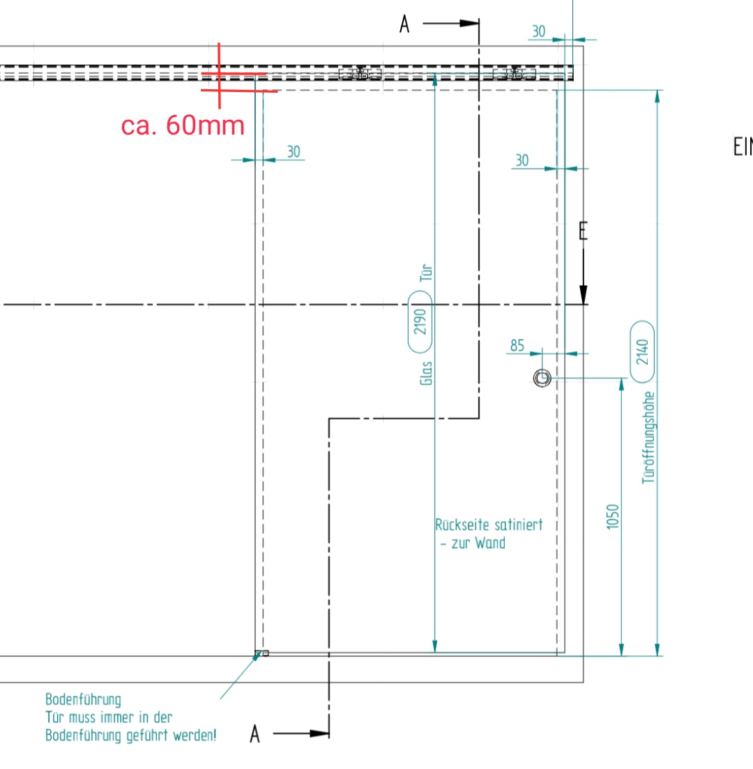
    Ich habe jetzt die technische Zeichnung, daraus würde sich sich ein Abstand zwischen Mitte Bohrung und Kante Türsturz von ca. 6cm ergeben. Vom Bauchgefühl her finde ich das ziemlich wenig... Grad bei 10er Dübeln.
     

    Anhänge:

  6. #6 driver55, 08.12.2020
    driver55

    driver55

    Dabei seit:
    22.02.2008
    Beiträge:
    6.880
    Zustimmungen:
    1.800
    Beruf:
    Dipl.-Ing.
    Ort:
    Pforzheim
    Nein, vermutlich leichter. Was steht denn in den technischen Daten? Wie sind die Abmessungen? 2100 x 1250 x 8 ca. 52 kg
     
  7. Alex88

    Alex88
    Moderator

    Dabei seit:
    14.10.2014
    Beiträge:
    6.608
    Zustimmungen:
    3.572
    Beruf:
    GF, Kaufmann, Trockenbaumeister
    Handelsübliche Glastüren haben i.d.R. 6 mm Stärke, ca. 30 - 35 kg
     
    simon84 gefällt das.
  8. #8 Hopfi89, 08.12.2020
    Hopfi89

    Hopfi89

    Dabei seit:
    31.01.2020
    Beiträge:
    57
    Zustimmungen:
    1
    Beruf:
    Lfz-Prüfer
    Ort:
    Würzburg
    In diesem Fall sind es 10mm ESG.
    Habe es Ausgerechnet, wären dann 68kg.

    Das Problem ist aber auch nicht das Gewicht sondern ob die Dübel den Stein nach unten "sprengen":/
     
Thema:

Montage einer Glasschiebetür

Die Seite wird geladen...

Montage einer Glasschiebetür - Ähnliche Themen

  1. Fachgerechte Montage der Wärmepumpe?

    Fachgerechte Montage der Wärmepumpe?: Hallo zusammen, bei uns wurde kürzlich eine Wärmepumpe installiert (Splitgerät mit Innen- und Außeneinheit von Tecalor), und wir haben Zweifel,...
  2. Zweifel an korrekter RAL-Montage. Berechtigt?

    Zweifel an korrekter RAL-Montage. Berechtigt?: Guten Tag in die Runde! Wir haben heute unsere neuen Holz/Holz-Fenster bekommen. Beauftragt war "Montage nach RAL". Der Fensterbauer hat außen das...
  3. Bei Montage / Austausch von Zaunelementen wie den Zaun fixieren?

    Bei Montage / Austausch von Zaunelementen wie den Zaun fixieren?: Hallo zusammen, um Zaunelemente eines Holzzauns zu auszutauschen, müsste ich um Bandscheibenvorfälle von mir oder Helfern zu vermeiden, das...
  4. Montage der Fensterbänke ok?

    Montage der Fensterbänke ok?: Hi, wir beabsichtigen ein Haus aus 1969 zu erwerben, welches energetisch saniert wurde. Das Haus hat eine Aussendämmung erhalten und neue Fenster...
  5. Kondenswasser auf Außenfensterbänken nach WDVS-Montage

    Kondenswasser auf Außenfensterbänken nach WDVS-Montage: Hallo zusammen, ich fasse mich möglichst kurz: Mein Altbau wurde mit einem WDVS versehen (16cm EPS), in dem Zuge wurden bestehende Fenster...