Müsse Kehlbalken und Sparren verbunden sein?

Diskutiere Müsse Kehlbalken und Sparren verbunden sein? im Dach Forum im Bereich Neubau; Der Zimmerer :hammer: macht morgen weiter.Ich würde den SOFORT stoppen. Und wenn der Architekt in Londonium sitzt, hält der Statistiker dabei...

  1. #21 Ralf Dühlmeyer, 20.04.2010
    Ralf Dühlmeyer

    Ralf Dühlmeyer

    Dabei seit:
    14.06.2005
    Beiträge:
    34.296
    Zustimmungen:
    24
    Beruf:
    Architekt
    Ort:
    Hannover
    Ich würde den SOFORT stoppen.
    Und wenn der Architekt in Londonium sitzt, hält der Statistiker dabei dessen Händchen, steckt der auf den Kanaren oder was ist mit dem????
     
  2. Haus

    Haus

    Dabei seit:
    01.06.2009
    Beiträge:
    29
    Zustimmungen:
    0
    Beruf:
    Industrieelektroniker
    Ort:
    BW
    wie bereits oben geschrieben, der Satiker sagt dass dies so in Ordung ist. Werde auf jedem Fall von Ihm eine neue Berechnung fordern.
    Was aber noch heute dazu kamm ist dass auf einer Seite vom Dach kein Windrispenband montiert wurde da der Schornstein im Weg ist!?

    Grüße
     
  3. PeMu

    PeMu

    Dabei seit:
    13.01.2004
    Beiträge:
    5.635
    Zustimmungen:
    2
    Beruf:
    Bauingenieur
    Ort:
    Kornwestheim
    Benutzertitelzusatz:
    Nachdenken kostet extra.
    Macht nix. Die dargestellte Anordnung des Windrispenbandes gehört eh ins Kuriosotätenkabinett - Geschichten die das Leben schrieb.

    Also weg damit und der Planer bekommt den 2. Versuch die Hütte auszusteifen.
     
  4. #24 Ralf Dühlmeyer, 21.04.2010
    Ralf Dühlmeyer

    Ralf Dühlmeyer

    Dabei seit:
    14.06.2005
    Beiträge:
    34.296
    Zustimmungen:
    24
    Beruf:
    Architekt
    Ort:
    Hannover
    Erst schriftlich nachweisen, dann ausführen!!!!
    Und das mit den DFF und dem Schlot war doch schon in der Zeichnung zu sehen - so what?
     
  5. mls

    mls Bauexpertenforum

    Dabei seit:
    04.10.2002
    Beiträge:
    13.790
    Zustimmungen:
    7
    Beruf:
    twp, bp
    Ort:
    obb, d, oö
    die sind halt als aussteifende elemente angenommen - nachweise bauseits :mega_lol:

    master_of_windrispenband würde sagen: geschlunze ;)

    ich sag, da erkennt man trefflich den Unterschied Statiker - Tragwerkplaner.
     
  6. PeMu

    PeMu

    Dabei seit:
    13.01.2004
    Beiträge:
    5.635
    Zustimmungen:
    2
    Beruf:
    Bauingenieur
    Ort:
    Kornwestheim
    Benutzertitelzusatz:
    Nachdenken kostet extra.
    Upps, zu flüchtig auf den Grundriss gesehen - das Zickzack ist nicht das Windrispenband.
     
  7. #27 Jürgen Jung, 21.04.2010
    Jürgen Jung

    Jürgen Jung

    Dabei seit:
    23.09.2006
    Beiträge:
    2.526
    Zustimmungen:
    2
    Beruf:
    Bauingenieur
    Ort:
    Hannover
    schade um das schöne Holz
     
  8. Haus

    Haus

    Dabei seit:
    01.06.2009
    Beiträge:
    29
    Zustimmungen:
    0
    Beruf:
    Industrieelektroniker
    Ort:
    BW
    und d.h.?
     
  9. #29 Jürgen Jung, 22.04.2010
    Jürgen Jung

    Jürgen Jung

    Dabei seit:
    23.09.2006
    Beiträge:
    2.526
    Zustimmungen:
    2
    Beruf:
    Bauingenieur
    Ort:
    Hannover
    Die Kollegen haben schon alles gesagt, ich meine damit:

    zumindest haben die Ausführenden das richtige Holz genommem, nur davon werden Sie auch nicht glücklicher, denn jetzt wird irgendwo angefrickelt werden, und das Ergebnis wird immer ein Kompromiss werden, den man Ihnen aufschwatzen wird.

    Also folgen Sie dem Rat von z.B. Herrn Dühlmeyer und untersagen Sie die Fortführung der Arbeiten, bis man Ihnen eine vernünftige Lösung präsentiert, die Sie von einem nicht in diesen Sachverhalt involvierten, aber sachkundigen Fachmann beurteilen lassen.
     
  10. mls

    mls Bauexpertenforum

    Dabei seit:
    04.10.2002
    Beiträge:
    13.790
    Zustimmungen:
    7
    Beruf:
    twp, bp
    Ort:
    obb, d, oö
    das geht jetzt inzwischen schon etwas weit .. dann stelle ich jetzt auch mal ein
    paar behauptungen auf .. die nicht ganz abwegig sind.

    die sparren sind vermutlich als zweifeldsparren bemessen, horizontale haltung
    auf der schwelle. pfetten zweifeldrig, mittelstützen aus stahl .. alles plausibel.

    "kehlriegel" wirken sowieso nicht als druckriegel, da sind nicht nur 4 nägel,
    sondern die verbindungen, diese einschnittigen anschlüsse, überflüssig.

    wer sich irgendwann mal zielführende gedanken über dämm- und luftdichtebene
    und deren detailprobleme gemacht hat, wird diesen anschluss sowieso nur
    höchst ungern ausführen.

    zwischen planung (die so nicht vollständig und etwas ... "besonders" ist) und
    ausführung (mit kreativen abweichungen, aber ohne bisherigen schaden)
    gibt es abweichungen, die zu klären sind, einige klärungen wurden schon
    vorgenommen, andere werden folgen.

    ohne werkpläne des architekten zu kennen, behaupte ich, da könnte man noch
    was richtig gutes draus machen :28:

    die aussteifung (ausführung der dachscheibe) ist bisher stiefmütterlich
    behandelt - oder wir haben nicht alle informationen.
    momentan ist aber grade mal der dachstuhl aufgeschlagen - deswegen meckert auch
    niemand über fehlende eindeckung :p
     
  11. Haus

    Haus

    Dabei seit:
    01.06.2009
    Beiträge:
    29
    Zustimmungen:
    0
    Beruf:
    Industrieelektroniker
    Ort:
    BW
    Danke für die Beiträge.
    Die Zimmerer sind schon ein Paar Schritte weiter.
    Aber wenn ich den Beitrag von "mls" lese ist da nicht so schlimm.
    Ich werde morgen die aktuellen Fotos und Werkplan einstellen.
    Grüße
     
  12. Eric

    Eric

    Dabei seit:
    08.07.2003
    Beiträge:
    5.055
    Zustimmungen:
    13
    Mir ist auch aufgefallen, daß die gezeigte Ausführung als " hängende " Lösung, sofern sie tragfähig ist, für die Luftdichtebene bis zum First eine super Lösung wäre. Besser jedenfalls als Auflage auf Balken und Stützen > Praxishandbuch Gebäudedichtheit, S. 12, Abbildung 15, Lösung 3.
     
  13. #33 Wieland, 24.04.2010
    Wieland

    Wieland Gast

    Sowohl die sogenannten Zangen unter der Firstpfette, wie auch die Kehlbalkenlage
    unter den Mittelpfetten sollten Kraftschlüssig mit den Sparren verbunden sein.

    Denn diese tragen erheblich zu Stabilisierung des Dachstuhls bei.

    Bei der Verwendung des sogennnten Windrispenband sollte man darauf achten
    dass im Trauf und Firstpunkt die Sparren durch Stückhölzer auf Pfetten
    geblockt werden.

    Da sich beim Spannen der Windrisppe die Sparren an den genannten Punkten umlegen
    und Ihre Funktion verlieren.


    Safety first.
     
  14. mls

    mls Bauexpertenforum

    Dabei seit:
    04.10.2002
    Beiträge:
    13.790
    Zustimmungen:
    7
    Beruf:
    twp, bp
    Ort:
    obb, d, oö
    wir sind hier nicht bei wünsch-dir-was!
    wenn´s drum geht wunschvorstellungen loszuwerden, bist du hier falsch; lesen
    und verstehen ist auch nicht dein ding, du drehst die diskussion wieder
    auf einen stand zurück, den ich (nach investition einiger arbeit) für überwunden
    geglaubt habe.
    dein beitrag hilft weder dem themenstarter, noch künftigen lesern - der passt bestenfalls
    an einen dumpfen stammtisch ab mitternacht. inhaltlich und fachlich falsch ist er obendrein.

    ich lasse diesen thread offen, weil der threadstarter nix dafür kann - aber
    für weitere unnötige beiträge ist hier kein platz.
     
  15. #35 Ralf Dühlmeyer, 24.04.2010
    Zuletzt bearbeitet: 24.04.2010
    Ralf Dühlmeyer

    Ralf Dühlmeyer

    Dabei seit:
    14.06.2005
    Beiträge:
    34.296
    Zustimmungen:
    24
    Beruf:
    Architekt
    Ort:
    Hannover
    Maurer, bleib bei Deiner Kelle
    markus - ruuuuuuuhig. Ganz ruuuuuhig. ;)
     
  16. Haus

    Haus

    Dabei seit:
    01.06.2009
    Beiträge:
    29
    Zustimmungen:
    0
    Beruf:
    Industrieelektroniker
    Ort:
    BW
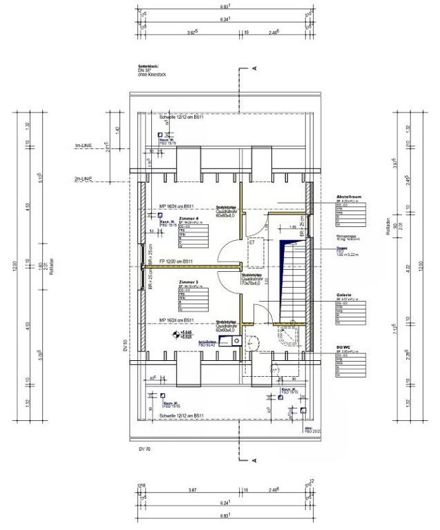
    Hallo zusammen,

    anbei wie besprochen der Werkplan und die aktuellsten Fotos.
    Der Statiker hat sich die neuentstandene Dachkonstruktion am Fr. angeschaut, habe aber noch keine Rückmeldung.
    Was kann man noch tun um die Dachkonstruktion noch stabil zu bekommen?

    [​IMG][​IMG]
     
  17. Haus

    Haus

    Dabei seit:
    01.06.2009
    Beiträge:
    29
    Zustimmungen:
    0
    Beruf:
    Industrieelektroniker
    Ort:
    BW
    Hm, den Werkplan bekomme ich nicht hochgeladen!?
     
  18. Haus

    Haus

    Dabei seit:
    01.06.2009
    Beiträge:
    29
    Zustimmungen:
    0
    Beruf:
    Industrieelektroniker
    Ort:
    BW
    jetzt, wenn man überhaupt was lesen kann!

    [​IMG]
     
  19. #39 Wieland, 25.04.2010
    Wieland

    Wieland Gast

    Hallo Ralf.

    Kein Beta Blocker!

    Wenn du dir die Befestigung des Windrisppenband auf dem Photo ansiehst,
    wirst du festellen,dass dieses auf oberkannte sparren befestigt ist.

    Am Fusspunkt fehlt das Widerlager/Stückholz/Block der Kraftschlüssig
    mit der Fusspfette Verbunden sein sollte,er füllt das Sparrenfeld
    bis Oberkante aus und verhindert das umlegen der Sparren bei entsprechender Belastung. (Das gleiche gilt für Knotenpunkte im Bereich
    Mittel u. Firstpfette.

    Ohne diese Widerlager/und Vorspannung hat das Windrisppenband keine
    Funktion!

    Für sonstige Missverständnisse möchte ich mich entschuldigen.

    Safety first!
     
  20. #40 Ralf Dühlmeyer, 25.04.2010
    Ralf Dühlmeyer

    Ralf Dühlmeyer

    Dabei seit:
    14.06.2005
    Beiträge:
    34.296
    Zustimmungen:
    24
    Beruf:
    Architekt
    Ort:
    Hannover
    Nein - MÜSSEN sie nicht. Sie KÖNNEN. Aber das ist eine von X Möglichkeiten die an Hand der Gegebenheiten zu definieren sind!
     
Thema: Müsse Kehlbalken und Sparren verbunden sein?
Besucher kamen mit folgenden Suchen
  1. kehlbalken an pfette befestigen

    ,
  2. kehlriegel

    ,
  3. Pfette verschlaudern

    ,
  4. Kniestock Dachstuhl,
  5. kehlbalken stabiler,
  6. kehlbalken ohne bolzen,
  7. kehlbalken befestigung,
  8. wie müssen die kehlbalken angeordnet sein,
  9. hanfwolle zwischen kehlbalken hängen,
  10. kehlbalken stabil machen
Die Seite wird geladen...

Müsse Kehlbalken und Sparren verbunden sein? - Ähnliche Themen

  1. Schimmel, müssen die Rigipsplatten ab?

    Schimmel, müssen die Rigipsplatten ab?: Moin, wir Wohnen seit Ende 2023 in unserem Neubau. Wir hatten bereits in der Bauphase Schimmelprobleme, wobei eine entsprechende Sanierung...
  2. Müssen Dachziegel die seitlichen Eindeckrahmen eines Dachfensters überdecken?

    Müssen Dachziegel die seitlichen Eindeckrahmen eines Dachfensters überdecken?: Hallo zusammen, ich habe eine Frage zum richtigen Anschluss von Dachziegeln an ein Dachfenster. Bei meinem Haus & Heim Dachfenster liegen die...
  3. Abstände und Baugrenzen – wie präzise müssen sie für die Planung eines EFH sein?

    Abstände und Baugrenzen – wie präzise müssen sie für die Planung eines EFH sein?: Guten Tag, ich habe ein Grundstück gekauft und plane den Bau eines Einfamilienhauses. Das Grundstück ist eher schmal und wird nach hinten hin...
  4. Müssen Fensterbänke bei Fassadendämmung und Fenstereinbau inklusive sein?

    Müssen Fensterbänke bei Fassadendämmung und Fenstereinbau inklusive sein?: Hallo zusammen, ich habe eine Frage zu einem Bauprojekt, das aktuell zu Problemen führt, und hoffe, hier fachkundige Meinungen zu bekommen. Wir...
  5. Hier ist der überarbeitete Beitrag mit dem Hinweis auf den Sanierungsfahrplan: --- Betreff: Müsse

    Hier ist der überarbeitete Beitrag mit dem Hinweis auf den Sanierungsfahrplan: --- Betreff: Müsse: Löschen