Mysteriöse Feuchtigkeit am Kaminmauerwerk und Treppenhaus im Reihenhaus?

Diskutiere Mysteriöse Feuchtigkeit am Kaminmauerwerk und Treppenhaus im Reihenhaus? im Sanitär Forum im Bereich Haustechnik; Hallo, vor zwei Wochen haben wir plötzlich Feuchtigkeit an zwei voneinander entfernten Stellen festgestellt: (1) An der Decke im Erdgeschoss des...

  1. #1 Felix5353, 13.03.2025
    Felix5353

    Felix5353

    Dabei seit:
    13.03.2025
    Beiträge:
    4
    Zustimmungen:
    0
    Hallo,

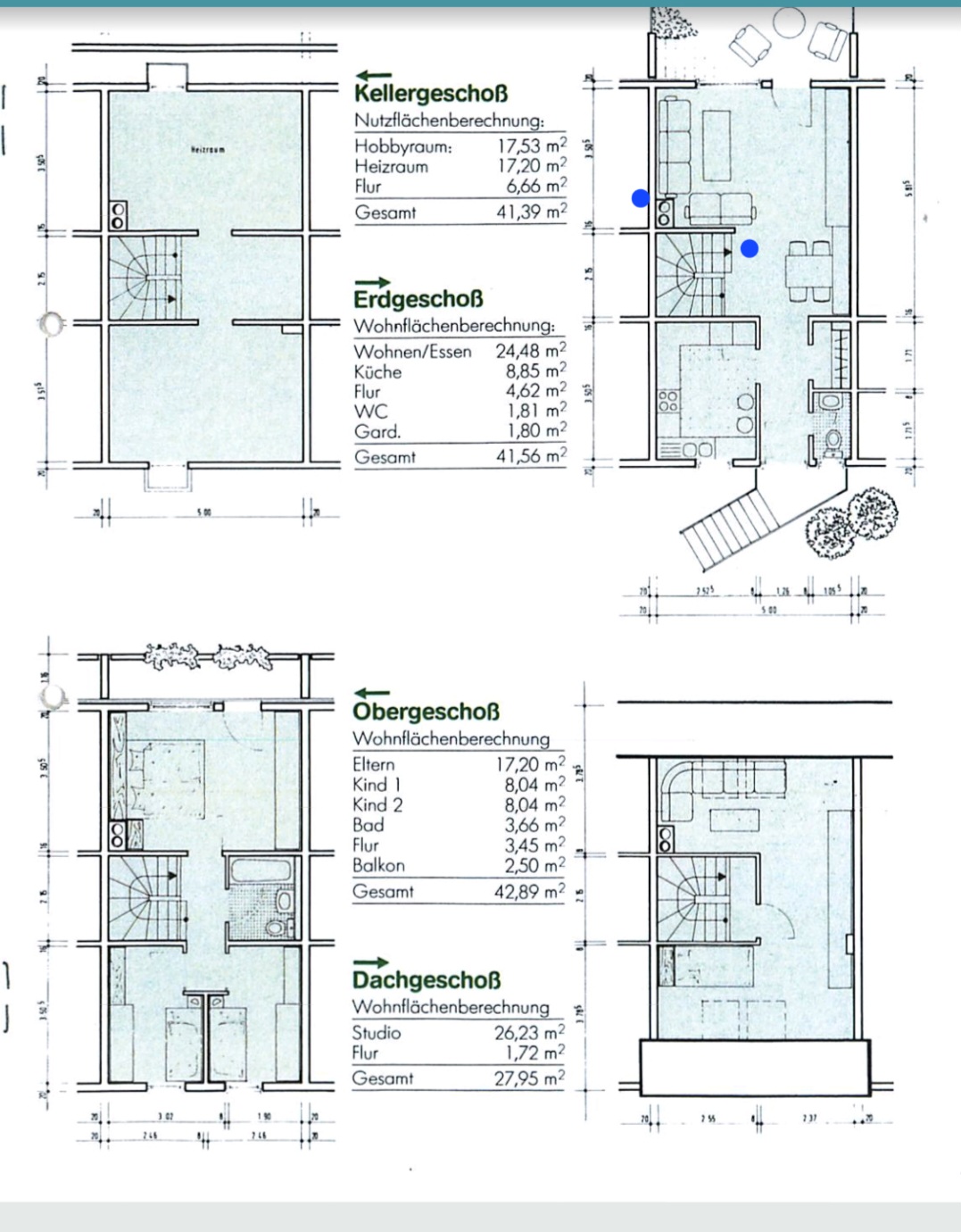
    vor zwei Wochen haben wir plötzlich Feuchtigkeit an zwei voneinander entfernten Stellen festgestellt:

    (1) An der Decke im Erdgeschoss des Kaminmauerwerks

    (2) Auf gleicher Höhe am Übergang im Treppenhaus

    Die Feuchtigkeit trat plötzlich und gleichzeitig auf, obwohl es am Vortag nicht geregnet hatte. Zudem tropfte es leicht, und die Flüssigkeit war klar.

    Unsere Heizungsanlage im Keller besteht aus einem Warmwasserboiler mit Gas sowie einer separaten Gasheizung. Eine Leckortungsfirma hat mit Messgeräten und Wärmebildkamera überprüft, ob eine undichte Wasserleitung oder Heizungsrohre die Ursache sein könnten. Das konnte jedoch ausgeschlossen werden. Auch der Schornsteinschacht wurde kontrolliert und war trocken.

    Interessanterweise verschwand die Feuchtigkeit nach ein paar Tagen vollständig, trat aber vor zwei Tagen erneut auf – diesmal mit geringerer Intensität. Gleichzeitig verliert unsere Heizung immer wieder Wasser, doch laut der Fachfirma besteht kein Zusammenhang.

    Da bisher keine Leckage festgestellt wurde, wird nun empfohlen, das Dach zu überprüfen.

    Wir stehen vor einem Rätsel: Warum tritt die Feuchtigkeit plötzlich an unterschiedlichen Stellen auf? Hat jemand eine Idee, woran das liegen könnte? Ich bin für jeden Tipp dankbar!

    Grüße

    Felix
     

    Anhänge:

  2. BaUT

    BaUT

    Dabei seit:
    30.10.2019
    Beiträge:
    8.837
    Zustimmungen:
    5.508
    Beruf:
    Bau-Ing.
    Ort:
    Berlin
    Benutzertitelzusatz:
    Erklärbär
    Fußbodenheizung defekt?
     
  3. BaUT

    BaUT

    Dabei seit:
    30.10.2019
    Beiträge:
    8.837
    Zustimmungen:
    5.508
    Beruf:
    Bau-Ing.
    Ort:
    Berlin
    Benutzertitelzusatz:
    Erklärbär
    Gutes Personal ist immer schwerer zu bekommen. Fordern sie eine Druckprüfung der Heizkreise!
     
  4. #4 Felix5353, 13.03.2025
    Felix5353

    Felix5353

    Dabei seit:
    13.03.2025
    Beiträge:
    4
    Zustimmungen:
    0
    Das Haus hat keine Fussbodenheizung...
     
  5. BaUT

    BaUT

    Dabei seit:
    30.10.2019
    Beiträge:
    8.837
    Zustimmungen:
    5.508
    Beruf:
    Bau-Ing.
    Ort:
    Berlin
    Benutzertitelzusatz:
    Erklärbär
    Dichtheit Badewannenablauf im OG ist safe?

    Ist doch albern, wenn die Herren Fachleute vor Ort mit Thermokamera rumwünscheln und dann kein Ergebnis finden!
    Schließlich ist die Menge der Möglichkeiten ja begrenzt!

    1. Ist der Kamin verkleidet, so dass optisch unbemerkt zwischen Schonstein und dessen Verkleidung irgendwie Wasser von einer schadhaften Einblechung vom Dach aus durchlaufen könnte bis auf die Rohrdecke im OG und sich dort unter dem Estrich verteilt?
    2. Heizleitungen im OG wirklich alle dicht?
    3. Leckagen im Sanitärbereich im OG - Frischwasser und Abwasser (z. B. Badewannenablauf) checken?
    4. Weitere Vorschläge...?
     
  6. #6 simon84, 15.03.2025
    simon84

    simon84
    Moderator

    Dabei seit:
    11.11.2012
    Beiträge:
    23.149
    Zustimmungen:
    6.845
    Beruf:
    Schrauber
    Ort:
    Muenchen
    4) Abluftrohr Trockner / DAH oder KWL etc. Hätte ich noch zu bieten :)
     
  7. #7 Felix5353, 15.03.2025
    Felix5353

    Felix5353

    Dabei seit:
    13.03.2025
    Beiträge:
    4
    Zustimmungen:
    0
    Danke für die Vorschläge...Abluftrohr ist auf der entgegengesetzte Seite...käme daher bicht in Frage..
     
  8. SIL

    SIL

    Dabei seit:
    06.05.2018
    Beiträge:
    10.855
    Zustimmungen:
    4.205
    Beruf:
    M. Sc. Dipl. Ingenieur
    Ort:
    6210
    Der allseits beliebte Standard Grundriss, bei klarer Flüssigkeit gehe ich eher von einem Leitungsschaden aus , was sind für Materialen verbaut ? Als Leitung ? Ich hatte vor Jahren einmal ähnliche Fälle einmal waren Mikrorisse zuständig, das Rohr lag im Estrich und je nach Temperatur öffnete sich dieser , der Lecktagedienst fand 2x nichts , der andere Fall war C Stahl gecrimpt im Prinzip auch hier nur sporadisch Austritt je nach Lage der Leitung und einem sehr auffälligen Fall hier war die entsprechende Stelle nicht verpresst dies ging fast 2 Jahre lang gut bis Korrosion auftratt.
    Ansonsten sind die üblichen Verdächtigen ja bereits erwähnt, dein Nachbar hat nichts umgebaut in letzter Zeit?
     
    BaUT und simon84 gefällt das.
  9. #9 Felix5353, 17.03.2025
    Felix5353

    Felix5353

    Dabei seit:
    13.03.2025
    Beiträge:
    4
    Zustimmungen:
    0
    Danke für die ausführliche Antwort. Mein Nachbar hat nichts umgebaut.Die Leitungsrohre für Kalt und Warmwasser sind aus Plastik weiss nicht wie die im Fachjargon heissen und wurden vor einem Jahr erneuert. Die Heizungsröhre verlaufen durch den Schacht und dann unter dem Esstrichbeton an die Heizkörper eines Einrohrsystem. Diese sind 40 Jahre alt und aus einem hartem Plastik.

    Als ich die plötzlich auftretenden Feuchtstellen endeckte, stellte ich auch ein abrupten Druckverlust der Heizung ( 0,5 Bar ) fest. In den letzten 2 Monaten musste ich immer wieder Wasser nachfüllen. Die Leckortungsfirma meinte das dieser Druckverlust auch andere Gründe haben könnte, wie z.B. defekte Wärmetauscher etc. Mein Verdacht ist ein Defekt der Heizungsrohre. Die Gebäudeversicherung hat die Kosten der Leckortung übernommen. Da kein Leitungsschaden festgestellt werden konnte, hat sich die Versicherung ausgeklingt, daher muss ich selbst mich auf die weitere Suche begeben.
     
  10. BaUT

    BaUT

    Dabei seit:
    30.10.2019
    Beiträge:
    8.837
    Zustimmungen:
    5.508
    Beruf:
    Bau-Ing.
    Ort:
    Berlin
    Benutzertitelzusatz:
    Erklärbär
    Schwätzer - die offenbar nicht das richtige Prüfwerkzeug für die Heizung dabei hatten und deshalb mit dummen Sprüchen alle anderen Möglichkeiten abgewiegelt haben.
    Eigentlich müsstest du jetzt einen HLS-Installateur mit einer solchen Dichtheitsprüfung beauftragen und die Rechnung dann der Versicherung in Rechnung stellen, wenn der was findet an den Heizleitungen.
     
    simon84 gefällt das.
  11. #11 simon84, 17.03.2025
    simon84

    simon84
    Moderator

    Dabei seit:
    11.11.2012
    Beiträge:
    23.149
    Zustimmungen:
    6.845
    Beruf:
    Schrauber
    Ort:
    Muenchen
    Die heizkreise kann man sicher auch einzeln abdrücken. Besonders nach der Heiz Saison
    Ggf mit tracer arbeiten . Das findest du
     
Thema:

Mysteriöse Feuchtigkeit am Kaminmauerwerk und Treppenhaus im Reihenhaus?

Die Seite wird geladen...

Mysteriöse Feuchtigkeit am Kaminmauerwerk und Treppenhaus im Reihenhaus? - Ähnliche Themen

  1. Mysteriöses am Bau

    Mysteriöses am Bau: Schon erstaunlich, was einem Lustiges auf dem Bau passiert. Sei es Putz, der in der am Übergang zur Decke einfach nicht oben bleiben will aber...
  2. Mysteriöses Pulver

    Mysteriöses Pulver: [ATTACH] Hallo, seit einiger Zeit liegt in der Küche an zwei Stellen an der Sockelleiste ein mintfarbenes Pulver. Wenn man es wegsaugt, kommt...
  3. Feuchtigkeit/Mysteriöser Schlitz an Unterkante Fertigkellerwand innen

    Feuchtigkeit/Mysteriöser Schlitz an Unterkante Fertigkellerwand innen: Hallo und ein gutes neues Jahr euch allen! Ich wohne im Münchner Umland in einem Reihenmittelhaus welches 1968/69 von Demos teilweise als...
  4. Mysteriöse Köcherfundamente - Zweck auch nach 20 Jahren Forschung unklar.

    Mysteriöse Köcherfundamente - Zweck auch nach 20 Jahren Forschung unklar.: Hallo, darf ich Sie wegen ihrer fachlichen Expertise um Hilfe bei der Lösung eines historischen Rätsels bitten? Seit rund 20 Jahren versuchen...
  5. Mysteriöses Knallen im Haus. Hilfe !

    Mysteriöses Knallen im Haus. Hilfe !: Hallo erstmal an das gesammte Bauexpertenforum. Ich habe folgendes Problem: Wir wohnen seit Sommer 2016 in unsere neuen Wohnung. Leider mussten...