Neubau DHH: Undicht/feuchte Keller (Hobbyraum)

Diskutiere Neubau DHH: Undicht/feuchte Keller (Hobbyraum) im Abdichtungen im Kellerbereich Forum im Bereich Neubau; Das DHH wurde vor weniger als einem Jahr bezogen und der Keller ist ungefähr 45 Quadratmeter groß, was Wohnfläche entspricht. Die Außenwände...

  1. #1 itlrxchu, 18.01.2024
    itlrxchu

    itlrxchu

    Dabei seit:
    18.01.2024
    Beiträge:
    3
    Zustimmungen:
    0
    Das DHH wurde vor weniger als einem Jahr bezogen und der Keller ist ungefähr 45 Quadratmeter groß, was Wohnfläche entspricht. Die Außenwände bestehen aus WU-Beton, schätzungsweise 25 cm dick. Seit zwei Monaten bemerke ich, dass alle Wände im Keller, einschließlich derer, die an den Lichthof angrenzen, sowie die nichttragenden Innenwände und die Trennwand zum Nachbarn, sehr feucht sind. Ein Bausachverständiger meinte, es handle sich um einen Baumangel. Hat jemand Erfahrung mit dieser Art von Problem? Was könnte die Ursache sein? Und welche Lösungen gibt es?
     

    Anhänge:

  2. Yilmaz

    Yilmaz

    Dabei seit:
    28.03.2006
    Beiträge:
    7.263
    Zustimmungen:
    1.296
    Beruf:
    Maurer & Betonbaumeister
    Ort:
    Delbrück/Westfalen
    Benutzertitelzusatz:
    Maurer-und Betonbauermeister
    Bausachverständiger ???
    Für so eine Aussage brauche ich keine Sachverständigen der das als Mangel sieht…
    Er muss Ihre alle fragen beantworten können!
    Erfahrungen mit Bauschäden gibt es reichlich.
    Ursache; undichtes Kelller…
    Lösungen wird es geben wenn man den Schaden lokalisieren kann… Wenn alle wände betroffen sind und es sich um eine DHH handelt wird es nicht ganz einfach werden.
    Sie sollten ja noch Gewährleistung haben, wieso wenden Sie sich nicht an Baufirma,
     
    driver55 gefällt das.
  3. Ardnor

    Ardnor

    Dabei seit:
    19.01.2024
    Beiträge:
    1
    Zustimmungen:
    0
    1. Falls du Fußbodenheizung hast kontrollieren
    2. Hebeanlage ob die Pumpe richtig angeschlossen ist.
    wenn die zwei punkte nicht gibt oder in ordnung sind, dan ist es eine Baumangel.
    Da kann ich dir nur empfehlen an die aussenwände eine streifen estrich zu entfernen und die Boden/Wand fuge zu kontrollieren.
    Wichtig ist die Gebäude trennfuge!
    du kannst hier dein Plan auch hochladen da konnt ich mehr sehen.

    Gruß Ardnor
     
  4. #4 itlrxchu, 19.01.2024
    itlrxchu

    itlrxchu

    Dabei seit:
    18.01.2024
    Beiträge:
    3
    Zustimmungen:
    0
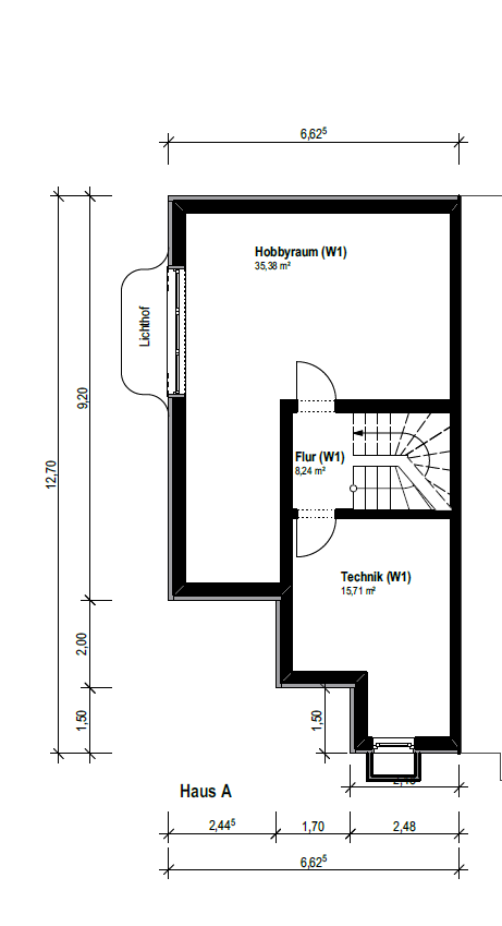
    Vielen Dank! Anbei ist der Grundriss für UG. Beide Hobbyraum und Flur sind sehr feucht. Technikraum bin ich nicht sicher. Die DHH von den Nachbar ist nicht feucht! Wäre es ehr möglich die Boden/Wand fuge undicht order der Bodenplatt hat Loch/Risse?

    Lautet der Leckortungsbericht:
    Im Untergeschoss / Keller wurden im Wohnraum und Flur massive Beschädigungen an den Wandflächen der
    Tapete durch aufsteigende Feuchtigkeit festgestellt.
    Auch im Heizraum sind die Wandflächen massiv feucht.
    Es wurde die Fußbodenheizung, Kalt- und Warmwasser und Abwasserleitungen auf eine Undichtigkeit
    überprüft, es konnte keine Beschädigung festgestellt werden.
    Bei der Überprüfung von der Feuchtigkeit beim Estrich wurde massiv stehendes Wasser auf der Bodenplatte
    und in der Estrich Dämmschicht vorgefunden.
    Hier sollte schnellstmöglich eine Trocknung im Unterdruckverfahren erfolgen um das stehende Wasser und
    die Feuchtigkeit aus der Estrich Dämmschicht heraus zu bekommen.
    Erst dann kann man an verschiedenen Stellen die Bodenfliesen und den Estrich entfernen um den
    Wassereintritt zu lokalisieren.
    Als Schadensverursacher wird eine Undichtigkeit mit Wassereintritt an der Abdichtung von der
    Wand - Bodenplatte des Hauses ausgegangen.
     

    Anhänge:

    • UG.png
      UG.png
      Dateigröße:
      28,3 KB
      Aufrufe:
      254
    • Leck1.png
      Leck1.png
      Dateigröße:
      418 KB
      Aufrufe:
      241
    • Leck2.png
      Leck2.png
      Dateigröße:
      469,6 KB
      Aufrufe:
      285
  5. #5 itlrxchu, 19.01.2024
    itlrxchu

    itlrxchu

    Dabei seit:
    18.01.2024
    Beiträge:
    3
    Zustimmungen:
    0
    Der Bauherr ist der Nachbar von der anderen Hälfte. Es trifft im Prinzip alle Wände im UG. Ich habe in der Antwort auch die Plannung und Leckortungsbericht hochgeladet. Woran kann es liegen??? Wand/Boden Fuge? Loch/Risse?
     
  6. #6 Laliluu, 02.10.2024
    Laliluu

    Laliluu

    Dabei seit:
    02.10.2024
    Beiträge:
    1
    Zustimmungen:
    0
    Hallo, weißt du mittlerweile woher das Wasser eingedrungen ist?
     
Thema:

Neubau DHH: Undicht/feuchte Keller (Hobbyraum)

Die Seite wird geladen...

Neubau DHH: Undicht/feuchte Keller (Hobbyraum) - Ähnliche Themen

  1. Undichte Bodenplatte Neubau 2019

    Undichte Bodenplatte Neubau 2019: Hallo zusammen, ich bin ein kompletter Neuling und habe mich hier angemeldet um eventuell Erfahrungsberichte zu bekommen, von Leuten die mal ein...
  2. Rechtsstreit / Rechtsanwaltsuche Blech Trapezdach undicht, Pfusch am Neubau?

    Rechtsstreit / Rechtsanwaltsuche Blech Trapezdach undicht, Pfusch am Neubau?: Hallo in die Runde, wir haben einen Neubau mit meines Ermessens heftigen Problemen und Mängeln was das Dach betrifft. Das Blechdach von Fischer...
  3. Neubau Keller undicht welche Ansprüche hab ich gegenüber dem Bauunternehmer?

    Neubau Keller undicht welche Ansprüche hab ich gegenüber dem Bauunternehmer?: Hallo zusammen, benötige Hilfe bzw. Ratschläge zu einem undichten Keller. Habe versucht eine Gliederung zu erstellen: Einleitung Vertragsergänzung...
  4. Wasseransammlung in Fenster Innenseite (Neubau) - Fenster undicht?

    Wasseransammlung in Fenster Innenseite (Neubau) - Fenster undicht?: Hallo zusammen, wir bewohnen seit Januar 2023 unsere neugebaute Doppelhaushälfte. Leider mussten wir feststellen, dass sich in der Fenster...
  5. Keller im Neubau undicht

    Keller im Neubau undicht: Guten Tag an alle. Ich bin aus Luxemburg und bin neu hier im Forum. Mein Rohbau ist fast fertig fehlt nur noch die Dachkonstruktion,allerdings hat...