Nutzung/Einrichtung Durchgangszimmer

Diskutiere Nutzung/Einrichtung Durchgangszimmer im Bastelecke Forum im Bereich Rund um den Bau; Hallo zusammen:) ich glaube, dass dieses Teilforum das beste für mein Anliegen ist. Aktuell bewohnen wir das 1. und 2. OG unserer DHH. Im EG...

  1. #1 Henrik94, 14.06.2021
    Zuletzt bearbeitet: 14.06.2021
    Henrik94

    Henrik94

    Dabei seit:
    27.03.2018
    Beiträge:
    66
    Zustimmungen:
    13
    Hallo zusammen:)

    ich glaube, dass dieses Teilforum das beste für mein Anliegen ist.

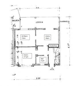
    Aktuell bewohnen wir das 1. und 2. OG unserer DHH. Im EG wohnte bis vor kurzem unsere Oma. Dort sind 3 Zimmer + Bad (s. Anhang mit ca. Angaben), aus denen in Zukunft unser Schlafzimmer und ein Schlafzimmer für Kind 1 werden soll. Unsere Wohnküche im 1. OG wird beibehalten, da hier einfach der Raum zu schön und zu schade ist, um ihn aufzugeben (große Fläche mit Wohn-/Esszimmer und offener Küche).

    Nun ergibt sich die Frage, wie man die Räume am besten aufteilt. Unsere Idee bisher:
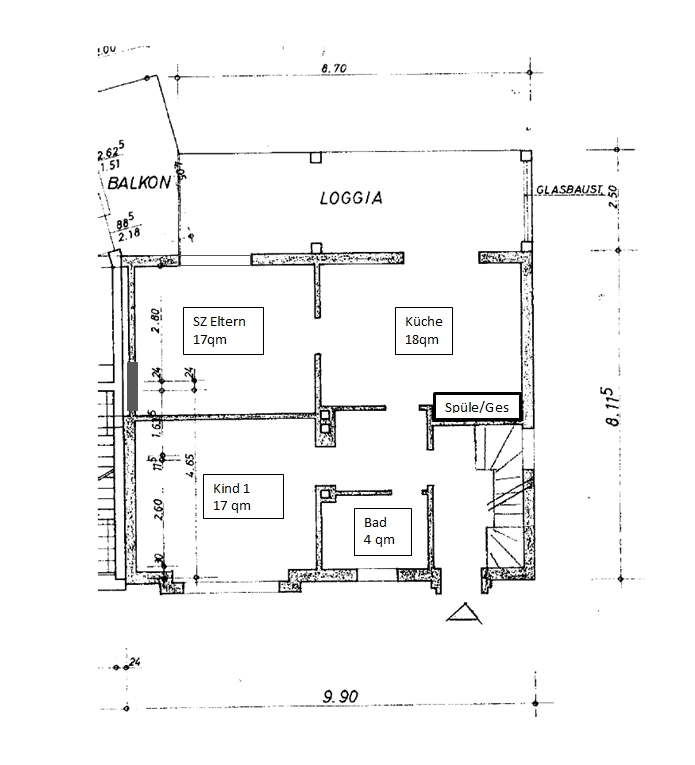
    Der Raum links vom Bad bleibt so wie er ist und wird SZ Kind 1. In der Küche zur Terrasse/Loggia hin eine schöne, große Schiebetür einbauen lassen, damit mehr Licht einfällt und alles dort etwas offener wird. Die Küche soll bis auf die Spüle&Geschirrspüler raus und ein freistehender Kühlschrank her. Ansonsten eine gemütliche Sitzgruppe mit TV. Die Idee dahinter: So wird aus dem Durchgangszimmer ein zweites Wohnzimmer, in das man sich bei kühleren Temperaturen aus dem Garten zurückziehen kann, um dort noch ein paar Stunden zu verbringen. Das angrenzende "Endzimmer" wird unser SZ.

    Was haltet Ihr von unserem Vorhaben? Habt ihr eine ähnliche Raumsituation und wie habt ihr es gelöst? Da wir echt keine Ahnung haben, ob das eine sinnvolle Lösung ist, bin ich über alle möglichen Ideen und Vorschläge von euch zu haben! :)

    Liebe Grüße

    Henrik

    Grundriss EG.png

    Aktuelle Idee als Zeichnung mit ca. Maßen und ohne neue Tür zur Loggia:
    IMG_0374.jpg
     
Thema:

Nutzung/Einrichtung Durchgangszimmer

Die Seite wird geladen...

Nutzung/Einrichtung Durchgangszimmer - Ähnliche Themen

  1. Bebauungsplan (Rückfrage zur Traufhöhe / Nutzung eines Dachkranz)

    Bebauungsplan (Rückfrage zur Traufhöhe / Nutzung eines Dachkranz): Hallo zusammen, wir sind gerade dabei ein Grundstück kaufen. Der Bebauungsplan gibt folgendes vor: TH <=4,5m, FH <= 9,5m, OK < =7m, SH <= 0,5m,...
  2. Neubau 2023 - nachträgliche Dachdämmung zur Nutzung Dachgeschoss

    Neubau 2023 - nachträgliche Dachdämmung zur Nutzung Dachgeschoss: Hallo liebes Forum, ich habe eine Fachfrage an euch. Wir haben 2023 unseren Neubau bezogen, der mit einem kalten Dachraum ausgeführt wurde...
  3. Sanierung des Kellers zur Nutzung als Waschraum und Lagerung von Kisten. Empfehlung für Sanierung?

    Sanierung des Kellers zur Nutzung als Waschraum und Lagerung von Kisten. Empfehlung für Sanierung?: Wir möchten gerne unseren Keller mit einer Fläche von ca. 35 m2 sanieren, so dass man eine Waschmaschine und Trockner dort nutzen kann und zur...
  4. Nutzung eines Gebäudes ohne Bauabnahme

    Nutzung eines Gebäudes ohne Bauabnahme: Moin! Wir haben als Kirchengemeinde eine Ehemalige Kirche komplett auf die Grundmauern einreissen und dann als Gemeindezentrum wieder aufbauen...
  5. Sanierung der Wohnungen (1.OG) mit KfW261 - Nutzung des Stroms über PV nur für Wohnung (2. OG)?

    Sanierung der Wohnungen (1.OG) mit KfW261 - Nutzung des Stroms über PV nur für Wohnung (2. OG)?: Wir sanieren aktuell Wohnungen des 1. OG über den KfW261 zum Effizienzhaus 70 inkl. Erneuerbare Energien. Voraussetzung des EH70 EE ist, dass eine...