Planung Einbaustrahler

Diskutiere Planung Einbaustrahler im Elektro 2 Forum im Bereich Haustechnik; Hallo zusammen, ich muss diese Woche die Planung unseres Einbaustrahler im Neubau abschließen. Überall ist abgehängte Gipskartondecke. Ich weiß,...

  1. #1 Pommes01, 07.07.2019
    Pommes01

    Pommes01

    Dabei seit:
    07.05.2018
    Beiträge:
    71
    Zustimmungen:
    2
    Hallo zusammen,

    ich muss diese Woche die Planung unseres Einbaustrahler im Neubau abschließen. Überall ist abgehängte Gipskartondecke. Ich weiß, dass man das alles mit Abstrahlwinklel usw. berechnen kann, hierfür fehlt mir allerdings die Zeit. Deshalb habe ich mich an den Leitsatz "doppelter Abstand zwischen den Spots als zur Wand" gehalten und geschauht, dass man mit der Anzahl der Spots den Raum ordentlich ausleuchten kann (Flur 100 Lumen, Wohnen 200, Bad 300 L/qm²).

    Könnt ihr bitte mal drüber schauen ob euch irgendwas auffällt, auch im Hinblick auf die Maße? Die Anhänge sind teilweise sehr einfach dargestellt aber ich denke es ist alles verständlich.

    Küche:
    Spots direkt über der Arbeitsplatte um Schattenwurf durch Personen zu vermeiden. An die Insel kommen wahrscheinlich 3 Pendelleuchten. Hier ist die Frage ob die Beleuchtung ausreicht oder ich extra Spots für den Gang zwischen Küchenzeile und Insel benötige?

    Bad als T-Lösung
    Die Spotreihe in Dusche und WC dürfte klar sein. Hier ist die Frage ob nicht sogar eine Reihe Spots im Bereich Waschtisch und Badewanne reichen?

    Flur:

    Hier ist es etwas tricky, da wir den Treppenaufgang haben und zusätzlich eine Aussparung für die Spitzbodentreppe in der Decke. Zusätzlich geht der Flur Plan-unten noch etwas weiter, hier fängt aber die Dachschräge an. Sind 1,35m Abstand zur Wand zu viel und ich muss weitere Spots in die 47cm Nische zwischen Wand und RuckZuck-Treppe bauen? Langt der eine Spot für den Gang links neber der Treppe?

    Wohnzimmer:
    Hier habe ich zwei Farben genommen, da die Spots unterschiedlich schaltbar sein sollen. Der äußere rote Ring dient dann mehr als indirektes Licht. Alle werden dimmbar. Die waagrechten Maße kann ich leider noch nicht liefern da hier die Balkenlage diese vorgibt.

    Bin für jede Anregung, Kritik usw. dankbar
     

    Anhänge:

  2. #2 Lexmaul, 07.07.2019
    Lexmaul

    Lexmaul

    Dabei seit:
    15.09.2014
    Beiträge:
    8.921
    Zustimmungen:
    2.163
    Benutzertitelzusatz:
    Mimosenlecker
    Wohnzimmer schrecklich, Küche zu wenig Strahler - da muss es hell sein!

    Die fehlt die Zeit? Hab ich damals in 2h mit Zirkel eingetragen... anders macht das auch keinen Sinn, denn das sollte man alles vorher wissen!
     
  3. #3 Fabian Weber, 07.07.2019
    Fabian Weber

    Fabian Weber

    Dabei seit:
    03.04.2018
    Beiträge:
    16.299
    Zustimmungen:
    6.461
    9 Strahler im Bad????

    Auch sonst ziemlich crazy!

    Deine theoretischen Überlegungen wirf mal über Bord.

    Dann mal Dir den Deckenspiegel, so das es möglichst harmonisch ist und gut.
     
  4. #4 Lexmaul, 07.07.2019
    Lexmaul

    Lexmaul

    Dabei seit:
    15.09.2014
    Beiträge:
    8.921
    Zustimmungen:
    2.163
    Benutzertitelzusatz:
    Mimosenlecker
    Naja, ich hab im Bad 14 Stück plus zwei Wandleuchten - im Bad kann es nicht hell genug sein.
     
    simon84 gefällt das.
  5. #5 Pommes01, 07.07.2019
    Pommes01

    Pommes01

    Dabei seit:
    07.05.2018
    Beiträge:
    71
    Zustimmungen:
    2
    Was wären deine konkreten Vorschläge? Eine weitere Spot Reihe in der Küche? Ich spiele noch mit dem Gedanken den Spot über dem Hochschrank unten und über dem Hängeschrank oben weg zu lassen. Was noch im Wohnzimmer verändern?

    9 Strahler im Bad finde ich jetzt nicht ungewöhnlich bei der Größe. Würdest du auf 6 Stück reduzieren und beim Waschtisch nur eine Spot Reihe mittig machen? Was genau ist noch crazy?

    Der Flur macht mir im Moment am meisten Kopfzerbrechen.
     
  6. #6 Fabian Weber, 08.07.2019
    Fabian Weber

    Fabian Weber

    Dabei seit:
    03.04.2018
    Beiträge:
    16.299
    Zustimmungen:
    6.461
    Also ich würde bei dem Bad 4 Spots max. setzen und zwar immer mit ca 1m Abstand zu den Ecken.

    In der Küche würde ich über die Schränke sowieso keine machen, das sieht doch total bescheuert aus, wenn dann davor dort wo man läuft und steht.

    Ich würde niemals über meiner Couch Spots haben wollen, sondern eine anständige Wohnzimmerleuchte und Wand und Stehleuchten.

    Im Flur oben bring die Spots in eine Reihe, warum schert dort der eine aus?

    Für mich sind vor allem im Wohnzimmer und Bad viel zu viele. Das sieht doch dann aus wie in einem Wartezimmer.
     
  7. #7 Lexmaul, 08.07.2019
    Lexmaul

    Lexmaul

    Dabei seit:
    15.09.2014
    Beiträge:
    8.921
    Zustimmungen:
    2.163
    Benutzertitelzusatz:
    Mimosenlecker
    Vier Spots im Badezimmer? Na, dann viel Spaß in der dunklen Höhle.

    Gut, keiner weiß, welche Spots er nun einbaut, aber das sind normal viel zu wenig.

    Und ein Badezimmer ist was anderes als ein Wohnzimmer - nochmal: Sowas muss hell sein.
     
  8. #8 Pommes01, 08.07.2019
    Pommes01

    Pommes01

    Dabei seit:
    07.05.2018
    Beiträge:
    71
    Zustimmungen:
    2
    Ich hab es auch gerne heller im Badezimmer. Hier zwei neue Versionen:
     

    Anhänge:

    • Bad3.jpg
      Bad3.jpg
      Dateigröße:
      82,9 KB
      Aufrufe:
      2.405
    • Bad2.jpg
      Bad2.jpg
      Dateigröße:
      85,9 KB
      Aufrufe:
      3.296
  9. #9 Lexmaul, 08.07.2019
    Lexmaul

    Lexmaul

    Dabei seit:
    15.09.2014
    Beiträge:
    8.921
    Zustimmungen:
    2.163
    Benutzertitelzusatz:
    Mimosenlecker
    Aber lesen ist so nicht Dein Ding, oder ;)? So eine Planung ohne Art des Leuchtmittels zu kennen, ist einfach Banane...

    Die Zeit von gestern bis jetzt dafür genutzt, hättest die Antwort gehabt.
     
    Fred Astair gefällt das.
  10. #10 simon84, 08.07.2019
    simon84

    simon84
    Moderator

    Dabei seit:
    11.11.2012
    Beiträge:
    23.247
    Zustimmungen:
    6.890
    Beruf:
    Schrauber
    Ort:
    Muenchen
    Ich hab auch 9 im Badezimmer. je 3,5 W LED
     
  11. #11 Fabian Weber, 08.07.2019
    Fabian Weber

    Fabian Weber

    Dabei seit:
    03.04.2018
    Beiträge:
    16.299
    Zustimmungen:
    6.461
    Variante 2 finde ich besser.
     
  12. #12 Pommes01, 08.07.2019
    Pommes01

    Pommes01

    Dabei seit:
    07.05.2018
    Beiträge:
    71
    Zustimmungen:
    2
    Welche Größe hat dein Bad bzw. welchen Abstrahlungswinkel?

    @Lexmaul
    Ich verstehe auf was du raus willst aber wo fange ich an? Es gibt Spots mit 3,5W-10W und jeweils verschiedenen Abstrahlungswinkeln und entsprechenden Preisen. Nehm ich lieber mehrere leistungsärmere Spots und dafür in der Anzahl mehr oder gerade rumgedreht?
     
  13. #13 Lexmaul, 08.07.2019
    Lexmaul

    Lexmaul

    Dabei seit:
    15.09.2014
    Beiträge:
    8.921
    Zustimmungen:
    2.163
    Benutzertitelzusatz:
    Mimosenlecker
    Ich hab auf einen hohen Abstrahlwinkel. hoher Ra-Wert und natürlich viel Lumen geachtet. Da kommst Du schnell in den professionellen Bereich, wo das Leuchtmittel nicht mehr 2 Euro kostet, sondern das 5-7fache.

    Ich schaue mal, dass ich nen schnellen Plan von unserem Bad/Küche erstelle, dann siehste das mal.

    In den Fluren hab ich in die Betondecke 105er Spots eingebaut (also Durchmesser in mm) - sonst alles GU10-Spots.

    Wattzahl ist bei mir bei den GU10 glaub ich 6 Watt.

    Überlege Dir dringend nochmal das mit dem Wohnzimmer - da haben wir zentral eine Deckenlampe und ansonsten nur Wand- und Bodenstrahler. Und da vermissen wir gar nix...
     
    Fred Astair, Fabian Weber und Pommes01 gefällt das.
  14. #14 simon84, 08.07.2019
    simon84

    simon84
    Moderator

    Dabei seit:
    11.11.2012
    Beiträge:
    23.247
    Zustimmungen:
    6.890
    Beruf:
    Schrauber
    Ort:
    Muenchen
    Sind 8,5 qm

    Ich hab diese hier verbaut:

    https://www.amazon.de/dp/B013JXZ8QK

    Angegeben mit ca 120 Grad aber durch die Streuscheibe finde ich passt das sehr gut.

    Muss aber dazu sagen, dass das eine Low-Budget Lösung für Austausch von defekten Halogenspots war!

    Im Neubau (bzw falls ich mal die Decke im Bad erneuere) würde ich etwas besseres verbauen.
     
  15. #15 Pommes01, 09.07.2019
    Pommes01

    Pommes01

    Dabei seit:
    07.05.2018
    Beiträge:
    71
    Zustimmungen:
    2
    Das Angebot nehme ich gerne an
     
  16. #16 Lexmaul, 09.07.2019
    Lexmaul

    Lexmaul

    Dabei seit:
    15.09.2014
    Beiträge:
    8.921
    Zustimmungen:
    2.163
    Benutzertitelzusatz:
    Mimosenlecker
    Hab Dich nicht vergessen - probiere es nachher!
     
  17. #17 Lexmaul, 09.07.2019
    Lexmaul

    Lexmaul

    Dabei seit:
    15.09.2014
    Beiträge:
    8.921
    Zustimmungen:
    2.163
    Benutzertitelzusatz:
    Mimosenlecker
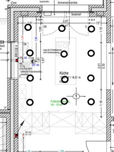
    Quick and dirty - hier sind nur GU10-Strahler verbaut, Deckenhöhe in der Küche 2,72m und im Bad 2,50m.

    Bad.jpg Küche.jpg
     
    Pommes01 und simon84 gefällt das.
  18. #18 Pommes01, 10.07.2019
    Pommes01

    Pommes01

    Dabei seit:
    07.05.2018
    Beiträge:
    71
    Zustimmungen:
    2
    @Lexmaul
    Danke für die Bereitstellung. Ich möchte wahrscheinlich erstmal GU10 mit 8W und einem Winkel von 36 Grad verbauen in der Küche. Hab den Plan jetzt folgend abgeändert, von den Maßen sollte das eigentlich so passen das sich der Lichtkegel auf dem boden überschneidet. Was meinst du dazu? Ich habe nur etwas Angst das es einen Schattenwurf an der Insel gibt wenn man dort arbeitet
     

    Anhänge:

Thema: Planung Einbaustrahler
Besucher kamen mit folgenden Suchen
  1. spots anordnung decke küche

    ,
  2. Deckenstrahler anordnung küche schräge

    ,
  3. einbauSpot Insel plan

    ,
  4. lichtplanung küche,
  5. positionen deckenspots küche,
  6. led spots decke planung,
  7. anordnung strahler flur,
  8. einbaustrahler für bad,
  9. anordnung strahler bad,
  10. einbaustrahler anordnung,
  11. deckenspots küche anordnung,
  12. einbaustrahler anordnung wohnzimmer,
  13. spots anordnung küche,
  14. anordnung berechnen strahler abgehängte decke
Die Seite wird geladen...

Planung Einbaustrahler - Ähnliche Themen

  1. Poolterrasse verdichten und Gefälle Planung

    Poolterrasse verdichten und Gefälle Planung: Hallo zusammen, ich möchte dieses Jahr einen ConZero Stahlwandpool samt Terrasse errichten. Ich habe einen Lehmigen Boden. Jetzt benötige ich...
  2. Statiker notwendig oder passt die Planung?

    Statiker notwendig oder passt die Planung?: Moin Moin, wir wollen unser Obergeschoss (Haus aus 2019) ausbauen. Aktuelle Situation: Rohfußboden aus Rauhspund vorhanden. KVH-Trockenbauwand...
  3. Tausch Haustüre, Planung WDVS

    Tausch Haustüre, Planung WDVS: Hallo zusammen, unsere Haustüre soll getauscht werden, nächstes Jahr soll dann die Fassade (14-16cm) gedämmt werden. Wir haben die Besonderheit,...
  4. Planung Neubau

    Planung Neubau: Moin zusammen! Wir beabsichtigen im Kreis Plön ein Haus zu bauen. Ein Grundstück ist in Aussicht, dieses soll mit einem weiteren Bauherren...
  5. Planung Abwasser Sturzschacht/Schächte

    Planung Abwasser Sturzschacht/Schächte: Grüße an alle, bin neu hier und habe eine Frage, hab ein Haus gekauft. Das steht auf einem kleinen Berg/Hügel. Der Sammler fürs Abwasser liegt...