Planung von Entwässerung und Abdichtung
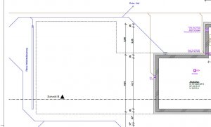
Diskutiere Planung von Entwässerung und Abdichtung im Tiefbau Forum im Bereich Neubau; Hallo Liebe Experten, ich bin bisher nur stiller Mitleser gewesen und konnte mir schon viele Fragen beantworten. Da ich nun gerade in der...
Thema: Planung von Entwässerung und Abdichtung
Besucher kamen mit folgenden Suchen
garagenBodenplatten entwässerungsrinnen
,planung entwässerung efh
,abflussrinne garageneinfahrt
Die Seite wird geladen...
-
Planung von Entwässerung und Abdichtung - Ähnliche Themen
-
Poolterrasse verdichten und Gefälle Planung
Poolterrasse verdichten und Gefälle Planung: Hallo zusammen, ich möchte dieses Jahr einen ConZero Stahlwandpool samt Terrasse errichten. Ich habe einen Lehmigen Boden. Jetzt benötige ich... -
Statiker notwendig oder passt die Planung?
Statiker notwendig oder passt die Planung?: Moin Moin, wir wollen unser Obergeschoss (Haus aus 2019) ausbauen. Aktuelle Situation: Rohfußboden aus Rauhspund vorhanden. KVH-Trockenbauwand... -
Planung Entwässerung in Hanglage mit Hebeanlage
Planung Entwässerung in Hanglage mit Hebeanlage: Hallo zusammen, bei der Planung eines Neubaus (4 Wohneinheiten) gibt es unterschiedliche Empfehlungen bezüglich der Entwässerung(Abwasser und... -
Verweigerung der Unterschrift zum Bauplan wg. Entwässerung
Verweigerung der Unterschrift zum Bauplan wg. Entwässerung: Hallo Zusammen! Wir haben, auf einem in der Familie vorhandenen Grundstück, ein Zweifamilienhaus von einem Architekten planen lassen.... -
Planung Regenwasser-Entwässerung
Planung Regenwasser-Entwässerung: Hallo, vielleicht kann mir jemand einen Tipp zum Thema Regenwasserversickerung geben. Dachfläche inkl. Garage 150m² abgeleitet über 4 Fallrohre....