Planungsfehler Statik - wie groß ist mein Problem?
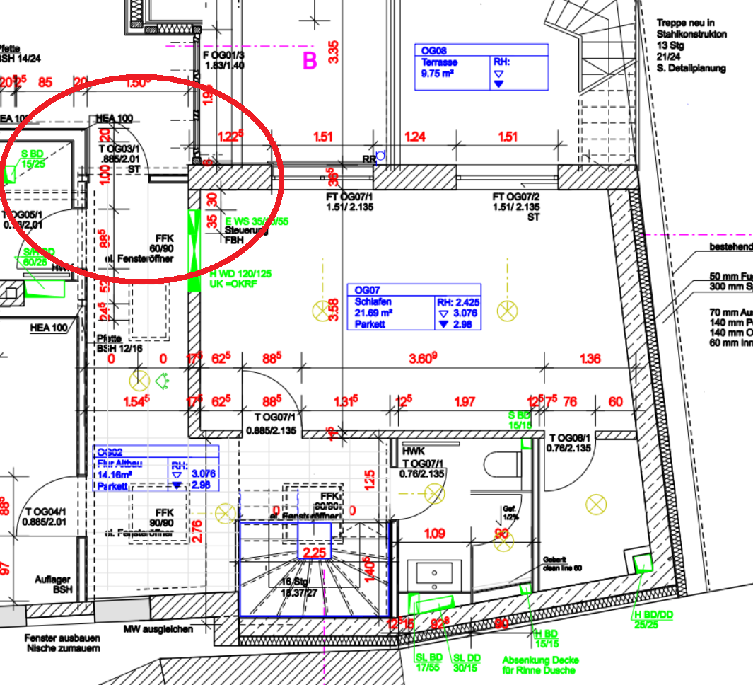
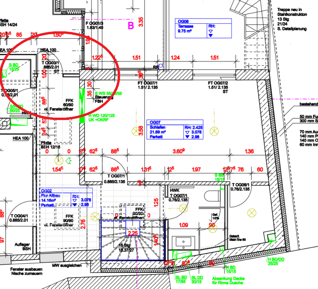
Diskutiere Planungsfehler Statik - wie groß ist mein Problem? im Baumurks in Wort und Bild Forum im Bereich Rund um den Bau; Hallo liebe Bauexperten, hatte eigentlich gehofft mich hier nie anmelden zu müssen. Aber jetzt habe ich ein Thema an der Backe, bei dem mich...
Thema:
Planungsfehler Statik - wie groß ist mein Problem?
Die Seite wird geladen...
-
Planungsfehler Statik - wie groß ist mein Problem? - Ähnliche Themen
-
Hilfe Planungsfehler. Hinterseite des Fussbodenheizkreisverteiler mit was verkleiden? Duschbereich!
Hilfe Planungsfehler. Hinterseite des Fussbodenheizkreisverteiler mit was verkleiden? Duschbereich!: Hallo, bei uns gibt / gab es einen Planungsfehler. Jetzt müssen wir das irgendwie wieder zurecht biegen... wir haben einen... -
Planungsfehler / Statik falsch
Planungsfehler / Statik falsch: Hallo liebe Gemeinde, mit einem Sonderfall wende ich mich an Euch. Bitte um Nachsehen, falls ich es in das falsche Forum reingestellt habe ;) Wie... -
Wer haftet bei "Planungsfehlern" einer GmbH wie hier?
Wer haftet bei "Planungsfehlern" einer GmbH wie hier?: Ein Unternehmen dessen Gesellschafter weder in der Handwerksrolle noch in einer Ingenieurskammer, Architektenkammer registriert ist wirbt und... -
Planungsfehler Frostschürze ?
Planungsfehler Frostschürze ?: Sehr geehrte Forumsmitglieder, ich bin neu hier und hoffe sehr auf ein paar sachdienliche Hinweise zu meinem Problem. -Wir bauen ein... -
Straße 0,5m höher als angrenzende Grundstücke - Planungsfehler der Stadt??
Straße 0,5m höher als angrenzende Grundstücke - Planungsfehler der Stadt??: Hallo zusammen, wir haben vor gut 4 Monaten ein Grundstück in einem neu erschlossenen Baugebiet gekauft. Direkt am Grundstück geht eine...