Position Heizkreisverteiler

Diskutiere Position Heizkreisverteiler im Heizung 2 Forum im Bereich Haustechnik; Hallo, wir sind gerade am überlegen, wo wir den Verteilerschrank für die Fußbodenheizung verbauen können. Ist die Position in der Wand dort in...

  1. #1 Erich89, 31.10.2022
    Erich89

    Erich89

    Dabei seit:
    12.11.2018
    Beiträge:
    39
    Zustimmungen:
    1
    Beruf:
    Kfz-Meister
    Ort:
    Großefehn
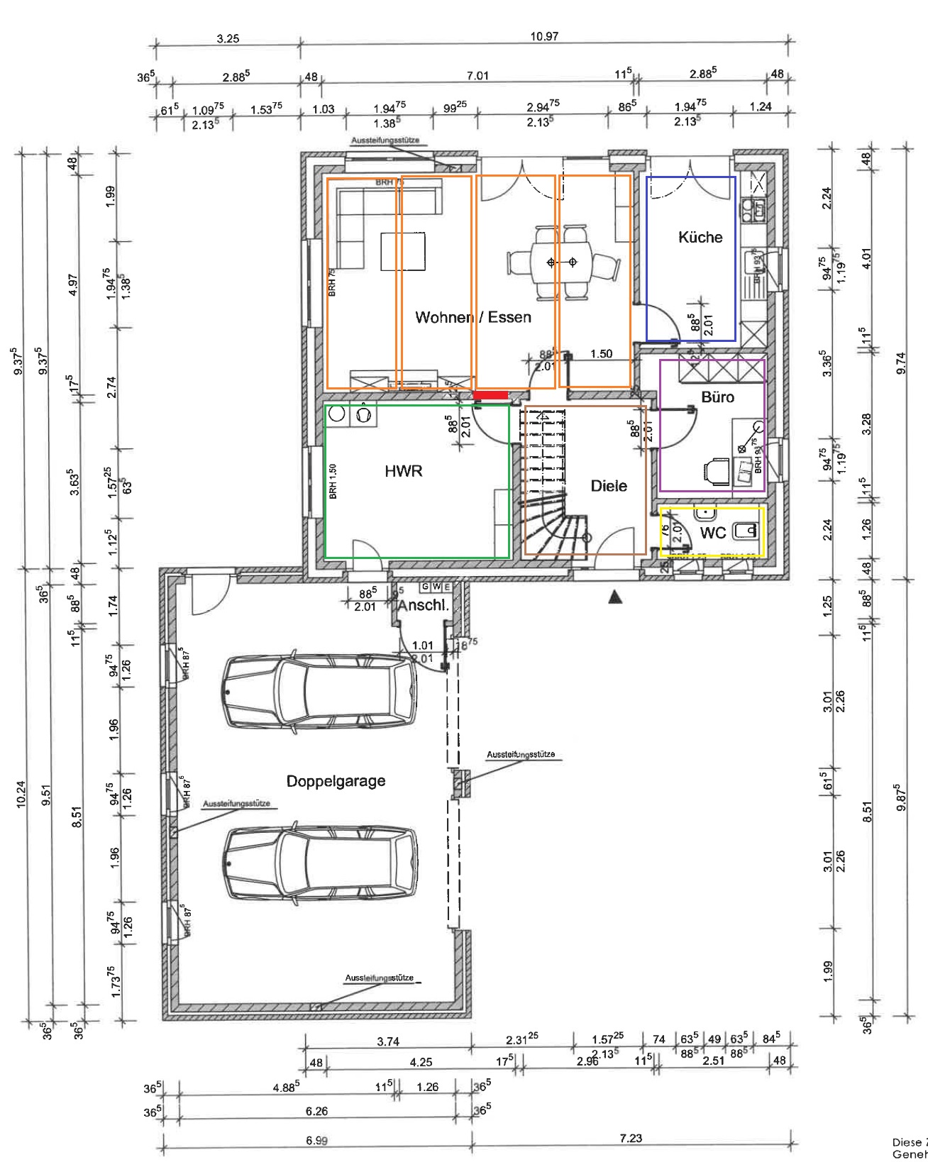
    Hallo,

    wir sind gerade am überlegen, wo wir den Verteilerschrank für die Fußbodenheizung verbauen können.

    Ist die Position in der Wand dort in Ordnung? (roter Balken)
    Die Tür würde in Richtung HWR zeigen und hinter dem Kasten würden wir eine dünne Mauer ziehen.

    Ursprünglich dachte ich an den Flur, aber dann hat man immer die hässliche Tür im Flur sichtbar.

    Nun dachte ich, dass man die 4 Kreise vom Wohnzimmer und den einen Kreis von der Küche direkt ohne Umwege nach hinten durch die Wand legen könnte. Ist das zulässig? Sonst müsste ich ja erst in den Flur um dann ins Wohnzimmer zu gelangen.

    Die anderen Kreise kann man dann ja wie gehabt nach vorne aus den Schrank raus legen.

    EG Fußbodenheizung.jpg
     
  2. #2 Fabian Weber, 01.11.2022
    Fabian Weber

    Fabian Weber

    Dabei seit:
    03.04.2018
    Beiträge:
    16.338
    Zustimmungen:
    6.489
    Warum kann der Verteilerkasten nicht weiter links im HAR stehen und Aufputz sein? Dann musst Du nicht umständlich die Wand schwächen.

    Hinten ausfädeln ist kein Problem.
     
  3. #3 Erich89, 01.11.2022
    Erich89

    Erich89

    Dabei seit:
    12.11.2018
    Beiträge:
    39
    Zustimmungen:
    1
    Beruf:
    Kfz-Meister
    Ort:
    Großefehn
    Es wird ein Sturz darüber gemauert und ist daher genauso abgestützt wie eine normale Zimmertür. Ich habe mit meinem Statiker geredet und das wäre so kein Problem. Ich könnte den Verteiler, von der Statik her, wo ich möchte mit dem passenden Sturz.

    Also kann ich das so ausführen ohne Probleme. Wobei der Heizkreis im HWR auch in zwei Kreise aufgeteilt wird.

    Was für Verlegeabstände sollten denn eingehalten werden? Ich bekomme eine Erswärmepumpe. Ist da ein Abstand von 10cm OK oder ist es zu nah?
     
  4. #4 Fabian Weber, 01.11.2022
    Fabian Weber

    Fabian Weber

    Dabei seit:
    03.04.2018
    Beiträge:
    16.338
    Zustimmungen:
    6.489
Thema:

Position Heizkreisverteiler

Die Seite wird geladen...

Position Heizkreisverteiler - Ähnliche Themen

  1. Fenster position?

    Fenster position?: Hallo, mein Vater hat vor 35 Jahren eine Garage gebaut, die außen nur einen Spritzbewurf hat und innen die nackte Wand. Es sind...
  2. Fenster geht nicht in Kipp Position

    Fenster geht nicht in Kipp Position: Hallo an alle. Ich hoffe, ich bin hier richtig, sonst löschen oder verschieben. Ich habe ein problem mit dem Fenster. Es lässt sich schliessen,...
  3. Heizkreisverteiler im OG beste Positionen

    Heizkreisverteiler im OG beste Positionen: Wir sind uns unsicher, wo wir den Heizkreisverteiler für das OG am besten positionieren können. Zunächst war er in der Brüstung im Flur(Unterputz)...
  4. Heizkreisverteiler Position im HKV-Schrank

    Heizkreisverteiler Position im HKV-Schrank: Kann mir einer sagen in welcher Höhe der HKV hängen muss, um die Rohre anzuschließen. Gibt es da irgendwelche Vorgaben oder muss man ganz oben...
  5. Position des Heizkreisverteilers

    Position des Heizkreisverteilers: Hallo zusammen wir wollen einen neuen Heizkreisverteiler für die Fußbodenheizung installieren. Das Problem ist, dass dieser im Keller liegt und...