PV-Leerrohr vom HWR zum Dach führen

Diskutiere PV-Leerrohr vom HWR zum Dach führen im Sonstiges Forum im Bereich Sonstiges; Liebes Bauexpertenforum, wir haben uns (leider recht kurzfristig) dazu entschieden, eine PV-Anlage aufs Dach zu bringen. Nun ist das...

  1. jdotcc

    jdotcc

    Dabei seit:
    01.07.2020
    Beiträge:
    21
    Zustimmungen:
    4
    Liebes Bauexpertenforum,

    wir haben uns (leider recht kurzfristig) dazu entschieden, eine PV-Anlage aufs Dach zu bringen. Nun ist das Hauptproblem, wie wir das 7-cm-Leerrohr vom HWR (EG), vermutlich über das Bad (OG), zum Dach bringen können.

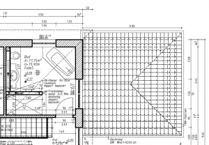
    Wir haben insgesamt 3 Deckenaussparungen im HWR:
    - 30 x 20 cm für Heizungsrohre Fußbodenheizung
    - 20 x 20 cm für SW-Fallrohr DN 100 (vermutlich kein Platz mehr)
    - 50 x 30 cm für TW, Elt, Post (wofür steht Post?)

    Passt das Leerrohr in der 30/20-Aussparung neben die Heizungsrohre? Das erscheint mir als die beste Lösung. Wie viele Rohre werden für die Heizung benötigt, 2 oder mehr? Welchen Durchmesser haben die Rohre für gewöhnlich? Wir haben eine Luft-Wasser-Wärmepumpe und eine Fußbodenheizung in allen Räumen.

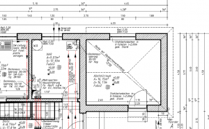
    Im Anhang haben wir euch den Grundrissauszug von EG und OG angehangen.

    Wir freuen uns auf etwas Input von euch.
     

    Anhänge:

  2. #2 jodler2014, 01.11.2021
    jodler2014

    jodler2014

    Dabei seit:
    20.12.2014
    Beiträge:
    3.907
    Zustimmungen:
    542
    Beruf:
    Angestellter
    Ort:
    RP
    Ein Leerohr sollte ja möglichst senkrecht und ohne Bögen verlegt werden.
    Da bleibt wohl nur der DD an der Badewanne übrig.
    Und warum muss das Rohr so groß im Durchmesser sein?
    Oder das Rohr hinter die Verkleidung der Vorwand im Bad packen ?
    Irgendwo sollte ja auch die Strangentüftung ihren Platz finden?
    Der DD für Elektro in der Dusche ist auch nicht so der Bringer
     
  3. #3 Hanilein, 01.11.2021
    Hanilein

    Hanilein

    Dabei seit:
    10.05.2018
    Beiträge:
    355
    Zustimmungen:
    177
    Beruf:
    Rentnerelektriker im Unruhestand
    Die Strings müssen letztendlich beim Wechselrichter landen.
    Wenn deine Pv 10 KW oder mehr hat wird in der Regel auch dein Zählerschrank um ein Zähler mehr bereichert .
    Dann wird normalerweise eine direktmessung fällig.
     
  4. jdotcc

    jdotcc

    Dabei seit:
    01.07.2020
    Beiträge:
    21
    Zustimmungen:
    4
    Danke für eure Antworten.

    Das war auch mein Gedanke. Leider bin ich mir unsicher, wie man das hübsch verkleidet.

    Die Anforderung kam von unserem Solarteur, wobei ein geringerer Durchmesser auch nicht viel einfacher nach oben zu bringen wäre.

    Wie meinst du das?

    Hier verstehe ich leider den Zusammenhang zum Führen des Leerrohres nicht. Kannst du evtl. noch etwas genauer erklären, was du damit meinst?
     
  5. #5 Hanilein, 01.11.2021
    Hanilein

    Hanilein

    Dabei seit:
    10.05.2018
    Beiträge:
    355
    Zustimmungen:
    177
    Beruf:
    Rentnerelektriker im Unruhestand
    Naja, die Strings kommen durch‘s Leerrohr und führen letztendlich zum Wechselrichter.
    DieAnzahl ist mit abhängig von der PV Leistung .
    Dein Solarteur klärt dich auf.
     
  6. #6 jodler2014, 01.11.2021
    jodler2014

    jodler2014

    Dabei seit:
    20.12.2014
    Beiträge:
    3.907
    Zustimmungen:
    542
    Beruf:
    Angestellter
    Ort:
    RP
    Der Waschtisch und das WC sind an einer Vorwand montiert.
    Deshalb meine Nachfrage nach der Entlüftung.Die wird ja sehr wahrscheinlich über den Dachboden nach Aussen geführt ?
    Dann konnte man das Rohr mit in die Verkleidung verlegen.
    Wo ist die geplant?
     
Thema:

PV-Leerrohr vom HWR zum Dach führen

Die Seite wird geladen...

PV-Leerrohr vom HWR zum Dach führen - Ähnliche Themen

  1. Neubau: Mehrere Leerrohre durch Bodenplatte

    Neubau: Mehrere Leerrohre durch Bodenplatte: Hallo zusammen, ich baue ein Haus auf Bodenplatte. Für die Garage brauche ich 4 Verbindungen zum Technikraum - Garagenstrom - Spätere...
  2. Leerrohre durch Ringraumdichtung

    Leerrohre durch Ringraumdichtung: Hallo zusammen, über die Suche, Googeln und langes Nachdenken habe ich noch keine Lösung gefunden, deshalb hier meine Frage. Für unseren Neubau...
  3. Altbau: Reserve Leerrohr vom Keller durch nicht-unterkelltern Bereich

    Altbau: Reserve Leerrohr vom Keller durch nicht-unterkelltern Bereich: Hallo ihr lieben Bauexperten, ich saniere gerade unser Haus aus dem Jahr 1963. Es ist zu etwa 80 % unterkellert. Im Erdgeschoss haben wir im...
  4. Leerrohr unter Bodenplatte für WP vergessen - Neubau

    Leerrohr unter Bodenplatte für WP vergessen - Neubau: Hallo liebe Experten, bei unserem Neubau wurde vom Bauunternehmen das Leerohr unter der Bodenplatte zur Verbindung von Außen- und Inneneinheit...
  5. Hausanschluss günstige Möglichkeiten Leerrohr

    Hausanschluss günstige Möglichkeiten Leerrohr: Hallo, im Rahmen der Sanierung muss ich Durchführungen für Telefon, Fernsehen und Strom erneuern. Die ersten beiden hab ich bereits mit...