Regenfahlrohr: Ideen für Design beim EFH

Diskutiere Regenfahlrohr: Ideen für Design beim EFH im Außenwände / Fassaden Forum im Bereich Neubau; Liebe Mitglieder, liebe Experten unter uns, ich brauche eure Hilfe beim Design der RR an unserem Pultdach-Neubau. Ich habe mehrere Varianten...

  1. #1 Bvlgari, 25.12.2016
    Bvlgari

    Bvlgari

    Dabei seit:
    22.08.2016
    Beiträge:
    116
    Zustimmungen:
    1
    Beruf:
    IT
    Ort:
    Dortmund
    Liebe Mitglieder,
    liebe Experten unter uns,

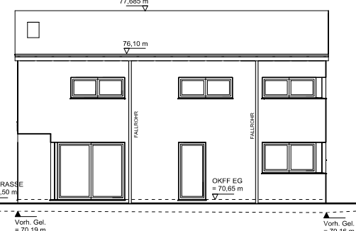
    ich brauche eure Hilfe beim Design der RR an unserem Pultdach-Neubau. Ich habe mehrere Varianten angehängt. Bin für Verbesserungsvorschläge sehr dankbar.

    p.s.: das wir einen kleinen Teil der Fassade im Dunkelgrau haben wollen steht außer Debatte :) Damit meine ich den mittleren Streifen in Grau.

    Frohes Fest und Guten Rutsch

    M.
     

    Anhänge:

Thema:

Regenfahlrohr: Ideen für Design beim EFH

Die Seite wird geladen...

Regenfahlrohr: Ideen für Design beim EFH - Ähnliche Themen

  1. Ideen gesucht: Terrasse im U-förmigen Haus schließen – wie Durchgang und dunklen Eckraum nutzen?

    Ideen gesucht: Terrasse im U-förmigen Haus schließen – wie Durchgang und dunklen Eckraum nutzen?: Hallo zusammen, wir überlegen, unser neu erworbenes älteres Haus umzubauen und würden uns sehr über Ideen oder Erfahrungen freuen. Das Haus ist...
  2. Idee für Fundament

    Idee für Fundament: Hallo zusammen, ich plane ein Holzhaus aus Blockbohlen mit Ständerwerk und Dämmung zu bauen. Ich habe eine Baugrunduntersuchung machen lassen und...
  3. Ideen gesucht: Rückseite HKV Richtung WC Vorwandelement

    Ideen gesucht: Rückseite HKV Richtung WC Vorwandelement: Hallo zusammen, Nachdem mein "Stufenproblem" jetzt erst mal erfolgreich planerisch gelöst ist (Ausführung in der zweiten Jahreshälfte :bau_1:)...
  4. Idee? Woher kommt die Feuchtigkeit am Sockelputz?

    Idee? Woher kommt die Feuchtigkeit am Sockelputz?: Liebe Bauexperten, ich bin neu hier und habe ein Problerm, leider bin ich mit meinen Ideen am Ende. Können Sie/ihr mir helfen? Bei unserem Haus...
  5. Alu Terassenüberdachung seitlich mit Sandwichplatten schließen. Ideen!? Erfahrung?

    Alu Terassenüberdachung seitlich mit Sandwichplatten schließen. Ideen!? Erfahrung?: Hallo zusammen, ich habe eine Alu-Terrassenüberdachung mit den Maßen ca. 5 × 3 m und überlege schon seit längerer Zeit, wie ich diese mit...