richtige Haushöhe bzw. Grundstückshöhe?

Diskutiere richtige Haushöhe bzw. Grundstückshöhe? im Tiefbau Forum im Bereich Neubau; Hallo Zusammen, wir haben am Montag die Baunazeig abgegeben und auch erst zu diesem Zeitpunkt die endgültigen Höhenangaben erfahren, Folgendes...

  1. Lahma

    Lahma

    Dabei seit:
    03.01.2017
    Beiträge:
    46
    Zustimmungen:
    1
    Beruf:
    IT Projektmanager
    Ort:
    Kiel
    Hallo Zusammen,

    wir haben am Montag die Baunazeig abgegeben und auch erst zu diesem Zeitpunkt die endgültigen Höhenangaben erfahren,

    Folgendes ist dabei entstanden:

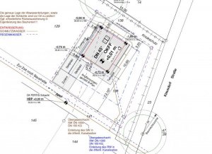
    - 30,24 m ü, NN OK Fertig Schacht
    - 30,00 m ü. NN OK gepl. Gelände (-0,24)
    - 30,25 m ü. NN OKFF (+0,01)

    - 1m müssen wir an der tiefsten ca. auffüllen.

    Das OKFF liegt somit auf Straßenniveau und das geplante Gelände knapp drunter. Was haltet Ihr von den o. g. Werten? Bin ich nicht evtl. zu tief?






    Höhe.jpg Unbenannt.jpg
     
  2. #2 Andybaut, 24.05.2017
    Andybaut

    Andybaut

    Dabei seit:
    02.04.2015
    Beiträge:
    5.127
    Zustimmungen:
    329
    Beruf:
    Architekt
    Ort:
    Baden-Württemberg
    Hallo,

    zu tief ist relativ.
    Wenn du mit deinem FFB tiefer wie der Schacht bist, brauchst du mindestens eine Rückstauklappe
    und wenn der Straßenkanal das Wasser nicht mehr aufnimmt wird´s dir vielleicht über´s Grundstück laufen.
     
  3. Lahma

    Lahma

    Dabei seit:
    03.01.2017
    Beiträge:
    46
    Zustimmungen:
    1
    Beruf:
    IT Projektmanager
    Ort:
    Kiel
    Hallo Andy,

    ich bin genau 1cm über dem OK FERTIG Schacht. Ich hoffe nicht, dass ich eine Rückstausicherung benötige.

    Lt. der Bauzeichnerin würde Sie evtl. später ein Aco rinne zwischen Stellplatz und Zufahrt. Die Entfernung vom Haus zur Straße sind knapp 12m mit viel Grünfläche. Lt. Ihrer Aussage wird das Wasser nicht bis zum Haus kommen. So habe ich das jetzt verstanden.
     
  4. #4 Andybaut, 24.05.2017
    Andybaut

    Andybaut

    Dabei seit:
    02.04.2015
    Beiträge:
    5.127
    Zustimmungen:
    329
    Beruf:
    Architekt
    Ort:
    Baden-Württemberg
    Hallo,

    1cm ist eigentlich zu wenig. 5-10 sind ratsam, auch wenn es soweit ich weiß keine fixe Zahl gibt.
    Aber wenn man mal sieht wie Wasser aus einem Gully spritzt, ist klar, dass 1cm nicht reicht.

    Es geht auch um den höheren von 2 Schächten.
    Wenn du zwischen Schacht A und B anschließt und die höher wie B bist,
    das Wasser aber von A nach B fließt, dann bist du vielleicht immer noch unter A.
    Wenn nun B verstopft, dann kann das Wasser entweder bei A oder bei dir rausdrücken.
     
  5. #5 bauspezi 45, 24.05.2017
    bauspezi 45

    bauspezi 45

    Dabei seit:
    20.02.2017
    Beiträge:
    1.780
    Zustimmungen:
    335
    Beruf:
    Meister der Steinkunst (Maurermeister)
    Ort:
    solingen wald
    Benutzertitelzusatz:
    iR.
    versteh nicht ganz hier geht es doch nur um die festgelegten Höhen OkFF,
    die Angaben der Kanalanschlußhöhe ist doch nicht bekannt ? oder?
     
  6. Lahma

    Lahma

    Dabei seit:
    03.01.2017
    Beiträge:
    46
    Zustimmungen:
    1
    Beruf:
    IT Projektmanager
    Ort:
    Kiel
    Kanalanschlusshöhe kenn ich leider nicht. Ich weiß nur, dass der OKFF 1cm höher liegt als die OK Fertig Schacht.
     
  7. #7 bauspezi 45, 24.05.2017
    bauspezi 45

    bauspezi 45

    Dabei seit:
    20.02.2017
    Beiträge:
    1.780
    Zustimmungen:
    335
    Beruf:
    Meister der Steinkunst (Maurermeister)
    Ort:
    solingen wald
    Benutzertitelzusatz:
    iR.
    mit dem 1 cm von wo gerechnet, direkt vor dem Grundstück ?

    wie sieht es denn bei den Nachbarn aus, falls schon vorhanden
     
  8. Lahma

    Lahma

    Dabei seit:
    03.01.2017
    Beiträge:
    46
    Zustimmungen:
    1
    Beruf:
    IT Projektmanager
    Ort:
    Kiel
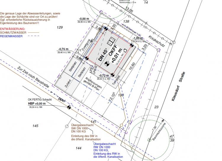
    Der OK Fertig Schacht (HBP)liegt auf der Straße vor unserem Grundstück und unser Haus ist ca. 13m entfernt zu diesem Schacht. Der Nachbar liegt auch Höher, vermutlich so 70 cm. Der Schmutzwasserschacht und Regenwasserschaft sind suf unserem Grundstück auch relativ weit entfernt

    Auf den Bildern im ersten Posting sieht man auch slles gut
     
  9. #9 Andybaut, 25.05.2017
    Andybaut

    Andybaut

    Dabei seit:
    02.04.2015
    Beiträge:
    5.127
    Zustimmungen:
    329
    Beruf:
    Architekt
    Ort:
    Baden-Württemberg
    Hallo,

    also du solltest das nochmals prüfen, da du ja sicher nicht direkt am Schacht in der Straße anschliesst.

    Was du braucht:
    Deine EFH, die Kanaldeckelhöhe der beiden Schächte zwischen denen du anschliesst.
    Solltest du direkt am Schacht anschliessen, dann noch den bergseitigen zweiten Schacht.

    Das Szenario ist immer das gleiche:
    der Schacht nach dem eigenen Anschluss fällt aus und ist verstopft.
    An welchem Punkt läuft das Abwasser dann raus :-)
     
  10. Lahma

    Lahma

    Dabei seit:
    03.01.2017
    Beiträge:
    46
    Zustimmungen:
    1
    Beruf:
    IT Projektmanager
    Ort:
    Kiel

    Auf dem Bild im Anhang ist die Situation dargestellt:

    - Abwasser -und Regenschacht sind auf meinem Grundstück.
    - Auf der Straße mittig befindet sich der öffentliche Schacht
    - 2 Gullys konnte ich auf meiner Seite, vor meinem Grundstück finden. Jeweils oben und unten vom Grundstück Unbenannt.jpg
     
  11. #11 bauspezi 45, 29.05.2017
    bauspezi 45

    bauspezi 45

    Dabei seit:
    20.02.2017
    Beiträge:
    1.780
    Zustimmungen:
    335
    Beruf:
    Meister der Steinkunst (Maurermeister)
    Ort:
    solingen wald
    Benutzertitelzusatz:
    iR.
    das ist ein Abwasser - Mischkanal, schön das schon zwei Übergabeschächte vorhanden sind.
    käme jetzt nur noch auf die Tiefe des Kanalanschlusses an.
    die Kanaldeckel der Übergabeschächte kann man dem Gelände anpassen.
     
  12. #12 Andybaut, 30.05.2017
    Andybaut

    Andybaut

    Dabei seit:
    02.04.2015
    Beiträge:
    5.127
    Zustimmungen:
    329
    Beruf:
    Architekt
    Ort:
    Baden-Württemberg
    du brauchst die Höhe von 2 Schächte nicht von einem.
    Lies nochmals #9
     
  13. Lahma

    Lahma

    Dabei seit:
    03.01.2017
    Beiträge:
    46
    Zustimmungen:
    1
    Beruf:
    IT Projektmanager
    Ort:
    Kiel
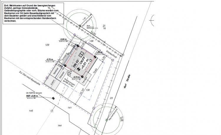
    Nun habe ich ein ganz anderes Problem. Der Knickschutzstreifen liegt auf meinem Grundstück und nich so wie meine Bauzeichnerin das gezeichnet hat, vor meinem Grundstück. Somit müssen wir die Hausposition ein wenig in den Süden versetzen, weil der Knickschutzstreifen nich aufgefüllt werden darf. Das ist ech sch...., weil hinter dem Haus jetzt ein Toter Raum entstehen wird.
     
  14. #14 Andybaut, 03.06.2017
    Andybaut

    Andybaut

    Dabei seit:
    02.04.2015
    Beiträge:
    5.127
    Zustimmungen:
    329
    Beruf:
    Architekt
    Ort:
    Baden-Württemberg
    Was ist ein "Knickschutzstreifen" ???
     
  15. Lahma

    Lahma

    Dabei seit:
    03.01.2017
    Beiträge:
    46
    Zustimmungen:
    1
    Beruf:
    IT Projektmanager
    Ort:
    Kiel
    IMG_9089.jpg Ein Streifen von 3m der auf meinem Grundstück liegt und zum Schutz von dem Knick vor meinem Grundstück dient. In Schleswig-Holstein nimmt man Knicks sehr ernst und die sollen auch geschützt werden. Die 3m beginnen ab dem Knichfuss
     
  16. Lahma

    Lahma

    Dabei seit:
    03.01.2017
    Beiträge:
    46
    Zustimmungen:
    1
    Beruf:
    IT Projektmanager
    Ort:
    Kiel
    Auf dem Bild sieht man wie es bei meinem Nachbar aussieht.
     
  17. #17 simon84, 04.06.2017
    simon84

    simon84
    Moderator

    Dabei seit:
    11.11.2012
    Beiträge:
    23.255
    Zustimmungen:
    6.901
    Beruf:
    Schrauber
    Ort:
    Muenchen
  18. #18 Andybaut, 04.06.2017
    Andybaut

    Andybaut

    Dabei seit:
    02.04.2015
    Beiträge:
    5.127
    Zustimmungen:
    329
    Beruf:
    Architekt
    Ort:
    Baden-Württemberg
    Interessant :-)
    Nie gehört, nach dem Bild dachte ich erst an eine Entwässerungsrinne.
    Danke Simon.

    Find ich schön, dass es sowas gibt. Da hat man bestimmt auch viele Vögel und Kleintiere drin.
     
Thema: richtige Haushöhe bzw. Grundstückshöhe?
Besucher kamen mit folgenden Suchen
  1. ngeländwhöhe neubau

    ,
  2. Grundstückshöhe ermitteln

    ,
  3. geländehöhe bauexperten

    ,
  4. grundstückshöhe,
  5. okff knapp über gelände,
  6. Grundstückhöhe ermitteln,
  7. hais aud strassen niveau oder drunter,
  8. Gelände oder ok straße,
  9. hausbau höhe festlegen,
  10. höhe haus zur straße,
  11. höhenplan efh,
  12. Garagenhöhe okff mit Nachbarn angleichen,
  13. haushoehe,
  14. geundstpckshöhe festgelegt,
  15. grundstückshöhe im verhältnis zum Haus,
  16. haushöhe ermitteln,
  17. Höhe okff,
  18. grundstückshöhe strassenniveau,
  19. haushöhe über straßenniveau
Die Seite wird geladen...

richtige Haushöhe bzw. Grundstückshöhe? - Ähnliche Themen

  1. Fenstereinbau richtig oder falsch?

    Fenstereinbau richtig oder falsch?: Hallo, wir haben uns neue Fenster geleistet und leider eine Menge Mist bisher erlebt. Vermessen, 6 Fenster komplett neu bestellen etc... Jetzt ist...
  2. Gratrolle so richtig?

    Gratrolle so richtig?: Bei unserem Dach ist mir aufgefallen dass man an ein paar Stellen die Latte ein wenig unter den Gratziegeln sieht. Habe Fotos rausgesucht, da...
  3. Fassadensockel sanieren aber richtig

    Fassadensockel sanieren aber richtig: Hi, ich bin neu hier im Forum und freue mich auf einen regen Austausch. Bei uns bröckelt der Sockel und ich würde gerne wissen, ob es damit getan...
  4. Welche Platten sind die richtigen?

    Welche Platten sind die richtigen?: Hallo zusammen, ich möchte in meinem neu gekauften Haus (Bestandsimmobilie) zwei Räume mit Trockenbauwänden abtrennen. Wand 1: Keller Maße ca....
  5. Fensterrahmen im Neubau nicht richtig gedämmt?

    Fensterrahmen im Neubau nicht richtig gedämmt?: Moin zusammen, ich habe eine Frage im Bereich Rollladenkasten/Fenster. Unser Haus ist ein Einfamilienhaus-Neubau von 2023. Jetzt war der erste...