Risse im 1 OG Innenwand hilfe

Diskutiere Risse im 1 OG Innenwand hilfe im Mauerwerk Forum im Bereich Neubau; Guten Tag Meine Frau und ich stehen vor der Entscheidung uns ein Haus zu kaufen. Das Haus ist von 2013 und so wie wir uns es wünschen. Bei der...

  1. #1 Cloudpixel, 05.08.2023
    Cloudpixel

    Cloudpixel

    Dabei seit:
    05.08.2023
    Beiträge:
    5
    Zustimmungen:
    0
    Guten Tag
    Meine Frau und ich stehen vor der Entscheidung uns ein Haus zu kaufen.
    Das Haus ist von 2013 und so wie wir uns es wünschen.
    Bei der Erstbesichtigung ist uns im 1 OG aufgefallen, dass es in jedem Zimmer Risse in der Wand gibt.
    Der Markler sagt, dies sei weil die Verkäufer dies in Eigenarbeit verputzt haben.
    Jetzt sind wir uns nicht wirklich sicher was wir davon halten sollen.
    Wir haben ein paar Bilder machen können aber leider ohne Maßstab..
    Vielleicht kann jmd. Eine grobe Einschätzung geben, ob es wirklich nur Setzungsrisse im Putz sind.

    Vielen Dank im Vorfeld!!
     

    Anhänge:

  2. Berndt

    Berndt

    Dabei seit:
    12.01.2011
    Beiträge:
    1.205
    Zustimmungen:
    495
    Beruf:
    Stuckateurmeister
    Ort:
    RLP
    Alte Statikerweisheit : es gibt kein Haus ohne Rissse !

    Das sind keine reine Putzrisse, aber nach 10 Jahren dürfte da nicht mehr viel passieren.
    Wenn der Preis stimmt, wegen der Risse noch was runterhandeln und gut ist
     
    Cloudpixel gefällt das.
  3. #3 Cloudpixel, 05.08.2023
    Cloudpixel

    Cloudpixel

    Dabei seit:
    05.08.2023
    Beiträge:
    5
    Zustimmungen:
    0
    Vielen Dank für die Antwort.
    Der Preis ist wirklich sehr gut ! Wir dachten nun viel zu gut, aber wenn nach 10 Jahren nicht mehr viel passiert, dann sollte das OK sein.
     
  4. SIL

    SIL

    Dabei seit:
    06.05.2018
    Beiträge:
    10.865
    Zustimmungen:
    4.211
    Beruf:
    M. Sc. Dipl. Ingenieur
    Ort:
    6210
    Unsinn. Da hier kein Grunriss beigefügt ist und keine Materialien...bei Foto 1 und 2 stimme ich Berndt zu 3/4 ist Glaskugel ...
    Das gibt es nicht.
     
    Cloudpixel gefällt das.
  5. #5 Cloudpixel, 06.08.2023
    Cloudpixel

    Cloudpixel

    Dabei seit:
    05.08.2023
    Beiträge:
    5
    Zustimmungen:
    0
    Das klingt gar nicht gut....

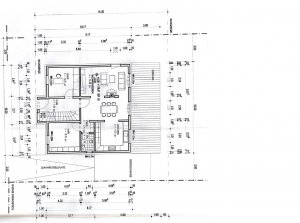
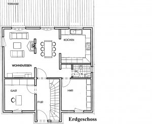
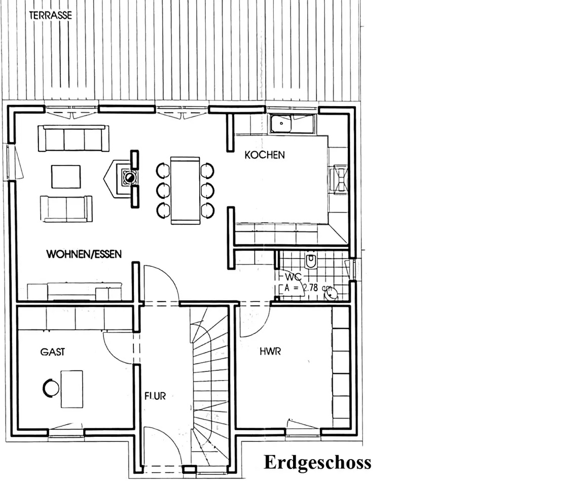
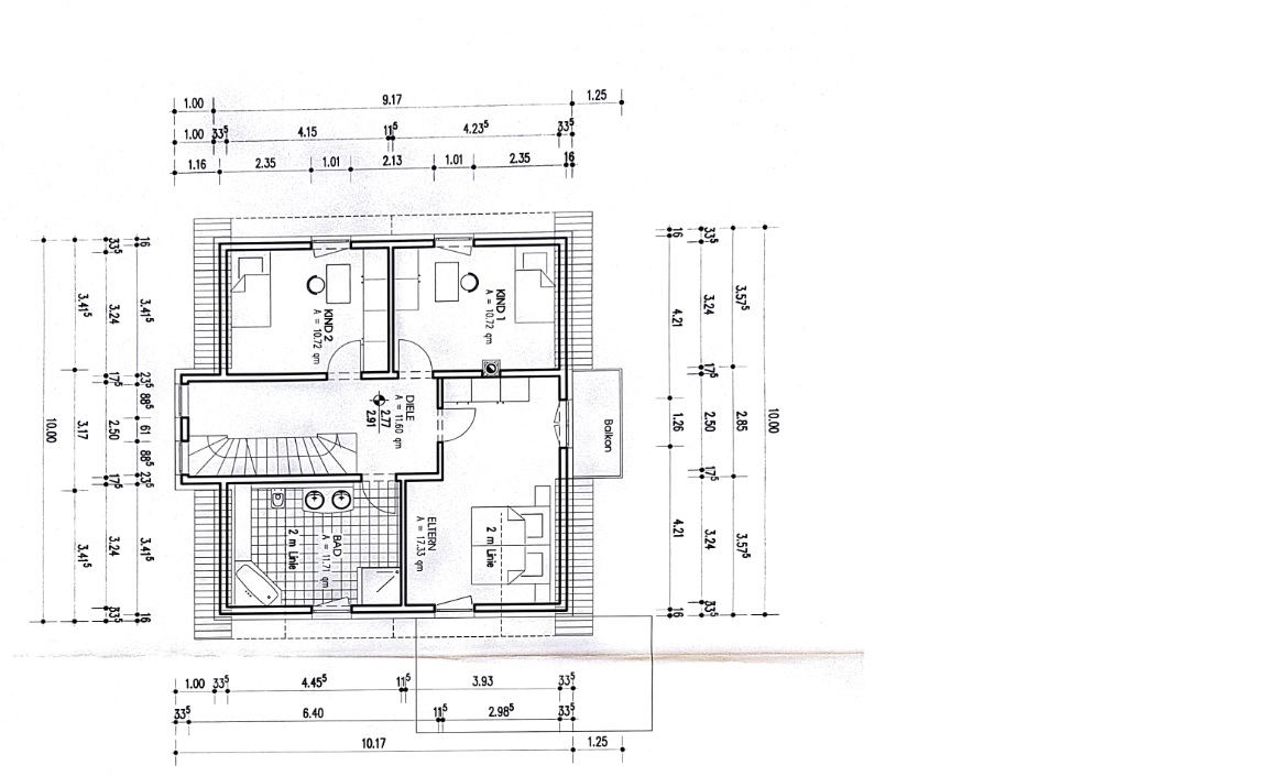
    Zu den Materialien kann ich leider nichts sagen.. Die Grundrisse kann ich hochladen.
    Mit super Paint-Skills habe ich versucht die Orte der Bilder dem Grundriss des OG zuzuordnen.

    mfg
     

    Anhänge:

  6. #6 Gast 85175, 06.08.2023
    Gast 85175

    Gast 85175 Gast

    Haben die auch in "Eigenarbeit" den Rohbau hochgezogen? Oder war das der Onkel Karl zusammen mit einem halben Dutzend Saufkumpanen?

    Die Bezeichnungen in den Grundrissen hättest dir sparen können, weil die Bezeichnung der Bilder ist anders... Wie auch immer, es ist zu gefühlten 95% so:

    Vertikaler Riss in der Ecke: Fehlender Mauerweksverbund.
    Vertikaler Riss mitten in der Wand: Beim "freistehenden" Kamin in der Wandebene wurden keine Bewegungsfugen im Putz ausgebildet.
    Treppenförmiger Riss: Durchriss des tragenden Mauerwerks.
    Horizontaler Riss: Man weiß nicht wie man sowas hinbekommt...

    Bei BJ 2013 ist das jedenfalls sehr ungewöhnlich, vor allem wenn es sich ausschließlich aufs OG beschränkt...
     
  7. SIL

    SIL

    Dabei seit:
    06.05.2018
    Beiträge:
    10.865
    Zustimmungen:
    4.211
    Beruf:
    M. Sc. Dipl. Ingenieur
    Ort:
    6210
    Nein , das hast du missverstanden, diese Risse haben nichts mit der Ausführung des Putzes zu tun unabhängig ob Eigenleistung oder Firma , die Ursache ist eine andere .
    Der Chilli wieder , jetzt mit deinen Grundriss etc alle Risse Malersache..
    @chillig80 wie war das mit der Gewölbewirkung na...Stumpfstoss an der Wand , Riss gegenüber der Treppe etc schön wäre noch MW Material etc
    Alles nichts Weltbewegendes!
     
    Cloudpixel gefällt das.
  8. #8 Cloudpixel, 06.08.2023
    Cloudpixel

    Cloudpixel

    Dabei seit:
    05.08.2023
    Beiträge:
    5
    Zustimmungen:
    0
    Vielen Dank für die Antworten !
    Jetzt weiß man gar nicht genau was man glauben darf..
    Das wäre natürlich super !
    Sind mit MW die Maßge gemeint?
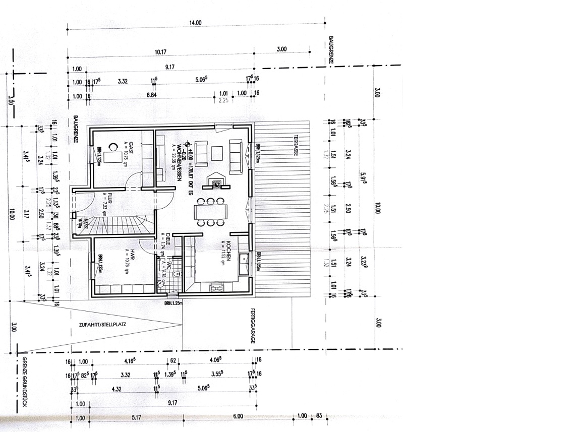
    Ich kann die Grundrisse nochmal mit Maßen anhängen.

    mfg
     

    Anhänge:

  9. #9 SIL, 06.08.2023
    Zuletzt bearbeitet: 06.08.2023
    SIL

    SIL

    Dabei seit:
    06.05.2018
    Beiträge:
    10.865
    Zustimmungen:
    4.211
    Beruf:
    M. Sc. Dipl. Ingenieur
    Ort:
    6210
    Nein die verwendeten Materialien.
    Das bezog sich auf Chilli seinen Kommentar
    Eben nicht , hier ist ein 'Standard EFH ' mit den üblichen MW , aussen MW vllt 30er T 14 oder T 10 oder analog HBL Bims whatever innen KS eventuell sogar Porenbeton, die Rissbildung ist typisch für einen 'Materialmix' und entsprechender Feuchte/ Nässe auch der getreppte Verlauf , zudem 2013 haben die wenigsten KWL maximal dezentrale Lüftung und das war es auch schon, ich sehe hier erstmal nichts ungewöhnliches.
    Die Risse können sich ja auch schon länger befinden , eine zeitliche Angabe ist ja nicht vorhanden.
    @Fabian Weber oder @chillig80 können ja gerne korrigieren falls ich arg daneben liege oder wer sonst mag..
    Edit: falls du die Möglichkeit hast begehe halt nochmals mit einem SV oder Bau.- Ing Arch , eventuell ist eine energetische Sanierung oder Teil auch notwendig
     
    Cloudpixel gefällt das.
  10. #10 Cloudpixel, 06.08.2023
    Cloudpixel

    Cloudpixel

    Dabei seit:
    05.08.2023
    Beiträge:
    5
    Zustimmungen:
    0
    Vielen Dank für die sehr hilfreiche Antwort !

    Wir werden ein Gutachter beauftragen und mit dem einmal durchgehen.

    mfg
     
  11. #11 Limit23, 29.08.2024
    Limit23

    Limit23

    Dabei seit:
    29.08.2024
    Beiträge:
    1
    Zustimmungen:
    0
    Hallo zusammen,

    ich wollte keinen neuen Thread aufmachen und da wir exakt die gleichen, treppenförmigen Risse in der nicht tragenden Innenwand im 1. OG haben wollte ich hieran anknüpfen.

    Ich denke die Risse entstehen bei uns, da die betroffene Wand mittig auf der Decke des EG steht. Diese Decke des EG bzw. Bodenplatte des 1.OG ist recht lang und hat keine tragende Wand unter sich - bedeutet also: sie biegt sich naturgemäß minimal durch. (Laut GU, was auch logisch ist.)

    Nun ist das Haus aber mit BJ 2009.

    Wie bekomme ich diese Risse in den Griff? Gibt es eine Verarbeitung die eine gewisse Toleranz ermöglicht?

    Vielen dank schonmal für eure Expertise :-)
     
Thema: Risse im 1 OG Innenwand hilfe
Besucher kamen mit folgenden Suchen
  1. rigipsplatte gerissen

Die Seite wird geladen...

Risse im 1 OG Innenwand hilfe - Ähnliche Themen

  1. Risse im OG Innenwände

    Risse im OG Innenwände: Hallo zusammen, wir haben vor zwei Jahren unser Haus gebaut (Massivbau) und nun sind seit einiger Zeit im Obergeschoss Risse an den Wänden...
  2. Riss Innenwand

    Riss Innenwand: Hallo Ich bräuchte mal Hilfe bzw Euren Rat. Ich habe heute einen Schrank abgebaut und dahinter einen Riss entdeckt. Der Riss geht komplett von...
  3. Riss in einer nicht-tragenden Innenwand

    Riss in einer nicht-tragenden Innenwand: Hallo zusammen, vielleicht hat hier jemand eine Ahnung. Unser Neubau steht seit 2-3 Jahren, es gibt keinen einzigen Riss seither. Auch nicht von...
  4. Risse im Innenputz - Ich brauche HILFE!

    Risse im Innenputz - Ich brauche HILFE!: Hallo Bauexperten! Ich weiß dass dieses Thema des öfteren schon behandelt wurde, aber ich muss leider diesen Thread eröffnen da ich sicher...
  5. Hilfe, Risse in der Innenwand

    Hilfe, Risse in der Innenwand: Hallo, wir haben heute an einer Innenwand einige Risse festgestellt. In unserem Neubau (3/4 Jahr) gibt es im ersten Stock zwei Kinderzimmer....