Risse im Mauerwerk - Ursache? Ernstes Problem?

Diskutiere Risse im Mauerwerk - Ursache? Ernstes Problem? im Baumurks in Wort und Bild Forum im Bereich Rund um den Bau; Hallo liebe Bauexperten, ich bin etwas ratlos und würde mich sehr über eine fachkundige Meinung freuen. In den Jahren 2012 und 2013 haben wir...

  1. #1 Andreas35, 15.06.2017
    Andreas35

    Andreas35

    Dabei seit:
    15.06.2017
    Beiträge:
    3
    Zustimmungen:
    0
    Beruf:
    Angestellter
    Ort:
    München
    Hallo liebe Bauexperten,

    ich bin etwas ratlos und würde mich sehr über eine fachkundige Meinung freuen.
    In den Jahren 2012 und 2013 haben wir unseren Bungalow zu einem MFH mit erstem Stock und Dachgeschoss erweitert. Im Dachgeschoss haben wir jetzt festgestellt, dass sich an mehreren Stellen Risse gebildet haben. Mit einer gewissen Rissbildung ist bei einem Neubau wohl zu rechnen. Wir sind allerdings etwas überrascht an wie vielen Stellen sich nun Risse zeigen und wie groß diese teilweise sind. Und wir sind sehr unsicher ob das vielleicht ein größeres Problem sein könnte.

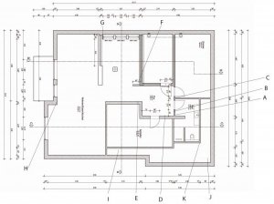
    Im Anhang ein Grundriss vom Dachgeschoss und vom Dachaufbau. Die Buchstaben bezeichnen die Stelle wo die Fotos gemacht wurden. Jeder Fotoname hat am Ende einen Buchstaben, der zu dem gleichen Buchstaben im Plan gehört.
     
  2. #2 Andreas35, 15.06.2017
    Andreas35

    Andreas35

    Dabei seit:
    15.06.2017
    Beiträge:
    3
    Zustimmungen:
    0
    Beruf:
    Angestellter
    Ort:
    München
    hier ein erster Schwung mit Fotos
     

    Anhänge:

  3. #3 Andreas35, 15.06.2017
    Andreas35

    Andreas35

    Dabei seit:
    15.06.2017
    Beiträge:
    3
    Zustimmungen:
    0
    Beruf:
    Angestellter
    Ort:
    München
    und noch weitere Fotos
     

    Anhänge:

  4. #4 Andybaut, 15.06.2017
    Andybaut

    Andybaut

    Dabei seit:
    02.04.2015
    Beiträge:
    5.127
    Zustimmungen:
    329
    Beruf:
    Architekt
    Ort:
    Baden-Württemberg
    Hallo,

    das gute zuerst. So ein Riss hat die positive Eigenschaft, dass er einem die Richtung in der das Problem liegt vorgibt.
    Im 90° Winkel zum eigentlichen Riss ist eine Zugkraft am arbeiten, die die beiden hälften auseineranderbringt.

    Bei dir heißt das konkret, dass sich das Gebäude in Teilbereichen scheinbar noch ein wenig setzt.
    Ist insofern auch nicht verwunderlich, da die alte Struktur nun ja mehr Auflast hat und sie
    darunter ein wenig nachgibt.

    Sind die Wände im OG direkt über den Wänden im EG? Ich vermute mal nein, denn das wäre eine mögliche Ursache der Lastprobleme.

    Es wird ja sicher ein Statiker mit am Start gewesen sein. Was hatte der an Unterlagen für die Erweiterung bezüglich Altbestand
    und was hat er euch bezüglich Rissen gesagt?

    Vorab:
    jeder Statiker und jeder Architekt wird euch bei sowas auf mögliche spätere Risse hinweisen.
     
  5. #5 bauspezi 45, 15.06.2017
    bauspezi 45

    bauspezi 45

    Dabei seit:
    20.02.2017
    Beiträge:
    1.780
    Zustimmungen:
    335
    Beruf:
    Meister der Steinkunst (Maurermeister)
    Ort:
    solingen wald
    Benutzertitelzusatz:
    iR.
    in einem Bild seh ich keine richtige Verschraubung, sieht nach "angetackert" aus.
    wenn der Rest nicht entsprechend richtig Verschraubt wurde kann es zu den Abrissen kommen.
    ist nur eine Vermutung von mir,
    so richtig gravierend sieht es nicht aus lediglich schlecht verarbeitet
     
Thema: Risse im Mauerwerk - Ursache? Ernstes Problem?
Besucher kamen mit folgenden Suchen
  1. risse im mauerwerk ursachen

    ,
  2. risse über den türen im mauerwerk nach 2 jahren ursache ?

Die Seite wird geladen...

Risse im Mauerwerk - Ursache? Ernstes Problem? - Ähnliche Themen

  1. Risse im Mauerwerk einschätzen

    Risse im Mauerwerk einschätzen: Moin an die Experten....Ich habe vor ein Altbau zu kaufen, welcher Risse in der Fassade aufweist. Kann mir jemand anhand des Schadensbildes eine...
  2. Risse im Mauerwerk

    Risse im Mauerwerk: Hallo liebe Bauexperten. Ich selbst habe 2014 neu gebaut , ging alles soweit gut. Seitdem habe ich aber immer andere Häuser im Blick und auch...
  3. Welche Möglichkeiten Risse Mauerwerk

    Welche Möglichkeiten Risse Mauerwerk: Hallo die Risse sind ca 1cm Breit und gehen komplett durch. Welche Möglichkeiten gibt es. Das Mauerwerk ist von 1964
  4. Risse im Mauerwerk Handlungsbedarf?

    Risse im Mauerwerk Handlungsbedarf?: Guten Tag, ich habe das Problem dass Risse im Mauerwerk auf beiden Seiten der Hausecke sind. Setzungsrisse am Sockel konnte ich nicht feststellen....
  5. Risse im Mauerwerk aus Porenbeton

    Risse im Mauerwerk aus Porenbeton: Guten Abend. Ich bitte um Hilfe zu Rissen im Mauerwerk. Das Gebäude ist Baujahr 1996 und wurde mit Porenbetonsteinen gemauert. Ich vermute die...