Sanierung Altbauwohnung mit Innendämmung und Fußbodenheizung

Diskutiere Sanierung Altbauwohnung mit Innendämmung und Fußbodenheizung im Heizung 2 Forum im Bereich Haustechnik; Hallo, ich saniere gerade die gesamte Erdgeschoss-Etage und bin mir bzgl. des Heizsystems noch etwas unsicher, vor allem in Bezug auf den Rest...

  1. #1 MarcS, 21.07.2024
    Zuletzt bearbeitet: 21.07.2024
    MarcS

    MarcS

    Dabei seit:
    09.11.2017
    Beiträge:
    12
    Zustimmungen:
    2
    Hallo,


    ich saniere gerade die gesamte Erdgeschoss-Etage und bin mir bzgl. des Heizsystems noch etwas unsicher, vor allem in Bezug auf den Rest des Hauses. Gleichzeitig rennt mir etwas die Zeit weg da bald Estrich kommt/ Decken zugemacht werden...


    Zu den Randbedingungen:

    Altbau Bj 1900, Fassade unter Denkmalschutz. Aktuell überall Gas Etagenheizungen (Bj 2016-2021, nur eine ältere Bj 2004). Leider damals auf das falsche Pferd gesetzt...

    Herausforderung: Wg Hanglage ist teilweise kein Keller, ich komme nicht einfach mit Rohren auf die andere Seite vom Haus. Das kann ich jetzt nur während der Sanierung durch die abgehängte Decke im Erdgeschoss vorbereiten und die Decken werden in 2 Wochen zugemacht

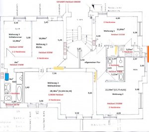
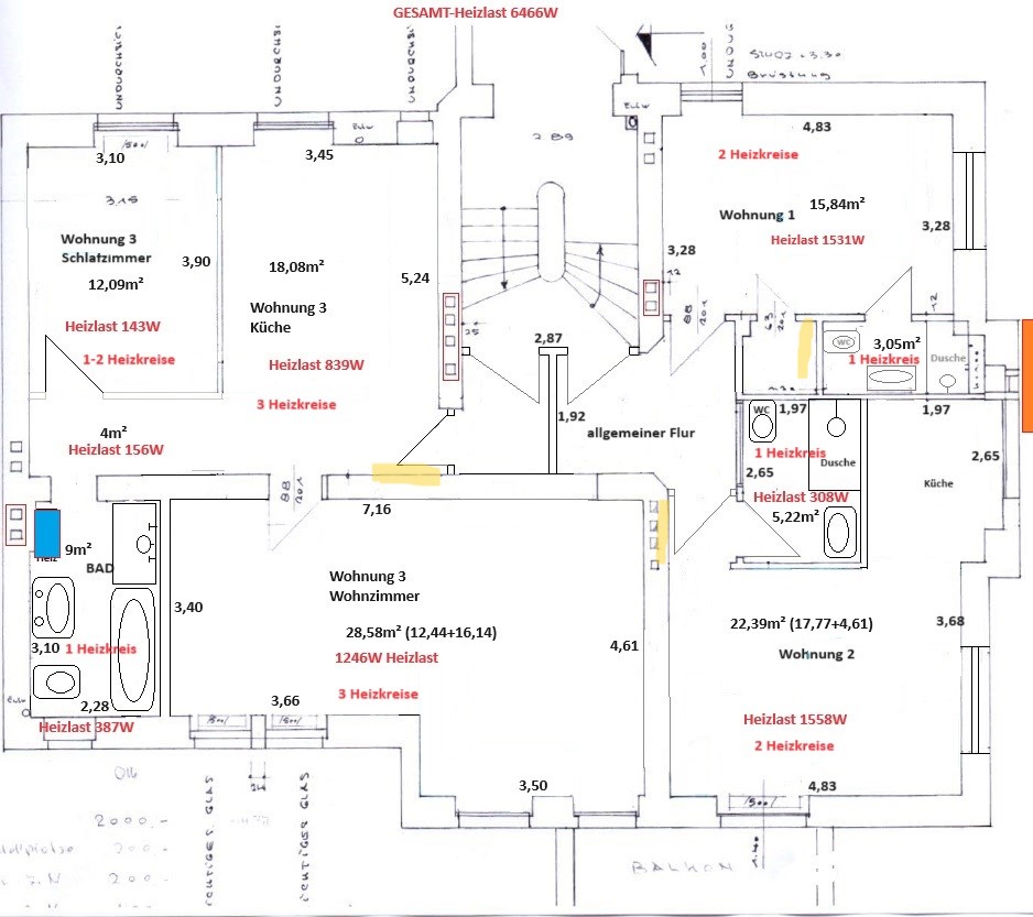
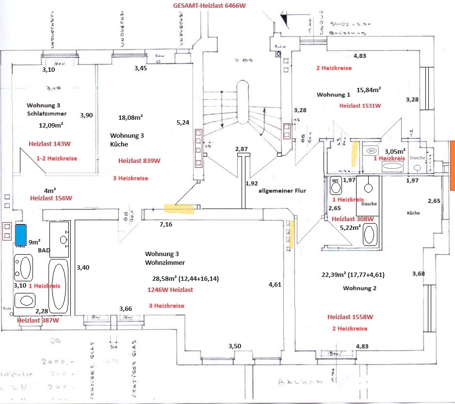
    Im Erdgeschoss (135m² Gesamtfläche) werden es drei Wohnungen die Warm vermietet werden sollen.
    62cm Ziegelstein Außenwände wurden innen mit 80er Multipor gedämmt. Wärmeschutz Außenwände ist laut ubakus U = 0,36 W/(m²K). Alle Fenster mit Schallschutzverglasung und U-Werten 0,9-1,1. Eine der drei Häuserseiten ist direkt mit dem Nebenhaus verbunden. Neuer Nass-Heizestrich / Fußbodenheizung kommt jetzt rein. Ich komme auf eine Heizlast von 6466W (Berechnet mit der App "Residio Heizlastberechnung" unter Verwendung der tatsächlichen Fensterwerte und UBAKUS Werten der Außenwände.)

    Die 24kW Junkers Gas-Etagenheizung (Kombitherme) Bj2019 (Durchlauferhitzerprinzip) im EG Whg3 welche vorher die gesamte Erdgeschoss Etage mit alten Heizkörpern/ ohne Dämmung/ schlechten Fenstern geheizt hat schmeiße ich wohl schweren Herzens raus. Für ein Hybridsystem wäre zuviel Rohr (ca25m oneway) dazwischen und wäre fehleranfälliger.

    Aufstellung einer Luft Wärmepumpe nur im Garten möglich (oranger Balken im Grundriss). Andere Aufstellorte oder Wandhängend sind ausgeschlossen

    Hanglage, unter Wohnung 3 und größtenteils Whg2 ist eine (beheizte) Wohnung. Unter Whg 1 ist unbeheizter Keller, Kellerdeckendämmung ist geplant.

    Vor dem Treppenhaus kommt zuerst eine 120 Jahre alte Etagentür (Massives Holz aber 1-Fach Glas). Dahinter kommen Wohnungseingangstüren Klimaklasse 3. Dieser Flur bleibt unbeheizt.

    Photovoltaik nur eingeschränkt möglich (werde wahrscheinlich im nicht sichtbaren Bereich zwei 660W Module an die Fassade machen, besser wie nix). Auf dem Dach unbezahlbar wg Denkmalschutz.

    Separater Wärmepumpen-Stromzähler bzw Tarif möglich macht denke ich Sinn.

    Boden
    Geplanter Bodenaufbau: Bis Oberkante Oberriemen (Stahlträger) kommt eine gebundene Schüttung drauf. Dann 2cm EPS Trägerplatten, 16mm Rohr Fußbodenheizung mit 10cm Verlegeabstand. In den Bädern kommt 4,5cm Zementestrich, im Rest kommt 4,5cm Calziumsulfatestrich (Besonderheiten sind bekannt). Darauf in der gesamten Etage 120x60 Fließen.

    Decken
    Die Decken werden abgehängt und bekommen min 100er Mineralwolle rein. Dort werden alle Rohre verlegt.

    Rohre
    Für die Heizung im EG wird ein 32er Geberit Mepla mit 20mm starker Steinwolle-Rohrdämmung gedämmt. In den Decken kommen zusätzlich Mineralwolle-Matten drüber und drunter. Davon Abzweigungen zu den Heizkreisverteilern. Kann ich die Abzweigung in 32er Mepla machen (Rohr, Pressbacken usw hab ich da) oder sollte ich auf 26er Mepla gehen? Ich wollte die Heizkreisverteiler von Heima24 nehmen, die haben wohl 3/4" Anschlüsse. Außerdem die Hauptrohre bis ans Flurende geführt um später zwei weitere Wohneinheiten darüber anschließen zu können.
    Jede der drei Wohnungen bekommt einen Heizkreisverteiler mit Wärmemengenzähler. Wohnung 1 und 2 jeweils 3 Heizkreise, Wohnung 3 bekommt 8 Heizkreise.
    Kaltwasser-Steigleitung wurde bereits durch 32er Mepla ersetzt.
    Warmwasser würde ich ebenfalls eine 32er Mepla Steigleitung legen sowie eine 16er Mepla als Zirkulationsleitung.

    Vorbereitung andere Wohneinheiten:
    Die anderen beiden Wohneinheiten sind nicht gedämmt, 2 fach Fenster und normale Heizkörper. Frage ist ob ich dafür nochmal zwei 32er Mepla als Reserve als zweiten Heizkreis legen sollte da diese eine höhere Vorlauftemperatur brauchen werden (später habe ich keine Chance mehr dort Rohre hinzulegen, beide Etagenheizungen sind am anderen Ende vom Haus!). Ob ich diese anderen Wohnungen jemals dämme ist unklar, da diese in gutem Zustand sind und der Aufwand / Kosten riesig ist (im EG hatte ich keine Wahl, das musste entkernt werden).

    Wämepumpe:
    Bei einer berechneten Heizlast von 6466W (plus Warmwasser), reicht dann eine Panasonic Wärmepumpe WH-MDC07J3E5 Kompakt 7 kW Gen. J? Ich wollte dann einen Brauchwasserspeicher in den Keller in der Nähe der Monoblock machen. Ich kann ja die Wärmepumpe direkt an die Heizungs-Steigleitungen anschließen, richtig? Pufferspeicher wird ja auch immer von abgeraten...

    Legionellen/ Warmwasser
    Wie schaut es mit Legionellen aus? Das ist ja dann Zentralheizungsprinzip, somit 55 Grad vorgeschrieben. Nach meinen Infos reicht da kein Legionellenprogramm. Frisst mir das die Haare vom Kopf? Frischwasserstation scheint ja sehr teuer zu sein, würde man denn damit die 55Grad Regelung überhaupt umgehen?



    Ich habe sicherlich noch ein paar Denkfehler drin, hoffe Ihr könnt mir einige Tipps/ Empfehlungen geben. Vielen Dank im Voraus!
     

    Anhänge:

Thema:

Sanierung Altbauwohnung mit Innendämmung und Fußbodenheizung

Die Seite wird geladen...

Sanierung Altbauwohnung mit Innendämmung und Fußbodenheizung - Ähnliche Themen

  1. Sanierung 1990er Elternhaus für Eigengebrauch

    Sanierung 1990er Elternhaus für Eigengebrauch: Moin zusammen, meine Frau und ich würden gerne das Haus meiner Eltern übernehmen. Aufgrund der Umstände “müssten” wir es kaufen, Erbe oder...
  2. Riss Kellerdecke Plattenstoß Sanierung

    Riss Kellerdecke Plattenstoß Sanierung: Hallo Zusammen, vielleicht kann mir hier einer von euch weiterhelfen. Parallel warte ich auch noch auf die Rückmeldung einer Tragwerksplanerin,...
  3. Fassadenpflege / Sanierung Intervall

    Fassadenpflege / Sanierung Intervall: Guten Morgen, bei uns in der WEG (6 Parteien auf 3 Stockwerken) stellt sich aktuell die Frage, ob und wann die Fassade BJ 1995 mit 5 cm...
  4. Sanierung Altbauwohnung - Was macht Sinn?

    Sanierung Altbauwohnung - Was macht Sinn?: Hallo zusammen, wahrscheinlich komme ich jetzt schon wieder mit einem Altbekannten Thema - Energetische Maßnahmen im Altbau. Kurze Beschreibung...
  5. Sanierung Altbauwohnung

    Sanierung Altbauwohnung: Liebe Experten, ich stehe kurz vor dem Kauf einer 115 qm 4-Zimmer-Eigentumswohnung (Bj 1905). Das Gemeinschaftseigentum wird vom jetzigen...