Sanitäranordnung im Bad Neubau

Diskutiere Sanitäranordnung im Bad Neubau im Sanitär Forum im Bereich Haustechnik; Hallo liebe Mitglieder, Wir sind eine 4 köpfige Familie die gerade in der haus Planung sind. Der Grundriss ist soweit fertig, nun bin ich nicht...

  1. Mimi

    Mimi

    Dabei seit:
    17.05.2021
    Beiträge:
    8
    Zustimmungen:
    0
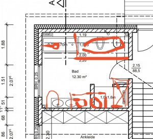
    Hallo liebe Mitglieder,
    Wir sind eine 4 köpfige Familie die gerade in der haus Planung sind. Der Grundriss ist soweit fertig, nun bin ich nicht mit der Sanitäranordnung im Bad zufrieden (und mit der Küche gibt es paar Schwierigkeiten...) und hoffe auf Hilfe von euch :-).
    Hättet ihr vieleicht einen Tipp wie man es anordnen sollte, mir geht's darum dass ich kein Platz finde wo man Schränke aufhängen kann... (für frische Handtücher, baduntensilien und Co.) Das Fenster können wir von 1,51 auf 1 Meter schmaler machen, oder es evtl. auch ein normales Fenster nehmen anstatt bodentief. Die Dusche soll gemauert sein! Vielen lieben Dank!
    Lg
     

    Anhänge:

  2. #2 Fabian Weber, 17.05.2021
    Fabian Weber

    Fabian Weber

    Dabei seit:
    03.04.2018
    Beiträge:
    16.354
    Zustimmungen:
    6.501
    Lass das Bidet weg...
     

    Anhänge:

  3. Mimi

    Mimi

    Dabei seit:
    17.05.2021
    Beiträge:
    8
    Zustimmungen:
    0
    @Fabian Weber vielen Dank, aber ich denke es wird doch klein in der Dusche, da dort die schräge ist, und mein Mann 1,98 cm groß ist.
     
  4. #4 Fabian Weber, 17.05.2021
    Fabian Weber

    Fabian Weber

    Dabei seit:
    03.04.2018
    Beiträge:
    16.354
    Zustimmungen:
    6.501
    Das ist doch nicht groß :)

    Ja sorry, die Dachschräge habe ich übersehen.

    Die gemauerte Dusche ist aber schon dunkel, das sollte man bedenken.
     
    simon84 gefällt das.
  5. Mimi

    Mimi

    Dabei seit:
    17.05.2021
    Beiträge:
    8
    Zustimmungen:
    0
    @Fabian Weber :not_w1: ich wollte mir gerne die Arbeit erleichtern, um nicht jeden Tag die Glasscheibe der Duschtür zu putzen.
     
  6. #6 Jo Bauherr, 17.05.2021
    Jo Bauherr

    Jo Bauherr

    Dabei seit:
    19.06.2018
    Beiträge:
    1.047
    Zustimmungen:
    511
    Beruf:
    (Ex)-Vermieter
    Ort:
    Randberlin
    Ich würde erstmal vorschlagen, die Badtür als linke Tür zu planen - damit man nicht als Erstes auf das WC sieht... (Und da Türen besser immer zum Fenster hin öffnen sollten, wäre auch das gleich erledigt.)
    Dazu nur noch den Doppelwaschtisch zum Fenster/Schacht hin verschieben, so dass links davon (Richtung Dusche) Schrankplatz entsteht.

    Btw.: im Schlafzimmer würde ich die Ankleide besser an der Eingangstür positionieren. Also Zugang zum Schlafzimmer durch die Ankleide. Am Besten mit Tür/Schiebetür getrennt. Dann kann eine(r) früher aufstehen ohne den/die andere(n) durch das Ankleidegewusel ("was ziehe ich denn heute an ...") wach zu machen ...

    .
     
  7. Mimi

    Mimi

    Dabei seit:
    17.05.2021
    Beiträge:
    8
    Zustimmungen:
    0
    @Jo Bauherr vielen Dank, das wäre eine Möglichkeit, jedoch gefällt mir dieser Heizkörper beim reinkommen an der Dusche nicht, vielleicht diesen dann irgendwo anders platzieren..
    Das mit der Ankleide, geht leider nicht, da wir noch ganz kleine Kinder haben, die nachts ganz oft noch zu uns kommen und das ist etwas schwierig dann für die durch die ankleide zu laufen
     
  8. #8 Kriminelle, 18.05.2021
    Kriminelle

    Kriminelle

    Dabei seit:
    16.05.2013
    Beiträge:
    3.799
    Zustimmungen:
    2.133
    Beruf:
    .
    Ort:
    Niedersachsen
    Wenn man gar nichts ändert, außer dass man mal Wanne, Toi und Bidet etwas in den Raum schiebt, so 40cm , hätte man Ablagefläche für Handtücher auf dem Podest hinter der Wanne und Toi. Über Toi und Bidet könnte man Hängeschränke auf die Installationswand bündig setzen. Links und rechts vom Waschtisch ist Platz, auch darunter für Schubladen, und den Spiegel kann man auch auf die Vorwand setzen als Einbauschrank mit Spiegelschiebetüren.
    Mich würde eher die gefangene Ankleide stören und der lange Weg wieder Retour am Bett vorbei. Das stört nämlich die Person, die noch etwas länger schlafen dürfte, es durch ständiges Licht an Licht aus, gestört wird. Zumindest würde ich den Zugang der Ankleide nach vorn setzen.
     
  9. SvenvH

    SvenvH
    Moderator

    Dabei seit:
    22.11.2019
    Beiträge:
    4.170
    Zustimmungen:
    1.584
    Das mit dem Stauraum im Bad wird meiner Meinung nach viel zu überbewertet. Letztendlich hat man sowieso immer pro Person ein Handtuch am Hhk und kann dann eins als Ersatz in den Unterschrank packen. Rest in den Hwr oder Kleiderschrank. Neben dem Waschbecken ist ja locker noch Platz für einen 40er Hochschrank. Ich finde die Aufteilung in Ordnung. Ansonsten das Fenster weglassen und durch zwei Dachflächenfenster ersetzen. Das würde eine ganz neue Situation ergeben.
     
  10. Mimi

    Mimi

    Dabei seit:
    17.05.2021
    Beiträge:
    8
    Zustimmungen:
    0
    Vielen Dank @Kriminelle da ist eine schräge, somit kann ich leider keine hängeschränke über WC hängen, das mit dem zugung der Ankleide ist ein guter Tipp danke.
     
  11. Mimi

    Mimi

    Dabei seit:
    17.05.2021
    Beiträge:
    8
    Zustimmungen:
    0
    Vielen Dank @SvenvH, naja Platz braucht man auch für föhns, andere haaruntensilien in einen 40 kriege ich ja leider nicht viel rein, Dachfenster werden wir nicht machen, da es genau die Wand ist die zur Straße guckt und das Fenster wird dann in der Fassade fehlen.
     
  12. #12 Kriminelle, 18.05.2021
    Kriminelle

    Kriminelle

    Dabei seit:
    16.05.2013
    Beiträge:
    3.799
    Zustimmungen:
    2.133
    Beruf:
    .
    Ort:
    Niedersachsen
    Deshalb schlage ich auch vor, die Abseite in der Schräge abzukoffern, sodass man bspweise bei 1,50 landet. Die Abkofferung über Toi und Bidet dann als Podest ausführen und darauf dann Einbauschränke zu setzen.
    Gleiches würde ich im Übrigen im SZ/Ankleide machen: SZ/Ankleide Tausch, dann unter der Schräge die Schränke setzen (keine gekauften, nur Schiebetüren plus Regaleinheiten/Stange)
     
    simon84 gefällt das.
  13. #13 Surfer88, 18.05.2021
    Surfer88

    Surfer88

    Dabei seit:
    17.12.2018
    Beiträge:
    1.098
    Zustimmungen:
    467
    Ich würde das ganze so umgestalten.
    Duschausgang zum Waschtisch, dann komtm mehr Licht rein.
    Bidet fällt weg.
    WC und wanne tauschen ihre Plätze, damit man nicht auf dem präsentierteller sitzt, dazu noch eine kleine Halbhohe Trennwand, da kann man dann einen Schrank dagegen stellen.
    An der langen Duschwand wäre Platz für eine Handtuschstange etc.

    Das Bodentiefe Fenster würd ich auch rauslassen, macht im Bad 0 Sinn!
    Dann wäre da auch nochmal Stellplatz.

    Lg
     

    Anhänge:

    simon84 gefällt das.
  14. Mimi

    Mimi

    Dabei seit:
    17.05.2021
    Beiträge:
    8
    Zustimmungen:
    0
    Danke @Kriminelle jetzt habe ich es verstanden :-)
     
  15. Mimi

    Mimi

    Dabei seit:
    17.05.2021
    Beiträge:
    8
    Zustimmungen:
    0
    Vielen Dank @Surfer88, eine gute Idee.
     
Thema:

Sanitäranordnung im Bad Neubau

Die Seite wird geladen...

Sanitäranordnung im Bad Neubau - Ähnliche Themen

  1. Meinungen zu einschaligem Neubau

    Meinungen zu einschaligem Neubau: Hallo zusammen, wir planen nächstes Jahr den Baustart unseres EFH und ich würde gerne eure Einschätzung zu meinem geplanten Bodenplatten- und...
  2. Neubau Anbau Fußboden

    Neubau Anbau Fußboden: Morgen In einem Anbau / Neubau soll in der ersten Etage ein Badezimmer entstehen. Wie ist der korrekte Fußbodenaufbau? Bis jetzt die Decke...
  3. Bestandsimmobilie oder Neubau

    Bestandsimmobilie oder Neubau: Hallo ihr Lieben, ich habe im ehemaligen orangenen Forum schon meine Frage gestellt gehabt aber dann den Hinweis erhalten, dass es wohl eher ein...
  4. Dämmung oberste Betongeschossdecke Neubau

    Dämmung oberste Betongeschossdecke Neubau: Hallo, ich möchte bei meinem massiv gebauten Neubau im Spitzboden die oberste Geschossdecke dämmen. Die Betondecke wurde vor circa 1 Jahr...
  5. Altbau DHH Abriss und Neubau - Was ist möglich? Was sind eure Erfahrungen?

    Altbau DHH Abriss und Neubau - Was ist möglich? Was sind eure Erfahrungen?: Hallo liebes Forum, Fabian mein Name - ich bin auf der Suche nach Erfahrungen und Einschätzungen zum Thema Abriss einer Doppelhaushälfte und...