Sanitärgeneralsanierung: Fallrohre

Diskutiere Sanitärgeneralsanierung: Fallrohre im Sanitär Forum im Bereich Haustechnik; Hallo zusammen, wir starten demnächst in die Sanierung unseres Zweifamilienhauses, in dem die Bäder aus den 70er Jahren endlich ausgetauscht...

  1. #1 CaroSan, 25.03.2024
    CaroSan

    CaroSan

    Dabei seit:
    25.03.2024
    Beiträge:
    1
    Zustimmungen:
    0
    Hallo zusammen,

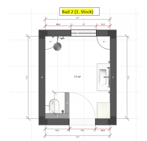
    wir starten demnächst in die Sanierung unseres Zweifamilienhauses, in dem die Bäder aus den 70er Jahren endlich ausgetauscht werden. Da die Bäder doch relativ klein sind, tun wir uns schwer mit der Anordnung und würden uns sehr über Ideen und Tipps freuen. Die beiden Bäder liegen übereinander und sind vom Grundriss und der derzeitigen Anordnung identisch (vgl. Fotos). Wir planen eine Kernsanierung mit neuen Fenstern, Türen (die Tür kann also auch auf Seite D verschoben werden), Elektrik, Leitungen und Estrich und werden in Zukunft mit Fußbodenheizung heizen.

    Meine Eltern (EG) möchten jedoch eine andere Anordnung als wir im 1. OG. Seht ihr ein Problem mit den verschiedenen Fallrohren? Im 2. OG ist noch ein Badezimmer, das auch an das bestehende Fallrohr angeschlossen ist.

    Verlegt man die Rohre heute noch in der Wand oder macht man alles über Vorwandinstallation? Die Mauer, in der das Fallrohr momentan verlegt ist, hat mit Putz und Fließen derzeit circa 17 cm, vermutlich ohne jeglichen Schallschutz, da man alles hört. Das Fallrohr geht anschließend in den Keller in den darunterliegenden Heizraum und von dort aus nach außen.

    Könnt ihr ungefähr abschätzen, wie teuer eine Planung wäre? Uns erscheinen die Möglichkeiten bei den kleinen Bädern im Moment recht begrenzt und wir fragen uns, ob es sich lohnt hier in ein Planungsbüro zu investieren.

    Vielen Dank und beste Grüße
    Caro
     

    Anhänge:

  2. artibi

    artibi

    Dabei seit:
    08.02.2014
    Beiträge:
    1.400
    Zustimmungen:
    517
    Beruf:
    ITler
    Ort:
    Ludwigsburg
    Planungsbüro ist vielleich etwas too much, aber ein vernünftiger Sani der mit zB einem Badstudio zusammenarbeitet wäre wohl die günstigste Variante. Wo man Rohre verlegt hängt von den Gegebenheiten ab - oftsmals benötigt man eh eine Vorsatzschale, dann kann dort auch das Abwasserrohr drin laufen. Ob das in den oberen Stockwerken funktioniert hängt halt davon ab, wie weit das Fallrohr von Dusche, WC und Co. entfernt ist und, ob man ein notwendiges Gefälle realisiert bekommt.
     
  3. #3 simon84, 25.03.2024
    simon84

    simon84
    Moderator

    Dabei seit:
    11.11.2012
    Beiträge:
    23.299
    Zustimmungen:
    6.923
    Beruf:
    Schrauber
    Ort:
    Muenchen
    Einigt euch und macht das Fallrohr vom WC an die gleiche Ecke. Spart euch viel Stress.
    Gerade diagonal gegenüberliegend ist echt blöd.
     
  4. #4 Tikonteroga, 25.03.2024
    Zuletzt bearbeitet: 25.03.2024
    Tikonteroga

    Tikonteroga

    Dabei seit:
    18.06.2016
    Beiträge:
    1.318
    Zustimmungen:
    300
    Ort:
    Baden-Württemberg
    Hallo, ist dir bekannt wo wie viele Fallrohre es gibt und wo diese genau verlaufen? Ist das Fallrohr für das WC in etwa in dem Bereich, in dem die rechte Wand an die Außenwand mit dem Fenster anschließt?

    Ich habe einen ähnlichen Fall wie du, dass ich zwei übereinander liegende gleich große Bäder sanieren muss. Ich habe bei der Planung darauf geachtet, dass die vertikalen "Schächte" für die Fallrohre in der Wand bleiben können, so dass die Fallrohre senkrecht von ihren Ausgangspunkt im Keller bis ins Dach zur Belüftung laufen können. Die Abzweige in die Bäder (und Küche) verlaufen im Falle des WCs aber in einer Vorsatzschale und im Fall von Bad (Dusche, Waschtisch) und Küche (Spüle, Geschirrspüler) in einer Installationswand, die sich zwischen Küche und Bad befindet.

    Vielleicht befindet sich bei dir entweder rechts oder links neben dem Bad auch die jeweilige Küche.
     
  5. #5 simon84, 25.03.2024
    simon84

    simon84
    Moderator

    Dabei seit:
    11.11.2012
    Beiträge:
    23.299
    Zustimmungen:
    6.923
    Beruf:
    Schrauber
    Ort:
    Muenchen
    Das fallrohr ist zu 99% in der Ecke wo aktuell das bestand wc ist
     
Thema:

Sanitärgeneralsanierung: Fallrohre

Die Seite wird geladen...

Sanitärgeneralsanierung: Fallrohre - Ähnliche Themen

  1. Suche nach Fallrohr für Sanierung

    Suche nach Fallrohr für Sanierung: Hallo zusammen, wir planen die Sanierung unserer 70er-Jahre-Wohnung. Im Zuge dessen möchten wir die Küche und das Bad tauschen, um eine offene...
  2. Falsche Dämmstoffdübel für Fallrohre in Mineralwolle WDVS

    Falsche Dämmstoffdübel für Fallrohre in Mineralwolle WDVS: Hallo zusammen, wir haben ein Mineralwolle WDVS an unserem Einfamilienhaus (16 cm Mineralwolle, 2 cm Putz + Armierung). Ein Zimmermann hat im...
  3. Rosette Fallrohr

    Rosette Fallrohr: Ich habe keine Ahnung, ob das Thema hier richtig ist aber ich versuche es. Ich suche eine Art Rosette für ein Fallrohr. Klingt erstmal einfach...
  4. Anschluss WC/Waschbecken an Fallrohr

    Anschluss WC/Waschbecken an Fallrohr: Hallo zusammen, an den aktuellen Tagen begeben sich viele wahrscheinlich in die Planung noch offenener DIY-Projekte..... ich plane aktuell die...
  5. Fallrohr 87 Grad Bogen?

    Fallrohr 87 Grad Bogen?: Hallo, bei mir wird gerade Sanitär gemacht. Ist das wirklich so i.o das das Fallrohr mit einem 87 Grad Bogen eingebaut wird? Es handelt sich dabei...