Schallschutzgutachten Reihenhaus

Diskutiere Schallschutzgutachten Reihenhaus im Mauerwerk Forum im Bereich Neubau; Moin Moin, die Trennwand von unserem Reihenhaus wurde aus unerfindlichen Gründen bzw. wahrscheinlich basieren auf Planungsfehlern einschalig mit...

  1. #1 pacmansh, 16.04.2023
    pacmansh

    pacmansh

    Dabei seit:
    03.02.2022
    Beiträge:
    28
    Zustimmungen:
    1
    Moin Moin,

    die Trennwand von unserem Reihenhaus wurde aus unerfindlichen Gründen bzw. wahrscheinlich basieren auf Planungsfehlern einschalig mit 30cm Kalksandstein, Rohdichte 2,0 gebaut. Um den Schallschutz zu Verbessern will der Bauleiter nun eine Vorsatzschale einbauen. Nach meiner Meinung wird auch damit das geschuldete Schallschutzniveau nicht erreicht, das ist allerdings eine separate Diskussion. Ich würde mich aber zu einer Einschätzung zu einem Punkt aus dem Schallschutzgutachten freuen.

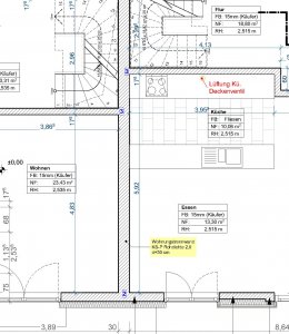
    In der Datei Schall EG.jpg ist die Situation dargestellt. Unsere Einheit ist rechts und unser Nachbar links. Im Schallschutzgutachten (ebenfalls anbei) ist aber nur die Situation zwischen dem Wohnraum links und unserem Wohnraum betrachtet. Entsprechend ist als Trennbauteil auch nur eine Fläche von 12,12 m² angegeben (Wandfläche des linken Raumes), die Vorsatzschale hat aber eine Fläche von 14,86 m², da sie über die komplette Wand unseres Raumes geht.

    Gibt es einen bestimmten Grund, warum im Schallschutzgutachten nur die Situation zwischen den beiden Wohnräumen, nicht aber die Situation zwischen dem Flur/Treppenbereich und unserem Wohnraum betrachtet wird?

    Vielen Dank!
     

    Anhänge:

  2. #2 Tilo, 16.04.2023
    Zuletzt bearbeitet: 16.04.2023
    Tilo

    Tilo

    Dabei seit:
    15.10.2022
    Beiträge:
    1.670
    Zustimmungen:
    531
    Beruf:
    Dipl.- Bauingenieur
    Ort:
    Dresden
    Hallo
    Mit der einschaligen Haustrennwand, das ist ja ein schöner Anfängerfehler. Die Bodenplatte / Fundamente / Aussenwand / Geschossdecke sind da ja dann auch nicht getrennt. Die flankierenden Bauteile bekommt man nicht weg und im Bereich der beiden Geschosstreppen gibt es bestimmt auch noch Probleme. Schöner Mist.

    Deine Fragestellung habe ich leider nicht verstanden
     
    pacmansh gefällt das.
  3. #3 Gast 85175, 16.04.2023
    Gast 85175

    Gast 85175 Gast

    Dieser unerfindliche Grund ist die blose Gier, leider nicht zu beweisen und eigentlich auch irrelevant, aber wer sowas heute noch einschalig baut, der hat das mE halt doch mit Absicht getan. So einen Plan müssen sich ja viele Leute ansehen, der Entwurfsverfasser, der Tragwerksplaner, der Rohbauer, etc… und dass da keinem was dabei auffällt, ist fast nicht zu glauben…

    Beim Schallschutzgutachten kommt’s jetzt darauf an. Man müßte mal wissen wer den Gutachter bezahlt hat und mit welcher Fragestellung der losgeschickt wurde. Also, dass Du den nicht bezahlt hast ist offensichtlich, weil sonst hätte der dir schon ein paar Sachen dazu gesagt und du würdest ziemlich sicher ganz andere Fragen stellen…

    Wie auch immer, so eine Massivtreppe (richtig?) an einer einschaligen Wand ist schallschutztechnisch ein kleiner Alptraum, da kommen dann selbst kreative Rechenkünstler oft an ihre Grenzen. Erstmal nicht darüber zu reden ist da ein probates Mittel um erstmal nicht darüber reden zu müssen, probieren kann man es ja… Gibt es die Treppe schon? Fotos?
     
    pacmansh gefällt das.
  4. #4 pacmansh, 16.04.2023
    pacmansh

    pacmansh

    Dabei seit:
    03.02.2022
    Beiträge:
    28
    Zustimmungen:
    1
    Zunächst dazu: Ich hätte erwartet, dass nicht nur die Wand zwischen dem linken und dem rechten Wohnbereich betrachtet werden müsste sondern auch der Wand zwischen der linken Treppe und unserem Wohnbereich. Es soll bei uns eine Vorsatzschale mit ca. 10cm Tiefe und 5,92m länge angebracht werden. Das Gutachten betrachtet aber nur die Trennwand in der länge des linken Wohnzimmers, also von 4,83m Länge. Ist das aus welchen Gründen auch immer korrekt so?

    Ich vermute allerdings, dass es wirklich ein Fehler ist, da ansonsten nun nicht diese zusätzliche Maßnahmen (Vorsatzschale, Klärungstermin) erfolgen müsste. In dem Projekt wird ein relativ guter Standard gebaut (Q3 Putz, viele Steckdosen, LAN-Kabel in jedem Zimmer, überalle elektrische Rolläden, Eichentreppe usw.). Es befinden sich auf dem Gelände allerdings 2 Mehrfamilienhäuser und eine 3er Reihenhauszeile. Alle Trennwände sind gleich geplant und die beteiligten Planer haben sich schon mehrere grobe Fehler geleistet. Der Bauträger selbst hat nicht viel Ahnung vom bauen und seine beauftragten Planer sind Nullen, sein GU ist allerdings ganz gut.

    Bezahlt hat ihn der GU. Dieser hat laut seiner Aussage einen Vertrag mit dem Bauträger, in welcher er das Mindestmaß der DIN 4109 (62dB) erfüllen muss. Mit dem Bauleiter habe ich ein gutes Verhältnis, sagen hätte er es mir sicherlich nicht dürfen. Ein Vertragsverhältnis habe ich mit ihm ja nicht sondern nur mit dem Bauträger. Der GU möchte durch das Gutachten seine vertraglichen Verpflichtungen zum Bauträger erfüllen. Dass ich da selbst sicherlich noch tätig werden muss ist klar, ich warte aber zunächst mal den gemeinsamen vor Ort Termin ab.

    Es handelt sich um eine Stahlwangentreppe mit Eiche-Stufen, die Treppe selbst ist zur Wand hin und an den Auflagepunkten an der Wand ebenfalls entkoppelt. Die Treppe (bisher noch ohne Beläge) gibt es schon. Ein Foto reiche ich gerne noch nach. Mache mich gleich mal auf die Suche.
     
  5. #5 pacmansh, 16.04.2023
    pacmansh

    pacmansh

    Dabei seit:
    03.02.2022
    Beiträge:
    28
    Zustimmungen:
    1
    Hier noch ein Bild von meiner Treppe, die Treppe des Nachbarn ist identisch, nur etwas breiter.
     

    Anhänge:

  6. #6 Gast 85175, 16.04.2023
    Gast 85175

    Gast 85175 Gast

    Da hast halt ne Menge Energie direkt in den Wänden und seien es nur die flankierenden Wände...

    Die "Entkopplung" dürfte auch eher dem homöpathischen Umfeld entstammen, ich verstehe nicht ganz wie das da entkoppelt sein soll. Wenn ich es auf den Bildern richtig sehe, dann hat man die Stahlwangen direkt aufs Mauerwerk gezwängt, ob da dann noch irgendein Pseudo-Gummipuffer unter dem Schraubenkopf liegt oder nicht ist mE egal... Wie die Situation an der Wohnungstrennwand ist sieht man auf dem Bild nicht, es ist aber eigentlich egal, weil besser wirds davon mE sowieso nicht, alles was man da sehen kann kann es wohl nur noch schlimmer machen.

    Kuck dir mal an wie schön der Estrich getrennt wurde. Umlaufend lückenlos ca. 1cm Abstand zur Wand, keinerlei starre Verbindungen. Und wenn du diesen einen Schritt tust und vom Estrich auf die Treppe trittst, dann bist plötzlich sozusagen "an der Mauer festgeschraubt"... Einmal mit Profis...
     
    pacmansh gefällt das.
  7. #7 pacmansh, 16.04.2023
    pacmansh

    pacmansh

    Dabei seit:
    03.02.2022
    Beiträge:
    28
    Zustimmungen:
    1
    Das ist leider mein Problem. Die Handwerker machen fast außnahmslos gute Arbeit, die Planer sind völlige Nieten. Ich hatte hinsichtlich der Auslegung der Fußbodenheizung auch drei Monate Diskussion mit dem TGA Planer und als dann der Sanitärer das sicherlich nicht optimale aber immerhin deutlich verbesserte Ergebnis gesehen hat, meinte der nur, dass er nicht bereit ist das so zu bauen und hat dann noch zusätzliche und kürzere Heizkreise etc. gebaut. Aber anderes Thema.

    Bei der Treppe sind nach meiner Erinnerung zwischen Wand und Stahlwange noch irgendwelche Puffer, es dürfte da zumindest kein direkter Kontakt sein, wie die Verschraubungen aussehen weiß ich aber nicht. Es steht nur in der Baubeschreibung, dass sie gesondert akustisch entkoppelt sind.

    Wie ist denn deine Meinung zum Gutachten. Ist es korrekt, dass nur der Einfluss von einem Raum berechnet wird und der zweite angrenzende Raum (Treppe) hier außer Acht gelassen wird?
     
  8. #8 Gast 85175, 16.04.2023
    Gast 85175

    Gast 85175 Gast

    Ja gut, das ist vollkommen unnötiges Blafasel, sollen die es machen wie sie wollen, so lange der geschuldete Schallschutz erreicht wird kann es dir ja egal sein.

    Ich stelle dir mal folgende Gegenfrage und beantworte sie dann auch gleich. Wenn der Gutachter zum Schluß kommt, dass auch im TRH ne Vorsatzschale notwendig ist, was bedeutet das dann? Richtig, die Wange muss wieder raus und neu. Mit der neuen Wange ist das Problem aber evetuell erst noch nicht ganz gelöst, weil die muss man ja auch wieder irgendwo befestigen...
    Wenn der Gutachter zum Schluß kommt, dass die Vorsatzschale durchgängig sein muss, dann ist der Heizkreisverteiler im Weg.

    Du musst jetzt selbst entscheiden wie wichtig dir der Schallschutz ist. Wenn dir das wichtig ist, dann kann ich dir da nur raten sofort einen eigenen SV hinzuzuziehen, einen der sich damit wirklich auskennt, Fachrichtung: Bauakustik/Raumakustik oder Schallschutz. Ich verlinke dir mal das Suchportal für IHK-Sachverständige.

    Das bundesweite IHK-Sachverständigenverzeichnis (SVV) - SVW

    Und dann ist es wichtig mit den SV klar zu kommunizieren, die brauchen eine klare Richtung, man kann sowas halt auf viele Arten angehen. Irgendwelche ausladenden Gutachten sind im ersten Step oft vollkommen unnötig. Das Ziel der Übung sollte im ersten Schritt sein, dass sich das wer im Rahmen eines "Kurzgutachtens" einfach nur ansieht und bewertet, Leute die das beruflich machen wissen schon worauf es da ankommt. Irgendwelche Sanierungsvorschläge oder umfangreiche Berechnungen sind da fehl am Platz. Den Beratungsauftrag für den SV würde ich persönlich so fassen: Sichtung der vorliegenden Bauunterlagen und Verträge, Ortstermin und Bewertung des Schallschutzes in einem kurzen Schriftsatz. Arbeitsumfang ca. 1 Arbeitstag. Spätere Nachfragen und Beratungsleistungen separat nach Stundensatz.

    Und dann hast mal einen sehr wertvollen Zettel an der Hand und außerdem noch die Meinung von jemandem den du dafür bezahlst, dass der dir die Wahrheit sagt. Wenn der (wie ich annehme) zum Schluß kommt, dass da was nicht ganz stimmt mit dem Schallschutz, dann wird das so auch im Schriftsatz stehen. Und mit dem Schriftsatz dackelst dann zu deinem Vertragspartner und fragst ob man das anständig regeln kann, oder ob es erst eskalieren muss. Was man dir dort sagt schreibst in ein Gedächtnisprotokoll und lässt die Kopie der guten Ordnung halber deinem Vertragspartner zukommen, in Verbindung mit der schriftlichen Mängelanzeige, vergiss die ja nicht. Das hilft meiner Erfahrung nach in den meissten Fällen und wenn das nicht hilft, dann hilft erfahrungsgemäß eh nur der Anwalt...

    Auf diese Wiese setzt maximal ungefähr 1.000€ in den Sand, alle anderen Möglichkeiten die mir einfallen sind mE in der Praxis mit einem weit höheren Risiko verbunden. Oder du vertraust denen halt, den großen Spezialisten mit der einschaligen Trennwand und der angedübelten Treppe, die erst nach Einbau des Estrichs bemerken, dass sie da noch ne Vorsatzschale brauchen, musst jetzt selbst wissen.
     
    pacmansh gefällt das.
  9. #9 Gast 85175, 16.04.2023
    Gast 85175

    Gast 85175 Gast

    Du hast das Problem nicht verstanden. Der Sachverständige muss nur die Fragen beantworten die ihm von seinem AG gestellt werden. Wenn da die Frage war: Wie siehts mit dem Schallschutz in der Küche aus? dann wird auch nur diese Frage beantwortet. Dass ein Schallschutzgutachter immer und automatisch eine umfassende Untersuchung des gesamten Gebäudes machen musst stimmt nicht, das denkst du nur.
    So lange man die explizite Fragestellung nicht kennt, bzw. nur mit Phrasen abgespeist wird, kann man noch nichtmal sagen ob es in dem Gutachten überhaupt um das eigentliche Problem ging. Ob der SV das Problem angemessen behandelt hat schon dreimal nicht.
    Dass es da von Satzfetzen wimmelt die eigentlich nichts sagen, aus denen du aber im Kopf eine beruhigende Story bastelst kann sein, das ist ein verbreiteter und auch legaler Trick. Hör auf selbst zu denken, lies einfach nur was da steht, tu nix dazu und lass nix weg, dann liest sich sowas meist gleich ganz anders.

    Ich habe keine Lust das was du eingestellt hast nachzurechnen. Drei Dinge springen mir aber sofort ins Auge. Erstens, da wurde die Webversion eines Onlinerechners verwendet, für Schallschutz-Profis doch eher ungewöhnlich, die nehmen da meiner Erfahrung nach lieber ihre Offline-Profisoftware mit der sie das ganze Jahr immer arbeiten. Zweitens, der Korrekturfaktor beim Trittschallschutz von 5dB ist gelinde gesagt sehr erklärungsbedüftig. Drittens, wie beim Onlinerechner die Konstruktion mit der auf dem Estrich stehenden Vorsatzschale gewürdigt wurde ist mir persönlich schleierhaft.

    Wenn ich das richtig sehe, dann ist das so falsch. Die Berechnung da beschreibt die Situation fürs Wohnzimmer des Nachbarn, aber halt nicht die Sutuation für deine Küche... Meine Meinung, aber man siehts auf dem Grafik bisschen schlecht...
     
    pacmansh gefällt das.
  10. #10 pacmansh, 16.04.2023
    pacmansh

    pacmansh

    Dabei seit:
    03.02.2022
    Beiträge:
    28
    Zustimmungen:
    1
    Genau das war auch mein Gedanke. Die Grafik wurde ja auch extra so gedreht, dass es nicht direkt ins Auge fällt. Hier nochmal in der Grafik markiert, was ich dort erwartet hätte.
     

    Anhänge:

  11. #11 pacmansh, 16.04.2023
    pacmansh

    pacmansh

    Dabei seit:
    03.02.2022
    Beiträge:
    28
    Zustimmungen:
    1
    Vielen Dank auf jedenfall. Das ist alles sehr hilfreich.

    Kurz zur Klarstellung. Ich schätze die Situation wie folgt ein: Der Bauträger hat mit seinem GU einen Vertrag, in welchem er den Mindestschallschutz nach Norm vereinbart hat. Die beiden haben, nachdem ich die Schallschutzberechnung auf Grund der einschaligen Bauweise angefragt habe, festgestellt, dass der Mindestschallschutz nicht erreicht wird, da sie mit den gleichen Werten wie bei den Mehrfamilienhäusern gerechnet haben. Die Wandaufbauten dort sind übrigens identisch mit 30cm KS und einer Rohdichte von 2,0. Daher meine Vermutung. Der Gutachter sollte nun zu einer Lösung kommen die das erreicht, allerdings ohne die TRH anzufassen, sonst wird es teurer. (Kleiner Exkurs, die Vorsatzschale im TRH kann ja auch im Nachbarhaus sein, dort wäre auch kein HKV). Anscheinend ist der GU nun der Meinung und hat vielleicht auch recht, mit den Vorsatzschalen erfüllt er seine Verpflichtung gegenüber dem Bauträger.

    Ich bin allerdings der Meinung, und hatte mir zumindest kurz hierüber mit dem Anwalt ausgetauscht, welcher die Kaufverträge geprüft hat, dass mir der Bauträger keinen Mindestschallschutz sondern einen erhöhten Schallschutz schuldet. Dieser wird potenziell weder mit der aktuellen Bauweise noch durch zusätzliche Vorsatzschalen erreicht, möglicherweise ist es auch mit der Bauweise nicht möglich. Entsprechend halte ich den von dir aufgezeigten Weg als sehr sinnvoll. Aktuell erwarte ich nicht, dass sich dies ohne Anwalt klären lasst, da sind dann auch die ersten 1.000 € sicherlich gut angelegt.

    Kommt nun noch die Frage was mir wichtig ist. Zum einen natürlich ein möglichst guter Schallschutz, da sind die Vorsatzschalen wahrscheinlich erstmal hilfreich. Wie ich das erreichte Schallschutzniveau empfinde, werde ich aber wahrscheinlich erst nach dem Einzug und dem der Nachbarn einschätzen können. Zum anderen habe ich natürlich viel Geld bezahlt und nun die Befürchtung, dass der Gegenwert, auf Grund der Planungs- und Umsetzungsfehler hinsichtlich des Schallschutzes, nicht übereinstimmt. Einen Neubau zu beziehen, der hinsichtlich der Haustrennwände eher dem Stand von vor 30 Jahren entspricht ist durchaus schmerzhaft und könnte sich bei einem möglichen Verkauf in 10-20 Jahren ja auch wieder bemerkbar machen.
     
  12. #12 Gast 85175, 16.04.2023
    Gast 85175

    Gast 85175 Gast

    Echte Vollprofis.

    Meine Erfahrung, das ist beiden vollkommen egal, so lange du da nicht mäkelst ist das denen einerlei...

    Ganz genau das macht mich zunehmend auch fuchsteufelswild. Wenn ich schon wieder sehe, dass da Bauträger und GU übereinander gestapelt sind, darunter kommen dann noch die Handwerksfirmen und am Ende haben dreimal Vollprofis übereinander gestapelt, aber keiner davon bekommt einen Schallschutznachweis gerechnet. Womöglich noch ein halbes Dutzend externer Planer und Fachplaner, damit das Chaos dann auch komplett ist und man in der Komplexität ersäuft. So werden dann aus Reihenhäusern, einer bautechnisch durchaus lösbaren Aufgabe, komplexe Vorhaben bei denen kein Schwein mehr durchblickt. Da füttert man also dreimal nen Wasserkopf, der zum Denken noch ein Rudel externer Planer braucht, und am Ende reichts selbst bei den hohen Verkaufspreisen nur noch für die einschalige Wand. Wie die Bekloppten...
     
    pacmansh gefällt das.
  13. #13 pacmansh, 16.04.2023
    pacmansh

    pacmansh

    Dabei seit:
    03.02.2022
    Beiträge:
    28
    Zustimmungen:
    1
    Genau dort ist das Problem angesiedelt. Ich bin neu in dem Metier Bauen aber es ist wie eine Fallstudie. Da ist der Bauträger (ganz klein, quasi eine Zweckgemeinschaft aus einem Wirtschaftler und einem Schöngeist-Architekten), die Beauftragen 3 Planungsbüros die sicher ne Menge Geld bekommen haben, die ich aber alle mehr oder weniger für Idioten halte. Die Planung geht dann an ein mittelgroßes, vielleicht eher kleineres Bauunternehmen.

    Der Bauunternehmer kennt alle seine Handwerker, hat schon x Bauvorhaben mit denen durchgeführt, alles wird schnell und unkompliziert gelöst, jeder liefert gute Arbeit ab und wenn mal nicht wird das nach nem Telefonanruf am Folgetag korrigiert. Funktioniert fast wie ein Uhrwerk. Dann kommen die neuen extrenen Planer, mit denen man noch nichts gemacht hat. Die liefern falsche Plane ab, dann sind mal die Pläne nicht aktualisiert worden, es hat nur der eine welche bekommen, aber der andere nicht usw. und schon läuft es aus dem Ruder.

    Mäkeln werde ich. Am 25.04. findet ein gemeinsamer Termin statt um über die Themen aufzuklären. Da wird es dann sicherlich erstmal hoch hergehen, den Sachverständigen für Schallschutz werde ich vorab schonmal kontaktieren, damit wir dann schnell loslegen können.

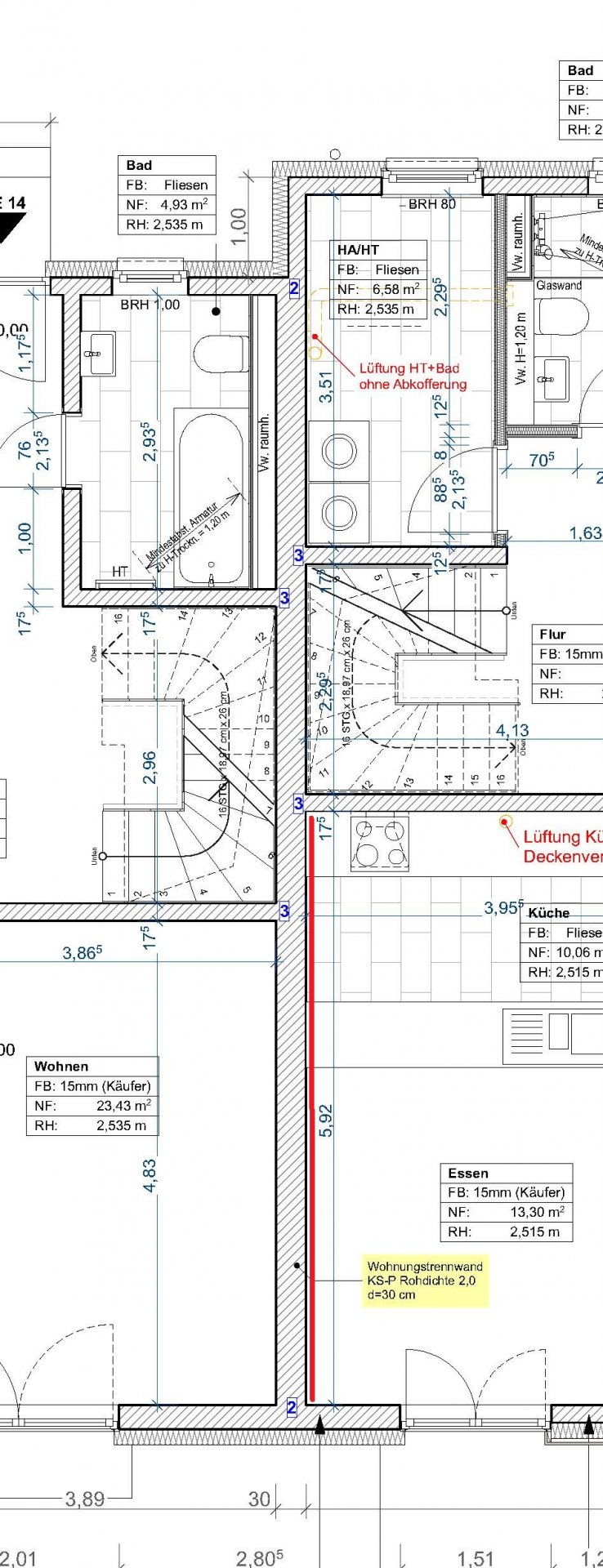
    Noch zu deiner Einschätzung zur fachlichen Expertise des ausführenden des Schallgutachtens. Es wurde auch der Bereich Treppe/Treppe betrachtet. Der Rw Wert von 997,9 dB und der Lnw von 3 dB erscheinen mir auch nicht ganz schlüssig (siehe Anlage).
     

    Anhänge:

  14. #14 Gast 85175, 17.04.2023
    Gast 85175

    Gast 85175 Gast

    Jaja, das ist dann in linear Umgerechnet ein Faktor von >5^99 (mein Altern Taschenrechner packt es nicht ganz), also wenn du ne Atombome im einen Treppenhaus zündest, dann wackelt nebenan noch nichtmal ne Lampe, das spuckt die Software vermutlich aus wenn sie versucht mit den 0dB aus der Bauteilbeschreibung zu rechnen und dann die Null irgendwo im Nenner landet…

    Dafür hast dann exakt 3dB Trittschall, also die Atomexplosion macht zwar den Wänden absolut nichts, nicht mal nen Kratzer in die Tapete, rauscht aber ungebremst durch die Böden. Ohne die Korrekturfaktoren könnte das sogar negativ sein, da haben die dann das Perpetuum mobile erfunden, was am Bau übrigens öfter mal passiert.

    Sieh das Gutachten einfach als verklausuliertes Verhandlungsangebot, da steht übersetzt: OK, scheiße gelaufen, aber ganz so schlimm ist’s dann doch nicht, oder?
     
    pacmansh gefällt das.
  15. Tilo

    Tilo

    Dabei seit:
    15.10.2022
    Beiträge:
    1.670
    Zustimmungen:
    531
    Beruf:
    Dipl.- Bauingenieur
    Ort:
    Dresden
    Hallo
    Ich habe mir jetzt nicht alles durchgelesen, aber:du hast geschrieben, daß sogar der erhöhe Schallschutz vereinbart worden ist.

    - Kaufvertrag
    - Baubeschreibung
    - Vertragspläne

    Diese sind bestimmt alle notierell beglaubigt Gern kannst du die Vorsatzschale jetzt auch ablehnen, da in den Plänen nicht drin.

    Mit der Treppe, das wird nicht funktionieren.
    Elektoinstallation in der Wand / Vorsatzschale ist noch ein Thema. Die vereinbarte Wohnfläche wird nicht eingehalten.

    Wir sieht es denn in den Geschossen darüber aus ?
     
    pacmansh gefällt das.
  16. #16 pacmansh, 17.04.2023
    pacmansh

    pacmansh

    Dabei seit:
    03.02.2022
    Beiträge:
    28
    Zustimmungen:
    1
    Ganz so klar ist es leider nicht. Es gibt zwei Punkte die von größerer Relevanz sind.
    • Kaufvertrag: "Der Veräußerer verpflichtet sich, das Vertragsobjekt entsprechend der Baubeschreibung samt Bauplänen und den anerkannten Regeln der Bautechnik schlüsselfertig und funktionsfähig für die vereinbarte Wohnnutzung herzustellen." Dies schließt nach meiner Einschätzung schon eine einschalige Bauweise aus, weil diese nicht mehr den anerkannten Regeln der Technik entspricht.
    • Baubeschreibung: "Die Mindestanforderungen gemäß DIN 4109:2018 an die Bauakustik ( Schallschutz in Innenräumen) werden eingehalten." Hier gibt es ausreichend viele Urteile von OLG aber auch dem BGH, dass derartige Klauseln unwirksam sind, da die Mindesanforderungen nicht ausreichend sind um einen erwartbaren Wohnkomfort zu erhalten.
    Dies wird aber sicherlich ein Streitpunkt sein, ich sehe mich da aber nach Rücksprache mit dem Anwalt auf einer relativ sicheren Position, wenn ich einen erhöhten Schallschutz fordere.

    Ich wurde bisher nicht gefragt. Es wurde mir nur dieses "Gutachten" geschickt mit der Mitteilung, dass sowas vorgesehen ist und am 25.04. ein gemeinsamer vor Ort Termin stattfindet. Ich gehe davon aus, dass die Vorsatzschalen da schon stehen. Auch fehlt mir aktuell das Wissen ob es sinnvoll ist die wegzulassen bzw. das Wissen wieviel sie in meiner jetztigen Situation bringen. An dem Fakt, dass die Haustrennwand einschalig ist, werde ich ja schwer was ändern können.

    Was meinst du damit genau? Was wird nicht funktionieren?

    Der Bauträger sagt, und so steht es auch im Vertrag, dass die Wohnfläche um 2% unterschritten werden darf. Das hält er ein. Ich habe nochmal die beiden Situationen an der Trennwand eingestellt. Nur an den beiden rot markierten Stellen sollen wohl Vorsatzschalen eingebaut werden. Der Raumverlust ist daher nicht sonderlich hoch, im OG aber auf Grund des kleinen Kinderzimmers trotzdem schmerzhaft.

    Was siehst du als Thema bei der Elektroinstallation?

    Siehe angehängte Bilder.
     

    Anhänge:

  17. #17 Tilo, 17.04.2023
    Zuletzt bearbeitet: 17.04.2023
    Tilo

    Tilo

    Dabei seit:
    15.10.2022
    Beiträge:
    1.670
    Zustimmungen:
    531
    Beruf:
    Dipl.- Bauingenieur
    Ort:
    Dresden
    Hallo
    Google mal zu "Vorsatzschale" oder auch " biegeweiche Vorsatzschale" (Knauf, Rigips o. ä.) Sowas wird es dann, entsprechend Vorschlag des Schallschutzgutachter, sein.
    Zu klären wäre ob Eltinstallationen oder Zusatzlasten (Hängeschrank, Fernseher) die Schalldämmwerte dann wieder verschlechtern.

    Die Schallnebenwege über die Innen- und Außenwände sowie der Betondecke wird man gar nicht weg bekommen.

    Wie schon geschrieben ist die Treppenanlage ein Risiko, Laufgeräusche u. a. werden wohl zum Nachbarn übertragen werden. Ob im zulässigen oder unzulässigen Bereich geht nur über Messungen.

    Beim Bad, wird man mal sehen, ob man sich da gegenseitig unzulässig laut hört. Schließlich
    sind da zum Beispiel die Gestelle der WC- Spülkästen an einer gemeinsamen Wand befestigt.
     
    pacmansh gefällt das.
  18. #18 pacmansh, 17.04.2023
    pacmansh

    pacmansh

    Dabei seit:
    03.02.2022
    Beiträge:
    28
    Zustimmungen:
    1
    Die Vorsatzschalen habe ich mir angeguckt, sind auch Teil des Gutachtens. Fernseher und Schränke kommen von meiner Seite aus nicht an diese Wände, wahrscheinlich aber der Fernseher der Nachbarn. Im Obergeschoss ist eine Doppelsteckdose in der Wand und im EG sind es 4 Dopplsteckdosen, wobei 2 davon als Hohlwandsteckdose in einer Küchenrückwand verbaut sind.

    Das Treppenrisiko habe ich verstanden. Ist ja ohnehin im Gutachten erstmal ausgeblendet worden. Beim Bad hatte ich gehofft, dass die Vorwände reichen, aber es stimmt schon, die Gestelle sind ja gekoppelt. Ich bin ja sehr froh, dass wir den Grundriss nochmal massiv verändert haben, ansonsten wäre ein Kinderzimmer und unser Schlafzimmer jeweils angrenzend zum Badezimmer des Nachbarn gewesen.

    @chillig80 hat ja schon ganz gut das Vorgehen beschrieben. Wann ist denn der richtige Zeitpunkt für einen eigenen Sachverständigen? Toiletten sind ja noch nicht drin, Spülgeräusche daher nicht messbar. Treppe ist eingebaut, aber noch ohne Stufen, nur Planken von der Baustelle. Fußbodenbelag ist noch nicht gelegt etc.Ich denke ein "Kurzgutachten" ist jetzt bereits sinnvoll, umfangreiche Messungen wahrscheinlich erst nach Einzug/Fertigstellung, oder?

    Und zuletzt noch die Frage. Sehr ihr irgendwelche Möglichkeiten, unverhältnismäßig oder nicht, um die Probleme zu heilen? Irgendwas, was mehr bringt als die Vorsatzschalen? Gebäudetrennung durch Sägen, neu Mauern der Trennwände, Treppen, die keine Auflagepunkte an der Trennwand haben, Entkopplungen von Spülkästen oder was auch immer?
     
  19. #19 Gast 85175, 17.04.2023
    Gast 85175

    Gast 85175 Gast

    Gestern. Die werkeln da gerade im Alltagsstress dran herum und das wird jeden Tag schlimmer, für alle Beteiligten. Je früher die klare Ansage kommt, desto besser und fairer für alle Beteiligten.


    Naja, also schon die Vorsatzschale die da im Gutachten ist ist ambitionslos, die kann man deutlich besser bauen, das ist so wie es da steht ne Vertane Chance. VS beidseitig der Massivwände ginge auch noch. Beim Sägen könnte man der Ordnung halber den Tragwerksplaner fragen, aber da seh ich zu 99,9% schwarz. Entkoppeln, etc. geht immer, Schall der erst garnicht im Bauteil ist, muß dann auch nicht umständlich weggedämmt werden, Wunder darf man da aber auch keine Erwarten, entweder man befestigt was oder man entkoppelt es, die Entkopplung die sich die Marketingleute ausgedacht haben ist halt ne arge Übertreibung. Wenn es vollkommen eskaliert könnte man noch über abgehängte Decken und VS an den flankierenden Wänden nachdenken. Um die letzten Zehntel rauszuquetschen könnte man das WDVS an der Fassade trennen.

    Über die Verbesserung mittels sündhaft teuren Putzen aus dem Strahlenschutz hab ich mal was gelesen…

    https://www.seilo.de/Strahlenschutz/Datenblaetter/deutsch/Strahlenschutzputz.pdf

    Das sind aber eigentlich Fragen für deinen eigenen SV…
     
    pacmansh gefällt das.
  20. #20 Gast 85175, 17.04.2023
    Gast 85175

    Gast 85175 Gast

    Den Strahlenschutzputz find ich gut, der passt zur atombomensicheren Wand!
     
    pacmansh gefällt das.
Thema:

Schallschutzgutachten Reihenhaus

Die Seite wird geladen...

Schallschutzgutachten Reihenhaus - Ähnliche Themen

  1. Schallschutzgutachten für Poroton T10 Stein im Neubau Einfamilienhaus

    Schallschutzgutachten für Poroton T10 Stein im Neubau Einfamilienhaus: Hallo Bauexpertenforum, vielleicht habe ich Glück, und mir kann jemand bei einem aktuellen Hausbauproblem meinerseits helfen. Wir haben einen...
  2. Ablauf Schallmessung und Schallschutzgutachten?

    Ablauf Schallmessung und Schallschutzgutachten?: Hallo, wir wohnen seit 2010 in einem MFH Neubau vom BT. Wir haben den Eindruck, dass der Schallschutz in manchen Punkten nicht in Ordnung ist....
  3. Schallschutzgutachten

    Schallschutzgutachten: Hallo, wir haben vor 6 Monaten ein Reihenmittelhaus (Stein-auf-Stein) erworben. Wir haben aber, unserer Meinung nach, ein Schallschutzproblem...
  4. Erstellung eines Schallschutzgutachtens

    Erstellung eines Schallschutzgutachtens: Hallo, ich bin über Google auf dieses Forum aufmerksam geworden, da ich eine Antwort auf ein Problem suche. Wir haben vor ein...