Schallschutzgutachten Reihenhaus

Diskutiere Schallschutzgutachten Reihenhaus im Mauerwerk Forum im Bereich Neubau; Jede Wette, der Rohbauer wollte es ohne Fuge.

  1. #41 Fabian Weber, 18.04.2023
    Fabian Weber

    Fabian Weber

    Dabei seit:
    03.04.2018
    Beiträge:
    16.332
    Zustimmungen:
    6.489
    Jede Wette, der Rohbauer wollte es ohne Fuge.
     
  2. #42 pacmansh, 18.04.2023
    Zuletzt bearbeitet: 18.04.2023
    pacmansh

    pacmansh

    Dabei seit:
    03.02.2022
    Beiträge:
    28
    Zustimmungen:
    1
    Die Wette würde ich eingehen. Das sind super korrekte Leute, die selbst nur noch total angenervt sind von den Planern. Es mussten schon soviel Arbeiten doppelt gemacht werden, nur weil die Planer mist gebaut haben. Der Ablauf vom Bauträger ist so gedacht, dass die Käufer sich mit den Architekten abstimmen, die die Pläne machen und das dem GU geben. Die Architekten schicken aber immer ohne Abstimmung die Sachen zum GU, der denkt es ist abgestimmt, baut es und danach stellt dann der Käufer fest, dass etwas anders ist als gedacht. Es ist wirklich total absurd. Bei unserem Nachbarhaus musste das komplette Bad neu gefliest werden, bei uns die abgehängte Decke im Bad neu, der Außenwasserhahn neu und beides bei schon fertig verputzen Wänden und Decken (Q3).

    Ich glaube der Planer hat einfach gedacht, dass die Reihenhäuser ja auch WEG-geteilt sind und deswegen die Grenzwerte aus dem Geschosswohnungsbau gelten. Der Polier hat mir (auch wieder inoffiziell) gesagt, dass er angesprochen hat, dass er seit 20 Jahren keine Haustrennwand mehr einschalig gebaut hat. Ihm wurde gesagt es passt so und wurde so berechnet. Donnerstag sind wir schlauer oder vielleicht auch nicht.
     
  3. #43 pacmansh, 20.04.2023
    pacmansh

    pacmansh

    Dabei seit:
    03.02.2022
    Beiträge:
    28
    Zustimmungen:
    1
    So, der Termin fand statt aber viel schlauer sind wir nicht, da dem Bauträger noch ein Termin dazwischen gekommen ist und deswegen bloß wir mit dem Polier und dem Bauleiter vom GU vor Ort waren. Wie folgt ist somit aktuell die Situation:
    - Wir haben herausbekommen, dass das "Gutachten" vom Bauleiter selbst stammt, der sich durch das Online Tool geklickt hat. Die Ergebnisse hat er sich von dem beteiligten Ingenieurbüro bestätigen lassen. Zielsetzung ist, dass die Mindestanforderungen der DIN 4109 für Reihenhäuser sicher erfüllt werden. Damit hat der GU seinen Vertrag gegenüber dem Bauträger erfüllt. Die Anweisung zur einschligen Wand kam vom Planer des Bauträgers.
    - Die Vorsatzschalen waren mit Dämmstoff gefüllt, aber noch nicht beplankt. Wir haben mal ein paar Tests gemacht (lautes Gespräch, rufen, Treppe hoch und runterpoltern). Das Gepräch und auch Rufen waren nicht zu hören. Die Treppe natürlich schon, allerdings auch nur in absolut ruhiger Umgebung. Hier waren allerdings auch noch Holzplanken draufgesetzt die ich tendenziell eher als lauter erachten würde. Sicherlich schlechter als ich es beim Kauf erwartet und nichts womit ich zufrieden bin, aber dann doch etwas besser als ich jetzt befürchtet hatte.
    - Die Treppe habe ich mir nochmal genau angeguckt. Die Stahlwangen sind überall flächig von der Wand entkoppelt, dort ist überall eine Art Gummi/Neopren oder sowas zwischen, ebenfalls die Lager zur Wand.
    - Mit einem Schallsachverständigen habe ich ebenfalls gesprochen, der möchte aber direkt messen. Es war aber erstmal nur ein kurzes Telefon, haben uns noch nichts zusammen angeguckt. Sobald ich weiß, wie der Bauträger weitermachen will, kann ich an der Front vorangehen.
    - Wie sich der Bauträger positioniert, weiß ich nun natürlich noch nicht. Hiervon hängt dann ja auch das weitere Vorgehen ab.
     
  4. #44 Gast 85175, 20.04.2023
    Gast 85175

    Gast 85175 Gast

    OK, für dich ist das alles neu, aber aus meiner Sicht ist es so, wenn sowas im Jahr 2023, nach Jahrzehnten des Dramas und der Gerichtsurteile, noch schief geht, dann war das Vorsatz oder übelste Ignoranz. Das ist einer der Punkte von denen jeder weiß, dass man da zweimal und dann auch noch genau hinsehen muss...

    Das vermittelt Seriosität, da fühlt man sich gleich gut aufgehoben. Spaß beiseite, hätten die gesagt das seien ihre Berechnungen, dann hätte ich das ohne Lästerei zur Kenntnis genommen, aber wenn die da vorspiegeln das sei ein "Gutachten" von einem spezialisierten Dritten, dann ist Hohn und Spott doch angebracht, bisschen ehrenrührige Strafe ist da schon erlaubt.

    Das ist auch witzig, die hätten das nämlich nachrechnen müssen um es bestätigen zu können, hätten das also gleich selbst machen können. Ich wäre da ja auf der atombomensicheren Wand herumgeritten, doppelt geprüft, NATO-Standard Dunkelviolett 17a für Atombunker! Auch hier, bisschen ehrenrührige Strafe fürs Märchenerzählen. Ich glaube die haben nicht wirklich geprüft, sondern nur gesagt: Wenn das stimmt, dann sind die gesetzl. Mindestanforderungen erfüllt. So ungefähr...

    Du kannst das so fast nicht überprüfen. Die störenden Geräusche hast später regelmäßig nur in Ruhe in der ruhigen Wohnung, dazu muss sich das Ohr an die Ruhe gewöhnt haben, was du da gemacht hast war der Test ob es ganz katastrophal ist, mehr war das nicht.

    Ja gut, wenn der noch 2 Stunden misst ist auch nicht viel kaputt, dann hast wenigstens nen korrekten Meßwert bei der Hand. Es verzögert halt alles, was ich in solchen fällen immer als sehr schädlich ansehe, weil der Schaden wird halt mit dem Baufortschritt größer und das macht die unkomplizierte Lösung immer unwahrscheinlicher...

    Genau, alles was oben steht kannst unter Lebenserfahrung und Allgemeinbildung verbuchen. Dir kann das alles nämlich vollkommen egal sein, du kannst dich zurücklehnen und xy dB verlangen, der Rest ist nicht dein Problem.
     
  5. #45 Tilo, 21.04.2023
    Zuletzt bearbeitet: 21.04.2023
    Tilo

    Tilo

    Dabei seit:
    15.10.2022
    Beiträge:
    1.670
    Zustimmungen:
    531
    Beruf:
    Dipl.- Bauingenieur
    Ort:
    Dresden
    Hallo pac...
    Deinen Bericht und die Tests von gestern finde ich richtig lustig. Ich höre altersbedingt schon etwas schlechter, bei mir würde jeder dieser Test positiv verlaufen und damit wäre der Vertrag des GU immer erfüllt. Meine Frau dagegen sieht das anders. Sie hört noch perfekt und würde fragen, ob hier irgendwo ein Fenster offen steht. Wenn du Glück hast, hast du vielleicht später auch einen leisen Nachbarn oder die ersten 5 Jahre (Gewährleistungzeit) wohnt nebenan überhaupt niemand, , dann wäre der Vertrag ja auch erfüllt. Du merkst, was ich damit sagen will. Entweder ihr macht das richtig und ordentlich oder ihr lasst das sein.

    Ein Ingenieurbüro für Schsllschutz stellt einen Lautsprecher auf die eine und ein oder mehrere Mikrofone auf die andere Seite der Wand auf und dann gibt es ordentlich was auf die Ohren in unterschiedlichen Frequenzen.
    Dannach gibt es Messergebnisse und eine schriftliche Auswertung, was die Konstruktion taugt. Die Jungs kosten die Stunde 100,00 € plus Technik und Bericht schreiben. Das bringt keinen Bauträger ans Hungertuch. Der GU ist nicht dein Vertragspartner.
    Überlege dir, wie es weitergeht.

    Hier ein Link eines Büros, die es wissen, wie sowas geht. und das jeden Monat machen.

    genest Werner Genest & Partner Ingenieurgesellschaft mbH
     
  6. #46 pacmansh, 21.04.2023
    pacmansh

    pacmansh

    Dabei seit:
    03.02.2022
    Beiträge:
    28
    Zustimmungen:
    1
    Ich kann es mir ja auch nicht erklären. Aber die Bauen auf dem Grundstück 15 Wohneinheiten in 2 Mehrfamilienhäusern und 3 Reihenhäusern. Die Wohnungstrennwände sind mit dem gleichen 30cm, 2,0 Rohdichte Kalksandstein gebaut wie die Haustrennwände der Reihenhäuser. Es ist doch absurd, dass die 12 von 15 Wohneinheiten mit einem Schallschutz bauen, der den erhöhten Anforderungen locker genügt (so zumindest meine Einschätzung) und es dann bei den Reihenhäusern so versauen. Wie auch immer, wir bekommen es wahrscheinlich nie raus.

    Absolut gerechtfertigt und er hat sein Fett weg bekommen, aber allzusehr lospoltern wollte ich ihm gegenüber nicht. Der Bauleiter und der Polier sind beide sehr engagiert und auf die beiden bin ich bis zum Ende noch angewiesen. Zusätzlich habe ich keinerlei Vertragsverhältnis mit denen. Wenn ich mit denen weiterhin gut klarkomme regeln wir alles weiterhin auf dem kurzen Dienstweg und zu meiner Zufriedenheit und wenn nicht, dann muss alles über den Bauträger und seine Planer laufen, dann wird es teurer und schlecht. Der GU hat in seinem Vertrag mit dem Bauträger stehen, dass das Mindestmaß der DIN 4109 erfüllt sein muss, was wahrscheinlich bei einem Vertrag zwischen Bauträger und GU auch rechtens ist. Das wird anscheinend erfüllt und mehr ist vom GU nicht geschuldet.

    Exakt das war auch die Intention. Es gibt ja auch Themen wir Rückabwicklung des Kaufvertrags etc. Stand heute zu wissen, dass es nicht ganz katastrophal ist, ist mehr als ich vor ner Woche wusste.

    Zurücklehen ist leicht gesagt. Ist ja schon ein Thema was einen beschäftigt, aber ich verstehe schon was du meinst.

    Nur um das klarzustellen. Es war kein Termin um den Schallschutz zu bewerten sondern es war ein Termin, der angesetzt wurde um das Thema einschalige Haustrennwand, Abweichen vom anerkannten Stand der Technik, geschuldeter Schallschutz etc. mit dem Bauträger zu klären. Leider ist der Bauträger nicht aufgetaucht (medizinischer Notfall bei seiner Tochter, kann stimmen oder nicht, ist aber auch egal). Das heißt wir waren nun auf der Baustelle, zusammen mit dem GU, mit dem wir keinerlei Vertragsverhältnis habe und fertig. Damit wir dann nicht einfach umsonst wieder abdampfen, haben wir halt noch ein paar Themen besprochen, die sowieso anlagen und uns auch mal einen zugegebener Maßen sehr subjektiven Eindruck vom aktuellen Stand gemacht.

    Es gibt da nach meiner Einschätzung jetzt ja grob folgende Möglichkeiten:
    1) Der Bauträger kapiert, dass die mir geschuldeten Schallschutzanforderungen nicht erfüllt werden können und die einschalige Haustrennwand nicht dem a.a.R.d.T. entspricht und hat interesse das außergerichtlich zu klären. Dann kann man das Thema zumindest in gewisser Weise kooperativ und unter Einbeziehung aller drei Reihenhausparteien angehen. Das wäre für den Bauträger wahrscheinlich die günstigste Lösung. Anwalt und Messungen werden dann voraussichtlich ohnehin notwendig, aber vielleicht kann man das etwas besser abstimmen.
    2) Der Bauträger sagt er schulde nur die Mindestanforderungen der DIN 4109. Dann gehts zum Anwalt um abzuklären wie Sicher mein Standpunkt ist und der Sachverständige wird beauftragt Messungen zu machen. Dafür müssen wir dann aber ja auch Zugang zur anderen Wohneinheit erhalten. Auch da muss der Bauträger ja mitspielen.
    3) Ich könnte natürlich auch erstmal abwarten und den Mangel bei der Endabnahme geltend machen. Dadurch habe ich aber auch nichts gewonnen. Vom Baufortschritt ist es wahrscheinlich fast egal. nächste Woche werden die Bäder gefliest, die Vorsatzschalen stehen ohnehin schon und dann fehlen eigentlich nur noch die Sanitärobjekte, die Inneneinheit der Wärmepumpe, die Treppenstufen und die Außenarbeiten (Terrassendielen, Wege, Mutterboden aufschütten, kleine Böschung).
     
  7. #47 pacmansh, 08.05.2023
    pacmansh

    pacmansh

    Dabei seit:
    03.02.2022
    Beiträge:
    28
    Zustimmungen:
    1
    So, es ist etwas ruhig geworden, da diese Woche Eigenleistungen auf dem Programm standen aber der Termin mit Bauträger, beratendem Ingenieurbüro, Bauunternehmer (GU) und uns hat stattgefunden.

    Ich habe meinen Standpunkt deutlich gemacht, dass Stand der Technik ein erhöhter Schallschutz und eine zweischalige Bauweise ist. Der Bauingenieur war nach meiner Einschätzung gebrieft, dass er mir das ausreden sollte und hat darauf verwiesen, dass die DIN 4109 baurechtlich eingeführt ist, daher nur die Mindeststandards gelten, durch die Vorsatzschale ja nun eine zweischalige Wand besteht und bla bla bla. Er kam auf jeden Fall ziemlich ins stottern, als ich das gesagte von ihm dann in Frage gestellt habe und ihn mit den vorbereiteten Dokumenten konfrontiert habe.

    Der Bauträger selbst kam nicht so richtig aus der Deckung, spielt immer die Karte, dass er ja nicht vom Fach ist. Ist er auch wirklich nicht, aber ich denke dass er mittlerweile mehr weiß als er zugibt.

    Folgendes soll nun gemacht werden:
    - Die Treppen werden rausgenommen und dahingehend angepasst, dass kein Kontakt zur Haustrennwand besteht (Soll wohl über Ständer in den Ecken gelöst werden. Mal sehen was das bringt. Sieht für mich erstmal nach ner Menge Aufwand aus, da auch die Treppenstufen schon fertig sind und nun auch entweder neu gemacht oder angepasst werden müsen; und das für 3 Einheiten. Daher auch meine Vermutung, dass bekannt ist, dass es sich um ein größeres Thema handelt.
    - Schallmessungen werden durchgeführt um reale Werte und nicht nur berechnete Werte zu haben. Die Schallmessung wird vom Bauträger beauftragt, sodass ich natürlich nur wenig Einsicht habe was genau der Auftrag ist. Aber warten wir ab, was für Ergebnisse dabei rauskommen und wie umfangreich ich Einsicht in das Gutachten haben werde.

    Tja, und dann sehen wir weiter. Achso, und während der Eigenleistungen habe ich unseren Nachbarn kennengelernt. Der wusste von dem Thema noch gar nichts, ist aber nach meiner ersten Einschätzung jemand, mit dem man sowas auch gemeinsam gegenüber dem Bauträger durchziehen könnte.
     
  8. #48 Fridolin77, 08.05.2023
    Fridolin77

    Fridolin77

    Dabei seit:
    29.04.2023
    Beiträge:
    332
    Zustimmungen:
    114
    Ich habe ca. 30 Jahre in Doppelhäusern gewohnt (erstes Ytong, Baujahr 1990) mit zweischaliger Wand, danach in einem solchen mit Baujahr 2013 und Porenbeton 0.60er Rohdichte, Wand 17,5cm zweischalig.

    Das Problem waren immer die Stahltreppen und deren Befestigung. Gerade Kinder und jugendliche neigen dazu diese relativ schnell zu begehen. Wenn die nicht 100% richtig entkoppelt sind, dann hörst du das - und das nervt (jedenfalls mich) mehr als alles andere im Doppelhaus.

    Achte also darauf - deine Treppe kann dir relativ egal sein, die vom Nachbarn muss aber 100% passen wenn du Ruhe willst.
     
  9. #49 pacmansh, 08.05.2023
    pacmansh

    pacmansh

    Dabei seit:
    03.02.2022
    Beiträge:
    28
    Zustimmungen:
    1
    ... und da schreibst du schon von zweischalig. Bei uns ist es nur einschalig. Wie genau das nun bei uns aussehen soll weiß ich noch nicht. Das was ich aufgeschnappt habe ist: Lagerung nur im Boden und in der Decke, jeweils mit Elastomer/Entkopplungs-Lagern, dann noch irgendwelche Stützen, die dann wahrscheinlich auch auf dem Boden stehen und entkoppelt sein sollen und keinerlei Verankerung in der Wand. Die Stufen dann auch jeweils nochmal extra entkoppelt, weiß nicht ob das aber ohnehin Standard ist.

    Der Treppenbauer soll im dritten Reihenhaus schon angefangen haben, vielleicht kann ich es mir da mal zeigen lassen. Bei uns gehts wahrscheinlich in der kommende Woche los.

    Das damit das Schallproblem gelöst ist mag ich nicht glauben. Unabhängig davon ist für mich aber derzeit jede Maßnahme wichtig, welche die Schallübertragung verringert.
     
  10. Tilo

    Tilo

    Dabei seit:
    15.10.2022
    Beiträge:
    1.670
    Zustimmungen:
    531
    Beruf:
    Dipl.- Bauingenieur
    Ort:
    Dresden
    Hallo
    Eigentlich haben wir über alle Themen ausgiebig dir schon geschrieben und hingewiesen, auf was zu achten ist. Du musst das jetzt nur noch ordentlich durchziehen ......
     
  11. #51 pacmansh, 09.05.2023
    pacmansh

    pacmansh

    Dabei seit:
    03.02.2022
    Beiträge:
    28
    Zustimmungen:
    1
    Wird gemacht, wollte nur ein Update geben. Ich habe den Termin ausführlich protokolliert und an alle verschickt. Was der Bauträger mit der Treppe macht, ist ja erstmal sein Ding, solange sie noch der Baubeschreibung entspricht. Ein Schallgutachten beauftragen, wenn im Anschluss noch potenziell schallverbessernde Maßnahmen erfolgen, macht ja erstmal auch keinen Sinn, die Schallemmissionen einer Treppe messen, bei der noch Bretter vom Bau verschraubt sind auch nicht. Oder sehe ich das falsch? Der Bauträger soll nun erstmal seine Messungen machen und dann sehen wir wie der Stand ist.

    Übergabe ist übrigens aktuell für August geplant.
     
  12. Tilo

    Tilo

    Dabei seit:
    15.10.2022
    Beiträge:
    1.670
    Zustimmungen:
    531
    Beruf:
    Dipl.- Bauingenieur
    Ort:
    Dresden
    Hallo
    Er kann durchaus jetzt Messungen machen um den aktuellen Stand und die Schwachstellen zu erkennen. Das ist nicht falsch.
    Das Schallschutzbüro gibt dann auf Grund ihrer Erfahrungen auch noch nützliche Hinweise und Empfehlungen.
    Dann wird Nachgearbeitet / Verbessert und eine zweite "Erfolgsmessung " durchgeführt. Die wird dann Bestandteil deiner Abnahme .....
     
    pacmansh gefällt das.
  13. #53 pacmansh, 11.08.2023
    pacmansh

    pacmansh

    Dabei seit:
    03.02.2022
    Beiträge:
    28
    Zustimmungen:
    1
    Es hat gedauert, Ich habe nun die Werte der Messungen erhalten. Es handelt sich um einen recht stark gekürzten Bericht, den mir der Bauträger zur Verfügung gestellt hat. Eine Veröffentlichung im Internet wird ausdrücklich ausgeschlossen, weswegen ich hiervon erstmal absehe. Dennoch möchte ich gerne die gemessenen Werte mit euch teilen.

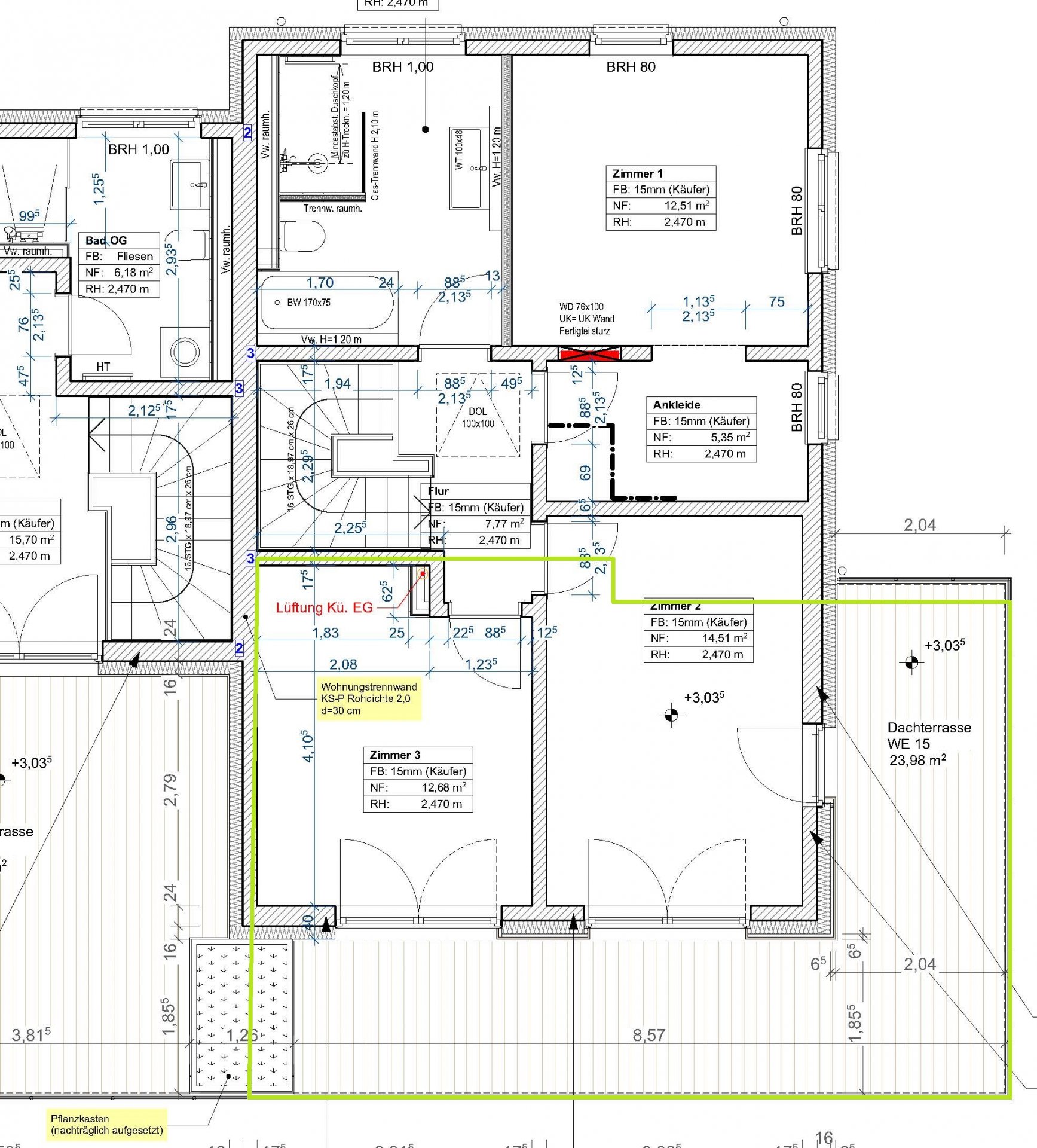
    Anbei erhaltet ihr noch einmal den Grundriss. Meine Einheit ist rechts zu finden. Der Grundriss ist vom Obergeschoss, das Wohnzimmer im EG (der einzige angrenzende Schutzbedürftige Raum) habe ich in grün zur Orientierung eingezeichnet.

    Folgende Werte wurden gemessen:
    Trennwand Erdgeschoss R'w (C; Ctr): 65 (-2;-5) dB
    Trennwand Obergeschoss Dn,w (C; Ctr): 65 (-2;-5) dB (Trennfläche kleiner 10m²)

    Treppe mittlere Wohneinheit zu unserem Wohnzimmer L'n,w (C1): 33 (-2) dB

    Geschossdecke zu unserem Wohnzimmer, Bad EG ist direkt unter Bad OG und grenzt bei uns an den Technikraum.
    aus Bad OG: L'n,w (C1): 40 (-1) dB
    aus Bad EG: L'n,w (C1): 33 (-5) dB

    Über eine Einschätzung würde ich mich freuen. Ein Termin mit dem Anwalt hinsichtlich des weiteren Vorgehens bzgl. der einschaligen Trennwand und den Schallanforderungen folgt nächste Woche.
     

    Anhänge:

  14. #54 pacmansh, 22.08.2023
    pacmansh

    pacmansh

    Dabei seit:
    03.02.2022
    Beiträge:
    28
    Zustimmungen:
    1
    Ein kleiner Versuch das Thema nochmal hochzuschieben. Ich wäre interessiert an einer Einordnung der gemessenen Werte. Da der Schallgutachter vom GU bezahlt war, kann ich hier keine Rücksprache halten. Zielsetzung war zunächst, dass der GU sich gegenüber dem Bauträger absichert, dass die Mindestwerte gem. DIN 4109 eingehalten werden. Entsprechend sieht der Gutachter die Anforderung als erfüllt an. Messergebnis über den Frequenzbereich liegen mir nicht vor, ich habe nur eine ser abgespeckte Version erhalten.

    Mein Verständnis ist aktuell wie folgt:
    - Luftschall EG/OG ist mit 65dB etwas schlechter als das von mir mindestens erwartete Niveau von mind. 67dB.
    - Bedeutet (C; Ctr): (-2;-5) dB, dass im Spektrum C der Wert 2 dB schlechter ist, also 63dB? Ctr sehe ich nicht ganz so relevant an
    - Die Entkopplung der Treppe scheint etwas gebracht zu haben. Der Wert ist mit 33dB gut, auch niederfrequentere Gehgeräusche schneiden noch gut ab
    - Die Geschossdecke EG, also die gemeinsame Bodenplatte hat ebenfalls einen ordentlichen Wert
    - Der Wert vom Bad OG des mittleren Hauses zu unserem Wohnzimmer im Süden macht mich allerdings stutzig. 40dB scheint mir an der Grenzen zu sein bzw. knapp über den von mir erwarteten Wert. Ich weiß, dass auch Messungen aus dem Flur OG mittleres Haus gemacht wurden, diese finden sich allerdings nicht im Bericht. Ist es zu erwarten, dass Gehgeräusche aus dem Bad des Mittelhauses auch in den Kinderzimmern/Schlafzimmer in unserem OG zu hören sind oder wird der hauptsächliche Schallweg nicht die Geschossdecke sondern die Haustrennwand in unser Wohnzimmer sein?

    Vielen Dank im Voraus.
     
Thema:

Schallschutzgutachten Reihenhaus

Die Seite wird geladen...

Schallschutzgutachten Reihenhaus - Ähnliche Themen

  1. Schallschutzgutachten für Poroton T10 Stein im Neubau Einfamilienhaus

    Schallschutzgutachten für Poroton T10 Stein im Neubau Einfamilienhaus: Hallo Bauexpertenforum, vielleicht habe ich Glück, und mir kann jemand bei einem aktuellen Hausbauproblem meinerseits helfen. Wir haben einen...
  2. Ablauf Schallmessung und Schallschutzgutachten?

    Ablauf Schallmessung und Schallschutzgutachten?: Hallo, wir wohnen seit 2010 in einem MFH Neubau vom BT. Wir haben den Eindruck, dass der Schallschutz in manchen Punkten nicht in Ordnung ist....
  3. Schallschutzgutachten

    Schallschutzgutachten: Hallo, wir haben vor 6 Monaten ein Reihenmittelhaus (Stein-auf-Stein) erworben. Wir haben aber, unserer Meinung nach, ein Schallschutzproblem...
  4. Erstellung eines Schallschutzgutachtens

    Erstellung eines Schallschutzgutachtens: Hallo, ich bin über Google auf dieses Forum aufmerksam geworden, da ich eine Antwort auf ein Problem suche. Wir haben vor ein...