sinnvolle Positionierung der Split-Klima

Diskutiere sinnvolle Positionierung der Split-Klima im Heizung 2 Forum im Bereich Haustechnik; Hallo Zusammen, wir bauen gerade einen Neubau und haben uns, auch Aufgrund der hilfreichen Antworten hier im Forum, für die Kühl bzw....

  1. #1 Domalto, 05.09.2019
    Zuletzt bearbeitet: 05.09.2019
    Domalto

    Domalto

    Dabei seit:
    11.03.2018
    Beiträge:
    181
    Zustimmungen:
    6
    Ort:
    Heilbronn
    Hallo Zusammen,

    wir bauen gerade einen Neubau und haben uns, auch Aufgrund der hilfreichen Antworten hier im Forum, für die Kühl bzw. Temperierungsfunktion der FBH über eine Luft-Wärmepumpe entschieden.
    Ausschlaggebend war hier unter anderem auch, das wir sehr empfindlich auf Zugluft reagieren bzw. die nicht abkönnen.

    Da die Kühlfunktion über die FBH nicht so viel bringt bzw. auch die Luftfeuchte nicht aus den Zimmern bekommt, wollen wir uns die Möglichkeit offen halten, mal nachträglich eine Multi Split-Klima zu verbauen, wenn uns die Kühlfunktion über die FBH nicht ausreichen sollte.
    Diese soll dann quasi die Kühlfunktion der FBH unterstützen und möglichst nur an wenigen Tagen laufen.
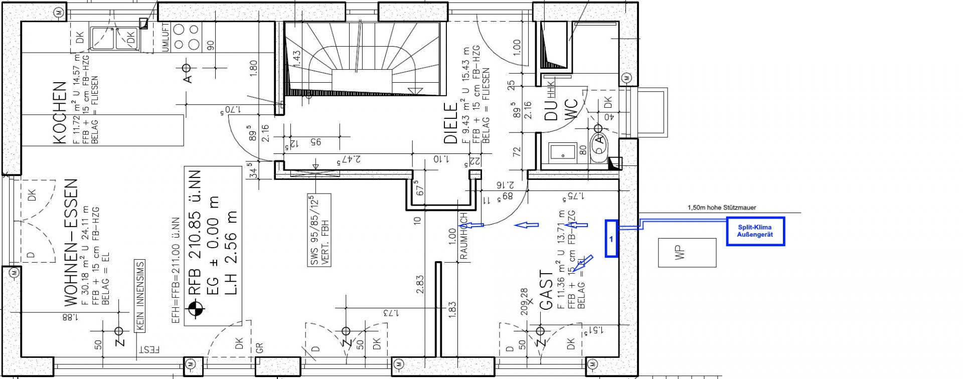
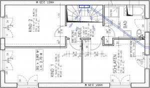
    Hierzu überlegen wir uns nun aktuell, wo man die Innengeräte am besten positionieren könnte, damit man dementsprechend an den Stellen schon die richtigen Vorbereitungen treffen kann.

    EG.JPG DG.JPG

    Die Idee zum Plan:
    Das Innengerät im EG kühlt das Gästezimmer und das Wohnzimmer.
    Im OG lässt man die Zimmertüre offen, wenn einem die Kühlfunktion über die FBH nicht ausreicht bzw. die Luftfeuchte zu hoch ist.
    Da das Treppenhaus offen ist (Zweiholmtreppe), müsste es dann ein Innengerät sein, dass ziemlich horizontal ausblasen kann, da sonst vermutlich zuviel kühle Luft einfach im Treppenhaus nach unten sinkt und die kühle Luft gar nicht in den Zimmern an kommt.
    Die Kupferleitungen könnte man über den "Dachboden" (Spitzdach nicht gedämmt) zu dem Innengerät legen, so zumindest die Idee.
    Zudem wäre der Abtransport des Kodenswassers an den eingezeichneten Stellen ohne große Probleme möglich.

    Könnte das so funktionieren?
    Die Lösung im DG ist natürlich gewagt, könnte auch nur eine kalte Diele bringen, allerdings ist es natürlich sehr kostspielig, in jedem einzelnen Raum ein Innengerät zu verbauen.
    Zudem werden die Betten an den Innenwänden stehen, somit müssten die Innengeräte auch an die Innenwand, da sonst Zugluft am Bett herrscht.
    Hier würde es auf den ersten Blick keine einfache Abführung des Kondenswassers geben.
    Anderseits, wenn die Montage in der Diele nix bringt, kann man es natürlich auch lassen.
    Hoffe auf eure Erfahrungen :)

    Benötigt man am Außengerät die Zuleitung und verbindet dann die Innengeräte mit je einem Kabel an das Außengerät?
     
  2. #2 Lexmaul, 05.09.2019
    Lexmaul

    Lexmaul

    Dabei seit:
    15.09.2014
    Beiträge:
    8.921
    Zustimmungen:
    2.163
    Benutzertitelzusatz:
    Mimosenlecker
    Du könntest ein (teures) Deckenmodul im Flur oben verbauen, aber ich bezweifel, dass das gut funktioniert - es wird Kühle zwar in den Zimmern ankommen, aber nicht effektiv und ob jeder Bock hat, dann mit offenen Türen zu schlafen?

    Moderne Geräte produzieren keine Zugluft, man kann sie entsprechend einstellen.

    Würde immer einzelne Geräte für die einzelnen Räume vorsehen. Grad im Rohbau ist noch viel möglich...

    Alle Kabel müssen zum Aussengerät, keinen Ring. Und die Kupferleitungen sind eh gedämmt.
     
    Domalto gefällt das.
  3. #3 Biamojul, 06.09.2019
    Biamojul

    Biamojul

    Dabei seit:
    27.01.2018
    Beiträge:
    43
    Zustimmungen:
    3
    Wenn das Gerät im EG in erster Linie den Wohn-/Essbereich kühlen soll (und das Wohnzimmer evtl. im Süden liegt) dann wäre eine Kühlung des Gästezimmers nicht optimal. Im Wohnzimmer könnte das Innengerät vermutlich auch mit niedrigerer Gebläsestufe laufen.

    Bei etwas besseren Wandgeräten lässt sich normalerweise (sollte man natürlich kontrollieren) die Ausblasrichtung horizontal und vertikal verstellen (bei Bedarf auch per Fernbedienung) und das normale ist dass die Luft horizontal ausgeblasen wird da die kalte Luft von alleine nach unten sinkt und so die Durchmischung besser ist.

    Zum Multi-Splitgerät ist zu sagen dass (unerklärlicherweise) teilweise die reinen Gerätekosten im Bereich von 2 Einzel-Splitgeräten liegen, die beiden Einzel-Splitanlagen allerdings separat elektrisch angeschlossen und in Betrieb genommen werden müssten.

    Ein Außen-Invertergerät kann in der Regel nur bis zu einem gewissen minimalen Prozentsatz der Maximalleistung runterregeln. Beim Multi-Splitgerät ist dann meist die Mindest-Kühlleistung größer und wenn nur 1 Innengerät genutzt wird muss dann diese Mindestleistung von diesem einen Gerät abgegeben werden. Wenn diese Leistung zu groß ist dann schaltet der Kompressor periodisch an und aus. Ein SIngle-Split kann in der Regel weiter runterregeln als ein Multi-Split an dem nur ein Innengerät läuft. Wenn alle Innengerät am Multi-Splitgerät genutzt werden spielt das keine Rolle mehr. Die tatsächliche Mindestleistung müsste man aber im konkreten Einzelfall vergleichen und unabhängig vom Typ darauf achten dass das gewählte Gerät weit genug runterregeln kann.

    Ich möchte damit aber keinesfalls eine Empfehlung für 2 Single statt eines Multi-Splitgeräts aussprechen sondern nur auf die zu berücksichtigenden Punkte hinweisen da natürlich auch die Installationskosten und der Platz für 2 Außengeräte Nachteile darstellen.

    Der elektrische Anschluss ist oft am Außengerät und von dort gehen separate Kältemittel- und Stromleitungen zu den einzelnen Innengeräten.

    Ob die Kühlung im OG funktioniert kann ich nicht beurteilen da unser Haus nicht gut gedämmt ist und sich dadurch so stark aufheizt dass das nicht funktionieren würde. Evtl. könnte man mit einem Standventilator etwas unterstützen.
     
    Domalto gefällt das.
Thema: sinnvolle Positionierung der Split-Klima
Besucher kamen mit folgenden Suchen
  1. eine splitklima pro etage

    ,
  2. Klimaanlage bauexpertenforum www.bauexpertenforum.de

Die Seite wird geladen...

sinnvolle Positionierung der Split-Klima - Ähnliche Themen

  1. sinnvoller Platz für Zählerschrank gesucht

    sinnvoller Platz für Zählerschrank gesucht: Hallo Zusammen, ich plane gerade die Erneuerung der Hauselektrik und bräuchte Tipps für die sinnvolle Ausrichtung des Zählerschrank und...
  2. Ziegeltausch bzw. Reparatur möglich & sinnvoll?

    Ziegeltausch bzw. Reparatur möglich & sinnvoll?: Hallo zusammen, ich habe ein Dachvorsprung vom EG mit gebrannten Tonziegeln vermutlich aus den 60er/70er Jahren. Die einen sagen komplett neu,...
  3. Feuchte Außenwand im Altbau. Hinterlüftete Vorwand sinnvoll oder erst komplett sanieren?

    Feuchte Außenwand im Altbau. Hinterlüftete Vorwand sinnvoll oder erst komplett sanieren?: Hallo zusammen, ich stehe aktuell vor einem Problem mit einer feuchten Außenwand im Altbau und würde gerne eure Einschätzung einholen. Zur...
  4. Altbau renovieren: Welche Spachtelmasse & Glasvlies-Methode sinnvoll?

    Altbau renovieren: Welche Spachtelmasse & Glasvlies-Methode sinnvoll?: Moin zusammen, mein Bruder und ich renovieren aktuell seine Altbauwohnung. Nach einigen (zu vielen) Fahrten zum Sperrmüll haben wir die...
  5. Vinylboden auf Beton im unbeheizten, feuchten Keller – sinnvoll?

    Vinylboden auf Beton im unbeheizten, feuchten Keller – sinnvoll?: Guten Tag zusammen, ich habe ein älteres Haus mit einem unbeheizten Keller, der ausschließlich als Lagerraum genutzt wird. Es gibt keine...