Stahlträger Unterzug - Fensterelement HST oben anschliessen

Diskutiere Stahlträger Unterzug - Fensterelement HST oben anschliessen im Sanierung konkret Forum im Bereich Altbau; Eher 3-4 cm. Das exakte Mass bekommst du nur vom Fensterbauer. Somit kommst du eventuell auch mit geringer Verbreiterung hin vllt brauchst du...

  1. #21 halve85, 01.10.2020
    halve85

    halve85

    Dabei seit:
    17.08.2018
    Beiträge:
    26
    Zustimmungen:
    0
    Wenn ich das richtig sehe hat die HST (Vekaslide82) oben 5cm feststehenden Rahmen. Davor könnte ich also die Dämmung runterziehen...
    vekaslide82.png

    und da der Fensterbauer eh oben Luft lassen wird zum Träger (wie dick dichtet so Kompriband ab?) wäre da bestimmt zwangsweise potenziell noch mehr Platz...
     
  2. #22 halve85, 01.10.2020
    halve85

    halve85

    Dabei seit:
    17.08.2018
    Beiträge:
    26
    Zustimmungen:
    0
    jetzt überlege ich gerade noch was mit dem Betonpolster als Auflager welches der Maurer erstellt dämmtechnisch erfordelich ist....

    Muss ich dann die ganze Laibungsseite auch noch direkt zwangsweise dämmen (grün) wegen dem Betonpolster (blau)?
    die 2x6cm Breitenverlust könnte man natürlich verschmerzen.... muss man nur mit einplanen ;)
    Bildschirmfoto 2020-10-01 um 22.16.25.png
     
  3. SIL

    SIL

    Dabei seit:
    06.05.2018
    Beiträge:
    10.837
    Zustimmungen:
    4.192
    Beruf:
    M. Sc. Dipl. Ingenieur
    Ort:
    6210
    Je nach dem was verwendet wird 0,5 cm bis 3 cm sind die üblichen bei Fenster und Türen, wobei 3 cm schon sehr viel ist.
    Ja und zwar nicht nur wegen deinen Auflagen sondern auch an deiner Tür, respektiv den Rahmen auch dort überdeckst dann due passenden Verbreiterung.

    Aber 5 cm Rahmenbreite langen nicht!
     
    simon84 gefällt das.
  4. #24 halve85, 02.10.2020
    halve85

    halve85

    Dabei seit:
    17.08.2018
    Beiträge:
    26
    Zustimmungen:
    0
    hmm der Dämmaufwand muss nur wegen dem Betonpolster getrieben werden, oder?
    beim normalen Austausch des Fensters würde ich ja auch nur 1 zu 1 austauschen.

    Also links und rechts vertikal auch noch Verbreiterungen an den Rahmen der HST um ein paar cm zu gewinnen die man dann dämmen kann...

    das war jetzt auf oben am Stahlträger bezogen, korrekt?
    Aber an den Seiten wird es wohl ähnlich stark ausfallen müssen um das Betonpolster abzudecken, oder?
     
  5. #25 halve85, 02.10.2020
    halve85

    halve85

    Dabei seit:
    17.08.2018
    Beiträge:
    26
    Zustimmungen:
    0
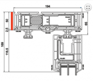
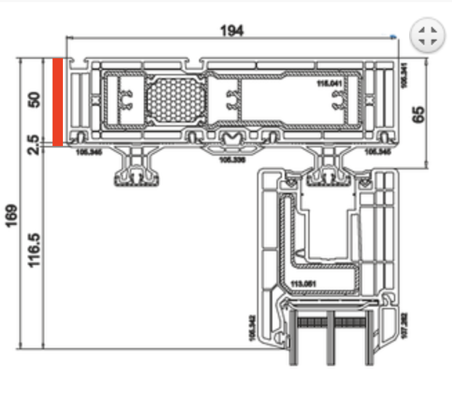
    Fensterbauer hat mich gerade mal darauf hingewiesen, dass der Rahmen der HST ja mehr als 82mm ist. Es sind 194mm auf dem zwei 82mm Fenster in den Schienen laufen.

    Und wenn ich ihn richtig verstanden habe, würde er das Fenster aussenbündig anschliessen.
    Heißt das Fenster steht über dem Stahlträger raus und ich muss den Stahlträger gar nicht von unten dämmen und so wie in der Zeichnung wäre korrekt, oder?

    fenster_dämmung.jpg
     
Thema: Stahlträger Unterzug - Fensterelement HST oben anschliessen
Besucher kamen mit folgenden Suchen
  1. unterzug über fenster

    ,
  2. fenster an stahlträger befestigen

    ,
  3. detail stahlträger anschluss rolltor

    ,
  4. auflager stahlstütze eckfenster,
  5. Einbau unp upn
Die Seite wird geladen...

Stahlträger Unterzug - Fensterelement HST oben anschliessen - Ähnliche Themen

  1. Statik-Sorgen: Starke Korrosion an Stahlträgern in feuchtem Keller – Einsturzgefahr?

    Statik-Sorgen: Starke Korrosion an Stahlträgern in feuchtem Keller – Einsturzgefahr?: Hallo zusammen, ich wende mich mit großer Sorge an die Experten hier im Forum und hoffe auf eine erste Einschätzung zu einer beunruhigenden...
  2. Unterzug oder Stahlträger

    Unterzug oder Stahlträger: Die Rohbaudeckenhöhe ist mit 2,75m geplant. Es kommt eine FBH. Im Lichte sollten ca. 2,58m übrig bleiben. Ich überlege jetzt, ob man die vier...
  3. Stahlträger für Unterzug richtig auswählen.

    Stahlträger für Unterzug richtig auswählen.: Hallo zusammen, ich bin momentan an der Planung meiner Garagenrenovierung da das Dach über die Jahre kaputt ist. In dem Zug will ich die Garage...
  4. Einbau Stahlträger (Unterzug), vorspannen?

    Einbau Stahlträger (Unterzug), vorspannen?: Zu oben genannten Thema gibt es bereits gefühlt 1000 Beiträge. Leider konnte ich meine Fragestellung noch nicht finden. Uns liegt eine etwas älte...
  5. Unterzug, Stahlträger, Holzbalken?

    Unterzug, Stahlträger, Holzbalken?: Hallo, ich weiß nicht genau in welche Kategorie das rein gehört deshalb setze ich es einfach mal hier rein. Wir benötigen laut Statiker zwischen...