Starke Feuchtigkeit an der Innenwand zum Wintergarten

Diskutiere Starke Feuchtigkeit an der Innenwand zum Wintergarten im Mauerwerk Forum im Bereich Neubau; Hallo zusammen, wir haben hier in unserem nicht mehr ganz so neuen Neubau (2020) ein großes Problem, leider scheint sich der Bauträger aus dem...

  1. #1 MoreOrLess, 24.10.2025
    MoreOrLess

    MoreOrLess

    Dabei seit:
    21.12.2020
    Beiträge:
    8
    Zustimmungen:
    1
    Hallo zusammen,

    wir haben hier in unserem nicht mehr ganz so neuen Neubau (2020) ein großes Problem, leider scheint sich der Bauträger aus dem Staub gemacht zu haben, bzw. ist nicht verfügbar um das Problem zu beheben. Rechtliche Schritte sind eingeleitet, das bringt uns bei dem Problem aber nicht weiter.

    Bevor ich aber die ersten Gewerke anfrage, wollte ich mir erst ein paar Anhaltspunkte einholen, was die Ursache sein könnte.

    Also wie gesagt, das Haus wurde 2020 fertiggestellt und bezogen. Seit dem gab es bis Sommer 2024 auch keine größeren Probleme. Im Juni 2024 fiel uns auf, dass die Wand im Wohnzimmer unten feucht ist und der Putz aufblüht. Dies passierte nach heftigem zweiwöchentlichem Regen und war bei der Hitze danach auch extrem schnell wieder trocken. Der Bauträger kümmerte sich leider nicht drum und wir haben das Problem verdrängt, in der Hoffnung, dass es nächstes Jahr nicht wieder kommt. Jetzt hat es wieder geregnet und es ist wieder recht feucht und der Putz sieht noch viel schlimmer aus.

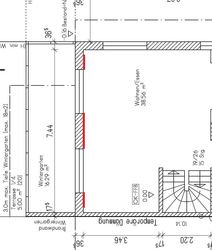
    Zur Architektur: Die Wohnzimmerwand ist 8 Meter lang und fasst zwei große Schiebetüren, dahinter befindet sich der Wintergarten, der vermutlich Teil des Problems ist. Die Bodenplatte des Wintergartens ist nicht mit dem Haus verbunden. Der Wintergarten wurde von einer Pfuschfirma aufgebaut aber der Sockel von einer Fachfirma abgedichtet. Jedoch sind die Seitenanschlüsse des Wintergartens verpfuscht. (1cm Spalt mit Kompriband abgedichtet).

    Wichtige Info #1: Im Wintergarten ist die selbe Wand auf der anderen Seite nicht nass ABER unter dem Feinputz im Wintergarten befindet sich Außernputz, da die Wand ursprünglich mal als Außenwand gedacht war. Da wurde einfach drüber verputzt. Könnte es sein, dass es eigentlich auch nass wäre aber der Außenputz die Feuchtigkeit nicht durchlässt?

    Wichtige Info #2: Während des Baus (siehe eins der Bilder) hingen eine Zeit lang die Fußbodenheizungsschläuche aus der Wand. Dort hat es dann nach längerem Regen während des Baus exakt den selben Wasserschaden innen gegeben weil wohl die Feuchtigkeit durch das Loch dort ins Mauerwerk gezogen ist. Danach wurde dann alles mit Bitumen abgedichtet und das Problem trat nicht wieder auf.

    Als Laie hab ich zwei Theorien:

    1. Durch die Seitenanschlüsse dringt Wasser und die Wintergarten "Wanne" füllt sich soweit bis es am Haus steht und dort dann ins Mauerwerk einzieht. Wegen dem Außenputz ist es nur von einer Seite sichtbar.

    2. Es kommt durch den Stoß zwischen den Bodenplatten, entweder weil es nicht ablaufen kann oder durch Kapillarwirkung.

    Würde mich über eine Einschätzung oder Ideen zum Problem freuen, danke!
     

    Anhänge:

  2. #2 petra345, 24.10.2025
    petra345

    petra345

    Dabei seit:
    17.02.2017
    Beiträge:
    5.207
    Zustimmungen:
    1.013
    Beruf:
    Ing. plus B. Eng.
    Ort:
    Rhein-Main-Gebiet
    Benutzertitelzusatz:
    Ing.(grad.) plus B. Eng.
    Der Wintergarten sollte eigentlich das Wasser von der Außenwand abhalten. Die Außenwand sollte selbst aber auch bereits gegen Wasser dicht sein.
    Bevor man einen Anwalt einschaltet, muß man erst wissen was Sache ist. Ggf. muß man einen Vereidigten Sachverständigen hinzuziehen. Da gibt es zwar auch zweifelhafte "Artiste", aber anders geht es nicht.
    Außer dem Bauträger kommt auch der Architekt, wegen einer vernachlässigten Bauaufsicht, als Schuldiger innerhalb seiner 5 Jahre Haftung infrage.

    Die Angelegenheit so lange schleifen zu lassen, kann dazu führen, daß man wegen Fristablauf, auf den Kosten sitzen bleibt.

    Wie kam es, daß die Schläuche der FBH aus der Wand hängen und wo sind sie jetzt?
     
  3. #3 MoreOrLess, 24.10.2025
    MoreOrLess

    MoreOrLess

    Dabei seit:
    21.12.2020
    Beiträge:
    8
    Zustimmungen:
    1
    Vielen Dank für die Antwort, das mit der Haftung des Architekten wusste ich nicht.

    Der Schaden wurde natürlich fristgerecht beim Bauträger angezeigt, er hat einfach nur nichts gemacht. Raus aus dem Schneider ist er dadurch ja nicht. Er hat sich einfach nicht mehr gemeldet und wir hatten noch keinen Grund gesehen, einen Anwalt einzuschalten.

    Die Schläuche der FBH hingen da so lange raus weil der Wintergarten sich um fast ein Jahr verzögert hat und man nicht den Estrich machen wollte solange da noch Wind und Wetter Einzug halten auf der Bodenplatte.
     
  4. 415B

    415B

    Dabei seit:
    03.12.2024
    Beiträge:
    1.481
    Zustimmungen:
    252
    Fachanwalt für Baurecht sollte helfen.
     
  5. ToTi

    ToTi

    Dabei seit:
    27.01.2025
    Beiträge:
    1.271
    Zustimmungen:
    732
    Beruf:
    Dachdecker
    Ort:
    Im Süden von Deutschland
    Ich sehe hier noch andere Schwachstellen. Die Abdichtung an die Wand und Türelemente sieht nicht sehr vertrauenserweckend aus. Ich würde das Hauptproblem an an den Türen suchen, da hier die Ausblühungen am höchsten sind. Theoretisch könnte es sein, dass Wasser auch von den oberen Fenster bis nach unten gelangt und dann dort eindringt. Wie ist eigentlich der Wintergarten außen am Sockel ringsherum abgedichtet? Ist er das überhaupt? Denn das sollte er, wenn ihr schon eine Fußbodenheizung verbaut habt. Wo wird der Wintergarten entwässert? Ich vermute über die Stützen, einfach auf den Boden und wo läuft diese Wasser hin?

    Du solltest auch mal ein paar Bilder von dem jetzigen Zustand des Wintergartens einstellen. Seitlich, von vorne und von oben, damit man die Anschlüsse sieht.
     
Thema:

Starke Feuchtigkeit an der Innenwand zum Wintergarten

Die Seite wird geladen...

Starke Feuchtigkeit an der Innenwand zum Wintergarten - Ähnliche Themen

  1. Bedachung Carport mit Profilblech - welche Stärke?

    Bedachung Carport mit Profilblech - welche Stärke?: Hallo zusammen, wir haben vor knapp 2 Jahren einen Carport gebaut. Das Dach besteht aus vollflächig verlegten Dielen und darauf haben wir...
  2. Weishaupt Wärmepumpe WWP LB 12 Defekte Kupferleitungen, starke Vibarationsgeräusche.

    Weishaupt Wärmepumpe WWP LB 12 Defekte Kupferleitungen, starke Vibarationsgeräusche.: Wärmepumpe Weishaupt WWP LB 12, undichte Kupferrohre, Öl und Kältemittel tritt aus. Vermutlich durch starke Vibration. Garantie ??? WWP LB 12...
  3. Stampfbeton B120 (Bj. 1963) stark degradiert – partielle Wand-Erneuerung durch Neu-Betonieren

    Stampfbeton B120 (Bj. 1963) stark degradiert – partielle Wand-Erneuerung durch Neu-Betonieren: Hallo zusammen, ich benötige eine Einschätzung zur Instandsetzung einer Kellerwand aus Stampfbeton bei meinem Einfamilienhaus. Objektdaten:...
  4. Statik-Sorgen: Starke Korrosion an Stahlträgern in feuchtem Keller – Einsturzgefahr?

    Statik-Sorgen: Starke Korrosion an Stahlträgern in feuchtem Keller – Einsturzgefahr?: Hallo zusammen, ich wende mich mit großer Sorge an die Experten hier im Forum und hoffe auf eine erste Einschätzung zu einer beunruhigenden...
  5. Feuchtigkeit Innenwand nach starkem Regen der letzten Tage

    Feuchtigkeit Innenwand nach starkem Regen der letzten Tage: Hallo, Ich habe heute gesehen das an der Innenwand einer Terrassentür Feuchtigkeit ist. Wir hatten in in den letzten beiden Tagen soviel Regen das...