STATIK - STURZ AUSREICHEND / SÄULE ENTFERNEN?

Diskutiere STATIK - STURZ AUSREICHEND / SÄULE ENTFERNEN? im Sanierung konkret Forum im Bereich Altbau; Hallo Bauexperten, ich brächte mal eure Einschätzung zu folgendem Statik Thema: Ich möchte 2 nebeneinanderliegende Terrassentüren in eine...

  1. Sven B

    Sven B

    Dabei seit:
    11.06.2012
    Beiträge:
    46
    Zustimmungen:
    7
    Ort:
    Schwarzwald
    Hallo Bauexperten,

    ich brächte mal eure Einschätzung zu folgendem Statik Thema:
    Ich möchte 2 nebeneinanderliegende Terrassentüren in eine Schiebetüre umbauen.
    Es geht um die linken beiden im EG (aus dem Vorbau mit den Bodentiefen Öffnungen)
    Die Türe ganz rechts mit Säule soll bleiben. Ich meine der Architekt und die Maurer haben damals gesagt, dass die beiden Säulen eigentlich nicht nötig seien.

    Was meint Ihr, kann ich die linke Säule einfach entfernen?

    IMG_0142.JPG

    IMG_0333.JPG
     
  2. Yilmaz

    Yilmaz

    Dabei seit:
    28.03.2006
    Beiträge:
    7.263
    Zustimmungen:
    1.296
    Beruf:
    Maurer & Betonbaumeister
    Ort:
    Delbrück/Westfalen
    Benutzertitelzusatz:
    Maurer-und Betonbauermeister
    Ich glaube so einfach ist es nicht…

    Liegt keine Statik vor?
     
  3. Sven B

    Sven B

    Dabei seit:
    11.06.2012
    Beiträge:
    46
    Zustimmungen:
    7
    Ort:
    Schwarzwald
    Doch eine Statik liegt vor, aber ich kann diese nicht interpretieren...
     
  4. #4 JohnBirlo, 01.11.2022
    JohnBirlo

    JohnBirlo

    Dabei seit:
    28.05.2020
    Beiträge:
    1.232
    Zustimmungen:
    461
    So ne Frage beantwortet dir doch dein Statiker spontan am Telefon
     
  5. Yilmaz

    Yilmaz

    Dabei seit:
    28.03.2006
    Beiträge:
    7.263
    Zustimmungen:
    1.296
    Beruf:
    Maurer & Betonbaumeister
    Ort:
    Delbrück/Westfalen
    Benutzertitelzusatz:
    Maurer-und Betonbauermeister
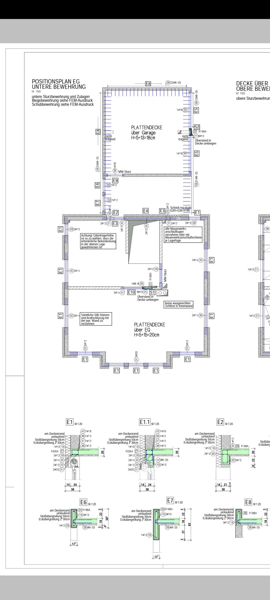
    Positionsplan vom EG Decke?
     
  6. #6 simon84, 01.11.2022
    simon84

    simon84
    Moderator

    Dabei seit:
    11.11.2012
    Beiträge:
    23.258
    Zustimmungen:
    6.904
    Beruf:
    Schrauber
    Ort:
    Muenchen
    Kann sein dass es reicht. Lass es den Statiker rechnen
     
  7. SIL

    SIL

    Dabei seit:
    06.05.2018
    Beiträge:
    10.865
    Zustimmungen:
    4.211
    Beruf:
    M. Sc. Dipl. Ingenieur
    Ort:
    6210
    Nach deinem Foto , beide können weg , aber trotzdem TWP fragen.
     
    simon84 gefällt das.
  8. Sven B

    Sven B

    Dabei seit:
    11.06.2012
    Beiträge:
    46
    Zustimmungen:
    7
    Ort:
    Schwarzwald
    Hilft das weiter?
    Screenshot_20221102-203226_Adobe Acrobat.jpg Screenshot_20221102-203236_Adobe Acrobat.jpg
     
  9. Sven B

    Sven B

    Dabei seit:
    11.06.2012
    Beiträge:
    46
    Zustimmungen:
    7
    Ort:
    Schwarzwald
    Ist daraus etwas abzuleiten oder benötigt es noch weitere Daten.
    Dies dient nur einer ersten Einschätzung, rechnen lasse ich auf jedenfall nochmal.
     
  10. SIL

    SIL

    Dabei seit:
    06.05.2018
    Beiträge:
    10.865
    Zustimmungen:
    4.211
    Beruf:
    M. Sc. Dipl. Ingenieur
    Ort:
    6210
    Wie ich schon bemerkte , beide können entfernt werden - TWP zur Sicherheit fragen.
     
Thema:

STATIK - STURZ AUSREICHEND / SÄULE ENTFERNEN?

Die Seite wird geladen...

STATIK - STURZ AUSREICHEND / SÄULE ENTFERNEN? - Ähnliche Themen

  1. Seltsamer großer Sturz - 2 Statiker bis jetzt ratlos

    Seltsamer großer Sturz - 2 Statiker bis jetzt ratlos: Hallo zusammen, wir machen aktuell eine Kernsarnierung unseres Hauses von 1960 und brauchen eure Hilfe. Kann sich jemand erklären wofür dieser...
  2. Türsturz berechnen!

    Türsturz berechnen!: Hallo zusammen, es geht hier um meine Neugier. In der Praxis habe ich folgenden Fall: Es handelt sich um ein 7cm Schlackewand(nicht tragend) in...
  3. Statik Frage zu Mauerwerk bzw. Aussteifung und Sturz

    Statik Frage zu Mauerwerk bzw. Aussteifung und Sturz: Guten Tag, ich Plane einen freistehenden Anbau an mein Haus. Dieser sollte wie folgt aussehen: Viereckig ca. 5,5x5,7m, an 3 Seiten Wände -...
  4. Kellerfenster vergrößern - Wie sieht es mit der Statik aus ?

    Kellerfenster vergrößern - Wie sieht es mit der Statik aus ?: Hallo zusammen, das ist mein erster Beitrag in diesem Forum. Ich habe bislang interessiert sehr viele Beiträge gelesen. Nun haben ich ein eigenes...
  5. Statik Sturz & Bewehrung

    Statik Sturz & Bewehrung: Hallo liebe Community, wir haben nur ein paar Probleme mit unserem neuen Haus. Kennst sich jemand von Euch gut mit Betonfertigteilen oder mit...