Statiker Hilfe benötigt - Fenster verbreiten

Diskutiere Statiker Hilfe benötigt - Fenster verbreiten im Praxisausführungen und Details Forum im Bereich Architektur; Hallo, wir bauen gerade ein Haus und haben festgestellt, dass wir unsere Fenster zu schmal eingeplant haben. Zurzeit haben wir ein Fenster mit...

  1. #1 Einundhalbgeschoss, 05.10.2025
    Einundhalbgeschoss

    Einundhalbgeschoss

    Dabei seit:
    05.10.2025
    Beiträge:
    7
    Zustimmungen:
    0
    Hallo,

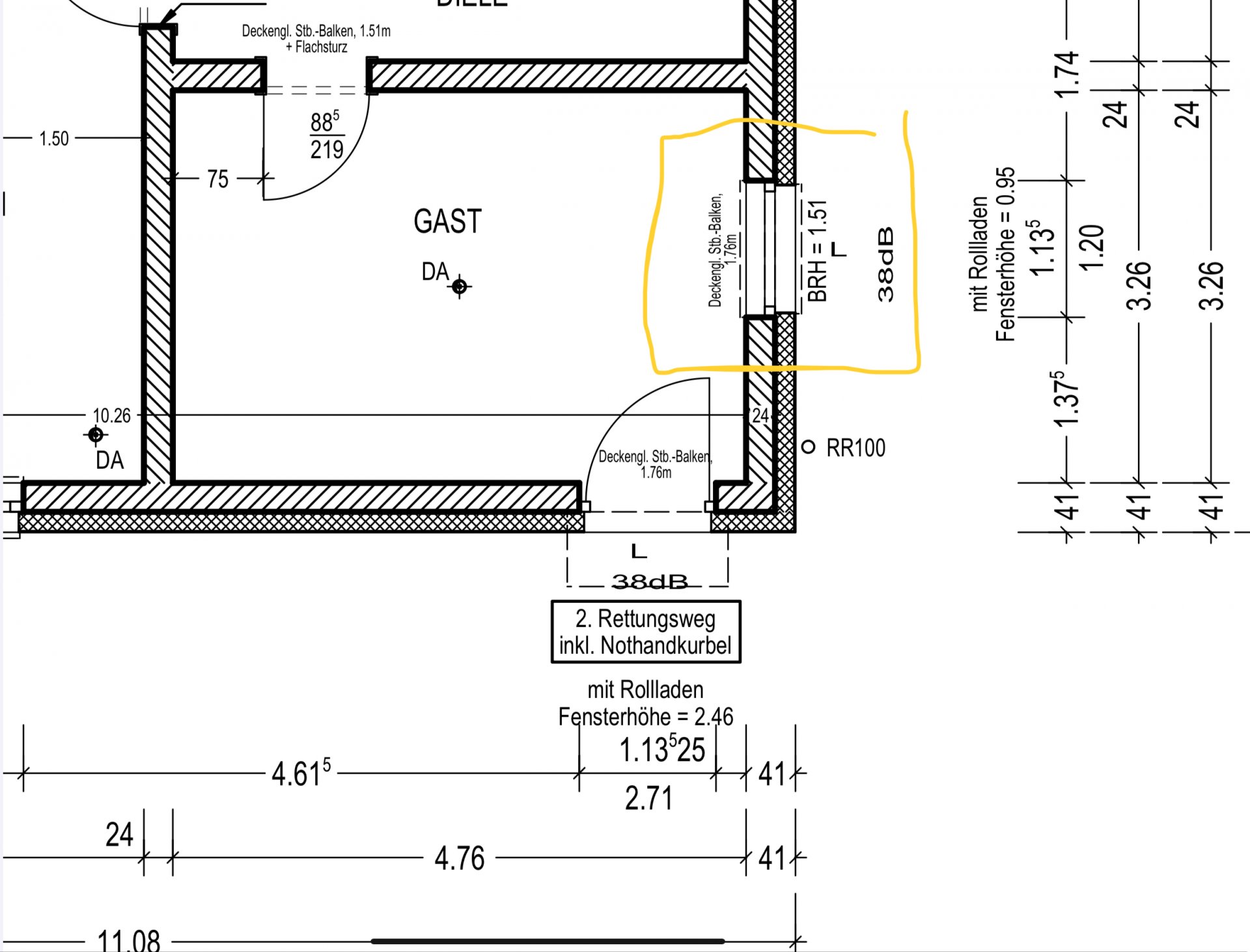
    wir bauen gerade ein Haus und haben festgestellt, dass wir unsere Fenster zu schmal eingeplant haben. Zurzeit haben wir ein Fenster mit einer Breite von 113 cm, das wir gerne verbreitern möchten.

    Das Haus wird mit Porosteinen gebaut und die 113 cm breiten Fenster haben immer deckengleiche StB-Balken mit einer Breite von 176 cm. Dann kommen Rollläden mit 5 cm Dämmung und einer 25 cm breiten Rollladenkasten.

    Nun unsere Frage: Wie können wir unser Fenster nachträglich auf eine Breite von 176–200 cm verbreitern? Und das ohne Stürze, die unsere Fenster oder den Rolladenkasten nach unten setzen? .

    Gibt es dazu eine elegante Lösung? Zum Beispiel einen tragenden Rolladenkasten oder einen flachen Stahlsturz?

    Dazu noch eine zusätzliche Frage: Bis zu welcher Breite braucht ein Fenster keine Stürze? Kann man beispielsweise ein 60 cm breites Fenster einfach ohne Sturz planen?b


    Vielen Dank! Mfg, Adam
     

    Anhänge:

  2. #2 Fabian Weber, 05.10.2025
    Fabian Weber

    Fabian Weber

    Dabei seit:
    03.04.2018
    Beiträge:
    16.378
    Zustimmungen:
    6.513
    Im Grunde laufen die Fenster ja bis unter die Rohdecke. Frag doch erstmal Deinen Statiker, wie der das geplant hat und ob man da breiter werden kann.
     
    415B gefällt das.
  3. #3 Einundhalbgeschoss, 05.10.2025
    Einundhalbgeschoss

    Einundhalbgeschoss

    Dabei seit:
    05.10.2025
    Beiträge:
    7
    Zustimmungen:
    0
    Leider kann ich unseren Statiker nicht mehr fragen, da unser große Bauunternehmer dies in der Bauphase nicht mehr erlaubt. Somit stellt sich die Frage, ob eine Verbreitung überhaupt machbar wäre.
     
  4. Oehmi

    Oehmi

    Dabei seit:
    23.02.2023
    Beiträge:
    1.291
    Zustimmungen:
    623
    Beruf:
    Diplom-Kümmerer
    Ort:
    Niedersachsen
    Klingt für mich nach einer unwirksamen Vertragsklausel.

    Nicht ohne Prüfung der Tragwerksplanung.
     
    415B gefällt das.
  5. 415B

    415B

    Dabei seit:
    03.12.2024
    Beiträge:
    1.486
    Zustimmungen:
    253
    Ein unabhängiger Statiker kostet nicht die Welt.
    Wobei sind denn schon die Mauern errichtet?
     
  6. #6 Fabian Weber, 05.10.2025
    Fabian Weber

    Fabian Weber

    Dabei seit:
    03.04.2018
    Beiträge:
    16.378
    Zustimmungen:
    6.513
    ???

    Dann lass Dir vom Bauunternehmen die entsprechenden Statikunterlagen aushändigen, dass muss der sowieso.
     
  7. #7 Kriminelle, 05.10.2025
    Kriminelle

    Kriminelle

    Dabei seit:
    16.05.2013
    Beiträge:
    3.828
    Zustimmungen:
    2.157
    Beruf:
    .
    Ort:
    Niedersachsen
    Das Problem wird im Großen sein, dass Euer Vertrag mit dem großen BU keine solchen Änderungen eingeplant hat bzw. ihr durch massive Änderungen in schon gebaute Gewerke gravierend negativ in den Ablauf einwirkt und die Fertigung dadurch verzögert.
    Handelt es sich nur um ein oder mehrere Fenster?
    Meist sind Fenster in einem Haus in der Optik abhängig voneinander. Außerdem achtet man bei der Planung auf Abstände zu Ecken und Stellmöglichkeiten. Der Lichtfluss ist berechnet.
    Warum ist da ein 113 Fenster geplant, wenn man 200 haben möchte? Es ist ja so, dass man auch nach Einzug so einiges findet, das man geändert oder anders haben möchte. Das ist völlig normal.
    Ich würde also als erstes dazu raten, den Vertrag zu lesen hinsichtlich der Konsequenzen - ob es das wert ist. Die Stürze sind schon drin?
     
  8. #8 SIL, 05.10.2025
    Zuletzt bearbeitet: 05.10.2025
    SIL

    SIL

    Dabei seit:
    06.05.2018
    Beiträge:
    10.865
    Zustimmungen:
    4.212
    Beruf:
    M. Sc. Dipl. Ingenieur
    Ort:
    6210
    Ja. Überzug.
    Das ist DG im Eck Bereich , ganz so einfach wird das nicht funktionieren , ein weiteres Problem könnte die 'Ecke' darstellen insofern hier die Wand nur gemauert ist.
    Historisch gibt es durchaus große Öffnungen Sturzfrei , das baut heute aber niemand mehr außer bei Denkmal etc
    Dann erkläre einmal wo ich als Errichter verpflichtet bin nachträglich jeden Kundenwunsch zu erfüllen, wobei hier schon der Bautenstand nicht sichtbar ist und der Vertrag.
    Nach Übergabe/ Abnahme nicht vorher.
     
  9. #9 hanghaus2000, 05.10.2025
    hanghaus2000

    hanghaus2000

    Dabei seit:
    24.11.2021
    Beiträge:
    1.545
    Zustimmungen:
    644
    Beruf:
    Bauleiter, Kalkulator, Controller, Salzdesign
    Ort:
    Bayern
    Ist die Decke schon betoniert? Der Kunde schafft an. Sag dem BU der soll da ein grosses Fenster einbauen. Wie der das macht ist doch nicht Dein Problem.
     
  10. SIL

    SIL

    Dabei seit:
    06.05.2018
    Beiträge:
    10.865
    Zustimmungen:
    4.212
    Beruf:
    M. Sc. Dipl. Ingenieur
    Ort:
    6210
    Manchmal frage ich mich bei den Kommentaren, wie war das mit Tragstreifen integriert Heft 631 ff 2.4.3. durch die Ausbildung eines verstärkten Tragstreifens (deckengleicher Unterzug / Balken) langt hier noch vereinfachter Nachweis ? Hilfe geben bestimmt die Oberstatiker hier im Forum ...
    :hammer:
     
  11. #11 Einundhalbgeschoss, 05.10.2025
    Einundhalbgeschoss

    Einundhalbgeschoss

    Dabei seit:
    05.10.2025
    Beiträge:
    7
    Zustimmungen:
    0
    Na ja, nach dem Bau ist man immer schlauer. Auf dem Papier sah es okay aus. Ich wollte nur vorab fragen, ob solche Änderungen möglich sind und wie sie üblicherweise durchgeführt werden. Es handelt sich um zwei Fenster.

    Ich kann auch nicht bei unserer Baufirma nachfragen, denn die wird eine neue Baugenehmigung fordern. Dann hätten wir einen Baustopp von fünf Monaten, das können wir uns nicht erlauben.
     
  12. #12 Einundhalbgeschoss, 05.10.2025
    Einundhalbgeschoss

    Einundhalbgeschoss

    Dabei seit:
    05.10.2025
    Beiträge:
    7
    Zustimmungen:
    0
    Kann der Überzug ohne großen Aufwand eingebaut werden? Gibt es dazu vielleicht ein Beispiel? :)
    Wir werden es definitiv erst nach der Übergabe machen. Die Decke ist bereits betoniert und die schmaleren Fenster sind bereits eingebaut.
     
  13. #13 nordanney, 05.10.2025
    nordanney

    nordanney

    Dabei seit:
    15.09.2021
    Beiträge:
    6.476
    Zustimmungen:
    3.762
    Beruf:
    Finanzierer/Investor/Bau- und Sanierungslaie
    Ort:
    Niederrhein
    Mindestens zur Tektur. Aber auch eine neue Statik und energetische Kalkulation wird nötig, da das Fenster anders dämmt als die Wand.
    Das muss die Not bei euch aber groß sein, wenn ihr so viel Geld ausgeben wollt. Für ein popeliges Fenster wird es dann vielleicht 5-stellig. Ist es das wert?
     
  14. #14 nordanney, 05.10.2025
    nordanney

    nordanney

    Dabei seit:
    15.09.2021
    Beiträge:
    6.476
    Zustimmungen:
    3.762
    Beruf:
    Finanzierer/Investor/Bau- und Sanierungslaie
    Ort:
    Niederrhein
    Mindestens zur Tektur. Aber auch eine neue Statik und energetische Kalkulation wird nötig, da das Fenster anders dämmt als die Wand.
    Das muss die Not bei euch aber groß sein, wenn ihr so viel Geld ausgeben wollt. Für ein popeliges Fenster wird es dann vielleicht 5-stellig. Ist es das wert?
     
  15. #15 SIL, 05.10.2025
    Zuletzt bearbeitet: 05.10.2025
    SIL

    SIL

    Dabei seit:
    06.05.2018
    Beiträge:
    10.865
    Zustimmungen:
    4.212
    Beruf:
    M. Sc. Dipl. Ingenieur
    Ort:
    6210
    Das liegt an der derzeitigen Führung der Bewehrung, ich kann nicht in eine Glaskugel schauen , im günstigsten Fall wenn sowohl die Bewehrung von beiden Öffnungen über 'Eck' geführt ist reicht ( bei ausreichender Steifigkeit des MW darunter ) eine Erweiterung in der Attika / Brüstung, falls ungünstig muss die Decke geöffnet werden und das Mauerwerk mit Stahlbeton ( Stütze ) ergänzt werden , hinzu kommt wenn dich der Raumverlust nicht stört als Alternative eine Stahlkonstruktion innerhalb gegen deine Rolladen und über die Ecke geführt dann verkoffert , ob eine oberseitige Stahlkonstruktion ausreicht kann sagt die Glaskugel auch nicht, weitere Alternativen obwohl dies knapp wird bei 24er MW reine Stützen im Mauerwerk versenkt aus Stahl oder Stahlbeton plus Sturz ( Fertigteile ), es gibt also diverse Möglichkeiten mit unterschiedlichen Aufwand und Kosten , machbar ist dies durchaus. Entscheidend ist hier / Auszug / die vorherige Bemessung und Verlegung deiner Bewehrung:
    ln / h < 7 Zusätzliche konstruktive Bewehrungsanordnung ohne zusätzlichen Nachweis ist ausreichend. Die Lagerung kann in diesem Fall als konstant angenommen werden.
    7 < ln / h < 15 Die Öffnung muss beim rechnerischen Nachweis berücksichtigt werden. Es kann ein vereinfachter Nachweis entsprechend Heft 631 2.4.3. durch die Ausbildung eines verstärkten Tragstreifens (deckengleicher Balken) geführt werden. Im Zusammenhang mit der computergestützten Plattenbemessung (RFEM und RF-BETON) ist dieser unter Berücksichtigung der vorhandenen Geometrie aber nicht notwendig.
    ln / h > 15 Eine vereinfachte Betrachtung als verstärkter Tragstreifen (deckengleicher Balken) ist nicht zulässig. Es muss eine Betrachtung mittels computergestützter Plattenbemessung (RFEM und RF-BETON) erfolge
    n. ( Dlubal / DfStB)
    Wenn du die Statik hast kann , grob abgeschätzt werden was benötigt wird , incl Fenster und Rolladen wirst du aber mindestens in der Größe 10k liegen mit Einzelnachweisen als absolute untere Grenze, ob hier Tektur notwendig ist keine Ahnung ggf reicht auch Kenntnisnahme/ Mitteilung, aktuell sollte etwas wie in der letzten Skizze vorhanden sein mit ggf 4 Stäben bei 24er MW plus Bügel , analog wäre halt Stahlprofil unter oder über der Decke.
     

    Anhänge:

  16. #16 Kriminelle, 05.10.2025
    Kriminelle

    Kriminelle

    Dabei seit:
    16.05.2013
    Beiträge:
    3.828
    Zustimmungen:
    2.157
    Beruf:
    .
    Ort:
    Niedersachsen
    Nein und doch: der BU, es handelt sich ja hier um einen Generalunternehmer, baut nach Werksvertrag und den dazugehörigen Plänen. Das hier ist kein Architektenhaus mit Einzelvergabe, wo man nur mit Banknoten wedeln muss.
    So ist es. Einen Baunachtrag stellen bedeutet ca. 6 Wochen warten. Aber der Nachtrag ist ja nicht vom BU abhängig, sondern die Pflicht des Bauherren, also Euch, so zu bauen wie genehmigt.

    Das kommt auch noch dazu: die Statik kann sich verändern, die EE eh.
     
    hanghaus2000 gefällt das.
  17. #17 Fabian Weber, 05.10.2025
    Fabian Weber

    Fabian Weber

    Dabei seit:
    03.04.2018
    Beiträge:
    16.378
    Zustimmungen:
    6.513
    @SIL für einen Überzug müsste erstmal die Wand im Geschoss über dem Fenster wieder weg. Der Rohbau ist ja schon fertig.
     
  18. SIL

    SIL

    Dabei seit:
    06.05.2018
    Beiträge:
    10.865
    Zustimmungen:
    4.212
    Beruf:
    M. Sc. Dipl. Ingenieur
    Ort:
    6210
    Da ist schon Dach ( Attika / Brüstung bewehrt ?) ob eine Lagerung dahinter geht sagt die Glaskugel nicht ...., ich habe doch mehrere Lösungen kurz angerissen, falls du die Statik hast kannst ja nachschauen was geht.....
     

    Anhänge:

  19. #19 Einundhalbgeschoss, 05.10.2025
    Zuletzt bearbeitet: 05.10.2025
    Einundhalbgeschoss

    Einundhalbgeschoss

    Dabei seit:
    05.10.2025
    Beiträge:
    7
    Zustimmungen:
    0
    Es geht um zwei Fenster, eines im Erdgeschoss und eines im Obergeschoss (so es gleich aussieht). Die Decke in beiden Geschossen ist bewehrt und 28 bzw. 20 cm dick. Die Attika ist aus Holz und Dämmung gebaut. In Decke eingebaut ist Deckengl. Stb.-Balken, l=1,76m 2Ø12o. 2Ø20u. BüØ6/10cm. Denke da ist 134cm Fenster Breite erlaubt.
     
  20. 415B

    415B

    Dabei seit:
    03.12.2024
    Beiträge:
    1.486
    Zustimmungen:
    253
    Neue Fenster zu bestellen und warten bis diese geliefert werden kann auch locker 8 Wochen dauern. Daher keine Steckdose neben den Fenstern und hinterher ändern. Wenn es geht die Wand noch nicht verputzen lassen.
     
Thema:

Statiker Hilfe benötigt - Fenster verbreiten

Die Seite wird geladen...

Statiker Hilfe benötigt - Fenster verbreiten - Ähnliche Themen

  1. Statik: Hilfe für eine Studienarbeit

    Statik: Hilfe für eine Studienarbeit: Hallo, ich bin aktuell an der Bearbeitung einer Studienarbeit und ich habe einen Stahlträger zu bemessen. Aktuell hadere ich mit der Auslegung...
  2. Hilfe zu Statik

    Hilfe zu Statik: Hallo liebe Gemeinde, ich bin neu hier im Forum und auch leie was das Bauen betrift. Ich hoffe Ihr könnt mir meine fragen beantworten und ich bin...
  3. Eingebauter Fenstersturz wirkt nicht fachgerecht, brauchen Hilfe...

    Eingebauter Fenstersturz wirkt nicht fachgerecht, brauchen Hilfe...: Hallo, ich freue mich, dass ich hier meine Fragen oder Bedenken offen darlegen darf. Kurze Situation: Wir bewohnen ein Haus (Bj. 1948), das...
  4. terrasse aus beton...hilfe frage an die statiker unter euch ...!!??

    terrasse aus beton...hilfe frage an die statiker unter euch ...!!??: Hallo bin neu hier hoffe habe mein beitrag gut genug zusammengefasst und richtig eingeordnet... Hätte da mal ein paar fragen an euch bzw. an...