T-Wand mit WC: Wandstärke? UA-Profile?

Diskutiere T-Wand mit WC: Wandstärke? UA-Profile? im Trockenbau Forum im Bereich Neubau; Moin, wir wohnen in einem alten Bauernhaus, dessen OG in 1998 komplett im Trockenbau umgesetzt wurde. Nun wollen wir das Bad sanieren. Nach der...

  1. #1 LocRock, 22.03.2020
    LocRock

    LocRock

    Dabei seit:
    22.03.2020
    Beiträge:
    44
    Zustimmungen:
    8
    Moin,

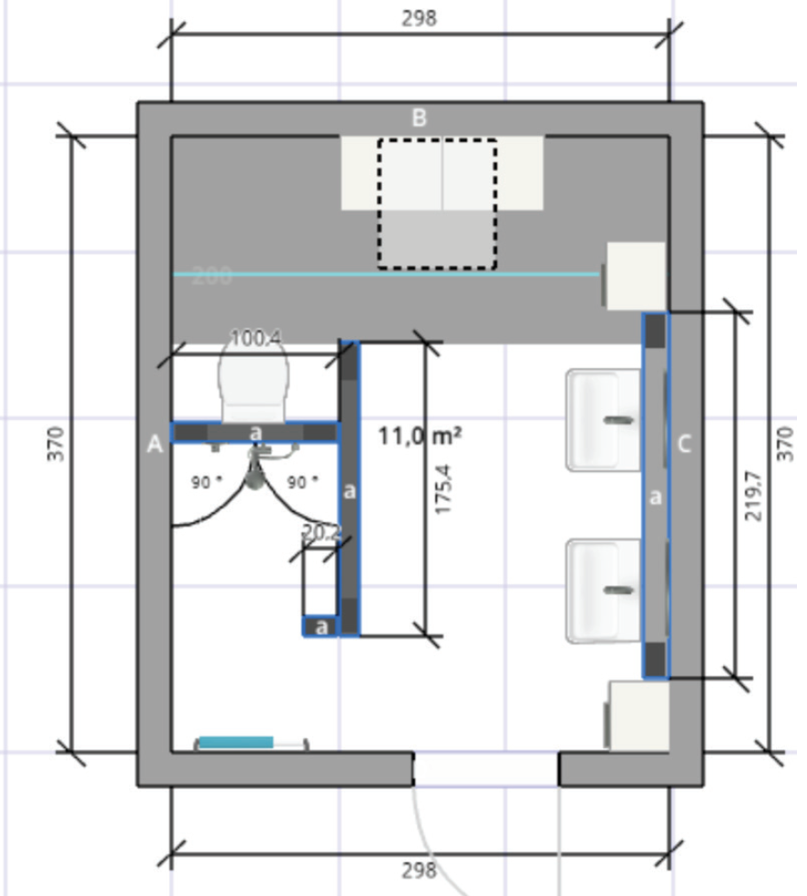
    wir wohnen in einem alten Bauernhaus, dessen OG in 1998 komplett im Trockenbau umgesetzt wurde. Nun wollen wir das Bad sanieren. Nach der Entkernung wird man von den Wänden im Bad teilweise nur noch das Metallprofil sehen.
    Hier wird dann, wie im angehängten Plan gezeigt, eine Art "T-Wand" eingesetzt, an der auf der einen Seite das WC und auf der anderen Seite die Dusche liegen sollen. Diese wird nur 2m hoch sein, damit möglichst viel Licht in die Dusche dringt (Das gestrichelte ist das Dachfenster).
    Trockenbau.png
    Meine Frage ist, wie der Aufbau der T-Wand idealerweise aussehen müsste?
    Reicht ein 100er-Profil, doppelbeplankt, dazu das Wand-Wc-Montageelement mit UA-Profilen links und rechts und am Boden verankert mit Steckwinkeln?
    Oder muss das ganz anders aussehen?
    Für Tipps bin ich dankbar!

    Peter
     
  2. Alex88

    Alex88
    Moderator

    Dabei seit:
    14.10.2014
    Beiträge:
    6.619
    Zustimmungen:
    3.584
    Beruf:
    GF, Kaufmann, Trockenbaumeister
    deine Idee ist schon richtig, ich würde mit UA Profilen bauen, aber ohne Steckwinkel
    an den Wänden A und a normale CW Profile und neben dem WC Ständer UA´s
    einfache Beplankung mit GKBI 25 mm anstatt 2 x 12,5
    wird sehr oft so gemacht, ich pers. habe das ca. 3-4 mal so gebaut und es gab noch nie
    Probleme
     
    mk940 gefällt das.
  3. mk940

    mk940

    Dabei seit:
    10.01.2017
    Beiträge:
    719
    Zustimmungen:
    333
    Beruf:
    Bauleiter Trockenbau
    Ort:
    Altötting
    Wie Alex ja schon schreibt sollte das keine Probleme geben, ich denke es ist klar, dass dieser Aufbau aber nur durch das T-Stück funktioniert, da andernfalls ein freistehendes Wandstück "umfallen" würde. Winkel wirst du nicht brauchen, die machen nur Sinn wenn du am Rohboden und an der Rohdecke befestigen kannst, um die Last von den Profilen/der Wand zu nehmen, da das WC-Element aber sowieso einen eigenen Befestigungspunkt am Boden hat und ein Anschluss an der Rohdecke nicht vorkommt, braucht es das nicht. WC Element links und rechts mit einem UA Profil sauber ausrichten und befestigen und die Platten gut mit Teks an UA und Element verschrauben, aufpassen, dass du nicht in die Spülkasten schraubst :D
     
  4. #4 LocRock, 22.03.2020
    LocRock

    LocRock

    Dabei seit:
    22.03.2020
    Beiträge:
    44
    Zustimmungen:
    8
    Guten Abend,

    ich danke euch beiden für die Tipps. Dann werde ich es so umsetzen bzw. mir die 25mm Platte mal anschauen. Wenn die keine Nachteile zu 2x 12,5mm hat, wieso nicht :-)
     
  5. Alex88

    Alex88
    Moderator

    Dabei seit:
    14.10.2014
    Beiträge:
    6.619
    Zustimmungen:
    3.584
    Beruf:
    GF, Kaufmann, Trockenbaumeister
    In diesem Fall nur Stabilitätsvorteile
     
  6. #6 LocRock, 22.03.2020
    LocRock

    LocRock

    Dabei seit:
    22.03.2020
    Beiträge:
    44
    Zustimmungen:
    8
    :D Alles klar!
     
  7. #7 LocRock, 05.04.2020
    LocRock

    LocRock

    Dabei seit:
    22.03.2020
    Beiträge:
    44
    Zustimmungen:
    8
    Ich nochmal,

    wie sieht der Anbau zwischen beiden T-Wänden aus? Müssen die auf bestimmte Weise zusammengesetzt werden?
    Sonst würde ich zwischen dem U-Profil der Wand a und dem quer verlaufendem Profil A soviel Platz lassen, dass ich A erst beplanke und dann das CW-Profil von a dranschiebe und von der Innenseite der Wand A festschraube?!
    Oder reichen die Schrauben nicht aus und es muss stabiler umgesetzt werden?
    Danke!
     
Thema: T-Wand mit WC: Wandstärke? UA-Profile?
Besucher kamen mit folgenden Suchen
  1. Kombi-Fix zwingend mit UA zu befestigen

    ,
  2. vorwandelement ua profil

Die Seite wird geladen...

T-Wand mit WC: Wandstärke? UA-Profile? - Ähnliche Themen

  1. Freistehende wand im Dachgeschoss

    Freistehende wand im Dachgeschoss: Guten Tag Evtl ist jemand dabei der mir helfen kann ich habe in meiner Dachgeschosswohnung eine freistehende wand in Holzständer Bauweise gebaut...
  2. Tragende wand?

    Tragende wand?: Hallo ihr lieben Ich baue meine Wohnung um. Dies ist eine ehemalige Stallung. Der Schweinestall. Ich möchte die Wand (rechts des AR)zum Wohnraum...
  3. Wand und Boden im Gartenhaus ausbessern

    Wand und Boden im Gartenhaus ausbessern: Hallo Forum! Projekt; Umbau in einem massiv gebauten Häuschen auf einem Gartengrundstück. Baujahr zwischen 1970 und 1975. Das Häuschen gründet...
  4. Q3 Spachteln der Wände

    Q3 Spachteln der Wände: Guten Tag zusammen, wir bauen aktuell mit einem Bauunternehmen, zu dem das Vertrauen leider bereits stark gelitten hat. Nun wurde das Gewerk...
  5. Wand in Baupläne nicht vorhanden, hast das, die Wand ist nicht tragend?

    Wand in Baupläne nicht vorhanden, hast das, die Wand ist nicht tragend?: Hallo, ich habe leider noch keine passende Antwort gefunden. Wir möchten gerne einen Türdurchbruch machen. Leider ist die Wand jedoch nicht in...