Tankraum im Erdgeschoss ausbauen

Diskutiere Tankraum im Erdgeschoss ausbauen im Sanierung konkret Forum im Bereich Altbau; Wir haben noch einen Öltank im Erdgeschoss stehen, der kommt jetzt raus und dann haben wir einen schönen etwas über 20M2 großen Raum übrig....

  1. #1 Roman1978, 18.08.2019
    Roman1978

    Roman1978

    Dabei seit:
    02.07.2012
    Beiträge:
    64
    Zustimmungen:
    3
    Beruf:
    Informatiker
    Ort:
    Dahlem
    Wir haben noch einen Öltank im Erdgeschoss stehen, der kommt jetzt raus und dann haben wir einen schönen etwas über 20M2 großen Raum übrig. Allerdings ist es ein ziemlicher Altbau mit 60cm dicken Natursteinwänden und Lehmputz an den Wänden. Dieser Lehmputz ist schon größtenteils herunter gefallen. Der Öltank steht dort sein 1965 und seit dem wird dort ja auch nicht mehr gewohnt. Das Haus ist teilweise aus dem 17. Jahrhundert.

    Dieser Raum soll eventuell - also wenn es nach meiner Frau geht - ein Bad mit Sauna werden. Aber erst mal wird es nur Keller. Aber dadurch das der Lehm sich löst ist es dort staubig ohne ende, also auch als Keller nicht so geeignet. Und es riecht nach Öl.

    Nun muss etwas passieren um den Raum erst mal als Keller nutzen zu können und später eventuell als Bad umzubauen. Ich dachte mir, ich entferne erst mal den ganzen los sitzenden Lehm von den Wänden (wie gesagt, der fällt ja schon fast von alleine runter), danach streiche ich auf den Naturstein einen Haftgrund (z.B. Weber.Prim 803) und dann verputze ich grob den Naturstein mit Mauer und Putz Mörtel. Dies sollte dann erst mal als Keller reichen. Oder mache ich da einen Fehler?

    Später müsste der Raum dann entweder richtig verputzt werden (das kann ich aber nicht), oder eine Trockenwandkonstruktion müsste davor. Aber da habe ich wieder bedenken mit der Feuchtigkeit. Was meinen die Experten?
     
  2. #2 Manufact, 18.08.2019
    Manufact

    Manufact
    Moderator

    Dabei seit:
    21.11.2016
    Beiträge:
    3.813
    Zustimmungen:
    1.360
    Beruf:
    Bautenschutz
    Ort:
    Bayern
    Was nun:
    EG oder Keller?
     
    azalee0108 gefällt das.
  3. #3 simon84, 18.08.2019
    simon84

    simon84
    Moderator

    Dabei seit:
    11.11.2012
    Beiträge:
    23.256
    Zustimmungen:
    6.903
    Beruf:
    Schrauber
    Ort:
    Muenchen
    Hab das schon öfter im Osten gehört, dass "Keller" synonym für "Lager" benutzt wird.

    @Roman1978 woraus besteht denn die Wand ? Hast du in dem Raum ein Fenster ? Gibt es irgendwelche Feuchtigkeitsproblem (aufsteigend, Ecken, Boden, Wände) ?
     
  4. #4 Roman1978, 18.08.2019
    Roman1978

    Roman1978

    Dabei seit:
    02.07.2012
    Beiträge:
    64
    Zustimmungen:
    3
    Beruf:
    Informatiker
    Ort:
    Dahlem
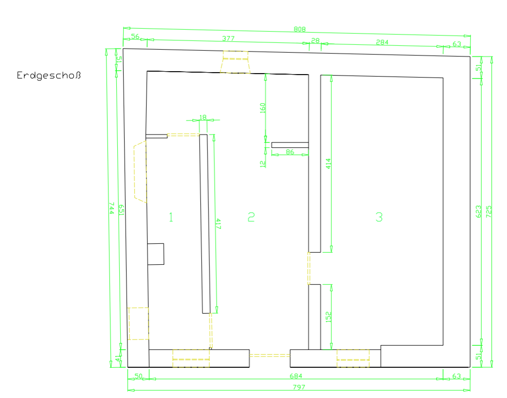
    Wir nennen es Keller, aber es ist im Erdgeschoss, also ebenerdig. Ein echten unterirdischen Keller haben wir nicht. Dieses Erdgeschoss hat einen separaten Eingang von außen. Dieser "Keller" ist aufgeteilt in 3 Räume, einmal der Heizungsraum, dann einen Lagerraum wo u.A. die Waschmaschine und Tiefkühltruhe stehen und dann der Tankraum. Dieser ist zugleich der größte Raum.

    Die Außenwände bestehen aus Naturstein mit Lehmputz von innen und von Außen mit einem Außenputz. Diese ist etwa 55-60CM dick. Der Außenputz war schon drauf und ich weiß hier nicht was dort damals drauf geputzt wurde. Ich habe den nur bei gearbeitet und neu gestrichen. Im Raum ist ein Fenster vorhanden, Doppelglas 80x95 (wenn ich mich recht erinnere). Diese Fenster befindet sich in der Wand zu unserem Hof hin. Diese Wand zum Hof ist teilweise aus Naturstein und 55CM dick, und ein anderer Teil ist Ziegelstein und nur 40CM dick. Warum weiß ich auch nicht. Die Innenwand (also die zum Lagerraum) ist aus Ziegelstein und etwa 25cm dick.

    Feuchtigkeit kann ich jetzt nicht direkt sagen, aber wenn Kartons auf dem Boden standen waren diese von untenher doch feucht. Der Raum wurde aber auch nie b.z.w. selten gelüftet und nicht beheizt. Ich denke, wenn ich den Raum als Badezimmer/Sauna umbauen würde, müsste ich den Boden raus stemmen und Isolieren.

    Ich habe mal vor einiger zeit eine Bauzeichnung angefertigt. Es geht hier um Raum 3.

    Bildschirmfoto 2019-08-18 um 15.28.26.png
     
  5. #5 Roman1978, 19.08.2019
    Roman1978

    Roman1978

    Dabei seit:
    02.07.2012
    Beiträge:
    64
    Zustimmungen:
    3
    Beruf:
    Informatiker
    Ort:
    Dahlem
    Und? kann ich da so machen wir ich mir das gedacht habe? Dann würde ich nämlich morgen damit anfangen.
     
Thema: Tankraum im Erdgeschoss ausbauen
Besucher kamen mit folgenden Suchen
  1. tankraum umbauen

    ,
  2. heizölraum umbauen

    ,
  3. öltankraum umbauen

Die Seite wird geladen...

Tankraum im Erdgeschoss ausbauen - Ähnliche Themen

  1. Öl-Tankraum gemauert - tragende Wand?

    Öl-Tankraum gemauert - tragende Wand?: Moin, im Zuge der Umstellung meiner Heizungsanlage von Ölbrenner auf Wärmepumpe wurde natürlich auch der alte Tank entsorgt und der (gemauerte)...
  2. Neuer Bodenaufbau/Estrich in ehem. Tankraum

    Neuer Bodenaufbau/Estrich in ehem. Tankraum: Hallo zusammen, die Ausgangssituation im ehem. Tankraum: -Raum ist länglich, gob 6x3m -der Bereich in dem die Tanks standen, ist mit ca.30mm...
  3. Risse im ehemaligem Tankraum

    Risse im ehemaligem Tankraum: Hallo, meine Partnerin und ich haben uns ein Haus Bj1970 angeschaut. Haus ist soweit auch dem altern entsprechend in Ordnung. Brauche nur Hilfe...
  4. Putzaufbau im Tankraum

    Putzaufbau im Tankraum: Hallo Bauexperten, ich baue gerade ein EFH von 1973 um. Bodenplatte ist betoniert, Steine sind Betonhohlblock. Ich habe an einer Stelle des...
  5. Tankraum von innen Dämmen? (Wärmedämmung)

    Tankraum von innen Dämmen? (Wärmedämmung): Hallo zusammen, ich bin gerade bei der Sanierung unseres 60-er Jahre Hauses. Und im Augenblick bin ich im Tankraum... Der Tankraum ist ein...