Tapezieren im Bad

Diskutiere Tapezieren im Bad im Sanitär Forum im Bereich Haustechnik; Moin, wir wollen unser aktuelles Bad renovieren. Die Maße sind ca. 3,50m auf 4,10m. Die Überlegung ist 2 Wände zu tapezieren (A und D) und 2...

  1. #1 Treppe2019, 27.02.2019
    Treppe2019

    Treppe2019

    Dabei seit:
    25.02.2019
    Beiträge:
    197
    Zustimmungen:
    11
    Moin,

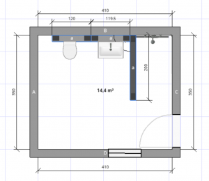
    wir wollen unser aktuelles Bad renovieren. Die Maße sind ca. 3,50m auf 4,10m.
    Die Überlegung ist 2 Wände zu tapezieren (A und D) und 2 Wände zu Fliesen. Quasi die Seiten ohne Sanitärgegenstände zu tapezieren. Ist dabei etwas so beachten oder ist das unbedenklich zu bewerkstelligen?

    Thx
     

    Anhänge:

    • BAD.png
      BAD.png
      Dateigröße:
      105,4 KB
      Aufrufe:
      341
  2. am1003

    am1003

    Dabei seit:
    30.11.2015
    Beiträge:
    1.678
    Zustimmungen:
    412
    Beruf:
    Installateur
    Ort:
    Spreenhagen, Brandenburg
    Was sollte dagegen sprechen ?
     
  3. #3 simon84, 27.02.2019
    simon84

    simon84
    Moderator

    Dabei seit:
    11.11.2012
    Beiträge:
    23.247
    Zustimmungen:
    6.890
    Beruf:
    Schrauber
    Ort:
    Muenchen
    Zum Beispiel Schimmel in Verbindung mit dauernd recht hoher Luftfeuchtigkeit bei Verwendung von falschem Kleber oder falschem Tapetenmaterial
     
  4. #4 Treppe2019, 27.02.2019
    Treppe2019

    Treppe2019

    Dabei seit:
    25.02.2019
    Beiträge:
    197
    Zustimmungen:
    11
    Genau sowas in der Art, braucht man speziellen Kleber und Tapetenmaterial? Sind diese viel teurer als normale Raufaser Tapete?
    Sollte der Handwerker aber normalerweise wissen?
     
  5. #5 simon84, 27.02.2019
    simon84

    simon84
    Moderator

    Dabei seit:
    11.11.2012
    Beiträge:
    23.247
    Zustimmungen:
    6.890
    Beruf:
    Schrauber
    Ort:
    Muenchen
    Ja Maler sollte die Details wissen. Es ist jetzt auch kein Hexenwerk, aber eine normale Raufaser oder Papiertapete ist zumindest nicht ideal. Das heisst jetzt auch nicht dass es deshalb gleich schimmeln muss.
    Und die meisten handelsüblichen Tapetenkleber sind auch geeignet. Aber wenn man jetzt z.B. anfängt selber was anzurühren etc.

    Man sollte eben vermeiden einen Nährboden zu bieten.

    Warum muss eigentlich tapeziert werden ? Wenn glatte bzw. strukturierte Optik gewünscht wäre doch Feinputz bzw. Spachteln auch eine Option und dann eine passende Farbe drauf ?
     
    Leser112 und Treppe2019 gefällt das.
  6. #6 Treppe2019, 27.02.2019
    Zuletzt bearbeitet: 27.02.2019
    Treppe2019

    Treppe2019

    Dabei seit:
    25.02.2019
    Beiträge:
    197
    Zustimmungen:
    11
    Die Farbe ist sowieso weiß, aber klar Feinputz wäre auch eine Option, darauf bin ich gar nicht gekommen. Nehme ich mit auf die Liste.
    Ich denke am Ende des Tages wird es (auch) auf den Mehrpreis bzw. Mehraufwand ankommen, aber solange es günstiger ist als zu Fliesen ist es im Budget eingeplant.

    EDIT: Und natürlich entscheidet auch die Frau, für mich sind raumhohe fliesen vollkommen in Ordnung, aber meine Frau würde lieber noch was andere mit im Bad haben, warum ich überhaupt Alternativen suche.
     
  7. Aljana

    Aljana

    Dabei seit:
    13.01.2019
    Beiträge:
    35
    Zustimmungen:
    13
    Raumhohe Fliesen sind die Pest, denn die bedeuten, dass auch noch die Wände regelmäßig geputzt werden müssen.
     
  8. #8 simon84, 28.02.2019
    simon84

    simon84
    Moderator

    Dabei seit:
    11.11.2012
    Beiträge:
    23.247
    Zustimmungen:
    6.890
    Beruf:
    Schrauber
    Ort:
    Muenchen
    Ist alles Geschmackssache. Moderne Bäder sehen im Katalog meist anders aus, aber machen kann man es wenn es gefällt.

    Fliesen kann man putzen das ist richtig. Bei einer verputzten / tapezierten Wand geht das nur bedingt, da muss man dann halt regelmäßig neu streichen.
     
  9. #9 Treppe2019, 28.02.2019
    Treppe2019

    Treppe2019

    Dabei seit:
    25.02.2019
    Beiträge:
    197
    Zustimmungen:
    11
    Ich wollte erstmal wissen ob es bauseitige Nachteile gibt wie Schimmel, feuchte Wand usw.
    Zusätzlich hat meine Frau schon einige "moderne" und neue Bäder gesehen, wo eben nicht mehr komplett alles gefliest ist.
    Darum gefällt mir die Lösung mit Streichputz oder ähnliches ganz gut anstatt Tapete.

    Hat jemand Erfahrungswerte was veranschlagt wird, Streichputz pro qm?
     
  10. Aljana

    Aljana

    Dabei seit:
    13.01.2019
    Beiträge:
    35
    Zustimmungen:
    13
    "Kann" ist hier ist das falsche Wort. Fliesen muss man putzen, und zwar deutlich häufiger, als man Wände streichen muss.
     
  11. #11 simon84, 28.02.2019
    simon84

    simon84
    Moderator

    Dabei seit:
    11.11.2012
    Beiträge:
    23.247
    Zustimmungen:
    6.890
    Beruf:
    Schrauber
    Ort:
    Muenchen
    ist nicht meine erfahrung. nicht jede fliese ist hochglanz.
     
  12. Nic123

    Nic123

    Dabei seit:
    18.02.2019
    Beiträge:
    415
    Zustimmungen:
    126
    Rotkalk filz 1 wäre eine optimale Option. Sackpreis ca 25 euro. Sie brauchen allerhöchstens 3 Sack und 5 Liter sto Color Sil in damit dieser nach dem abfilzen nicht mehr rieselt und noch 5 Liter Putzgrund um eine haftbrücke herzustellen. Kosten vll um die 200 Euro.
    Die Vorteile von Rotkalk wären das dieser alkalisch ist und somit gegen Schimmel vorbeugt. Zweiter Punkt ist das er Feuchtigkeit aufnimmt und wieder abgibt.
     
    simon84 gefällt das.
  13. #13 simon84, 04.03.2019
    simon84

    simon84
    Moderator

    Dabei seit:
    11.11.2012
    Beiträge:
    23.247
    Zustimmungen:
    6.890
    Beruf:
    Schrauber
    Ort:
    Muenchen
    Wäre mir persönlich auch lieber als Tapete
     
  14. #14 driver55, 05.03.2019
    driver55

    driver55

    Dabei seit:
    22.02.2008
    Beiträge:
    6.854
    Zustimmungen:
    1.785
    Beruf:
    Dipl.-Ing.
    Ort:
    Pforzheim
    Was will uns die Antiputzfrau hiermit eigentlich mitteilen?
    Ich lasse den Dreck lieber an der Wand?


    Mein Vorschlag wäre Baumwollputz. Naturfasern, rissüberbrückend, feuchtigkeitsregulierend.....viele Farben....einfach aufzutragen....
     
    simon84 gefällt das.
  15. #15 simon84, 05.03.2019
    simon84

    simon84
    Moderator

    Dabei seit:
    11.11.2012
    Beiträge:
    23.247
    Zustimmungen:
    6.890
    Beruf:
    Schrauber
    Ort:
    Muenchen
    Baumwolle ist halt wieder organisch und könnte daher (insbesondere) bei falscher Belüftung und Beheizung als Nährboden zur Schimmelbildung beitragen

    Daher wäre Kalk mein Favorit, seit Jahrhunderten weltweit bewährt :)

    Da ich keine Erfahrungen mit Baumwollputz habe lasse ich mich aber sehr gerne auch eines Besseren belehren
     
  16. Nic123

    Nic123

    Dabei seit:
    18.02.2019
    Beiträge:
    415
    Zustimmungen:
    126
    Würde ich auch so sehn. Baumwollputze werden mit einer art Kleister vermischt und aufgetragen und kleister bietet wieder Nährboden für Schimmel. Gegen Baumwollputz ist nichts einzuwenden aber in einem Feuchtraum wäre ich auch eher skeptisch. Aber mir fehlt dort auch die Erfahrung.
     
  17. #17 Treppe2019, 05.03.2019
    Treppe2019

    Treppe2019

    Dabei seit:
    25.02.2019
    Beiträge:
    197
    Zustimmungen:
    11
    Danke für den vielen Input, habe ich mit auf die Liste genommen.

    Kalkputz geglättet ist aktuell eh schon überall vorgesehen, um Schimmel vorzubeugen.
    Reicht dieser aus?

    Ich habe das immer so verstanden der Kalkputz ist als Grundierung da und ich sollte da noch was drauf machen...
     
  18. #18 simon84, 05.03.2019
    simon84

    simon84
    Moderator

    Dabei seit:
    11.11.2012
    Beiträge:
    23.247
    Zustimmungen:
    6.890
    Beruf:
    Schrauber
    Ort:
    Muenchen
    Kommt drauf an. Bei Q2 lässt die Norm im Maximalfall "potthässlich" zu.
    Mal mit deinen Putzern sprechen und fragen ob sie echte Q3 im Bad hinbekommen und was das kostet.
    Dann könntest du direkt streichen MIT DER RICHTIGEN FARBE.

    Im Bad sieht es kleine Fehlstellen meist noch mehr wegen der starken Beleuchtung. (Streiflicht etc.)
     
  19. #19 Treppe2019, 05.03.2019
    Treppe2019

    Treppe2019

    Dabei seit:
    25.02.2019
    Beiträge:
    197
    Zustimmungen:
    11
    Okay verstehe, aber im Notfall könnte ich eben über dem Kalkputz einen anderen Putz nehmen und den dann ensprechend streichen. Dann gehe ich morgen nicht total planlos zu dem Termin ;) ;)
     
  20. Aljana

    Aljana

    Dabei seit:
    13.01.2019
    Beiträge:
    35
    Zustimmungen:
    13
    Das macht gar keinen Sinn. Wenn Kalkputz, dann muss die entsprechende Farbe drauf.
     
Thema: Tapezieren im Bad
Besucher kamen mit folgenden Suchen
  1. kork im badezimmer erfahrungen

    ,
  2. bad tapeziert

    ,
  3. bad tapezieren oder verputzen

Die Seite wird geladen...

Tapezieren im Bad - Ähnliche Themen

  1. Heizung zum Tapezieren abmontieren

    Heizung zum Tapezieren abmontieren: Hallo , Ich wollte gerne einen Heizkörper abmontieren um dahinter zu tapezieren bzw. eine Reflexfolie anzubringen. Kann ich das ohne das komplette...
  2. Unverputzte Wände Tapezieren

    Unverputzte Wände Tapezieren: Hallo, wir ziehen in eine neue Wohnung um. Sie können die Wände auf den Bildern im Anhang sehen. Was denkt ihr darüber? Brauchen die Wände Putz,...
  3. Innenwände (BJ 1987) "modernisieren" - verputzen, tapezieren oder was anderes?

    Innenwände (BJ 1987) "modernisieren" - verputzen, tapezieren oder was anderes?: Wir habe gerade ein Haus Baujahr 1987 erworben und möchten das Wohnzimmer modernisieren. Die Fliesen werden durch Eiche-Landhausdielen ersetzt....
  4. Schattenfugenprofil / PVC tapezieren?

    Schattenfugenprofil / PVC tapezieren?: Guten Morgen zusammen und einen schönen Ostersonntag! Bei meiner Decke wurden Protektor 3766 Schattenfugenprofile verarbeitet um den starren...
  5. Tapezieren

    Tapezieren: Moin, es wird mal wieder nötig zu tapezieren. War im Tapetengeschäft hab dort mit eienm Fachmann geredet. Ich fragte nach einer...