Tresor einmauern

Diskutiere Tresor einmauern im Beton- und Stahlbetonarbeiten Forum im Bereich Neubau; Guten Tag zusammen, mir gehen die Fragen gerade so schnell nicht aus, aber geht wohl jedem Bauherren so… Ich möchte mir im Keller einen Tresor...

  1. #1 Hu Chen, 23.08.2017
    Zuletzt bearbeitet: 23.08.2017
    Hu Chen

    Hu Chen

    Dabei seit:
    21.08.2017
    Beiträge:
    19
    Zustimmungen:
    0
    Guten Tag zusammen,

    mir gehen die Fragen gerade so schnell nicht aus, aber geht wohl jedem Bauherren so…
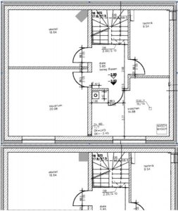
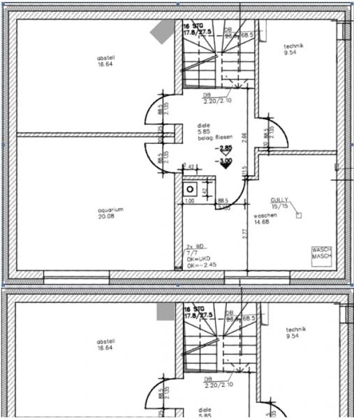
    Ich möchte mir im Keller einen Tresor ich eine ca. 1,20 hohe Säule einmauern/betonieren und die dann in irgendeiner Form in eine Regalwand integrieren.

    a) Die Ausrichtung: hierzu zwei Varianten. Die diagonale Anordnung hätte den Vorteil, dass man schon an den Tresor ran kommt, ist halt auch auffälliger.
    Was meint ihr?

    b) Die Ausführung: momentan habe ich den schieren Rohbeton im Keller und würde direkt darauf weiter arbeiten.
    Also einfach eine Konstruktion aus Schalungssteinen bauen, armieren und ausgießen. Gibt es da Punkte auf die ich direkt achte sollte?

    Nachtrag: die Säule soll der graue Fleck im Abstellkeller darstellen.. :)

    Vielen Dank Max
     

    Anhänge:

  2. #2 OutdoorShop, 23.08.2017
    OutdoorShop

    OutdoorShop

    Dabei seit:
    09.10.2016
    Beiträge:
    163
    Zustimmungen:
    5
    Beruf:
    Onlinehandel
    Ort:
    Krefeld
    Denk an Wärmedämmung / dass keine Kältebrücke entsteht.
    Je nach dem ob das Haus von außen oder innen gedämmt ist.
     
  3. #3 Hu Chen, 23.08.2017
    Hu Chen

    Hu Chen

    Dabei seit:
    21.08.2017
    Beiträge:
    19
    Zustimmungen:
    0
    Danke für den Tipp! Ist von Außen gedämmt.

    LG
    Max
     
  4. #4 OutdoorShop, 23.08.2017
    OutdoorShop

    OutdoorShop

    Dabei seit:
    09.10.2016
    Beiträge:
    163
    Zustimmungen:
    5
    Beruf:
    Onlinehandel
    Ort:
    Krefeld
    Ggf. unter der Treppe einmauern.
     
  5. #5 simon84, 24.08.2017
    simon84

    simon84
    Moderator

    Dabei seit:
    11.11.2012
    Beiträge:
    23.303
    Zustimmungen:
    6.924
    Beruf:
    Schrauber
    Ort:
    Muenchen
    Es ist vielleicht auch nicht so schlau den Grundriss fuer einen geplanten Tresoreinbau in einem oeffentlich einsehbaren Forum einzustellen bzw. das Thema weiter zu diskutieren :)
     
  6. #6 Andybaut, 24.08.2017
    Andybaut

    Andybaut

    Dabei seit:
    02.04.2015
    Beiträge:
    5.127
    Zustimmungen:
    329
    Beruf:
    Architekt
    Ort:
    Baden-Württemberg
    der Einwand von simon ist berechtigt :-)

    Aber die Idee von outdoorshop finde ich gut. Das haben wir auch schon mal realisiert.
    Dort wurde dann eine kleine Zugangstüre für den Treppenraum als Sicherheitstüre zusätzlich
    realisiert. Schrank davor geht aber auch. Erscheint mir das sinnvollste das unter die Treppe zu machen.
     
  7. #7 Hu Chen, 24.08.2017
    Hu Chen

    Hu Chen

    Dabei seit:
    21.08.2017
    Beiträge:
    19
    Zustimmungen:
    0
    Hallo zusammen,
    braucht nicht zu glauben, dass da die nächsten 20 Jahre auch nur irgendwas Wertvolles drin sein wird... :)
    Nein im Ernst, drum halte ich mich mit näheren Details zum Standort auch zurück. Wo allerdings die klassischen Verortungen für Tresore in Häusern sind, lässt sich ja mit Google-Recherche in 5 Minuten herausfinden... *hust...Unter der Treppe :)

    Mir gefällt irgendwie die Lösung mit der Säule nicht so, da ich nicht weiß wie man sie schön integrieren kann.

    Generell zur Vorgehensweise:
    spricht nichts dagegen direkt auf dem Rohbeton zuarbeiten?

    Lieben Gruß
     
  8. #8 OutdoorShop, 24.08.2017
    OutdoorShop

    OutdoorShop

    Dabei seit:
    09.10.2016
    Beiträge:
    163
    Zustimmungen:
    5
    Beruf:
    Onlinehandel
    Ort:
    Krefeld
    Dagegen spricht, dass du den Tresor nicht aubekommst, wenn du ihn auf den Rohfußboden stellst ;-)

    Insgesamt denke ich, dass du mit deiner Säule sehr viel Arbeit hast, die es ggf. nicht wert ist.
    Zumal direkt in die Betonkellerwand? verschrauben besser ist als mit irgend einem Säulenblock.

    Noch zur Alternative "Kellertreppe": Für 2.000,- Euro bekommst du Klasse I Türen mit Zahlenschloss und wenn die Betontreppe und Betonwände dick genug sind hast du einen Tresorraum, der deutlich größer und vermutlich auch sicherer als dein geplanter Schrank ist :-)
     
  9. #9 Akwaaba, 26.08.2017
    Akwaaba

    Akwaaba

    Dabei seit:
    31.10.2016
    Beiträge:
    74
    Zustimmungen:
    16
    Beruf:
    Kaufmann
    Ort:
    Württemberg und Westafrika
    VDS 1 ist so ne Käsenummer nix halbes und nix ganzes. In BW brauchts VDS II für Kurzwaffen unbeschränkt.

    Bist Juwelier oder hast sonst Dein Brilliant oder Smaragdcollier für 500k daheim wird auch die Versicherung mal ganz geschwind VDS IV bzw V wünschen.... Zwar sind höherwertige Tresore gerade die 4 und 5er sehr leicht zu verankern und wiegen leer zumeist schon bei handlicher Größe über 500Kg, die großen brauchst auch gar nicht mehr verankern da 1to +

    Einmauern taugt nix, eingiessen schon, d.h. beim Rohbau bereits dran denken.
     
  10. #10 OutdoorShop, 26.08.2017
    OutdoorShop

    OutdoorShop

    Dabei seit:
    09.10.2016
    Beiträge:
    163
    Zustimmungen:
    5
    Beruf:
    Onlinehandel
    Ort:
    Krefeld
    Wie kann sich BW über das WaffG / aWaffV als Bundesrecht stellen?
     
  11. #11 simon84, 26.08.2017
    simon84

    simon84
    Moderator

    Dabei seit:
    11.11.2012
    Beiträge:
    23.303
    Zustimmungen:
    6.924
    Beruf:
    Schrauber
    Ort:
    Muenchen
    Strenger geht immer.
     
  12. #12 Akwaaba, 27.08.2017
    Akwaaba

    Akwaaba

    Dabei seit:
    31.10.2016
    Beiträge:
    74
    Zustimmungen:
    16
    Beruf:
    Kaufmann
    Ort:
    Württemberg und Westafrika
    Kurzwaffen unbeschränkt,.... das betrifft ja außer roten niemand. Und da ist das eine Einzelprüfung welche Auflagen man bekommt.
     
  13. #13 OutdoorShop, 27.08.2017
    OutdoorShop

    OutdoorShop

    Dabei seit:
    09.10.2016
    Beiträge:
    163
    Zustimmungen:
    5
    Beruf:
    Onlinehandel
    Ort:
    Krefeld
    Kurzwaffen unbeschränkt = mehr als 10 betrifft auch manche Sportschützen, insbesondere Sportschütze mit Jäger in Personalunion.
    Und da würde ich wissen wollen, wie sich da ein Bundesland über das WaffG stellen kann.....
     
  14. #14 Akwaaba, 27.08.2017
    Akwaaba

    Akwaaba

    Dabei seit:
    31.10.2016
    Beiträge:
    74
    Zustimmungen:
    16
    Beruf:
    Kaufmann
    Ort:
    Württemberg und Westafrika
    Wie wärs mit §36 Abs. 6 ?
     
  15. #15 OutdoorShop, 28.08.2017
    OutdoorShop

    OutdoorShop

    Dabei seit:
    09.10.2016
    Beiträge:
    163
    Zustimmungen:
    5
    Beruf:
    Onlinehandel
    Ort:
    Krefeld
    Leider nicht zutreffend.

    Fängt schon mit dem >>>> Einzelfall <<<< an und die Zahl der Waffen müsste schon erheblich über dem 10 Stück liegen, bei denen das Bundesgesetz ja explizit den Unterschied zwischen 0er und 1er macht.
     
Thema: Tresor einmauern
Besucher kamen mit folgenden Suchen
  1. tresor einmauern

    ,
  2. tresor unter treppe

    ,
  3. tresor im keller einbauen

    ,
  4. tresor einbetonieren,
  5. Tresor unter kellertreppe,
  6. tresor unter treppe einbauen,
  7. tresor betonieren,
  8. beton für tresor eingießen,
  9. waffentresor betonieren,
  10. Tresor Neubau,
  11. Safe ummauern estrich,
  12. tresor einzementieren,
  13. safe einbetonieren,
  14. safe sockel betonieren,
  15. tresor in beton gießen,
  16. tresor ummauern,
  17. Safe im Keller einmauern,
  18. tresor in bodenplatte einbauen,
  19. tresor einmaurer,
  20. forum tresor,
  21. tresor Neubau einbau rohbau ,
  22. mit welchembeton tresor einmauern,
  23. Tresor Keller einmauern,
  24. welche stelle baut man einen tresor ein,
  25. tresor einmauern keller
Die Seite wird geladen...

Tresor einmauern - Ähnliche Themen

  1. Safe/Tresor einmauern - Was gibt es zu beachten

    Safe/Tresor einmauern - Was gibt es zu beachten: Hallo, ich möchte einen Wandtresor in den Keller unter die Treppe selber einbetonieren. Aktueller Baustand ist Bodenplatte ohne Abdichtungslage....
  2. Verankerung Tresor - Interpretation Bauzeichnung/Grundriss

    Verankerung Tresor - Interpretation Bauzeichnung/Grundriss: Sehr geehrte Forumgemeinde, ich bin auf der Suche nach einem geeigneten Ort für die Aufstellung und Verankerung eines Tresors. Der Tresor kann...
  3. Sockel für Tresor, was beachten?

    Sockel für Tresor, was beachten?: Hallo, Sorry für den langen Post, aber erstmal eine kurze Aufgabenbeschreibung zu Beginn: bei mir soll ein Tresor bzw. großer Waffenschrank in...
  4. Tresor-Verankerung auf Stahlbetondecke?

    Tresor-Verankerung auf Stahlbetondecke?: Hallo! Ich wohne im 3. OG, Tresormasse ist ca. 700kg, steht in Ecke 2er Außenwände, Statiker war vor Ort und hat Okay gegeben. Decke ist aus...
  5. Tresor-Verankerung auf Estrich?

    Tresor-Verankerung auf Estrich?: Hallo! Wie würdet ihr einen Tresor/Safe/Wertschutzschrank am besten verankern, wenn der Untergrund nur ca. 5cm Estrich ist? Ich wohne im 3....