Tür/Durchgang im Keller (Wand tragend?)

Diskutiere Tür/Durchgang im Keller (Wand tragend?) im Bauphysik allgemein Forum im Bereich Bauphysik; Hallo zusammen. Hoffe ich hab das richtige Forum gewählt. wir haben im Keller Räume die damals beim Bau anscheinend mit Schutt zugeschüttet...

  1. FKunze

    FKunze

    Dabei seit:
    16.05.2012
    Beiträge:
    21
    Zustimmungen:
    1
    Beruf:
    Berechnungsingenieur CFD
    Ort:
    Dahlum
    Hallo zusammen.
    Hoffe ich hab das richtige Forum gewählt. wir haben im Keller Räume die damals beim Bau anscheinend mit Schutt zugeschüttet worden. Da sich dies wie ein Schwamm gefüllt hat und somit die Feuchtigkeit steigt würd ich dies gern entfernen. Der Eigentümer vor uns hatte „Löcher“ in eine Wand gemacht um anscheinend dahinter zu schauen. Diese würde ich gern erweitern um den Schutt zu entfernen und würd gern dies gleich als Durchgang in den dahinter liegenden Raum dann nutzen. Da laut Bauplan diese Wand fast 40 cm dick ist gehe ich davon aus das Diese tragend sein wird.
    meine Frage ist ob man hier eine Öffnung für zb eine Tür ohne weiteres einbringen kann und mit einem Sturz absichern kann. Oder muss dies durch einen Sachverständigen begutachtet und durch Fachfirma ausgeführt werden. In nicht tragende Wände habe ich sowas schon eingebaut. Traue es mir somit vom handwerklichen zu.
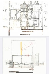
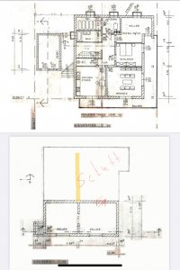
    Auf dem Bauplan habe ich die Öffnung mal rot gekennzeichnet. Die eingezeichnete gelbe Wand existiert schon. Nur im Bauplan wurde der dahinterstehende Bereich nicht eingetragen. Siehe letztes Bild mit dem Schutt dort sieht man die gelbe Wand
     

    Anhänge:

  2. #2 JohnBirlo, 07.11.2020
    JohnBirlo

    JohnBirlo

    Dabei seit:
    28.05.2020
    Beiträge:
    1.232
    Zustimmungen:
    461
    Das wird dir hier im Forum keiner mit Sicherheit sagen könne. Da musste dir einen Statiker bestellen, der sich das anschaut und dann den Sturz berechnet. Ist nicht teuer und du gehst nicht jeden Abend mit der Angst ins Bett, dass das Haus einstürzt....
     
  3. #3 Ungeduld, 07.11.2020
    Ungeduld

    Ungeduld

    Dabei seit:
    18.05.2015
    Beiträge:
    51
    Zustimmungen:
    23
    Beruf:
    Bau
    Ort:
    Köln
    Benutzertitelzusatz:
    HAL
    Jeck, was es nicht alles so gibt.

    Was da wohl der Hintergrund für diese Aktion war?
    Die Wand wo das Loch ist hast Du rot markiert und links davon die in den Plänen gelbe Wand?
    Gelb auch von Dir?

    Auch wenn ich es so vom Aussehen der gewählten Mauersteine sowie von der handwerklichen Mauerung für mich danach nicht aussieht ... auch die Wand mit dem Loch ist würde ich aus der Ferne (Ortsbesichtigung vorbehalten) erstmal als statisch tragend einstufen. Bitte auch da nicht einfach raushauen.

    Insbesondere da ja auch die Kopfwand in dem geschlossenen Raum augenscheinlich eine sehr große Öffnung (erkenne das nur schlecht) hat und darüber ist ja augenscheinlich kein Kellerfensterschacht ist, sollte das wirklich mal vor Ort von einem Statiker vor Ort angeschaut und bewertet werden.

    Auflösung hier wäre nett!

    Viel Erfolg und Grüße
    HAL
     
    SvenvH gefällt das.
  4. FKunze

    FKunze

    Dabei seit:
    16.05.2012
    Beiträge:
    21
    Zustimmungen:
    1
    Beruf:
    Berechnungsingenieur CFD
    Ort:
    Dahlum
    Das Loch war wie gesagt schon in der Wand. ja geht mir um die Entfernung des Schutts. Die gelbe Wand sieht man auf dem Foto mit dem Schutt links. Die ist schon drin gewesen. Es sieht so aus als ob es mal geplant war das gesamte Gebäude zu unterkellern. Zumindest sind dort schon Wände gezogen. Laut Bauplan sollten da aber keine sein.
    werde mal schauen ob das wir einen Statiker auftreiben.
     
  5. #5 Gast 85175, 07.11.2020
    Gast 85175

    Gast 85175 Gast

    Die sollte ziemlich sicher tragend sein, die Decke spannt wohl nicht über die ganzen 12,75m. Dass die Wand bisschen gruselig gemacht ist ist das andere Thema.
     
    SvenvH und simon84 gefällt das.
  6. #6 simon84, 07.11.2020
    simon84

    simon84
    Moderator

    Dabei seit:
    11.11.2012
    Beiträge:
    23.325
    Zustimmungen:
    6.939
    Beruf:
    Schrauber
    Ort:
    Muenchen
    Du kannst eigentlich mit Sicherheit davon ausgehen dass du hier erst unterstützen musst, dann Sturz einbauen und danach sollte die Türöffnung auch ein kein Problem sein.

    aber angesichts der unklaren gesamt Situation brauchst du eh jemand vor Ort der das anschaut und beurteilt !
     
    SvenvH und FKunze gefällt das.
  7. FKunze

    FKunze

    Dabei seit:
    16.05.2012
    Beiträge:
    21
    Zustimmungen:
    1
    Beruf:
    Berechnungsingenieur CFD
    Ort:
    Dahlum
    Ok. Danke für Eure Meinung bzw. Tipps. Anfrage an einen Statiker vor Ort ist raus. Mal schauen was der sagt
     
  8. SvenvH

    SvenvH
    Moderator

    Dabei seit:
    22.11.2019
    Beiträge:
    4.170
    Zustimmungen:
    1.584
    Hast du mal die Vorbesitzer fragen können was da drinnen vor sich ging? Das ist ja echt ein bißchen gruselig.
    Das scheint ja eine Art Tiefgarage gewesen zu sein.
     
    simon84 gefällt das.
  9. SvenvH

    SvenvH
    Moderator

    Dabei seit:
    22.11.2019
    Beiträge:
    4.170
    Zustimmungen:
    1.584
    Irgendwo muss ja nachträglich gemauert worden sein. Wie kommt sonst der Müll und die Spielsachen dahin.
     
  10. #10 Gast 85175, 07.11.2020
    Gast 85175

    Gast 85175 Gast

    Das Loch ist ca 50/50cm, da passt schon viel durch...
     
  11. FKunze

    FKunze

    Dabei seit:
    16.05.2012
    Beiträge:
    21
    Zustimmungen:
    1
    Beruf:
    Berechnungsingenieur CFD
    Ort:
    Dahlum
    Der Müll wurde durch das Loch da durch geworfen denk ich.
     
  12. FKunze

    FKunze

    Dabei seit:
    16.05.2012
    Beiträge:
    21
    Zustimmungen:
    1
    Beruf:
    Berechnungsingenieur CFD
    Ort:
    Dahlum
    der Vorbesitzer ist leider verstorben.
     
  13. FKunze

    FKunze

    Dabei seit:
    16.05.2012
    Beiträge:
    21
    Zustimmungen:
    1
    Beruf:
    Berechnungsingenieur CFD
    Ort:
    Dahlum
    Was mich wundert warum im Bauplan keinerlei Wände im hinteren Bereich also zur Hangseite eingezeichnet sind. Bedeutet das dort dann keine sind? Worauf liegt das Haus denn dann auf?
     

    Anhänge:

  14. SvenvH

    SvenvH
    Moderator

    Dabei seit:
    22.11.2019
    Beiträge:
    4.170
    Zustimmungen:
    1.584
    Wie alt ist das Haus? Wurde der hintere Teil evtl. illegal gebaut? Und was ist hinter der Wand durch die der Sand geschüttet wurde?
     
  15. FKunze

    FKunze

    Dabei seit:
    16.05.2012
    Beiträge:
    21
    Zustimmungen:
    1
    Beruf:
    Berechnungsingenieur CFD
    Ort:
    Dahlum
    Das Haus ist Baujahr 1985.
    der Teil mit dem Schutt muss immer verschlossen gewesen sein. Der Vorbesitzer hat dies zwei kleine Löcher in die Wand gemacht. Wozu ist mir nicht bekannt. Das Haus war dann kurze Zeit mal vermietet. Die Mieter haben anscheinend ihren Müll damit reingeworfen (Vermutung).

    laut Bauplan ist der Teil des Haus ja nicht vorhanden. Ich hab mal Bilder im Schnitt und von außen hochgeladen
     

    Anhänge:

Thema:

Tür/Durchgang im Keller (Wand tragend?)

Die Seite wird geladen...

Tür/Durchgang im Keller (Wand tragend?) - Ähnliche Themen

  1. Wasserschaden incomming? Terrasse zu hoch und Gefälle zur HS-Tür

    Wasserschaden incomming? Terrasse zu hoch und Gefälle zur HS-Tür: Hallo zusammen, ich stehe auf meiner Baustelle aktuell vor einem massiven Höhen- und Gefälleproblem beim Neubau einer Hochterrasse (Betonplatten...
  2. Türe einstellen

    Türe einstellen: Hallo, ich habe eine Hörmanntüre neben dem Carport und wenn sie zu ist hat sie immer noch viel Spiel. Ich habe die zwei Kreuzschrauben am...
  3. Ofendichtschnur an Tür ersetzen: Schnur-Durchmesser?

    Ofendichtschnur an Tür ersetzen: Schnur-Durchmesser?: An der Tür meines Kaminofens möchte ich die Dichtschnur ersetzen. Die ist einfach nur in einen 7mm breiten Spalt gedrückt. Nun frage ich mich, wie...
  4. Welches Profil hat diese Tür?

    Welches Profil hat diese Tür?: Hallo zusammen, ich brauche für eine Tür ein neues Schliessblech. Kann mir jemand sagen, welches Profil das ist und was ich da für eins brauche?...
  5. Durchgang vom Flur in den Wohnbereich ohne Tür

    Durchgang vom Flur in den Wohnbereich ohne Tür: Hallo, wir sind gerade in der Bauphase unseres Hauses. Bei der Auswahl der Türen überlegen wir uns was die beste Lösung zwischen Flur und...