Übergang Garage Pflasterung zu Estrich HWR

Diskutiere Übergang Garage Pflasterung zu Estrich HWR im Estrich und Bodenbeläge Forum im Bereich Neubau; Hallo zusammen, habe eine Frage, wir wollen jetzt anfangen unsere Garage zu pflastern, nun haben wir drei Räume direkt an der Garage angrenzend...

  1. Akurit

    Akurit

    Dabei seit:
    08.05.2025
    Beiträge:
    3
    Zustimmungen:
    0
    Hallo zusammen,

    habe eine Frage, wir wollen jetzt anfangen unsere Garage zu pflastern, nun haben wir drei Räume direkt an der Garage angrenzend mit Estrich. (Technikraum, WC und HWR, direkter Übergang zum Haus)
    Wie gestaltet sich der Übergang vom Pflaster/Pflastersand zum Estrich? Reicht eine Folie dazwischen oder muss da noch Dämmung zwischen oä?
    Danke
     
  2. Yilmaz

    Yilmaz

    Dabei seit:
    28.03.2006
    Beiträge:
    7.264
    Zustimmungen:
    1.298
    Beruf:
    Maurer & Betonbaumeister
    Ort:
    Delbrück/Westfalen
    Benutzertitelzusatz:
    Maurer-und Betonbauermeister
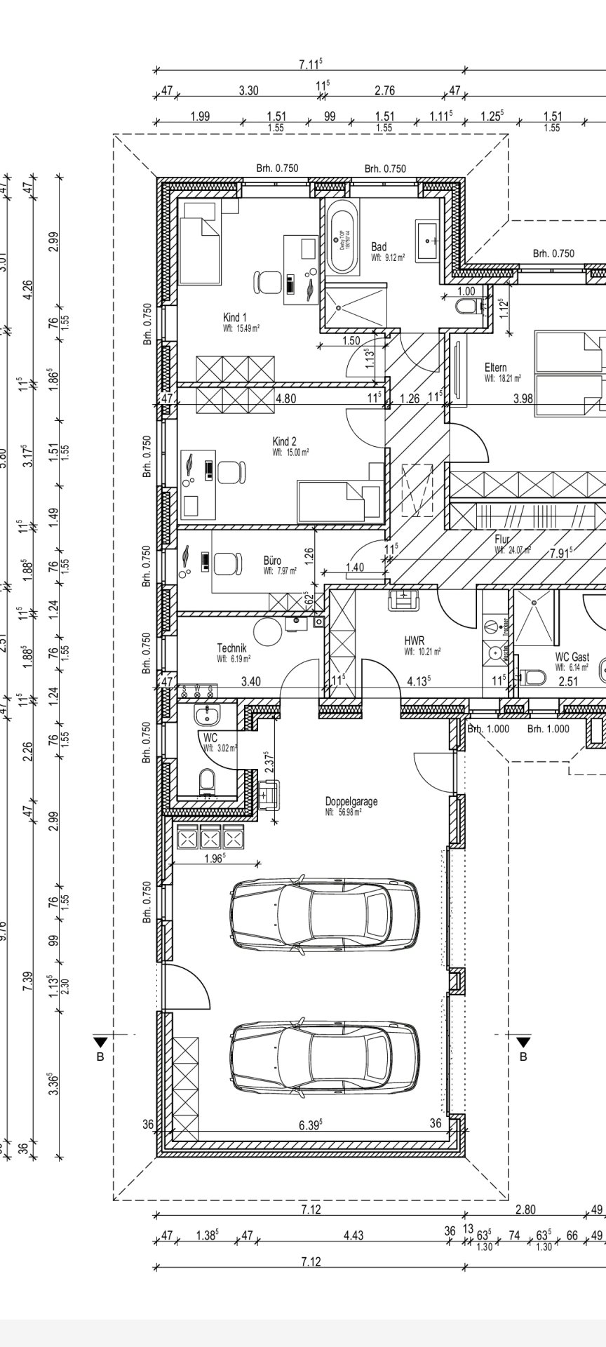
    Verstehe jetzt nicht ganz. Warum grenzt Estrich von drei räumen zu Garage? Gibt es eine Grundrissplan damit man sich vorstellen kann um was es genau geht
     
  3. Akurit

    Akurit

    Dabei seit:
    08.05.2025
    Beiträge:
    3
    Zustimmungen:
    0
    Moin
    Anbei n Bild der Zeichnung. Garage wird halt gepflastert
     

    Anhänge:

  4. SIL

    SIL

    Dabei seit:
    06.05.2018
    Beiträge:
    10.865
    Zustimmungen:
    4.212
    Beruf:
    M. Sc. Dipl. Ingenieur
    Ort:
    6210
    Da hat der Estrichleger oder der Planer geschlafen , hier hätten Abstellprofile eingebaut gehört, ist der Garagenboden betoniert ? dann kannst hier noch passende Winkel montieren, ich würde hier ausnahmsweise Edelstahl bevorzugen, nicht knirsch gegen den Estrich gestoßen, sondern mit Stopf/ Füllschnur und dann abspritzen
     
  5. Akurit

    Akurit

    Dabei seit:
    08.05.2025
    Beiträge:
    3
    Zustimmungen:
    0
    Garagenboden ist nicht betoniert...
    Welche Auswirkungen hat es wenn kein Abschlussprofil verbaut ist?
     
  6. BaUT

    BaUT

    Dabei seit:
    30.10.2019
    Beiträge:
    9.196
    Zustimmungen:
    5.760
    Beruf:
    Baufacharbeiter und Dipl.-Ing. Hochbau
    Ort:
    Berlin
    Benutzertitelzusatz:
    Erklärbär
    Dann bröseln die Estrichkanten aus?
     
    msfox30 gefällt das.
  7. #7 msfox30, 09.05.2025
    msfox30

    msfox30

    Dabei seit:
    12.05.2015
    Beiträge:
    2.422
    Zustimmungen:
    832
    Beruf:
    IT Berater
    Ort:
    Halle
    Ist aber genauso hoch wie der Estrich?
    Bröselt die Kante bei gleicher Höhe auch?
     
  8. SIL

    SIL

    Dabei seit:
    06.05.2018
    Beiträge:
    10.865
    Zustimmungen:
    4.212
    Beruf:
    M. Sc. Dipl. Ingenieur
    Ort:
    6210
    Was ist innen auf dem Estrich kommt da noch Keramik oder anderer Belag , dann setze das Profil dort auf
     
Thema:

Übergang Garage Pflasterung zu Estrich HWR

Die Seite wird geladen...

Übergang Garage Pflasterung zu Estrich HWR - Ähnliche Themen

  1. Estrich auf XPS in der Garage / Übergang zu Pflaster

    Estrich auf XPS in der Garage / Übergang zu Pflaster: Hallo Bauexperten und Erfahrene, in unserem Neubau haben wir eine Doppelgarage, die vollständig unterkellert ist (Abstellraum und Sauna im UG)....
  2. Pflasterung Übergang Garage

    Pflasterung Übergang Garage: [ATTACH] [ATTACH] Hallo zusammen, hat jemand eine Idee, wie ich den Übergang von Garage zu gepflasterter Auffahrt hinbekomme? Wie man auf dem...
  3. Übergang Garage Pflaster XPS Perimentärdämmung

    Übergang Garage Pflaster XPS Perimentärdämmung: Schönen guten Abend, Ich möchte gerne meine Garage fliesen, es ist kein Estrich vorhanden wird auch keiner gemacht. Es wird auf den den Rohbeton...
  4. Garagentür Brandschutztür für den Übergang Garage ins Haus

    Garagentür Brandschutztür für den Übergang Garage ins Haus: Hallo, weiß jemand welchen UD Wert eine Garagentür / Brandschutztür zum Übergang von einer unbeheizten Garage zum Haus bei KFW40 aktuell haben...
  5. Garageneinfahrt - Übergang Garage - Stellplatz

    Garageneinfahrt - Übergang Garage - Stellplatz: Hallo Bauexperten, ich habe schon etliche Themen zu meiner Frage hier im Forum durchforstet, aber vermutlich vor lauter Themen das Richtige nicht...