Unser Haus #2

Diskutiere Unser Haus #2 im Mein Hausbau Forum im Bereich Rund um den Bau; Naja eine Dichtschlämme kann man schon überspitzen.

  1. #141 Fabian Weber, 12.06.2019
    Fabian Weber

    Fabian Weber

    Dabei seit:
    03.04.2018
    Beiträge:
    16.296
    Zustimmungen:
    6.460
    Naja eine Dichtschlämme kann man schon überspitzen.
     
  2. arch

    arch

    Dabei seit:
    01.06.2017
    Beiträge:
    568
    Zustimmungen:
    234
    Beruf:
    Architekt
    Ort:
    Bodensee
    Aber wo wird weiter oben abgedichtet? Weil über der Bodenplatte stehen ja nur die Träger, keine einheitliche Fläche zum drüber kleben. Das beduete, die Abdichtungsbahn wird nicht hoch gezogen, sondern nur die Permiterdämmung? Scheint mir an dem Fußpunkt dann trotzdem nicht dicht zu sein. Hast du das Detail auch? Kannst es kurz abfotografieren?
     
  3. #143 Fabian Weber, 13.06.2019
    Fabian Weber

    Fabian Weber

    Dabei seit:
    03.04.2018
    Beiträge:
    16.296
    Zustimmungen:
    6.460
    Nee Arch, weiter oben wird auf die Sockeldämmung gedichtet.
     
  4. #144 Surfer88, 13.06.2019
    Surfer88

    Surfer88

    Dabei seit:
    17.12.2018
    Beiträge:
    1.098
    Zustimmungen:
    467
    So Bausatz ist komplett!

    Jetzt gehts dann richtig los.
    Verwahrung ist schon bestellt, 29.6 ist mal Dachdeckdatum.

    Lg
     

    Anhänge:

  5. #145 Surfer88, 13.06.2019
    Surfer88

    Surfer88

    Dabei seit:
    17.12.2018
    Beiträge:
    1.098
    Zustimmungen:
    467
    So hat ers vor:
    -3 Schichtplatte (gelb) in das freie Feld
    - dann eine extra Bitumenbahn (rot) an die bodenplatte anschweißen und auf die 3 Schichtplatte führen (nicht die Katja)
    -dann Xps Platte (grün) von der Holzfaser bis runter zur Bodenplattendämmung.
    Die Bopladämmunh müssen wir wie gesagt noch um 10-15 cm einkürzen.

    Lg
     

    Anhänge:

    arch und Domski gefällt das.
  6. #146 Fabian Weber, 13.06.2019
    Fabian Weber

    Fabian Weber

    Dabei seit:
    03.04.2018
    Beiträge:
    16.296
    Zustimmungen:
    6.460
    So ist es auch super korrekt :)

    So musst Du wenigstens die Stelle, die Du mit dem Bagger kaputtgefahren hast nicht mehr reparieren, hehe
     
  7. #147 Leser112, 13.06.2019
    Leser112

    Leser112

    Dabei seit:
    23.12.2016
    Beiträge:
    1.843
    Zustimmungen:
    254
    Beruf:
    Dipl.-Ing., TGA Planer
    Ort:
    Berlin-Brandenburg
    Benutzertitelzusatz:
    Energieeffizienzexperte
    Qualitativ durchaus sehr ansprechend! Die Verbretterung auf den Sparren als Aussteifung für den Dachstuhl wäre allerdings nicht unbedingt notwendig gewesen.;)
    Insgesamt jedoch, nach den Bildern, eine qualitativ hochwertige Ausführung, die eine Aufdachdämmung vermuten lässt.
     
  8. #148 Surfer88, 13.06.2019
    Surfer88

    Surfer88

    Dabei seit:
    17.12.2018
    Beiträge:
    1.098
    Zustimmungen:
    467
    Dahinter ist die Flockung, also die Bretter haben sowohl eine optischen als auch einen funktioniellen nutzen :D

    Lg
     
    Leser112, Fabian Weber und arch gefällt das.
  9. Lexmaul

    Lexmaul

    Dabei seit:
    15.09.2014
    Beiträge:
    8.921
    Zustimmungen:
    2.163
    Benutzertitelzusatz:
    Mimosenlecker
    Aufdachdämmung bei der Unterspannbahn wohl kaum - aber das hatte ich ja auch schon gefragt :).
     
  10. #150 Surfer88, 13.06.2019
    Surfer88

    Surfer88

    Dabei seit:
    17.12.2018
    Beiträge:
    1.098
    Zustimmungen:
    467
    Dachaufbau von außen nach innen:

    Tonziegel edelengobe
    Wütop
    6cm Holzweichfaser
    24cm Upsiträger + Celluloseflockung
    19mm Fichteplatte Topsicht
    16cm Sichtsparren

    Bei Sichtdachstuhl immer Aufdach, ist energetisch auch das beste.

    Lg
     
  11. Lexmaul

    Lexmaul

    Dabei seit:
    15.09.2014
    Beiträge:
    8.921
    Zustimmungen:
    2.163
    Benutzertitelzusatz:
    Mimosenlecker
    Wofür die Unterspannbahn? Die ist doch bei HWF gar nicht vorgesehen?

    Oder ist das bei der Flockdämmung dann so?
     
  12. #152 Surfer88, 14.06.2019
    Surfer88

    Surfer88

    Dabei seit:
    17.12.2018
    Beiträge:
    1.098
    Zustimmungen:
    467
    Heute war Richtfest!

    Lg
     

    Anhänge:

    Fabian Weber, simon84 und arch gefällt das.
  13. #153 Zenkmann, 17.06.2019
    Zenkmann

    Zenkmann

    Dabei seit:
    05.06.2013
    Beiträge:
    17
    Zustimmungen:
    0
    Beruf:
    FAhrradmechaniker
    Ort:
    Berlin
    super
     
  14. #154 Surfer88, 21.06.2019
    Surfer88

    Surfer88

    Dabei seit:
    17.12.2018
    Beiträge:
    1.098
    Zustimmungen:
    467
    Updates:
    Kamin ist drin
    Warmwasserpodest geschalt, demnächst betoniert.
    Treppe ist abgeschalt
    Küchenwand mal bisschen angefangen
    Entlüftungsleitung für wcs sitzt
    Badewanne und dusche bekommen keine entlüftungsleitung.
    Unsere edelengoben Dachziegel wurden geliefert.

    Lg
     

    Anhänge:

  15. #155 Surfer88, 26.06.2019
    Surfer88

    Surfer88

    Dabei seit:
    17.12.2018
    Beiträge:
    1.098
    Zustimmungen:
    467
    Treppe und Podest betoniert.
    Technikraum Trockenbau angefangen,
    Morgen abend mach ich mit einem Freund noch kurz die Dachverwahrung, damit wir Freitag Mittag anfangen können mit Decken.

    Lg
     

    Anhänge:

    arch gefällt das.
  16. #156 Surfer88, 28.06.2019
    Surfer88

    Surfer88

    Dabei seit:
    17.12.2018
    Beiträge:
    1.098
    Zustimmungen:
    467
    So.... 23:00
    Wegen mangelndem Sonnenlicht mussten wir das Dachdecken unterbrechen :D
    Morgen gehts weiter!
    Donnerstag bis Nachts um 1 noch an der Verwahrung rumgemacht. Die ist fertig. Sieht auch schön aus.
    Zweite Treppenstufe ist geschalt, kommt dann auch morgen.
    Unser Gaskaminschacht wurde geliefert und unser warmwasserspeicher sowie das Schlauchpaket der Solarpanele.... hoffen wir mal das 15m reichen um hoch zu kommen.

    Bis dahin.

    Lg
     

    Anhänge:

    Fabian Weber gefällt das.
  17. #157 Surfer88, 30.06.2019
    Surfer88

    Surfer88

    Dabei seit:
    17.12.2018
    Beiträge:
    1.098
    Zustimmungen:
    467
    Dach ist fertig.
    Freitag noch die Kehlen und der First.
    Schlauchpaket ist natürlich zu kurz.... wir werden es dann ab dem Dachboden muffen!
    Mein Kumpel war bei der Kamindurchführung durch die Dampfsperre im Dach etwas...“grob“

    Muss jetzt erstmal überlegen wie ich das wieder hinbekommen O_O

    Morgen solls regnen, da machen wir dann an der elektrik im Innenbereich weiter.
    Außerdem die ganzen Deckendurchbrüche für FBh und Sanitär usw....

    Gute Nacht!

    Lg
     

    Anhänge:

    arch, Domski und Fabian Weber gefällt das.
  18. #158 Surfer88, 01.07.2019
    Surfer88

    Surfer88

    Dabei seit:
    17.12.2018
    Beiträge:
    1.098
    Zustimmungen:
    467
    Trockenbau läuft.
    Kamin mal soweit gesäubert
    Solarpaket liegt bis auf den Dachboden.

    Mittwoch steht nach der Verwahrungsaktion die nächste Nachtschicht an....Sanitär Rohinstallation, denke wenn wir um 19 uhr Anfangen sind wir so um 1-2 fertig. Inkl Deckendurchführungen etc...

    Lg
     

    Anhänge:

  19. arch

    arch

    Dabei seit:
    01.06.2017
    Beiträge:
    568
    Zustimmungen:
    234
    Beruf:
    Architekt
    Ort:
    Bodensee
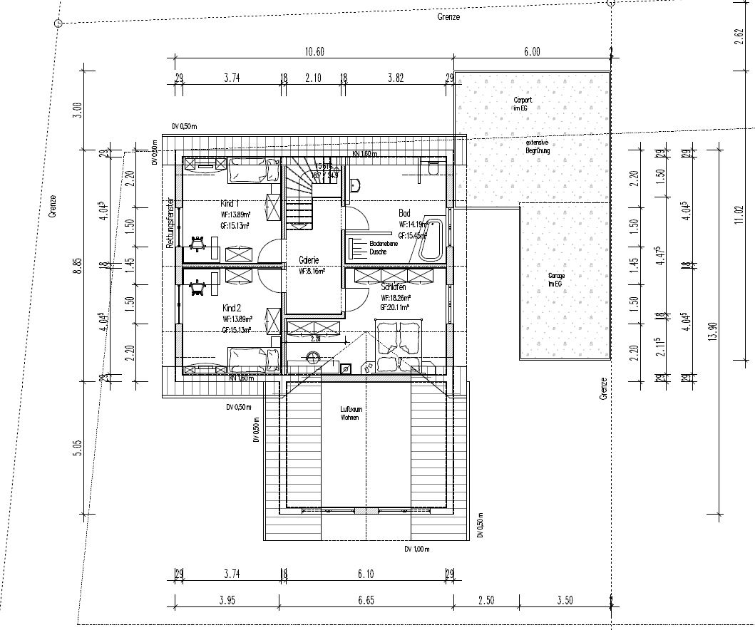
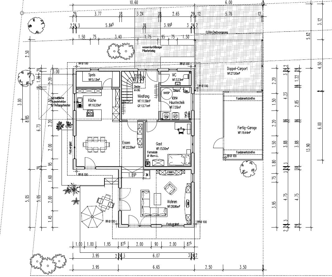
    Hab ich eigentlich den Post mit den Plänen übersehen? Gibt es einen? Nur damit ich weiß, ob sich das suchen lohnt...
     
  20. #160 Surfer88, 02.07.2019
    Surfer88

    Surfer88

    Dabei seit:
    17.12.2018
    Beiträge:
    1.098
    Zustimmungen:
    467
    Hier

    Lg
     

    Anhänge:

    • DG.JPG
      DG.JPG
      Dateigröße:
      148,2 KB
      Aufrufe:
      453
    • EG.JPG
      EG.JPG
      Dateigröße:
      197,7 KB
      Aufrufe:
      417
    • Quer.JPG
      Quer.JPG
      Dateigröße:
      139,9 KB
      Aufrufe:
      452
    arch gefällt das.
Thema: Unser Haus #2
Besucher kamen mit folgenden Suchen
  1. Haus Anbau ringbeton

Die Seite wird geladen...

Unser Haus #2 - Ähnliche Themen

  1. Hilfe bei Vorplanung gesucht: Passt mein Haus (8,84m x 13,64m) auf dieses Grundstück?

    Hilfe bei Vorplanung gesucht: Passt mein Haus (8,84m x 13,64m) auf dieses Grundstück?: Hallo zusammen, ich bin gerade in der ersten Planungsphase für mein Bauprojekt und bräuchte mal eure Einschätzung bzw. die Hilfe von jemandem mit...
  2. Fuge vom Gartenweg zum Haus erneuern

    Fuge vom Gartenweg zum Haus erneuern: Liebes Forum, die Fuge vom Gartenweg zum Haus ist an einigen Stellen kaputt (bei der Reinigung mit dem Hochdruckreiniger sind mir leider ein paar...
  3. Ton im Haus

    Ton im Haus: Guten Morgen Liebe Mitglieder des Forums Wir brauchen Ihre Hilfe. Ich versuche das Problem einmal kurz zusammenzufassen. Seit dieser Heizperiode...
  4. Ideen gesucht: Terrasse im U-förmigen Haus schließen – wie Durchgang und dunklen Eckraum nutzen?

    Ideen gesucht: Terrasse im U-förmigen Haus schließen – wie Durchgang und dunklen Eckraum nutzen?: Hallo zusammen, wir überlegen, unser neu erworbenes älteres Haus umzubauen und würden uns sehr über Ideen oder Erfahrungen freuen. Das Haus ist...
  5. Verantwortlichkeit Abdichtung Garage zu Haus

    Verantwortlichkeit Abdichtung Garage zu Haus: Hallo liebe Gemeinde, Die Abdichtung von Garage zum Haus (Bitumen, Profil etc) ist undicht geworden, Frage nun: Wer muss die Reparatur...